Omschrijving

Gelegen midden de dorpskern van Elst Utrecht, bieden wij te koop aan, deze in 2018 gebouwde middenwoning met garage. Het woonhuis is onderdeel van het project Maximahuizen.

Het betreft een ruime compleet geïsoleerde eengezinswoning (energielabel A) met een zeer hoog afwerkingsniveau. De woning is o.a. voorzien van een luxe keuken en badkamer, 4 á 5 slaapkamers, een zonnige achtertuin op het zuidwesten en een riante garage van ruim 27 m². Kortom een z.g.a.n. instapklaar huis.

De goede voorzieningen van Elst zijn allemaal op loopafstand gelegen. Dat geldt ook voor de uitgestrekte bossen en sportfaciliteiten. De bereikbaarheid naar de (grotere) plaatsen Veenendaal en Rhenen is prima in orde en zorgen ervoor dat we dit een uitstekende woonlocatie mogen noemen.

Globale indeling:
Begane grond:
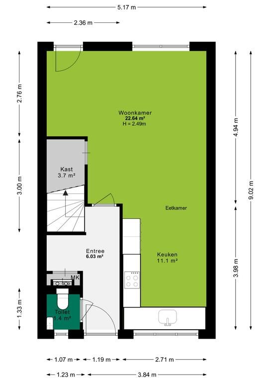
Via de entree kom je bij de royale hal met goede garderobe gelegenheid, toegang tot de moderne toiletruimte, de trapopgang en de woonkamer. De ruime woonkamer is tuingericht en beschikt door de dubbele openslaande tuindeuren over heerlijk veel licht inval. Naast de dubbele openslaande deuren is er ook een enkele loopdeur aanwezig, beide geven deze toegang tot de zonnige achtertuin. In de woonkamer is een praktische trapkast aanwezig. Centraal tussen de woonkamer en keuken bevindt zich het eetgedeelte. Hier is meer dan voldoende ruimte voor een grote eettafel met stoelen. Een fijne plek om met familie en/of vrienden te genieten van een hapje, drankje en spelletje! Op de voorzijde van de woning is de open keuken gesitueerd. De keuken is uitgevoerd met een luxe inbouwkeuken in L. vorm in een moderne en strakke kleurstelling. Uiteraard inclusief uitgebreide inbouwapparatuur en veel kast- en werkruimte.

De gehele begane grond vloer is voorzien van een plavuizen vloerafwerking met vloerverwarming.

1e verdieping:
Via de vaste trap kom je bij de overloop welke toegang biedt naar de 3 ruime slaapkamers en de badkamer. 2 slaapkamers, waaronder de ouderslaapkamer, zijn op de achterzijde gelegen. De ouderslaapkamer heeft een grote op maat gemaakte kastenwand. De badkamer is met bijna 7 m² eveneens ruim. De wanden zijn volledig betegeld met een betonlook tegel en de vloer is voorzien van een fraaie houtlook vloertegels. Er is een ruime inloopdouche, 2e toilet, ligbad, designradiator en een wastafel aanwezig. Verder diverse bergmeubels en een te openen raam voor frisse lucht en daglicht.

2e verdieping:
De tweede verdieping is bereikbaar middels een vaste trap. De grote open zolderruimte is hier terug te vinden met dakraam en diverse opberg mogelijkheden.

Hier is het creëren van 1 of 2 extra slaapkamers zeer goed mogelijk.

Voorst is er een technische ruimte met de wasmachine aansluiting. Tevens hangt hier de HR cv installatie.

Tuin:
De woning beschikt over een heerlijke moderne aangelegde achtertuin op het zuidwesten, je kunt hier dus heerlijk genieten van het buitenleven. Vanuit de woonkamer heb je een mooi uitzicht naar de sfeervolle en moderne achtertuin. Achterin de achtertuin staat een riante garage van ruim 27 m², ideaal voor het opbergen van je gereedschap of fietsen.

Kenmerken:
- Bouwjaar 2018;
- Woonoppervlakte 120 m²;
- Vier tot vijf slaapkamers;
- Energielabel A;
- Luxe en moderne keuken, badkamer en toilet;
- Zeer hoog afwerkingsniveau;
- Riante garage van ruim 27 m²;
- Openslaande deuren met een extra deur naar de achtertuin
- Woning is gebouwd onder garantie van de Stichting Waarborgfonds Koopwoningen (SWK);
- Voorzien van 4 zonnepanelen
- De begane grond is voorzien van vloerverwarming, 1e verdieping met radiatoren;

Koopovereenkomst:
Koopt u de woning zonder voorbehoud van financiering? Dan zullen wij een termijn hanteren van 14 dagen na het opstellen van de koopovereenkomst voor het storten van de bankgarantie/waarborgsom.

Deze informatie is door ons met de nodige zorgvuldigheid samengesteld. Onzerzijds wordt echter geen enkele aansprakelijkheid aanvaard voor enige onvolledigheid, onjuistheid of anderszins, dan wel de gevolgen daarvan. Alle opgegeven maten en oppervlakten zijn indicatief.
+ toon meer
deze woning is Verkocht

Irenestraat 37 A Elst Ut

Irenestraat 37 A

3921 BG, Elst Ut
Ditters open huis: 5 april 2025 10:00 - 12:00 uur
Landelijke Open Huizen Route NVM: 5 april 2025 11:00 uur - 15:00 uur
Vanaf€ 450.000 k.k.

Schakel een aankoopmakelaar in.

Snel handelen helpt je jouw droomhuis te bemachtigen. Zo vergroot je de kans dat je er op tijd bij bent.
Elst Ut
verkocht

Of maak vrijblijvend een zoekprofiel aan.

Vergelijkbare woningen

Hypotheken

Onafhankelijk hypotheekadvies

  • Ligt jouw droomhuis binnen handbereik?
  • Wil je jouw huidige hypotheek verhogen?
  • Is er hypotheekruimte voor verduurzaming?

Blijf op de hoogte

Ontvang als eerste updates over nieuw aanbod en mis geen enkele kans om jouw droomwoning te vinden.

Gratis waardebepaling of verkoopgesprek

Met de vrijblijvende waardecheck weet je snel waar je aan toe bent. Onze makelaars kijken naar de lokale markt en vergelijkbare woningen in jouw buurt om een goede schatting te geven.

Realiseer al jouw woondromen met Ditters

Wij zijn een team van gedreven vastgoedexperts met een passie voor het maken van verbindingen – tussen kopers en verkopers, huurders en verhuurders. Met een frisse kijk op de makelaardij combineren we expertise met creativiteit. Onze makelaars luisteren écht en nemen de tijd om jouw wensen te begrijpen.


Bij Ditters sta je er niet alleen voor. We denken met je mee, begeleiden je in elke stap en zijn altijd bereikbaar voor vragen. Neem gerust contact met ons op – we helpen je graag verder!