Omschrijving

Ruime hoekwoning met garage, eigen oprit en 4 slaapkamers, gelegen in het gezellige en groene Giesbeek nabij water en natuur.

Op zoek naar een ruime hoekwoning met garage, vier slaapkamers en een geweldige ligging met vrij uitzicht? Deze woning aan de Barenbroeklaan 55 biedt 119 m² woonoppervlakte, een perceel van 251 m² en een parkeerplaats op eigen terrein. Dankzij de ligging in een rustige woonstraat, maar met voorzieningen én recreatiegebied Rhederlaag dichtbij, is dit een ideale plek voor gezinnen die comfort en ontspanning willen combineren.

Giesbeek is een charmant en gezellig dorp waar rust en ruimte samengaan met alle benodigde voorzieningen. Je vindt er scholen, winkels en diverse horecagelegenheden. Dankzij de ligging ben je binnen korte tijd in steden als Arnhem en Doetinchem. Bovendien ligt het prachtige recreatiegebied Rhederlaag praktisch om de hoek – ideaal voor watersport, ontspanning en natuurbeleving.

Barenbroeklaan 55 is een ruime en praktische hoekwoning met garage, eigen oprit, 4 slaapkamers en een groene en waterrijke omgeving. Dankzij de ligging nabij Rhederlaag én de goede bereikbaarheid richting Arnhem en Doetinchem, combineert dit huis ruimte en rust met volop mogelijkheden voor ontspanning.

Nieuwsgierig geworden?
Neem contact met ons op voor een bezichtiging en ervaar zelf de ruimte en ligging van deze woning in Giesbeek.

Pluspunten van deze woning
+ Hoekwoning in groene en waterrijke omgeving
+ 119 m² woonoppervlakte en 4 slaapkamers
+ Perceeloppervlakte van 251m²
+ Garage en parkeerplaats op eigen terrein
+ Zowel aan de voor als achterzijde geniet je van vrij uitzicht en de rustige ligging
+ In 2010 zijn er nieuwe gevelramen, kozijnen en deuren geplaatst
+ In 2022 is de woning opnieuw gevoegd, het schilderwerk uitgevoerd en is er een nieuwe voordeur en kozijn geplaatst
+ Gelegen nabij recreatiegebied Rhederlaag

Indeling
Begane grond
Aan de voorzijde bevindt zich de woonkamer, terwijl de eetkamer en de halfopen keuken aan de achterzijde liggen. Vanuit de woonkamer geniet je van een prachtig groen uitzicht. De keuken is opgesteld in een hoek en sluit aan op de eetkamer. Via de tuindeur stap je zo de achtertuin in. Er is voldoende opbergruimte mede dankzij de aanwezige bovenkasten. De keuken is voorzien van de volgende inbouwapparatuur: kookplaat, afzuigkap, combi-oven en koel-vriescombinatie.

Eerste verdieping
Hier vind je drie goed bemeten slaapkamers en de badkamer. De kamers zijn recht opgetrokken en bieden veel ruimte. De badkamer is volledig betegeld in lichte kleurstelling en voorzien van een wastafelmeubel, inloopdouche en toilet. Dankzij de aanwezige ramen wordt de ruimte niet alleen voorzien van prettig natuurlijk licht, maar is er ook de mogelijkheid om de badkamer gemakkelijk op een natuurlijke manier te ventileren.

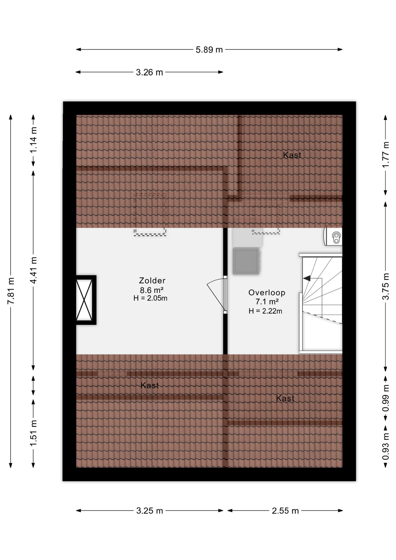
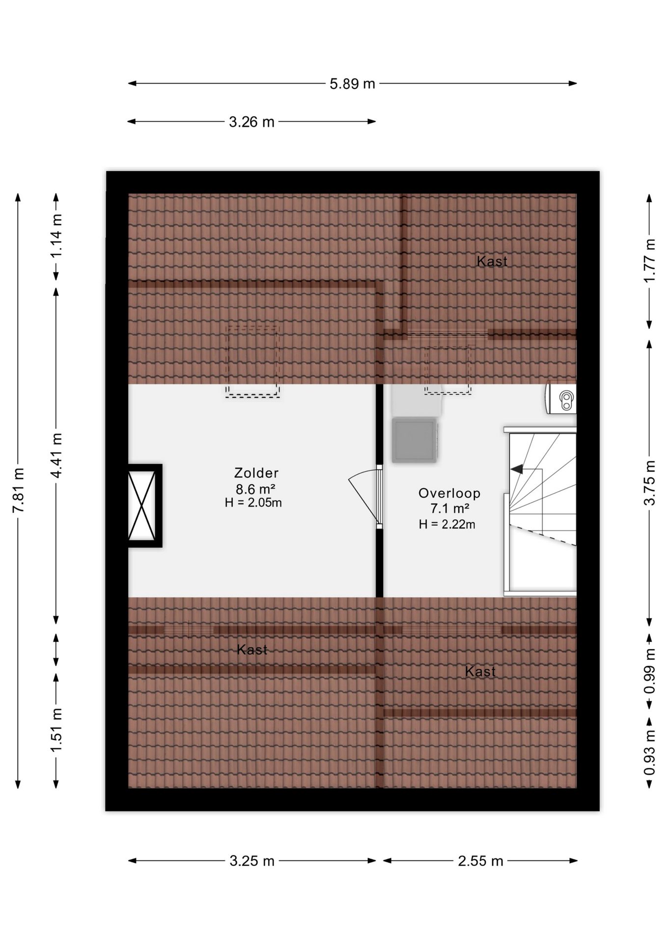
Tweede verdieping
Via een vaste trap kom je op de voorzolder met witgoedaansluiting en bergruimte achter de knieschotten. Daarnaast is hier de vierde slaapkamer van circa 8,6m² met dakraam.

Buitenruimte
De goed onderhouden tuin is gelegen op het noordwesten en beschikt over een handige overkapping en berging. Dankzij de gunstige ligging en de diepte van de tuin kun je hier zowel van zonnige als schaduwrijke plekjes genieten. Tevens is er een achterom aanwezig, wat zorgt voor extra gemak.

Koopovereenkomst:
Bij de verkoop zal er een standaard NVM koopovereenkomst, met aanvullend een niet bewonersclausule, worden gehanteerd.
Bij woningen welke ouder zijn dan 20 jaar, worden de volgende clausules opgenomen in de koopovereenkomst:
- Asbestclausule
- Ouderdomsclausule

Koop je de woning zonder voorbehoud van financiering? Dan zullen wij een termijn hanteren van 6 weken na het opstellen van de koopovereenkomst voor het storten van de bankgarantie/waarborgsom.
+ toon meer
deze woning is Verkocht

Barenbroeklaan 55 Giesbeek

Barenbroeklaan 55

6987 BH, Giesbeek
Ditters open huis: 5 april 2025 10:00 - 12:00 uur
Landelijke Open Huizen Route NVM: 5 april 2025 11:00 uur - 15:00 uur
Vanaf€ 389.500 k.k.

Schakel een aankoopmakelaar in.

Snel handelen helpt je jouw droomhuis te bemachtigen. Zo vergroot je de kans dat je er op tijd bij bent.
Giesbeek
verkocht

Of maak vrijblijvend een zoekprofiel aan.

Vergelijkbare woningen

Hypotheken

Onafhankelijk hypotheekadvies

  • Ligt jouw droomhuis binnen handbereik?
  • Wil je jouw huidige hypotheek verhogen?
  • Is er hypotheekruimte voor verduurzaming?

Blijf op de hoogte

Ontvang als eerste updates over nieuw aanbod en mis geen enkele kans om jouw droomwoning te vinden.

Gratis waardebepaling of verkoopgesprek

Met de vrijblijvende waardecheck weet je snel waar je aan toe bent. Onze makelaars kijken naar de lokale markt en vergelijkbare woningen in jouw buurt om een goede schatting te geven.

Realiseer al jouw woondromen met Ditters

Wij zijn een team van gedreven vastgoedexperts met een passie voor het maken van verbindingen – tussen kopers en verkopers, huurders en verhuurders. Met een frisse kijk op de makelaardij combineren we expertise met creativiteit. Onze makelaars luisteren écht en nemen de tijd om jouw wensen te begrijpen.


Bij Ditters sta je er niet alleen voor. We denken met je mee, begeleiden je in elke stap en zijn altijd bereikbaar voor vragen. Neem gerust contact met ons op – we helpen je graag verder!