Omschrijving

Lunteren, het kloppende hart van de Veluwe, waar je de rust van de natuur combineert met de gezelligheid van een bruisend dorpsleven – de perfecte plek om thuis te komen!

Park den Eng in Lunteren is een woonerf gelegen in een rustige, groene woonwijk met moderne woningen, omgeven door natuurlijke schoonheid en op korte afstand van voorzieningen en het buitengebied. Een ideale plek voor comfortabel en sfeervol wonen. Deze vrijstaande woning aan Park den Eng in Lunteren biedt het beste van beide werelden: licht en ruimte in een rustige, groene omgeving. Geniet van een leuke uitstraling, een royale tuin en de nabijheid van zowel natuur als het gezellige dorp. Het NS-station ligt op 500 m loopafstand (lijn Ede-Amersfoort) en de randstad, Amsterdam, is ook met de auto binnen een uur te bereiken. Een droomhuis op een toplocatie!

Bijzonderheden:
- Uitstekend beveiligd met modern hang- en sluitwerk. (Certificaat PKVW, geldig tot 2031).
- Nette afwerking van wanden en plafonds met strak spuitwerk.
- Garage inclusief verwarming, geïsoleerde segment roldeur en handige vliering.
- Perfecte verbinding tussen binnen- en buitenruimtes met meerdere toegangsdeuren naar de tuin.
- Deze woning combineert comfort en een uitstekende indeling op een toplocatie! Ideaal voor gezinnen of iedereen die op zoek is naar ruimte. Maak van dit huis jouw thuis!
- Er zijn mogelijkheden om subsidie te krijgen om uw huis (na) te isoleren en verduurzamen. Huiseigenaren kunnen ook tegen lage rente geld lenen om hun woning te verduurzamen.
- Uitstekende mogelijkheid voor het levensloopbestendig maken van de woning (zie extra toegevoegde plattegrond).

Indeling:
Begane grond:
Stap binnen in een ruime hal met een plavuizenvloer die direct een stijlvolle en verzorgde indruk achterlaat. Hier vind je de meterkast (8 groepen, aardelekschakelaars en dag-/nachtstroom) en een modern toiletruimte met zwevend closet, elektrische verwarming en fontein. Vanuit de hal is ook de inpandige garage toegankelijk, volledig uitgerust met verwarming, een handige vliering en een elektrisch bedienbare en tevens geïsoleerde segment roldeur.

De royale en zeer lichte woonkamer is een absolute blikvanger, voorzien van een prachtige massief afzelia parketvloer, een design haard voor hout, en grote ramen rondom die zorgen voor een oase van natuurlijk licht. Twee dubbele deuren geven toegang tot de zonnige terras- en tuinruimte. Aan de achterzijde van de woonkamer is bovendien een extra deur naar de zij-tuin, ideaal voor een optimale connectie met het buitenleven.

De stijlvolle open keuken (Siematic) is uitgerust met diverse inbouwapparatuur waaronder een 1,5 spoelbak, fornuis met keramische kookplaat en combi-oven. De rvs-afzuigkap en een praktische apothekerskast maken het geheel compleet. Vanuit hier is er een directe toegang tot de bijkeuken, die beschikt over een plavuizenvloer, een praktische vliering en aansluitingen voor wasapparatuur.

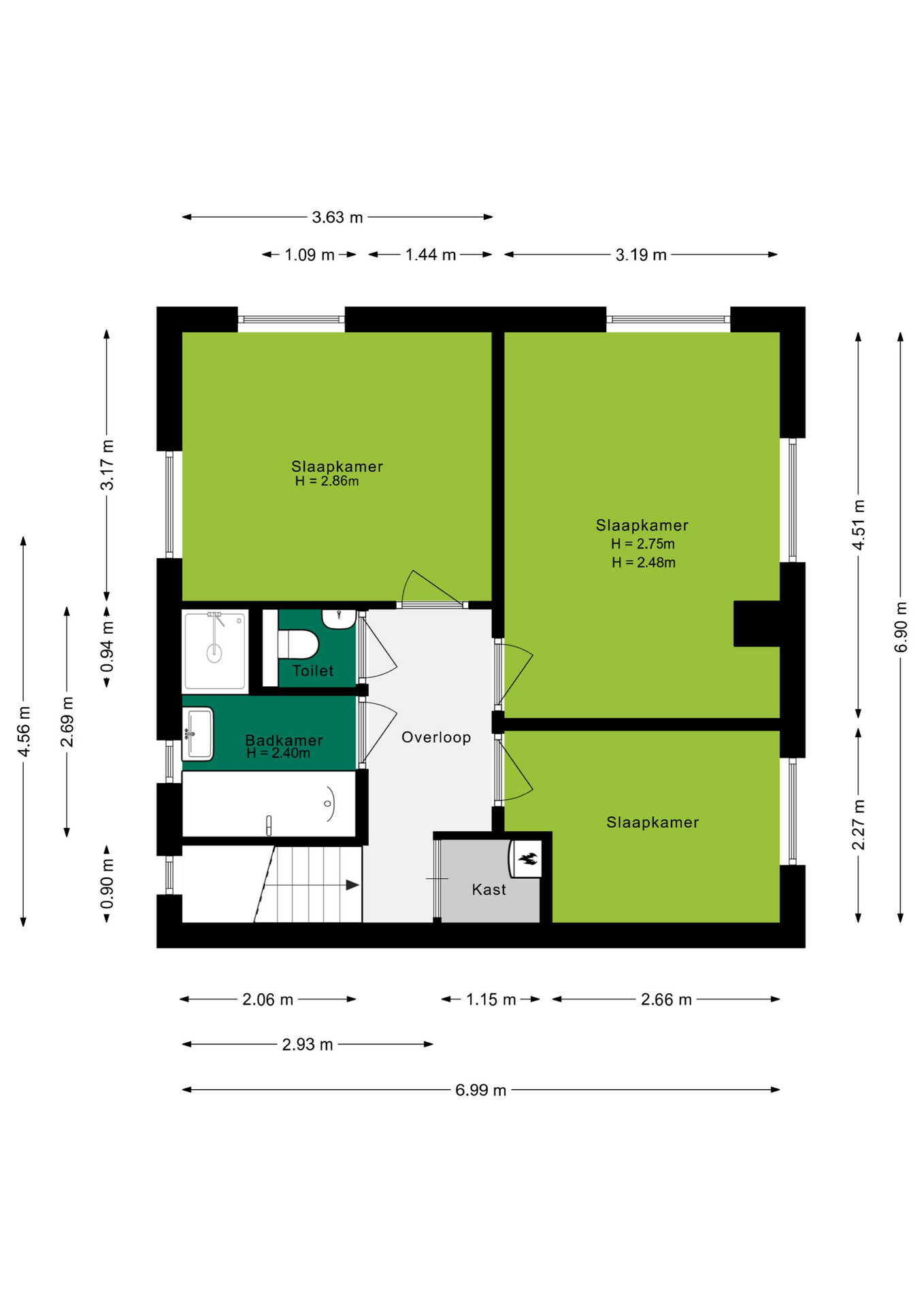
Eerste verdieping:
Op de eerste verdieping vind je een ruime overloop die toegang geeft tot drie grote slaapkamers. Twee kamers hebben prachtige draaikiep-raampartijen met veel daglicht. De verzorgde badkamer is voorzien van een whirlpoolbad (Ucosan clairpool), een inloopdouche, wastafel en designradiator. Daarnaast is er een separaat toilet met zwevend closet en fontein. De stookruimte, nu voorzien van een HR-CV ketel (ATAG-E 2011), biedt plaats aan een duurzame zonne-gas combiketel, deels ondersteund door de zonnecollectoren op het dak.

Tweede verdieping:
Via de trap is de bergzolder te bereiken, ideaal voor extra opslagruimte.

Tuin:
Zowel vanuit de woonkamer als de keuken is de ruime rondom gelegen tuin te bereiken. De verzorgd aangelegde tuin is grotendeels gesitueerd op het zuidwesten. Een heerlijk vrij gevoel heb je als je aan het genieten bent in de tuin. De garage is ruim genoeg om je spullen op te bergen of eventueel lekker te klussen. Kortom: een heerlijke plek om te ontspannen na een lange dag.

Afmetingen:
Woon- eetkamer 50.6 m²
Keuken 16.0 m²
Bijkeuken 5.4 m²
Slaapkamer 1 14.5 m²
Slaapkamer 2 11.4 m²
Slaapkamer 3 6.6 m²
Badkamer 4.1 m²
Garage 17.9 m²
Externe berging 4.2 m²

Koopovereenkomst:
Bij de verkoop zal er een standaard NVM koopovereenkomst worden gehanteerd. Bij woningen welke ouder zijn dan 20 jaar, worden de volgende clausules opgenomen in de koopovereenkomst:
- Asbestclausule;
- Ouderdomsclausule.

Koop je de woning zonder voorbehoud van financiering? Dan zullen wij een termijn hanteren van 7 weken na het opstellen van de koopovereenkomst voor het storten van de bankgarantie/waarborgsom.

Deze informatie is door ons met de nodige zorgvuldigheid samengesteld. Onzerzijds wordt echter geen enkele aansprakelijkheid aanvaard voor enige onvolledigheid, onjuistheid of anderszins, dan wel de gevolgen daarvan. Alle opgegeven maten en oppervlakten zijn indicatief.
+ toon meer
6741 ZR, Lunteren

Park Den Eng 37

Zaterdag 2 augustus 10:00 - 12:00 uur

€ 750.000 k.k.
ditters makelaars ede
Kopen
Financiële mogelijkheden

Waardecheck

Onze makelaars kijken naar de lokale markt en vergelijkbare woningen in jouw buurt om een goede schatting te geven.
Onze makelaars kijken naar de lokale markt en vergelijkbare woningen in jouw buurt om een goede schatting te geven.
Goed om te weten: deze waardecheck is vrijblijvend en geheel kosteloos
Onafhankelijk

Hypotheekadvies

We helpen je met het vergelijken van aanbiedingen van verschillende banken, zodat je de beste deal krijgt. 
Wij staan klaar om je te begeleiden, zodat je met vertrouwen de juiste hypotheek kunt kiezen.
Goed om te weten: dit adviesgesprek is vrijblijvend en geheel kosteloos

Wij helpen jou bij de keuze van de juiste polis.

Bij een onbezorgde toekomst horen ook goede verzekeringen die uitkeren bij bijvoorbeeld ziekte, schade of diefstal. Onze assurantieadviseurs helpen je bij de keuze van de juiste polis. In heldere taal.

Diverse verzekeringen

  • Opstalverzekering
  • Aansprakelijkheidsverzekering
  • Zorgverzekering
  • Reisverzekering

Buurtinformatie

Lunteren, Lunteren-Oost
Inwoners
Woningen
543
Inwoners
1.225
5
94
Koop / Huur
5% Huur94% Koop
Huishoudens
Eenpersoon
25.7%
Geen kinderen
45.0%
Met kinderen
28.4%
Leeftijdsopbouw in jaren
Buurt Landelijk
10.611.011.430.637.116.312.324.728.218.5

Locatie

Belangrijke documenten

Lijst van zaken

Overzicht van de zaken die achterblijven of worden meegenomen door de huidige bewoners.

Vragenlijst

Hier deelt de verkoper belangrijke informatie over de staat en bijzonderheden van de woning.

Vragenlijst c

Hier deelt de verkoper belangrijke informatie over de staat en bijzonderheden van de woning.

Brochure

Bekijk hier alle details van de woning, compleet met foto's en beschrijvingen.

Misschien interessant voor jou

Blijf op de hoogte

Ontvang als eerste updates over nieuw aanbod en mis geen enkele kans om jouw droomwoning te vinden.

Gratis waardebepaling of verkoopgesprek

Met de vrijblijvende waardecheck weet je snel waar je aan toe bent. Onze makelaars kijken naar de lokale markt en vergelijkbare woningen in jouw buurt om een goede schatting te geven.