Omschrijving

Deze tussenwoning aan de Vleermuislaan 22 in Lunteren biedt alles wat je zoekt voor comfortabel en duurzaam wonen. Met een royaal woonoppervlak van 131 m², 5 slaapkamers, zonnepanelen en een diepe achtertuin is dit een ideale gezinswoning.

Deze woning bevindt zich in een rustige woonwijk, op slechts 2 minuten fietsen van het centrum van Lunteren. Hier vind je gezellige winkels en andere dagelijkse voorzieningen. Het bos ligt om de hoek, ideaal voor een wandeling of fietstocht in de natuur. Bovendien ben je dankzij de nabijheid van de A30 en het treinstation snel verbonden met omliggende steden.

Alle kenmerken op een rij:
+ Ruime tussenwoning met 5 slaapkamers
+ Moderne badkamer, vernieuwd in 2021
+ Woonkamer met sfeervolle houtkachel
+ Voorzien van 8 zonnepanelen (energielabel B)
+ Royale tuin van bijna 20 meter diep met stenen berging
+ Gelegen op loop- en fietsafstand van winkels, natuur, OV en uitvalswegen

Indeling van de woning
Begane grond
Via de entree, waar zich tevens het toilet bevindt, stap je binnen in de woonkamer. Hier vind je een zithoek bij de gezellige houtkachel, de perfecte plek om te ontspannen na een lange dag. Dankzij de open indeling staat de zithoek in verbinding met de eetkamer en de keuken. De keuken is praktisch opgesteld in een hoekopstelling en voorzien van inbouwapparatuur zoals een vaatwasser, magnetron, gasfornuis, oven en afzuigkap. Direct grenzend aan de keuken vind je de handige bijkeuken met een wasmachineaansluiting en vaste kastenwand. Vanuit de bijkeuken loop je zo de diepe tuin in.

Eerste verdieping
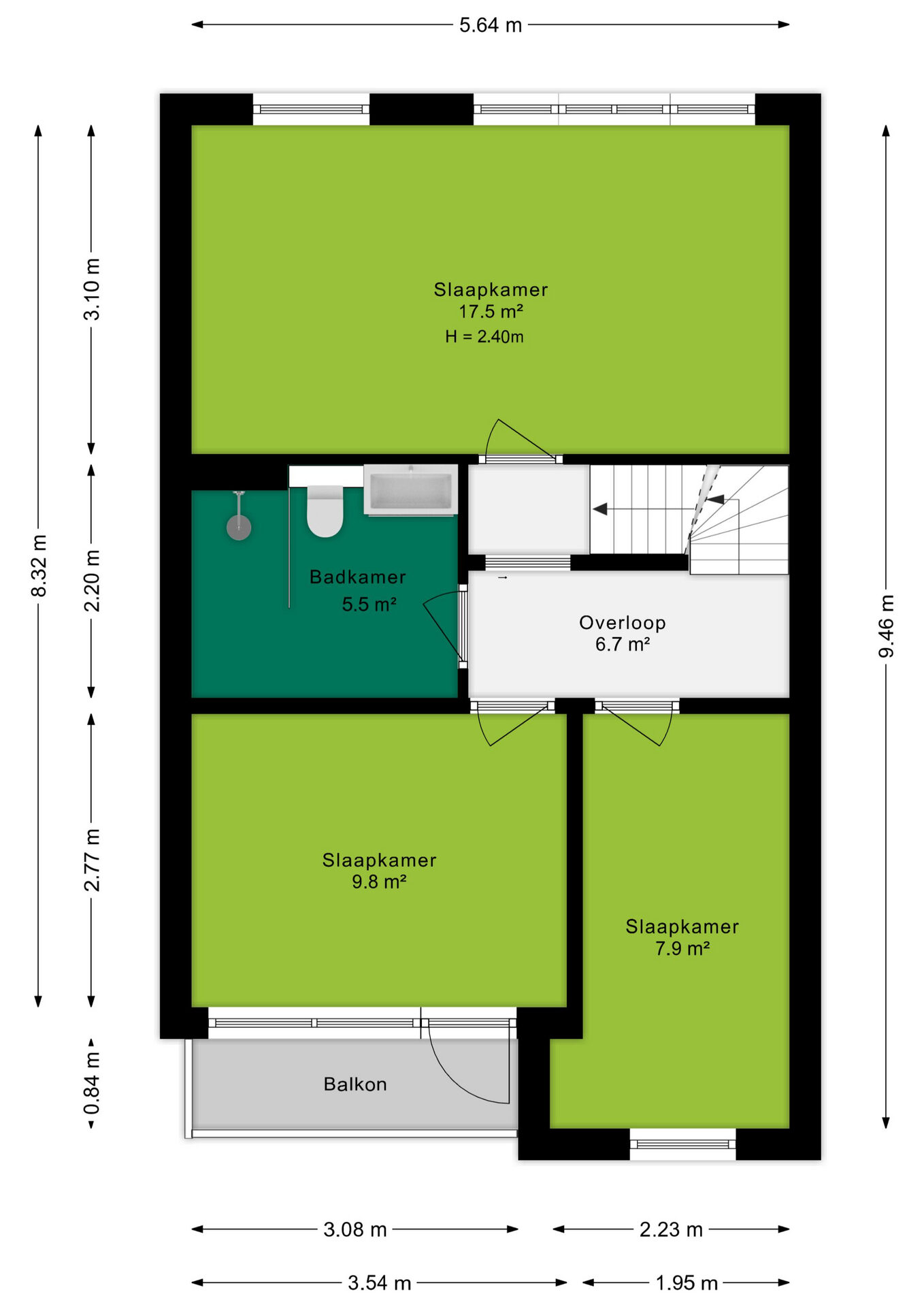
Op de eerste verdieping vind je drie ruime slaapkamers van respectievelijk ca. 18 m², 10 m² en 8 m². De slaapkamer aan de voorzijde biedt toegang tot het balkon op het zuiden, een heerlijke plek om van de zon te genieten. De badkamer is in 2021 vernieuwd en van alle gemakken voorzien, met een inloopdouche, toilet, wastafelmeubel en designradiator.

Tweede verdieping
De vaste trap leidt naar de tweede verdieping waar je nog eens twee slaapkamers (van elk ca. 8 m²) aantreft. Ideaal voor gebruik als hobbyruimte, thuiswerkplek of logeerkamer. Op de overloop bevindt zich de CV-ketel en er is veel praktische opbergruimte achter de knieschotten.

Tuin
De tuin is gelegen op het noorden, maar dankzij de lengte van bijna 20 meter is er altijd wel een plekje in de zon te vinden. De tuin is heerlijk ruim, voorzien van groen, een terras, een vijver en een stenen berging. Daarnaast is er een achterom, wat extra gemak biedt voor bijvoorbeeld fietsen en tuinaccessoires.

Koopovereenkomst:
Bij de verkoop zal er een standaard NVM koopovereenkomst worden gehanteerd.
Bij woningen welke ouder zijn dan 20 jaar, worden de volgende clausules opgenomen in de koopovereenkomst:
- Asbestclausule
- Ouderdomsclausule

Koop je de woning zonder voorbehoud van financiering? Dan zullen wij een termijn hanteren van 6 weken na het opstellen van de koopovereenkomst voor het storten van de bankgarantie/waarborgsom.
+ toon meer
deze woning is Verkocht

Vleermuislaan 22 Lunteren

Vleermuislaan 22

6741 AZ, Lunteren
Ditters open huis: 5 april 2025 10:00 - 12:00 uur
Landelijke Open Huizen Route NVM: 5 april 2025 11:00 uur - 15:00 uur
Vanaf€ 475.000 k.k.

Schakel een aankoopmakelaar in.

Snel handelen helpt je jouw droomhuis te bemachtigen. Zo vergroot je de kans dat je er op tijd bij bent.
Lunteren
verkocht

Of maak vrijblijvend een zoekprofiel aan.

Vergelijkbare woningen

Hypotheken

Onafhankelijk hypotheekadvies

  • Ligt jouw droomhuis binnen handbereik?
  • Wil je jouw huidige hypotheek verhogen?
  • Is er hypotheekruimte voor verduurzaming?

Blijf op de hoogte

Ontvang als eerste updates over nieuw aanbod en mis geen enkele kans om jouw droomwoning te vinden.

Gratis waardebepaling of verkoopgesprek

Met de vrijblijvende waardecheck weet je snel waar je aan toe bent. Onze makelaars kijken naar de lokale markt en vergelijkbare woningen in jouw buurt om een goede schatting te geven.

Realiseer al jouw woondromen met Ditters

Wij zijn een team van gedreven vastgoedexperts met een passie voor het maken van verbindingen – tussen kopers en verkopers, huurders en verhuurders. Met een frisse kijk op de makelaardij combineren we expertise met creativiteit. Onze makelaars luisteren écht en nemen de tijd om jouw wensen te begrijpen.


Bij Ditters sta je er niet alleen voor. We denken met je mee, begeleiden je in elke stap en zijn altijd bereikbaar voor vragen. Neem gerust contact met ons op – we helpen je graag verder!