Omschrijving

Zoekt u een plek waar u heerlijk kunt onthaasten? Wij bieden u dit chalet op eigen grond aan op een heerlijke locatie nabij Nijkerk en Amersfoort. Een unieke plek voor recreanten en perfect gelegen als uitval locatie naar het westen van het land.

Dit goed onderhouden chalet (bouwjaar 2015) ligt op eigen grond en is gelegen op EuroParcs Bad Hulckesteijn. Dit park ligt in Nijkerk aan het Nijkerkernauw op de Veluwe, zeilen, zwemen en surfen het kan allemaal.

Europarcs "Bad Hulckesteijn" is een recreatiepark direct gelegen aan het Nijkerkernauw. Het park is voorzien van diverse faciliteiten waaronder een overdekt zwembad, een wellness en een sportgelegenheid. Een hapje eten is ook mogelijk op het park bij Brasserie "De Vuurtoren".

In de omgeving kan er heerlijk gewandeld en gefietst worden, er zijn meerdere routes over de Veluwe en de bosgebieden beschikbaar.

Een unieke locatie voor een recreatiewoning. Je hoeft dus nooit ver te reizen voor je dagelijkse boodschappen of om de trein te pakken. Daarnaast ben je in 10 autominuten op de A1 en A28. Het parken van de auto kan bij de recreatiewoning zelf. Bezoekers parkeren vooraan bij het park waar veel parkeergelegenheid aanwezig is.

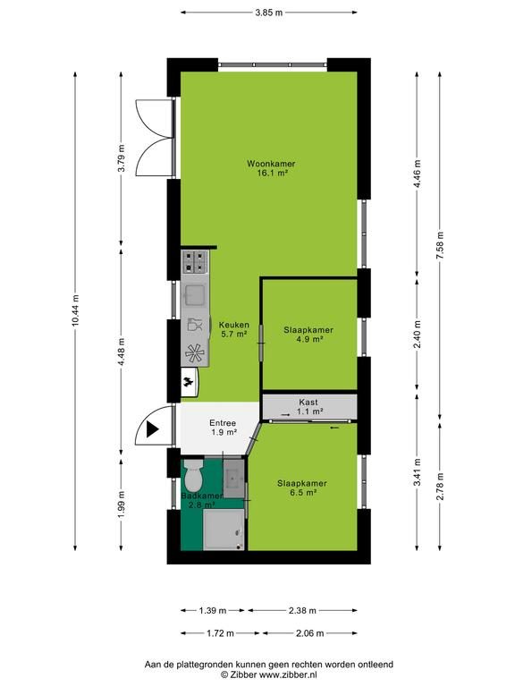
Het chalet is als volgt ingedeeld:
Entree, keuken en doorgang naar de woonkamer, 2 slaapkamers waarvan één met kastenwand en badkamer met douche, wastafel, wastafelmeubel en toilet.

Bijzonderheden:
+ Het perceel ligt op EuroParcs Resort de Utrechtse Heuvelrug waarbij het parkreglement en de recronvoorwaarden van toepassing zijn;
+ Je koopt de recreatiewoning voor eigen gebruik. Gebruik door vrienden, familie en kennissen zijn toegestaan;
+ Ruim perceel;
+ Recreatiechalet gelegen op eigen grond;
+ Schuur aanwezig;
+ Twee slaapkamers;
+ Het park beschikt over een overdekt zwembad, fitness ruimte, restaurant en is aan het water gelegen met naast het park een haven;
+ Goede verhuurmogelijkheden met mogelijkheden om dit (deels) via het park te laten lopen. Netto huuropbrengst van ca. € 6.600,- over de laatste 4 jaar;
+ Parkbijdrage en servicekosten circa € 3.200,00 per jaar;
+ Het chalet wordt verkocht inclusief inventaris.

Afmetingen
Inhoud woning 150 m³
Woonoppervlakte 40 m²

Bijzonderheden
Verwarming: CV ketel;
Warm Water: CV ketel;
Bouwjaar: 2015;
Aanvaarding: In overleg.

Koopovereenkomst:
Bij de verkoop zal er een standaard NVM koopovereenkomst worden gehanteerd. Bij woningen die ouder zijn dan 20 jaar, worden de volgende clausules opgenomen in de koopovereenkomst:
- Asbestclausule;
- Ouderdomsclausule.

Koopt u de woning zonder voorbehoud van financiering? Dan zullen wij een termijn hanteren van 14 dagen na het opstellen van de koopovereenkomst voor het storten van de bankgarantie/waarborgsom.

Deze informatie is door ons met de nodige zorgvuldigheid samengesteld. Onzerzijds wordt echter geen enkele aansprakelijkheid aanvaard voor enige onvolledigheid, onjuistheid of anderszins, dan wel de gevolgen daarvan. Alle opgegeven maten en oppervlakten zijn indicatief.
+ toon meer
deze woning is Verkocht

Hulckesteijn 3 21 Nijkerk

Hulckesteijn 3 21

3861 MZ, Nijkerk
Ditters open huis: 5 april 2025 10:00 - 12:00 uur
Landelijke Open Huizen Route NVM: 5 april 2025 11:00 uur - 15:00 uur
Vanaf€ 125.000 k.k.

Schakel een aankoopmakelaar in.

Snel handelen helpt je jouw droomhuis te bemachtigen. Zo vergroot je de kans dat je er op tijd bij bent.
Nijkerk
verkocht

Of maak vrijblijvend een zoekprofiel aan.

Vergelijkbare woningen

Hypotheken

Onafhankelijk hypotheekadvies

  • Ligt jouw droomhuis binnen handbereik?
  • Wil je jouw huidige hypotheek verhogen?
  • Is er hypotheekruimte voor verduurzaming?

Blijf op de hoogte

Ontvang als eerste updates over nieuw aanbod en mis geen enkele kans om jouw droomwoning te vinden.

Gratis waardebepaling of verkoopgesprek

Met de vrijblijvende waardecheck weet je snel waar je aan toe bent. Onze makelaars kijken naar de lokale markt en vergelijkbare woningen in jouw buurt om een goede schatting te geven.

Realiseer al jouw woondromen met Ditters

Wij zijn een team van gedreven vastgoedexperts met een passie voor het maken van verbindingen – tussen kopers en verkopers, huurders en verhuurders. Met een frisse kijk op de makelaardij combineren we expertise met creativiteit. Onze makelaars luisteren écht en nemen de tijd om jouw wensen te begrijpen.


Bij Ditters sta je er niet alleen voor. We denken met je mee, begeleiden je in elke stap en zijn altijd bereikbaar voor vragen. Neem gerust contact met ons op – we helpen je graag verder!