Omschrijving

Welkom in deze moderne en instapklare tussenwoning in het rustige en kindvriendelijke Malvert! Met een woonoppervlakte van maar liefst 118m², een recent vernieuwde badkamer (2021) en een moderne keuken, biedt dit huis alles wat je nodig hebt om direct comfortabel te wonen. Deze gezinswoning is fraai afgewerkt, voorzien van vloerverwarming op de begane grond, en heeft een ruime tuin op het zonnige zuidwesten die in 2025 volledig is vernieuwd. Hier hoef je alleen nog maar je meubels te plaatsen en het woongenot kan direct beginnen.

De woning beschikt over een brede woonkamer met veel lichtinval en openslaande deuren naar de fraai aangelegde tuin, ideaal voor ontspanning of gezellige borrels met vrienden en familie. De deels in 2024 vernieuwde keuken is modern en voorzien van alle gemakken. Bovendien zorgt de vloerverwarming op de begane grond voor extra comfort. Op de verdiepingen beschik je over maar liefst 4 slaapkamers, een moderne badkamer en een fijne opbergruimte. Dit huis combineert comfort, stijl en praktische indeling op perfecte wijze.

De Malvert 3024 ligt centraal gelegen in een kindvriendelijke buurt in Nijmegen. Voorzieningen zoals een kleinschalig winkelcentrum met supermarkt zijn op loopafstand, terwijl je voor uitgebreid winkelen terecht kunt in het nabijgelegen winkelcentrum Nijmegen Dukenburg of het gezellige historische stadscentrum. De buurt is ideaal voor gezinnen, met scholen, speeltuinen en sportfaciliteiten in de directe omgeving. Daarnaast biedt recreatiegebied Berendonck een perfecte plek om tot rust te komen in de natuur of te genieten van een actieve dag in de buitenlucht. Met uitstekende openbaar vervoersverbindingen en de nabijheid van uitvalswegen is de bereikbaarheid absoluut een pluspunt. Kom zelf de rust, ruimte en gemakken van deze fijne woning ervaren!

Kenmerken:
- Instapklare tussenwoning met 118m² woonoppervlakte
- Zonnige tuin op het zuidwesten (vernieuwd in 2025)
- Moderne badkamer met inloopdouche (vernieuwd in 2021)
- De beschikking over 3 slaapkamers met de mogelijkheid voor meer
- Gelegen in een kindvriendelijke wijk met alle gewenste voorzieningen op korte afstand

Begane grond:
Via de entree, met toilet, praktische trapkast en trapopgang, is de woonkamer te bereiken. De lichte woonkamer is voorzien van een houtlook vloer en een moderne deur naar de hal. Een stijlvolle uitstraling! Aan de achterzijde bevindt zich de open keuken, met aansluitend voldoende ruimte voor het plaatsen van een gezellige eettafel. De L-vormige keuken is grotendeels vernieuwd in 2024. De openslaande deuren maken de tuin op zonnige dagen een prachtig verlengstuk van de woning, perfect voor gezellige barbecue-avonden of ontspannen genieten van het buitenleven.

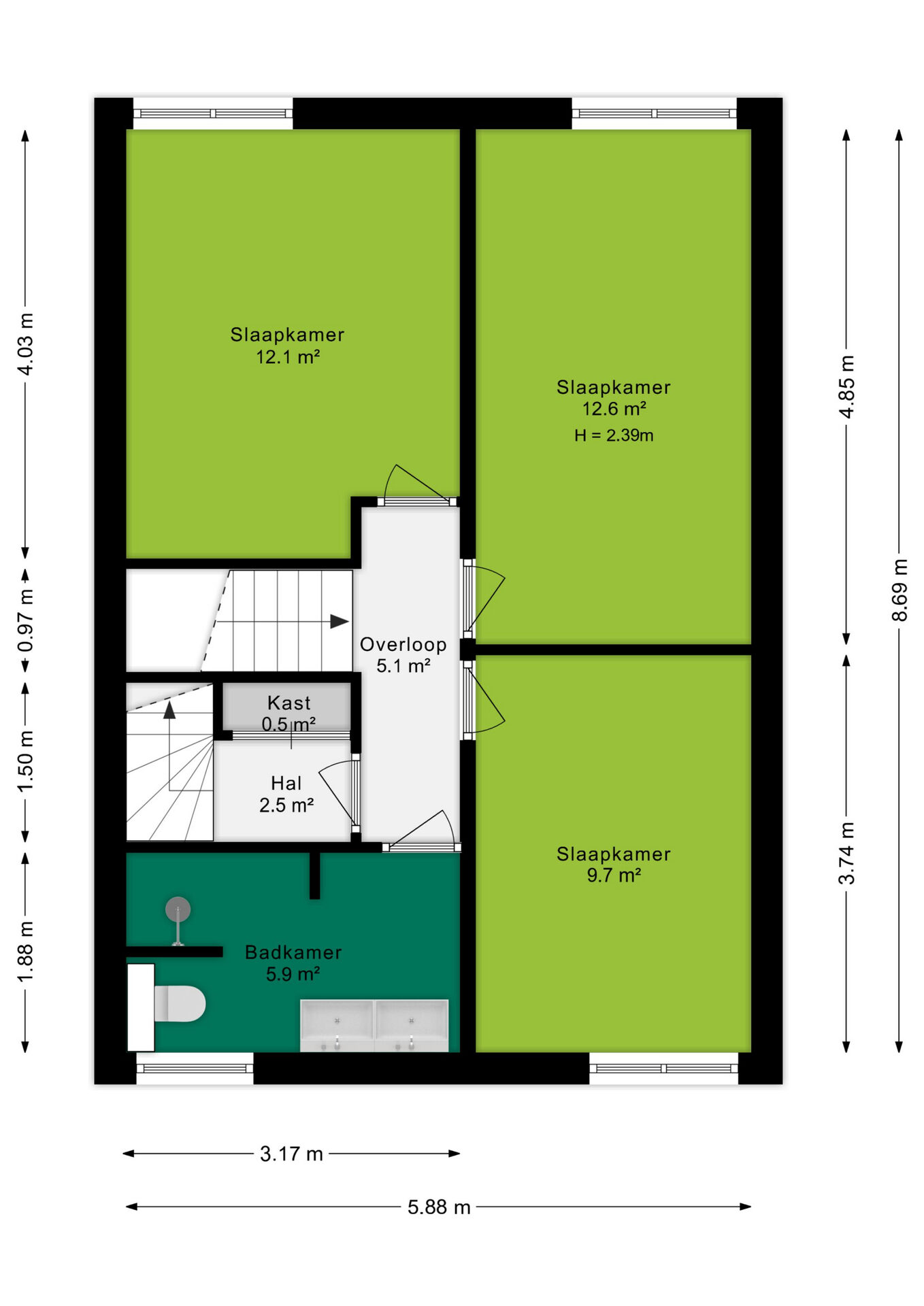
Eerste verdieping:
De overloop geeft toegang naar drie slaapkamers en de badkamer. De slaapkamers hebben een afmeting van ca. 13m², 12m² en 10m². De moderne badkamer is in 2021 vernieuwd en voorzien van een inloopdouche met zitje, wastafelmeubel, spiegel met verlichting en toilet. Extra prettig is het aanwezige raam, dat niet alleen zorgt voor natuurlijk daglicht, maar ook voor een goede ventilatiemogelijkheid.

Tweede verdieping:
De tweede verdieping is bereikbaar via een vaste trap en biedt op dit moment een praktische opbergruimte. Met de toevoeging van een dakraam of dakkapel kun je deze verdieping eenvoudig transformeren tot een extra (slaap)kamer. Denk bijvoorbeeld aan een werkruimte, sportruimte, hobbykamer of een gezellige logeerkamer – de mogelijkheden zijn eindeloos!

Tuin:
De achtertuin, gelegen op het zonnige zuidwesten, is in 2025 volledig vernieuwd en biedt alles wat je nodig hebt voor optimaal buitenleven. De tuin is sfeervol ingericht met een gazon, een border en genoeg ruimte voor een eettafel en een gezellige loungehoek om te ontspannen. Achterin de tuin vind je een praktische berging, een overkapping en een achterom. Perfect voor het opbergen van tuinkussens, gereedschap of het stallen van fietsen. Deze tuin is dé plek om te genieten van lange zomerse dagen en gezellige avonden!

Koop je de woning zonder voorbehoud van financiering? Dan zullen wij een termijn hanteren van 6 weken na het opstellen van de koopovereenkomst voor het storten van de bankgarantie/waarborgsom.

Koopovereenkomst:
Bij de verkoop zal er een standaard NVM koopovereenkomst worden gehanteerd. Bij woningen welke ouder zijn dan 20 jaar, worden de volgende clausules opgenomen in de koopovereenkomst:
- Asbestclausule
- Ouderdomsclausule

Koopt u de woning zonder voorbehoud van financiering? Dan zullen wij een termijn hanteren van 14 dagen na het opstellen van de koopovereenkomst voor het storten van de bankgarantie/waarborgsom.

Deze informatie is door ons met de nodige zorgvuldigheid samengesteld. Onzerzijds wordt echter geen enkele aansprakelijkheid aanvaard voor enige onvolledigheid, onjuistheid of anderszins, dan wel de gevolgen daarvan. Alle opgegeven maten en oppervlakten zijn indicatief.
+ toon meer
deze woning is Verkocht

Malvert 3034 Nijmegen

Malvert 3034

6538 BR, Nijmegen
Ditters open huis: 5 april 2025 10:00 - 12:00 uur
Landelijke Open Huizen Route NVM: 5 april 2025 11:00 uur - 15:00 uur
Vanaf€ 415.000 k.k.

Schakel een aankoopmakelaar in.

Snel handelen helpt je jouw droomhuis te bemachtigen. Zo vergroot je de kans dat je er op tijd bij bent.
Nijmegen
verkocht

Of maak vrijblijvend een zoekprofiel aan.

Vergelijkbare woningen

Hypotheken

Onafhankelijk hypotheekadvies

  • Ligt jouw droomhuis binnen handbereik?
  • Wil je jouw huidige hypotheek verhogen?
  • Is er hypotheekruimte voor verduurzaming?

Blijf op de hoogte

Ontvang als eerste updates over nieuw aanbod en mis geen enkele kans om jouw droomwoning te vinden.

Gratis waardebepaling of verkoopgesprek

Met de vrijblijvende waardecheck weet je snel waar je aan toe bent. Onze makelaars kijken naar de lokale markt en vergelijkbare woningen in jouw buurt om een goede schatting te geven.

Realiseer al jouw woondromen met Ditters

Wij zijn een team van gedreven vastgoedexperts met een passie voor het maken van verbindingen – tussen kopers en verkopers, huurders en verhuurders. Met een frisse kijk op de makelaardij combineren we expertise met creativiteit. Onze makelaars luisteren écht en nemen de tijd om jouw wensen te begrijpen.


Bij Ditters sta je er niet alleen voor. We denken met je mee, begeleiden je in elke stap en zijn altijd bereikbaar voor vragen. Neem gerust contact met ons op – we helpen je graag verder!