Gelegen in het prachtige kasteeldorp Renswoude mogen wij Van der Sevenderlaan 20 te koop aanbieden. Het betreft een goed onderhouden en volledig geïsoleerde tussenwoning uit 2001 en is o.a. voorzien van 3 slaapkamers, energielabel A, circa 118 m² woonoppervlakte en een gemetselde berging aan de voorzijde van de woning. De achtertuin is gelegen op het zuiden waardoor je tijdens de zonnige dagen heerlijk kan genieten van het buitenleven en de vele zonuren.
Omgeving:
Renswoude is gelegen midden in de Gelderse Vallei en in het zuidoosten van de provincie Utrecht. Aan de ene kant de beboste heuvels van de Utrechtse Heuvelrug en aan de andere kant de natuurrijke Veluwe. De ligging van het gezellige en pittoreske dorp Renswoude in de provincie Utrecht is fantastisch, te midden van een groot landelijk en agrarisch gebied, maar ook in de directe omgeving van vele voorzieningen.
In de direct omgeving zijn mooie wandel- en fietsroutes te vinden. Op loopafstand ligt het kasteel dat omringd is met een prachtige tuin. Ook de Grebbelinie is een prachtige wandel- of fietsroute.
In het centrum van Renswoude kun je terecht voor je dagelijkse boodschappen, de bibliotheek, (basis)scholen, sportaccommodaties en kerken. Middelbare scholen en grotere gemeenten met alle voorzieningen zijn op fietsafstand gelegen.
Door de centrale ligging van Renswoude zijn grote plaatsen als Veenendaal, Ede, Barneveld, Amersfoort en de rijkswegen A1, A12 en A30 prima bereikbaar. Ook het (intercity) treinstation Veenendaal-De Klomp ligt in de nabijheid. Naast de voorzieningen in de directe omgeving beschikt Renswoude zelf ook over een hoog voorzieningenniveau. Het dorpshart met winkels, horecagelegenheden en eerstelijnsgezondheidscentrum ligt op loopafstand van de woning, evenals basisschool "de Stifthorst".
Nieuwsgierig geworden? Plan dan snel een bezichtiging en we laten je graag de woning zien!
Belangrijkste kenmerken:
- Energielabel A
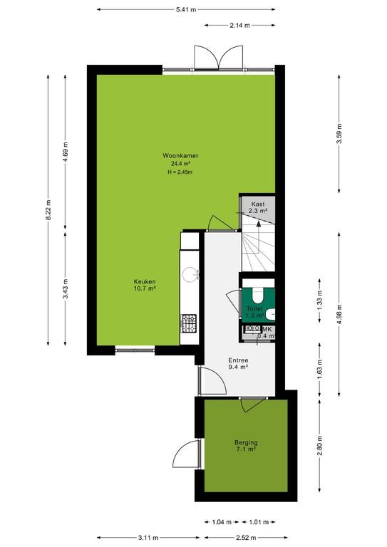
- Woonkamer van 5,41 m breed
- 3 slaapkamers, 4 is mogelijk
- Zonnige achtertuin op het zuiden
- Gezellige leef-/woonkeuken
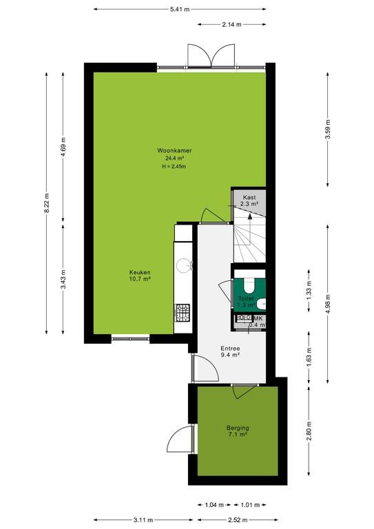
Indeling:
Begane grond:
Via een rustig en autoluw hofje bereik je de voorzijde van de woning. Wat direct opvalt is dat de woning aan de voorzijde is voorzien van een gemetselde berging van ruim 7 m². Vanuit de berging is het ook mogelijk om de hal/entree te bereiken. Naast het stallen van fietsen ook een ideale plek voor het uitdoen van vieze schoenen.
De verwarmde en betegelde entree/hal is lekker ruim en geeft toegang tot de meterkast met glasvezelinternet, garderoberuimte, de geheel betegelde toiletruimte met wandcloset en fontein, trapopgang naar de 1e verdieping en de woonkamer. De woonkamer beschikt over een massief houten vloer, provisieruimte (trapkast) en openslaande deuren naar de tuin. De keuken met een rechte opstelling beschikt over diverse inbouwapparatuur, te weten: een 4-pits gaskookplaat met afzuigkap, combi-oven en een koelkast. Doordat de woning 5,41 m breed is beschik je over meer dan voldoende ruimte om een grote eettafel met stoelen in de keuken te plaatsen. Hierdoor creëer je een gezellige leef-/woonkeuken. Mocht je een nieuwe keuken willen plaatsen, dan biedt de ruimte je veel mogelijkheden.
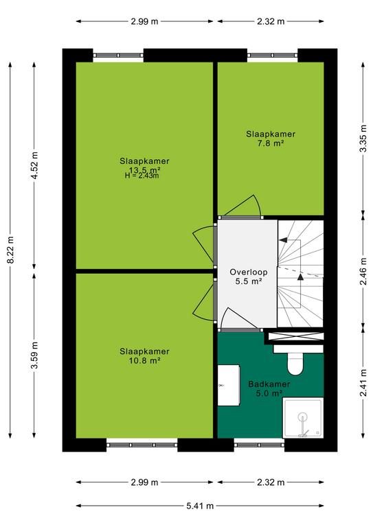
1e verdieping:
Via de ruime overloop bereik je de 3 slaapkamers en de badkamer. Ook op deze verdieping voel je dat de woning een stuk breder is dan veel andere tussenwoningen. Dat zie je vooral terug in de afmetingen van de slaapkamers, namelijk: 10,8 m², 13,5 m² en 7,8 m². Ook de badkamer is met bijna 8 m² van een zeer prettig formaat. Qua uitstraling is er gekozen voor rustige en neutrale wand- en vloertegens. Daarnaast is de badkamer uitgevoerd met een ruime inloopdouche, wastafelmeubel met enkele wastafel, een radiator, 2e toilet, mechanische ventilatie en een te openen raam voor de gewenste natuurlijke ventilatie.
2e verdieping:
Via een vaste houten trap bereik je de 2e verdieping, In de huidige situatie een grote en open ruimte c.q. 4e slaapkamer die geheel naar eigen smaken en wensen in te delen is. Denk hierbij aan het plaatsen van extra dakramen en/of dakkapellen voor het creëren van volwaardige slaapkamers.
Op deze verdieping bevinden zich ook de cv- en mechanische ventilatie en aansluitingen voor de wasmachine en droger.
Tuin:
Vanuit de woonkamer is via openslaande tuindeuren de achtertuin te bereiken. De achtertuin is met sierbestrating en enkele plantenbakken onderhoudsvriendelijk aangelegd en gelegen op het zuiden. De ideale zonligging als je wilt genieten van vele zonuren. Heb je toch een voorkeur voor een plekje in de schaduw? Dat is mogelijk onder het zonnescherm. Ook in de tuin ervaar je dat de woning breder is.
Kenmerken:
- Bouwjaar 2001;
- Woonoppervlak 118 m²;
- Perceeloppervlakte 118 m² eigen grond;
- Energielabel A;
- Verwarming en warm water middels Cv-ketel (2012);
- Rustig en autoluw hofje;
- Brede, ruime en zonnige tuin op het zuiden;
- Oplevering in overleg.
Koopovereenkomst:
Bij de verkoop zal er een standaard NVM koopovereenkomst worden gehanteerd.
Koopt u de woning zonder voorbehoud van financiering? Dan zullen wij een termijn hanteren van 14 dagen na het opstellen van de koopovereenkomst voor het storten van de bankgarantie/waarborgsom.
Deze informatie is door ons met de nodige zorgvuldigheid samengesteld. Onzerzijds wordt echter geen enkele aansprakelijkheid aanvaard voor enige onvolledigheid, onjuistheid of anderszins, dan wel de gevolgen daarvan. Alle opgegeven maten en oppervlakten zijn indicatief.