Aanbod

Verken ons aanbod. Van huur tot koop. En van nieuwbouw tot bouwkavel. Samen vinden we de plek waar jij je helemaal thuis voelt.

Diensten

Onze experts begeleiden je van A tot Z. Of je nu je huis wilt verkopen, op zoek bent naar je droomhuis of advies nodig hebt over hypotheken of verzekeringen. Met jarenlange ervaring en persoonlijke service zorgen we ervoor dat jij met een gerust hart de juiste keuzes maakt.

Over Ditters

Wij zijn Ditters. Verhalenvertellers. De schakel tussen droom en woning. We luisteren naar jouw wensen en maken op basis daarvan een plan.

Omschrijving

Zwarteweg 19 te Rhenen: Een verrassend ruime en moderne woning!

Stap binnen in dit unieke en instapklare woonhuis, gelegen in een gewilde woonomgeving nabij de Rijn. Dankzij de speelse split-level indeling biedt deze woning een originele en dynamische woonervaring, met prachtige lichtinval en een uitstekend onderhouden interieur. De royale woonkeuken valt direct op door de hoge plafonds en grote openslaande deuren, die toegang bieden tot de zonnige tuin op het zuidoosten. Een extra pluspunt is de praktische kelder, bereikbaar via stijlvolle houten deurtjes vanuit de keuken – ideaal als speelkamer voor de kinderen of voor extra opslagruimte.

De woning beschikt over een fijne indeling: op de eerste verdieping vind je de gezellige en royale woonkamer en een extra slaap- of werkkamer. De tweede verdieping biedt twee fijne slaapkamers en een moderne badkamer. Deze perfect gelegen woning combineert het beste van twee werelden: een woonhuis met zowel het bruisende stadscentrum, het prachtige natuurgebied en het NS-station op loopafstand.

Benieuwd naar deze bijzondere woning? Maak vandaag nog een afspraak en ontdek zelf de sfeer, ruimte en ligging die deze woning te bieden heeft!

Indeling van de woning:
Begane grond:
Bij binnenkomst in de hal valt meteen de speelse opzet van deze woning op. Hier vind je de meterkast, trapopgang, een modern toilet en toegang tot de ruime inpandige berging of bijkeuken. Deze ruimte, voorzien van een eigen toegangsdeur aan de voorzijde, biedt o.a. plaats voor een wasmachine, droger en andere benodigdheden zoals bijvoorbeeld je fietsen of motor. Vanuit de hal loop je door naar de lager gelegen, sfeervolle en royale woonkeuken. Dankzij de hoge plafonds en grote raampartijen baadt de ruimte in het licht. De openslaande deuren brengen je naar het zonnige terras, perfect voor een ontbijt of borrel in de frisse buitenlucht. De goed uitgeruste keuken beschikt over een vrijstaande koelkast, vaatwasser, 5-pits gasfornuis met wokbrander, oven, afzuigkap en close-in boiler. Via twee houten paneeldeuren kom je in de praktische kelder – deze is ruim, stahoog en multifunctioneel te gebruiken.

Eerste verdieping:
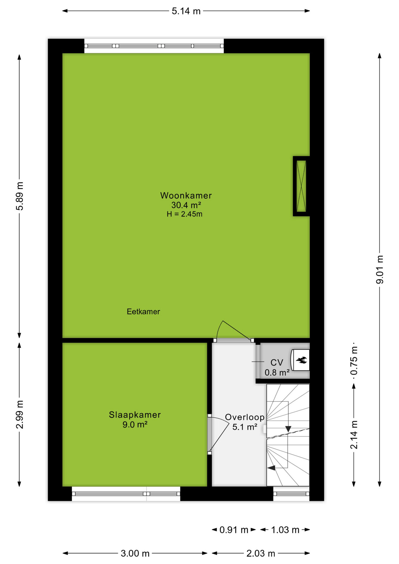
Via de vaste trap kom je op de eerste verdieping. Op deze verdieping bevindt zich een lichte, ruime woonkamer met een mooi uitzicht op de achtertuin. Verder beschikt de woonkamer over een mooie houten vloer en een cinema Wall met daaronder een sierhaard. Daarnaast is er aan de voorzijde een slaap- of werkkamer aanwezig van circa 9 m², ideaal voor flexibel gebruik. De cv-installatie heeft hier ook een aparte ruimte.

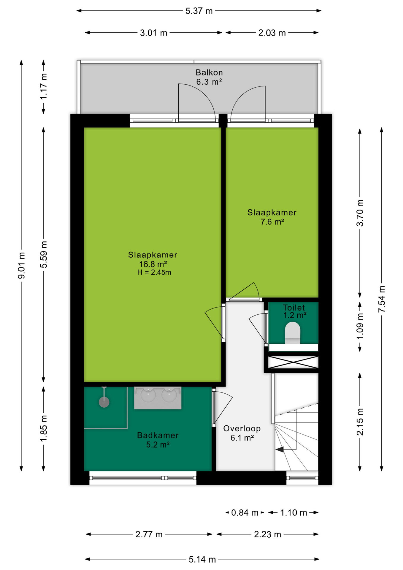
Tweede verdieping:
Door middel van de vaste trap kom je bij de volgende verdieping. De overloop leidt naar een modern separaat toilet en een stijlvolle badkamer. De badkamer is uitgerust met een inloopdouche, wastafelmeubel met dubbele wastafel (design)radiator en vloerverwarming. Verder vind je op deze verdieping twee comfortabele slaapkamers van circa 16,8 m² en 7,6 m², beide gelegen aan de achterzijde en beide met toegang tot een balkon.

Buitenruimte:
De zonnige achtertuin is ideaal gelegen op het zuidoosten en heeft een afsluitbare achterom. Geniet hier van de rust en privacy, met het gemak van een korte wandeling naar de omliggende natuur en voorzieningen. Zet de tuindeuren open en betrek binnen bij buiten. De plek voor een gezellige BBQ met vrienden en/of familie!

Bijzonderheden:
- Een ruime en speelse tussenwoning met circa 131 m² woonoppervlakte;
- Inpandige berging/bijkeuken met eigen toegang aan de voorzijde;
- Parkeren voor de deur op een privéterrein voor bewoners;
- Centrale ligging: op loopafstand van het centrum, het bos, de Rijn en het NS-station.

Kenmerken:
- Bouwjaar: 1998
- Perceeloppervlakte: 115 m²
- Inhoud: ca. 503 m³
- Woonoppervlakte: ca. 130 m²
- Energielabel B
- Verwarming en warm water middels CV-combiketel
- Tuinligging: zuidoosten
- Staat van onderhoud: uitstekend

Koopovereenkomst:
Bij de verkoop zal er een standaard NVM koopovereenkomst worden gehanteerd. Bij
woningen welke ouder zijn dan 20 jaar, worden de volgende clausules opgenomen in de koopovereenkomst:
- Asbestclausule
- Ouderdomsclausule

Koopt u de woning zonder voorbehoud van financiering? Dan zullen wij een termijn hanteren van 6 weken na het opstellen van de koopovereenkomst voor het storten van de bankgarantie/waarborgsom.

Deze informatie is door ons met de nodige zorgvuldigheid samengesteld. Onzerzijds wordt echter geen enkele aansprakelijkheid aanvaard voor enige onvolledigheid, onjuistheid of anderszins, dan wel de gevolgen daarvan. Alle opgegeven maten en oppervlakten zijn indicatief.
+ toon meer
3911 AP, Rhenen

Zwarteweg 19

Zaterdag 2 augustus 10:00 - 12:00 uur

€ 450.000 k.k.
ditters makelaars veenendaal
Kopen
Financiële mogelijkheden

Waardecheck

Onze makelaars kijken naar de lokale markt en vergelijkbare woningen in jouw buurt om een goede schatting te geven.
Onze makelaars kijken naar de lokale markt en vergelijkbare woningen in jouw buurt om een goede schatting te geven.
Goed om te weten: deze waardecheck is vrijblijvend en geheel kosteloos
Onafhankelijk

Hypotheekadvies

We helpen je met het vergelijken van aanbiedingen van verschillende banken, zodat je de beste deal krijgt. 
Wij staan klaar om je te begeleiden, zodat je met vertrouwen de juiste hypotheek kunt kiezen.
Goed om te weten: dit adviesgesprek is vrijblijvend en geheel kosteloos

Wij helpen jou bij de keuze van de juiste polis.

Bij een onbezorgde toekomst horen ook goede verzekeringen die uitkeren bij bijvoorbeeld ziekte, schade of diefstal. Onze assurantieadviseurs helpen je bij de keuze van de juiste polis. In heldere taal.

Diverse verzekeringen

  • Opstalverzekering
  • Aansprakelijkheidsverzekering
  • Zorgverzekering
  • Reisverzekering

Buurtinformatie

Rhenen, Grebbekwartier Zuid
Inwoners
Woningen
227
Inwoners
625
7
93
Koop / Huur
7% Huur93% Koop
Huishoudens
Eenpersoon
18.8%
Geen kinderen
39.6%
Met kinderen
41.7%
Leeftijdsopbouw in jaren
Buurt Landelijk
18.410.423.228.821.616.312.324.728.218.5

Locatie

Belangrijke documenten

Lijst van zaken

Overzicht van de zaken die achterblijven of worden meegenomen door de huidige bewoners.

Vragenlijst

Hier deelt de verkoper belangrijke informatie over de staat en bijzonderheden van de woning.

Brochure

Bekijk hier alle details van de woning, compleet met foto's en beschrijvingen.

Vragenlijst c

Hier deelt de verkoper belangrijke informatie over de staat en bijzonderheden van de woning.

Misschien interessant voor jou

Blijf op de hoogte

Ontvang als eerste updates over nieuw aanbod en mis geen enkele kans om jouw droomwoning te vinden.

Gratis waardebepaling of verkoopgesprek

Met de vrijblijvende waardecheck weet je snel waar je aan toe bent. Onze makelaars kijken naar de lokale markt en vergelijkbare woningen in jouw buurt om een goede schatting te geven.