Aanbod

Verken ons aanbod. Van huur tot koop. En van nieuwbouw tot bouwkavel. Samen vinden we de plek waar jij je helemaal thuis voelt.

Diensten

Onze experts begeleiden je van A tot Z. Of je nu je huis wilt verkopen, op zoek bent naar je droomhuis of advies nodig hebt over hypotheken of verzekeringen. Met jarenlange ervaring en persoonlijke service zorgen we ervoor dat jij met een gerust hart de juiste keuzes maakt.

Over Ditters

Wij zijn Ditters. Verhalenvertellers. De schakel tussen droom en woning. We luisteren naar jouw wensen en maken op basis daarvan een plan.

Omschrijving

Unieke kans op een zeer energiezuinige en ruime woning, nagenoeg nieuw gebouwd in het hartje centrum van Soesterberg! De woning is midden in het centrum maar toch rustig gelegen. Met een woonoppervlakte van maar liefst 242 m² en vijf slaapkamers zeer uniek te noemen.

Soesterberg is een dorp dat gelegen is tussen de grote steden Amersfoort en Utrecht in. Het maakt deel uit van de gemeente Soest en heeft ca. 8.000 inwoners. Soesterberg is bekend om zijn vliegbasis, gelegen ten noorden van het dorp. De centrale ligging maakt Soesterberg uniek om te wonen in het groen maar toch zeer centraal gelegen. Zo is de op- en afrit van de A28 snel te bereiken (5 minuten) maar kun je ook via de N237 naar Utrecht (15 minuten), Amersfoort (13 minuten) en Zeist (9 minuten).

Het openbaar vervoer is ook om de hoek. Zo bereik je met een busverbinding Amersfoort Centraal of Utrecht. Vanuit hier is het mogelijk om verder te reizen met bijvoorbeeld de trein.

De woning i worden voorzien van onder andere:
+ Lucht-water warmtepomp;
+ Begane grond, eerste verdieping zijn voorzien van vloerverwarming;
+ Maar liefst vijf slaapkamers waarvan twee gelegen in het souterrain;
+ Uitbouw begane grond met woonkeuken;
+ De gehele kap is geïsoleerd met een Rc waarde van 6.3;
+ Alle wanden zijn gestuct en worden behangklaar opgeleverd;
+ Zeer uniek trappenhuis met doorkijk naar de bovenste verdieping;
+ 2 parkeerplaatsen op eigen terrein;
+ Berging in de achtertuin;
+ Inclusief compleet sanitair.

Overige bijzonderheden
+ Energielabel A;
+ Exclusief keuken;
+ Achter de woning wordt nieuwbouw gerealiseerd, hier komt een begane grond met winkelvoorzieningen met daarboven appartementen. Tekeningen zijn in te zien via de makelaar;
+ Het perceel wordt kadastraal nog definitief gesplitst door verkoper, de gegeven perceelmaten zijn circa maten;
+ Er is een recht van overpad waardoor de tuin achterom bereikbaar is.

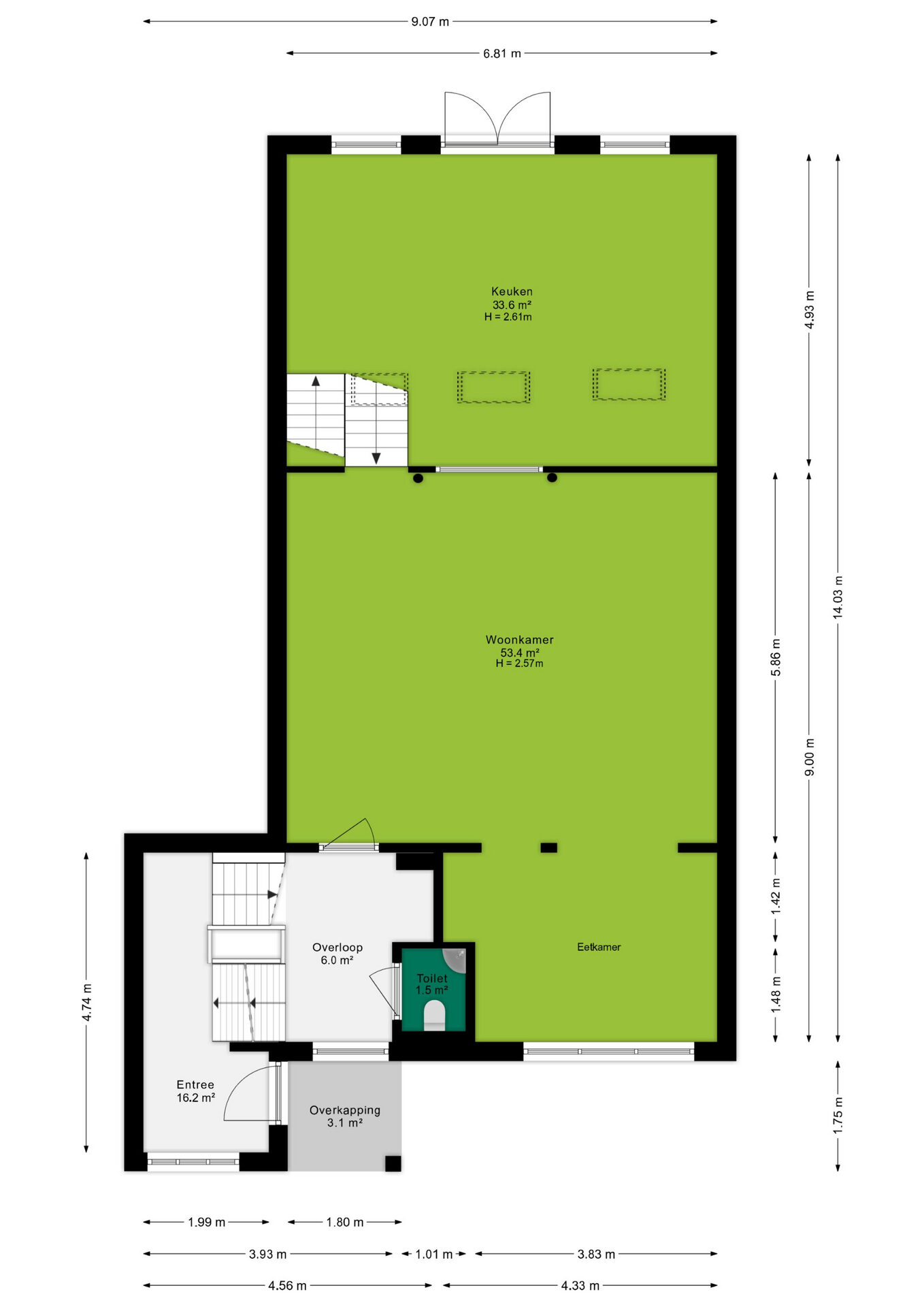
De indeling van de woning is als volgt:
De aangebouwde overkapping zorgt voor een luxe uitstraling van de entree. Met houten elementen is het fraai binnenkomen. Bij binnenkomst heb je vanuit de hal toegang tot een trap naar het souterrain (1.20 meter onder peil) en de begane grond (1.20 boven peil). Een speelse en daarmee unieke entree van de woning. De draaiende trap maakt het geheel af en geeft een uniek beleving.

Begane grond
Een ruime overloop met toegang tot het toilet, de trapopgang naar de eerste verdieping en de woonkamer. Een ruime garderobe voor de jassen is aanwezig. De ruime woonkamer is georiënteerd op de zuidzijde en zeer ruim met een grootte van ca. 55 m². De woonkamer heeft een splitlevel dat je brengt naar de grote keuken waar de aansluitpunten voor de keuken reeds gerealiseerd zijn. Tussen de woonkamer en de keuken zijn drie dakramen gezet wat een prettige beleving van licht geeft in de ruimte. De grote achterpui draagt hier eveneens aan bij en de openslaande deuren geven toegang tot de tuin.

Eerste verdieping
Via het trappenhuis bereik je de ruime overloop met toegang tot twee slaapkamers, de badkamer en het separate toilet. De badkamer is uitgerust met een douchehoek, ligbad en dubbele wastafel. Separaat van de badkamer is er een tweede toilet dat te bereiken is via de overloop.

Tweede verdieping
Op deze verdieping is verder de vierde slaapkamer aanwezig. Deze kamer is voorzien dakramen op de zuidzijde.

Souterrain
Het souterrain is te bereiken via een trap bij de entree. Het souterrain bevindt zich op 1.20 meter onder peil. Een grote ruime berging en twee slaapkamers. De ruimtes zijn bijvoorbeeld te gebruiken als slaapkamers, speelkamer voor de kinderen of een thuiswerkplek.

Tuin
Bereikbaar via de keuken loop je zo de zonnige tuin in. Een heerlijke achtertuin met berging en achterom. De tuin wordt in de huidige staat opgeleverd. De voorzijde beschikt over een voortuin met de gelegenheid tot het parkeren van een auto op eigen terrein.

Wens je meer informatie over deze woning, neem dan vrijblijvend contact op met ons en wij helpen je graag verder. Ook voor een gratis financieel advies gesprek kun je contact met ons opnemen.

De informatie is nauwkeurig en met zorg samengesteld aan de hand van gegevens en tekeningen, welke onder andere zijn verstrek door de architect en de adviseurs van dit plan alsmede gemeentelijke instanties. Ondanks het bovenstaande moeten we een voorbehoud maken ten aanzien van wijzigingen voortvloeiende uit de eisen van de overheid en/of nutsbedrijven. De ontwikkelaar is gerechtigd tijdens de ontwikkeling en (af)bouw die wijzigingen in het plan aan te brengen, waarvan noodzakelijkheid bij de uitvoering blijkt mits deze wijzigingen geen afbreuk doen aan de kwaliteit van de woning. Deze wijzigingen geven geen recht tot het vragen van verrekening van mindere of meerdere kosten.
+ toon meer
3769 CC, Soesterberg

Bakkeneslaan 5

Zaterdag 2 augustus 10:00 - 12:00 uur

€ 950.000 k.k.
ditters makelaars amersfoort
Kopen
Financiële mogelijkheden

Waardecheck

Onze makelaars kijken naar de lokale markt en vergelijkbare woningen in jouw buurt om een goede schatting te geven.
Onze makelaars kijken naar de lokale markt en vergelijkbare woningen in jouw buurt om een goede schatting te geven.
Goed om te weten: deze waardecheck is vrijblijvend en geheel kosteloos
Onafhankelijk

Hypotheekadvies

We helpen je met het vergelijken van aanbiedingen van verschillende banken, zodat je de beste deal krijgt. 
Wij staan klaar om je te begeleiden, zodat je met vertrouwen de juiste hypotheek kunt kiezen.
Goed om te weten: dit adviesgesprek is vrijblijvend en geheel kosteloos

Wij helpen jou bij de keuze van de juiste polis.

Bij een onbezorgde toekomst horen ook goede verzekeringen die uitkeren bij bijvoorbeeld ziekte, schade of diefstal. Onze assurantieadviseurs helpen je bij de keuze van de juiste polis. In heldere taal.

Diverse verzekeringen

  • Opstalverzekering
  • Aansprakelijkheidsverzekering
  • Zorgverzekering
  • Reisverzekering

Buurtinformatie

Soesterberg, Soesterberg Kom
Inwoners
Woningen
1.741
Inwoners
3.590
52
47
Koop / Huur
52% Huur47% Koop
Huishoudens
Eenpersoon
38.2%
Geen kinderen
28.8%
Met kinderen
32.6%
Leeftijdsopbouw in jaren
Buurt Landelijk
16.611.125.228.119.216.312.324.728.218.5

Locatie

Belangrijke documenten

Brochure

Bekijk hier alle details van de woning, compleet met foto's en beschrijvingen.

Misschien interessant voor jou

Blijf op de hoogte

Ontvang als eerste updates over nieuw aanbod en mis geen enkele kans om jouw droomwoning te vinden.

Gratis waardebepaling of verkoopgesprek

Met de vrijblijvende waardecheck weet je snel waar je aan toe bent. Onze makelaars kijken naar de lokale markt en vergelijkbare woningen in jouw buurt om een goede schatting te geven.