Aanbod

Verken ons aanbod. Van huur tot koop. En van nieuwbouw tot bouwkavel. Samen vinden we de plek waar jij je helemaal thuis voelt.

Diensten

Onze experts begeleiden je van A tot Z. Of je nu je huis wilt verkopen, op zoek bent naar je droomhuis of advies nodig hebt over hypotheken of verzekeringen. Met jarenlange ervaring en persoonlijke service zorgen we ervoor dat jij met een gerust hart de juiste keuzes maakt.

Over Ditters

Wij zijn Ditters. Verhalenvertellers. De schakel tussen droom en woning. We luisteren naar jouw wensen en maken op basis daarvan een plan.

Omschrijving

Instapklare en unieke twee-onder-een-kapwoning met luxe uitstraling in Veenendaal!
Woning met het echte ‘WOW’ effect.

Op zoek naar een instapklare, uitgebouwde woning met garage en een oprit? Laat je verrassen door deze prachtig gerenoveerde en tot in de puntjes afgewerkte twee-onder-een-kapwoning! Gelegen op een rustige en geliefde locatie in de woonwijk ’t Hoorntje, biedt deze woning alles wat je zoekt: een heerlijke leefruimte, modern comfort én een zonnige achtertuin op het zuiden.

Wat maakt deze woning bijzonder?
De afgelopen vier jaar is deze woning op vrijwel álle belangrijke punten gerenoveerd en gemoderniseerd. Zo is er aan de achterzijde een praktische uitbouw gerealiseerd en is er in 2024 een dakopbouw met kunststof kozijnen geplaatst, inclusief twee royale dakkapellen. Daarmee biedt de woning uitzonderlijk veel ruimte, gebruiksgemak en comfort. Dit huis is écht instapklaar en helemaal van deze tijd!

Daarnaast ligt de woning zeer centraal: vlakbij winkels (zoals supermarkt Jumbo Huibers), scholen, sportaccommodaties en het bruisende centrum van Veenendaal. Ook wandelen of fietsen in de prachtige natuur van de Utrechtse Heuvelrug is slechts een kwestie van minuten. Overige voorzieningen, zoals bibliotheek De Cultuurfabriek, theater De Lampegiet en winkelcentrum De Ellekoot, bevinden zich eveneens op korte afstand. Dankzij de nabijgelegen Rondweg-West heb je bovendien snelle toegang tot uitvalswegen als de A12, A30 en A15. Het toekomstige ’t Vennehof, een nieuwe kleinschalige woonwijk grenzend aan ‘t Hoorntje, is een mooie extra in de omgeving.

Bijzonderheden op een rij
- Royale uitbouw aan de achterzijde met fraaie lichtstraat;
- De begane grond is volledig uitgerust met vloerverwarming;
- Keuken en badkamer vernieuwd in 2021;
- Dakopbouw met twee kunststof dakkapellen gerealiseerd in 2024;
- Alle wanden en plafonds in de woning zijn strak gestuukt;
- Elektrische installatie en meterkast geheel vervangen;
- Garage met handige kelderruimte (6 m²).

Indeling van de woning
Begane grond
Via de ruime entree bereik je de hal met modern toilet (voorzien van een fonteintje), een trapopgang mét trapkast en de vernieuwde meterkast. Vanuit de hal loop je door naar de royale woonkamer met een elegant zitgedeelte aan de voorzijde. De open woonkeuken vormt het hart van de woning dankzij een fraaie uitbouw met lichtstraat, die zorgt voor een prachtige lichtinval. De keuken is luxe afgewerkt en voorzien van een modern kookeiland, een inductiekookplaat met geïntegreerde afzuiging en een apparatenwand met veel opbergruimte. Vanuit de keuken bieden dubbele openslaande deuren toegang tot de zonnige achtertuin.

Eerste verdieping
De eerste verdieping is praktisch én stijlvol! Hier tref je een ruime overloop, twee slaapkamers van verschillende afmetingen (waarvan één met een vaste kast met schuifdeuren en toegang tot het balkon aan de voorzijde), een moderne badkamer en een handige inloopkast. De badkamer is van alle gemakken voorzien: een inloopdouche met glazen wand, een dubbel badkamermeubel, een tweede toilet en een designradiator.

Tweede verdieping
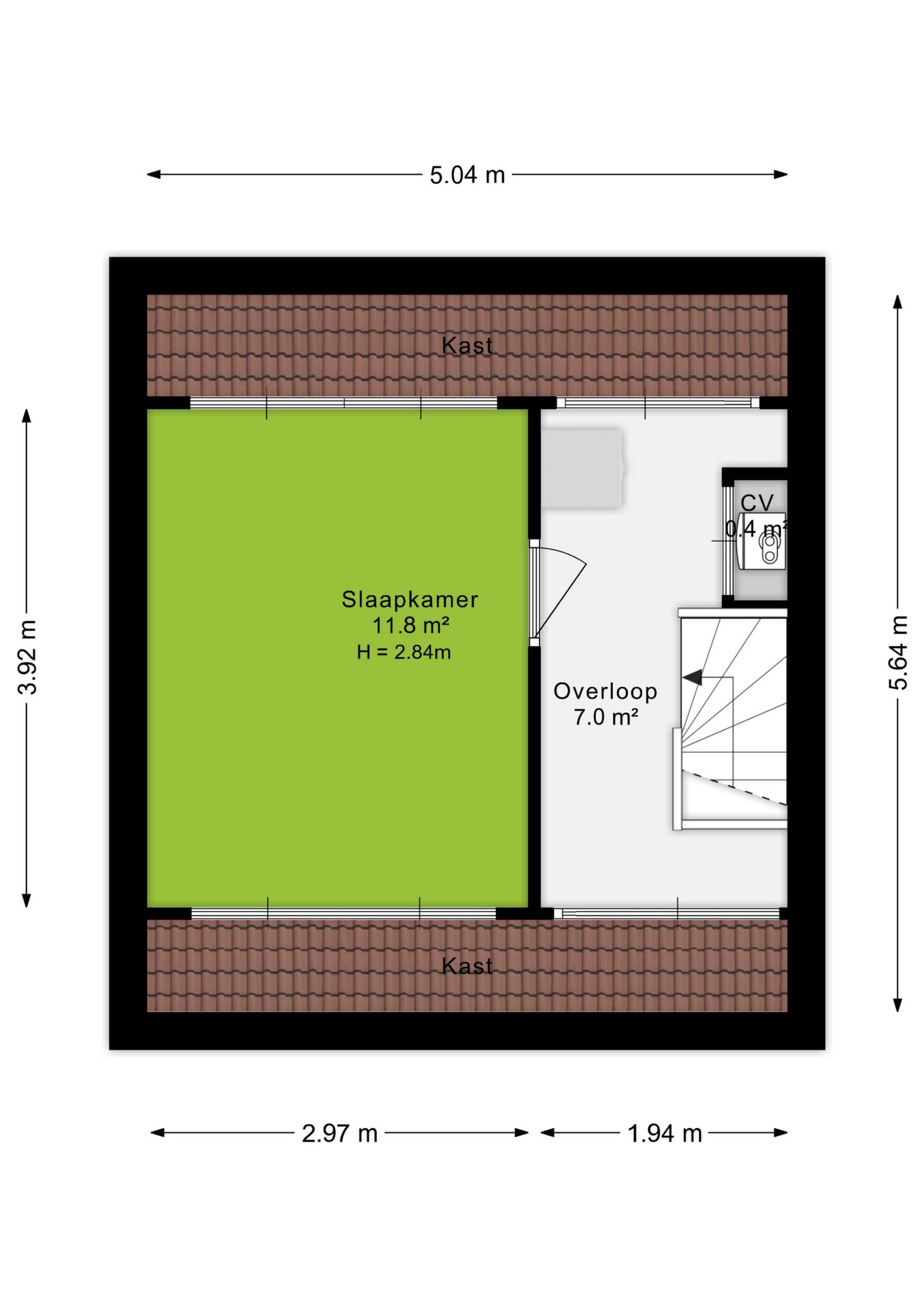
Niet alleen de begane grond en eerste verdieping zijn indrukwekkend, ook de tweede verdieping biedt veel ruimte! Op de voorzolder vind je extra bergruimte achter de knieschotten, een vaste kast met de c.v.-opstelling en de witgoedaansluiting. Dankzij de dakopbouw met twee dakkapellen is er bovendien een royale vierde slaapkamer ontstaan, met ook hier volop bergruimte achter de knieschotten.

Afmetingen
Woonkamer en keuken ca. 43.2 m²
Slaapkamer 1 ca. 11.6 ²
Slaapkamer 2 ca. 6.4 m²
Badkamer ca. 4.3 m²
Wasruimte ca. 2.4 m²
Slaapkamer 3 ca. 11.8 m²
Garage ca. 15.1 m²

Woonoppervlakte 103 m²
Perceel grootte 190 m²
Verwarming: Remeha Tzerra HR combiketel (2021)
Warm water: Remeha Tzerra HR combiketel (2021)
Bouwjaar: 1960+Isolatie: Dak, muur en vloerisolatie, dubbel glas
Aanvaarding: In overleg

Tuin en omgeving
De zonnige achtertuin is gelegen op het zuidoosten en biedt volop ruimte voor ontspanning, spelen of een gezellige barbecue met vrienden en familie. De achtertuin is zowel via de woning als via de garage bereikbaar. Ook parkeren is hier geen probleem: naast een ruime oprit zijn er in de directe omgeving voldoende openbare parkeerplaatsen aanwezig.

Wat betreft de ligging: deze woning ligt op korte afstand van vrijwel álle voorzieningen in Veenendaal. Denk aan winkels, openbaar vervoer en uitvalswegen. Rust en privacy combineren met een centrale locatie? Deze woning maakt het mogelijk.

Klaar om te verhuizen?
Deze ruime, uitgebouwde en compleet gemoderniseerde woning biedt je direct dat gevoel van thuiskomen. Niets meer aan doen, alleen je verhuisdozen uitpakken. Zien we je binnenkort tijdens een bezichtiging? Neem snel contact op met Ditters Makelaars Veenendaal – wij leiden je graag rond in deze parel van een woning!
+ toon meer
deze woning is Verkocht

Anjerstraat 6 Veenendaal

Anjerstraat 6

3905 ZB, Veenendaal
Ditters open huis: 5 april 2025 10:00 - 12:00 uur
Landelijke Open Huizen Route NVM: 5 april 2025 11:00 uur - 15:00 uur
Vanaf€ 495.000 k.k.

Schakel een aankoopmakelaar in.

Snel handelen helpt je jouw droomhuis te bemachtigen. Zo vergroot je de kans dat je er op tijd bij bent.
Veenendaal
verkocht

Of maak vrijblijvend een zoekprofiel aan.

Vergelijkbare woningen

Hypotheken

Onafhankelijk hypotheekadvies

  • Ligt jouw droomhuis binnen handbereik?
  • Wil je jouw huidige hypotheek verhogen?
  • Is er hypotheekruimte voor verduurzaming?

Blijf op de hoogte

Ontvang als eerste updates over nieuw aanbod en mis geen enkele kans om jouw droomwoning te vinden.

Gratis waardebepaling of verkoopgesprek

Met de vrijblijvende waardecheck weet je snel waar je aan toe bent. Onze makelaars kijken naar de lokale markt en vergelijkbare woningen in jouw buurt om een goede schatting te geven.

Realiseer al jouw woondromen met Ditters

Wij zijn een team van gedreven vastgoedexperts met een passie voor het maken van verbindingen – tussen kopers en verkopers, huurders en verhuurders. Met een frisse kijk op de makelaardij combineren we expertise met creativiteit. Onze makelaars luisteren écht en nemen de tijd om jouw wensen te begrijpen.


Bij Ditters sta je er niet alleen voor. We denken met je mee, begeleiden je in elke stap en zijn altijd bereikbaar voor vragen. Neem gerust contact met ons op – we helpen je graag verder!