Omschrijving

Deze twee-onder-een-kapwoning, gelegen aan de Bergweg 58 in Veenendaal, biedt een ruime woonkamer met open haard, een moderne, uitgebouwde keuken, maar liefst vijf slaapkamers, een nette badkamer en een royale tuin op het zuidoosten. Bovendien beschikt de woning over twee opritten en een garage.

Op fietsafstand vind je Doctor Slotermaker de Bruineplein, waar je terecht kunt voor al je dagelijkse benodigdheden. Ook het centrum van Veenendaal, met diverse supermarkten, restaurants en kledingwinkels, is binnen handbereik. Voor natuurliefhebbers ligt het Landgoed Prattenburg op loopafstand, ideaal voor ontspannende wandelingen in de natuur.

Begane grond:
Via de entree, waar ook een toilet en trapopgang te vinden zijn, kom je in de lichte en uitnodigende woonkamer van 48,2 m². Dankzij het vele daglicht heb je hier ruimte voor een grote zitbank en gezellige zithoekjes. De open haard zorgt op koude winterdagen voor een warme en sfeervolle ambiance. Aan de achterzijde van de woning vind je het eetgedeelte, waarna je de in 2017 aangebouwde keuken bereikt. Deze moderne keuken is uitgevoerd met witte kastjes, een antracietgrijs werkblad en diverse inbouwapparatuur – zoals een kookplaat, afzuigkap, oven, koel-vriescombinatie en vaatwasser – en is tevens voorzien van vloerverwarming. Vanuit de keuken krijg je toegang tot een kelder van 12,6 m², ideaal om je spullen op te bergen.

1e Verdieping:
Via de vaste trap bereik je de overloop, die toegang geeft tot alle ruimtes op deze verdieping. Je hebt hier drie slaapkamers, met afmetingen van 16,5 m², 12,1 m² en 8,5 m². In de grootste slaapkamer zit een inbouwkast, en in alle kamers zorgen grote raampartijen voor een fijne lichtinval. De badkamer van 6,4 m² is afgewerkt met witte en antracietgrijze tegels en is voorzien van een ligbad, een douche, een wastafelmeubel en een toilet – en ook hier geniet je van vloerverwarming. In de aangrenzende ruimte van 7,2 m² vind je de aansluitingen voor wasmachine en droger, met daarnaast voldoende opbergruimte.

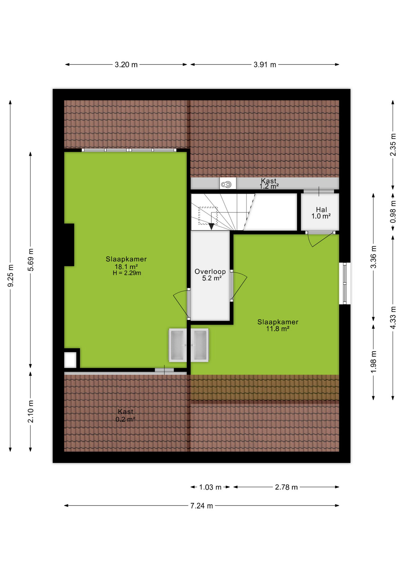
2e Verdieping:
Op de overloop kom je bij twee slaapkamers van 18,1 m² en 11,8 m². Beide kamers zijn voorzien van ruim voldoende daglicht waarvan de grootste kamer door het aanwezige dakkapel, en ze hebben elk een wastafelmeubel.

Tuin:
De riante tuin, gelegen op het zuidoosten, is via de zijingang bereikbaar en biedt je volop ruimte voor diverse zithoekjes en een speelhoek voor de kinderen. Daarnaast is er een overkapping van 15,5 m², perfect voor de mindere dagen. Tot slot beschikt de woning over een garage van 27,8 m² en een berging van 5,6 m², zodat je al je spullen netjes kunt opbergen. Parkeren is mogelijk op eigen terrein aan zowel de voorzijde van de woning als aan de achterzijde van de woning.

Kenmerken:
- Bouwjaar 1949;
- Woonoppervlakte 178 m²;
- Vijf slaapkamers;
- Energielabel B;
- Perceel grootte 485 m²;
- Woning is voorzien van een airco en screens;
- Luxe en moderne keuken en badkamer;
- Tuinligging op het zuidoosten;
- Voorzien van 18 zonnepanelen á 280 Wp;
- Vloerverwarming in de keuken en badkamer;
- Verwarming en warm water middels Nefit (2024).

Koopovereenkomst:
Bij de verkoop zal er een standaard NVM koopovereenkomst worden gehanteerd. Bij woningen welke ouder zijn dan 20 jaar, worden de volgende clausules opgenomen in de koopovereenkomst:
- Asbestclausule;
- Ouderdomsclausule.

Koop je de woning zonder voorbehoud van financiering? Dan zullen wij een termijn hanteren van 6 weken na het opstellen van de koopovereenkomst voor het storten van de bankgarantie/waarborgsom.

Deze informatie is door ons met de nodige zorgvuldigheid samengesteld. Onzerzijds wordt echter geen enkele aansprakelijkheid aanvaard voor enige onvolledigheid, onjuistheid of anderszins, dan wel de gevolgen daarvan. Alle opgegeven maten en oppervlakten zijn indicatief.
+ toon meer
3904 HP, Veenendaal

Bergweg 58

Zaterdag 2 augustus 10:00 - 12:00 uur

€ 785.000 k.k.
ditters makelaars veenendaal
Kopen
Financiële mogelijkheden

Waardecheck

Onze makelaars kijken naar de lokale markt en vergelijkbare woningen in jouw buurt om een goede schatting te geven.
Onze makelaars kijken naar de lokale markt en vergelijkbare woningen in jouw buurt om een goede schatting te geven.
Goed om te weten: deze waardecheck is vrijblijvend en geheel kosteloos
Onafhankelijk

Hypotheekadvies

We helpen je met het vergelijken van aanbiedingen van verschillende banken, zodat je de beste deal krijgt. 
Wij staan klaar om je te begeleiden, zodat je met vertrouwen de juiste hypotheek kunt kiezen.
Goed om te weten: dit adviesgesprek is vrijblijvend en geheel kosteloos

Wij helpen jou bij de keuze van de juiste polis.

Bij een onbezorgde toekomst horen ook goede verzekeringen die uitkeren bij bijvoorbeeld ziekte, schade of diefstal. Onze assurantieadviseurs helpen je bij de keuze van de juiste polis. In heldere taal.

Diverse verzekeringen

  • Opstalverzekering
  • Aansprakelijkheidsverzekering
  • Zorgverzekering
  • Reisverzekering

Locatie

Belangrijke documenten

Lijst van zaken

Overzicht van de zaken die achterblijven of worden meegenomen door de huidige bewoners.

Vragenlijst

Hier deelt de verkoper belangrijke informatie over de staat en bijzonderheden van de woning.

Vragenlijst c

Hier deelt de verkoper belangrijke informatie over de staat en bijzonderheden van de woning.

Brochure

Bekijk hier alle details van de woning, compleet met foto's en beschrijvingen.

Misschien interessant voor jou

Blijf op de hoogte

Ontvang als eerste updates over nieuw aanbod en mis geen enkele kans om jouw droomwoning te vinden.

Gratis waardebepaling of verkoopgesprek

Met de vrijblijvende waardecheck weet je snel waar je aan toe bent. Onze makelaars kijken naar de lokale markt en vergelijkbare woningen in jouw buurt om een goede schatting te geven.