Omschrijving

Wonen met karakter in ’t Hoorntje – hier voel je je meteen thuis!

Welkom aan de rand van het centrum, waar rust en levendigheid hand in hand gaan. Deze charmante twee-onder-een-kapwoning in de populaire wijk ’t Hoorntje heeft alles in zich om jouw nieuwe thuis te worden.
De woonkamer ademt sfeer en warmte, en via de schuifpui stap je zó de zonnige tuin op het zuidoosten in – een heerlijke plek om te ontspannen, te spelen of te genieten van lange zomeravonden.
Met vier slaapkamers is er volop ruimte voor het hele gezin, thuiswerken of logees.

De ligging is ideaal: de supermarkt is om de hoek en binnen vijf minuten fietsen sta je in het gezellige centrum van Veenendaal en bij verschillende scholen. De A12 is snel bereikbaar, waardoor je ook met de auto alle kanten op kunt.

Een huis om in te leven, te groeien en vooral te genieten. Kom je kijken?

Pluspunten van deze woning:
- Gelegen in de geliefde wijk ’t Hoorntje, op loopafstand van supermarkt, nabij het centrum en scholen
- Ruime twee-onder-een-kapwoning met vier volwaardige slaapkamers
- Lichte woonkamer met royale raampartij en schuifpui naar de zonnige tuin (zuidoosten)
- Open keuken (vernieuwd in 2021) met luxe inbouwapparatuur, o.a. Quooker, inductiekookplaat, oven en aparte magnetron
- Grote, zonnige, fraai aangelegde achtertuin – een heerlijke plek om te ontspannen
- Praktische ligging: binnen 5 minuten op de A12, in het centrum van Veenendaal en bij verschillende scholen
- Veel recente verbouwingen: eikenhouten trap, isolatie, voordeur, tuin, CV, keuken, plafond en vloer woonkamer, dakranden, dakgoten, dakkapel (bekleding en dak)
- Energielabel C

Indeling
Begane grond:
Zodra je de woonkamer binnenstapt, valt direct de fijne lichtinval op: het daglicht stroomt van voor naar achter door de ruimte, dankzij de grote raampartij aan de voorzijde en de schuifpui richting de tuin. Dit zorgt niet alleen voor een ruimtelijk gevoel, maar ook voor een prettige sfeer op elk moment van de dag.
De open keuken – vernieuwd in 2021 – is een echte blikvanger. Voorzien van luxe inbouwapparatuur zoals een Quooker, inductiekookplaat, oven én aparte magnetron, is dit een plek waar koken en samenzijn naadloos samenkomen. De keuken ligt direct achter de eethoek en staat in open verbinding met de woonkamer, waardoor je altijd in contact blijft met je gezin of gasten, of je nu aan het koken bent of gewoon geniet van het moment.
Via de keuken bereik je de praktische bijkeuken, waar je toegang hebt tot het toilet én de badkamer. De badkamer is compleet uitgerust met een douche, ligbad en wastafelmeubel. Ook vind je hier de aansluitingen voor de wasmachine en droger – ideaal ingedeeld en handig bij elkaar.

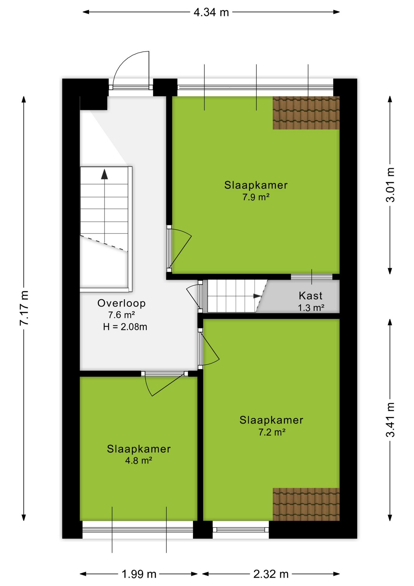
Eerste verdieping:
Vanaf de overloop zijn drie slaapkamers bereikbaar: twee van circa 8 m² en een knusse kamer van circa 5 m² – ideaal als kinderkamer, werkkamer of inloopkast. Zowel de slaapkamers aan de voor- als aan de achterzijde zijn voorzien van een dakkapel, wat zorgt voor extra ruimte en licht.

Tweede verdieping:
Via de overloop kom je bij de vaste trap naar de tweede verdieping. Deze trap is in 2023 volledig vernieuwd en vormt een mooie, stijlvolle verbinding met de bovenverdieping.
De zolder is een fijne, lichte ruimte met een dakraam dat zorgt voor veel natuurlijk licht. Door de prettige afmeting en lichtinval is deze ruimte ideaal als extra slaapkamer, rustige thuiswerkplek of gezellige hobbyruimte.

Tuin:
Via de schuifpui in de keuken of de deur in de bijkeuken stap je zo de prachtig diepe tuin op het zuidoosten in. Vanuit de tuin heb je ook toegang tot de praktische, aangebouwde bergruimte met openslaande deuren.
De tuin is slim ingedeeld met verschillende sfeervolle hoekjes, waar je dankzij de gunstige ligging altijd een zonnig plekje vindt. ’s Avonds zorgt de warme buitenverlichting voor een gezellige en intieme sfeer.
Een tuin om écht van te genieten!

Bijzonderheden
Verwarming: CV ketel, Intergas 2024;
Warm water: CV ketel, Intergas 2024;
Isolatie: volledig geïsoleerd;
Tuinligging: zuidoosten;
Aanvaarding: in overleg.

Koopovereenkomst:
Bij de verkoop zal er een standaard NVM koopovereenkomst worden gehanteerd. Bij woningen welke ouder zijn dan 20 jaar, worden de volgende clausules opgenomen in de koopovereenkomst:
- Asbestclausule
- Ouderdomsclausule

Koopt u de woning zonder voorbehoud van financiering? Dan zullen wij een termijn hanteren van 14 dagen na het opstellen van de koopovereenkomst voor het storten van de bankgarantie/waarborgsom.

Deze informatie is door ons met de nodige zorgvuldigheid samengesteld. Onzerzijds wordt echter geen enkele aansprakelijkheid aanvaard voor enige onvolledigheid, onjuistheid of anderszins, dan wel de gevolgen daarvan. Alle opgegeven maten en oppervlakten zijn indicatief.
+ toon meer
deze woning is Verkocht

Dahliastraat 20 Veenendaal

Dahliastraat 20

3905 ZR, Veenendaal
Ditters open huis: 5 april 2025 10:00 - 12:00 uur
Landelijke Open Huizen Route NVM: 5 april 2025 11:00 uur - 15:00 uur
Vanaf€ 469.000 k.k.

Schakel een aankoopmakelaar in.

Snel handelen helpt je jouw droomhuis te bemachtigen. Zo vergroot je de kans dat je er op tijd bij bent.
Veenendaal
verkocht

Of maak vrijblijvend een zoekprofiel aan.

Vergelijkbare woningen

Hypotheken

Onafhankelijk hypotheekadvies

  • Ligt jouw droomhuis binnen handbereik?
  • Wil je jouw huidige hypotheek verhogen?
  • Is er hypotheekruimte voor verduurzaming?

Blijf op de hoogte

Ontvang als eerste updates over nieuw aanbod en mis geen enkele kans om jouw droomwoning te vinden.

Gratis waardebepaling of verkoopgesprek

Met de vrijblijvende waardecheck weet je snel waar je aan toe bent. Onze makelaars kijken naar de lokale markt en vergelijkbare woningen in jouw buurt om een goede schatting te geven.

Realiseer al jouw woondromen met Ditters

Wij zijn een team van gedreven vastgoedexperts met een passie voor het maken van verbindingen – tussen kopers en verkopers, huurders en verhuurders. Met een frisse kijk op de makelaardij combineren we expertise met creativiteit. Onze makelaars luisteren écht en nemen de tijd om jouw wensen te begrijpen.


Bij Ditters sta je er niet alleen voor. We denken met je mee, begeleiden je in elke stap en zijn altijd bereikbaar voor vragen. Neem gerust contact met ons op – we helpen je graag verder!