Aanbod

Verken ons aanbod. Van huur tot koop. En van nieuwbouw tot bouwkavel. Samen vinden we de plek waar jij je helemaal thuis voelt.

Diensten

Onze experts begeleiden je van A tot Z. Of je nu je huis wilt verkopen, op zoek bent naar je droomhuis of advies nodig hebt over hypotheken of verzekeringen. Met jarenlange ervaring en persoonlijke service zorgen we ervoor dat jij met een gerust hart de juiste keuzes maakt.

Over Ditters

Wij zijn Ditters. Verhalenvertellers. De schakel tussen droom en woning. We luisteren naar jouw wensen en maken op basis daarvan een plan.

Omschrijving

Deze ruime hoekwoning, gelegen aan de Distelvink 81 in west-Veenendaal, combineert comfort en functionaliteit. De woning beschikt over een royale woonkamer, vier slaapkamers, moderne badkamer, een grote zolder en een ruime tuin die uitnodigt tot buitenleven.

Op loopafstand bevindt zich winkelcentrum Ellekoot, waar u diverse voorzieningen vindt. Naast een supermarkt kunt u hier ook terecht bij onder andere een drogisterij en een sporthal, wat een prettige combinatie van boodschappen en recreatieve mogelijkheden biedt. Het centrum van Veenendaal, met zijn ruime aanbod aan winkels, horecagelegenheden en dienstverlenende voorzieningen, is eveneens gemakkelijk per fiets bereikbaar. Bovendien zorgen de uitstekende verbindingen – de A12 is binnen enkele autominuten te bereiken – voor een vlotte bereikbaarheid!


Begane grond:
Via de royale entree, waar tevens het toilet, de meterkast en de trapopgang aanwezig zijn, kom je in een ruime woonkamer terecht. Deze kamer beschikt over genoeg daglicht dankzij de grote raampartijen en de aanwezige tuindeur. biedt voldoende ruimte voor een grote hoekbank en een gezellige zithoek. Centraal gelegen vind je het eetgedeelte, dat overgaat in de ruime, halfopen keuken. De keuken is voorzien van diverse inbouwapparatuur en beschikt over een raampartij die geopend kan worden voor optimale ventilatie.

1e Verdieping:
Via de overloop krijg je toegang tot alle kamers van deze verdieping. Hier bevinden zich drie slaapkamers, met oppervlakten van 12,2 m², 10,9 m² en 6,5 m², elk met een raampartij. De grootste twee slaapkamers bieden tevens genoeg ruimte voor een praktische kastenwand. De moderne badkamer van 5,4 m² is afgewerkt met antracietgrijze tegels en tevens uitgerust met een wastafelmeubel, inloopdouche en een toilet. Het aanwezige raam zorgt voor natuurlijke ventilatie.

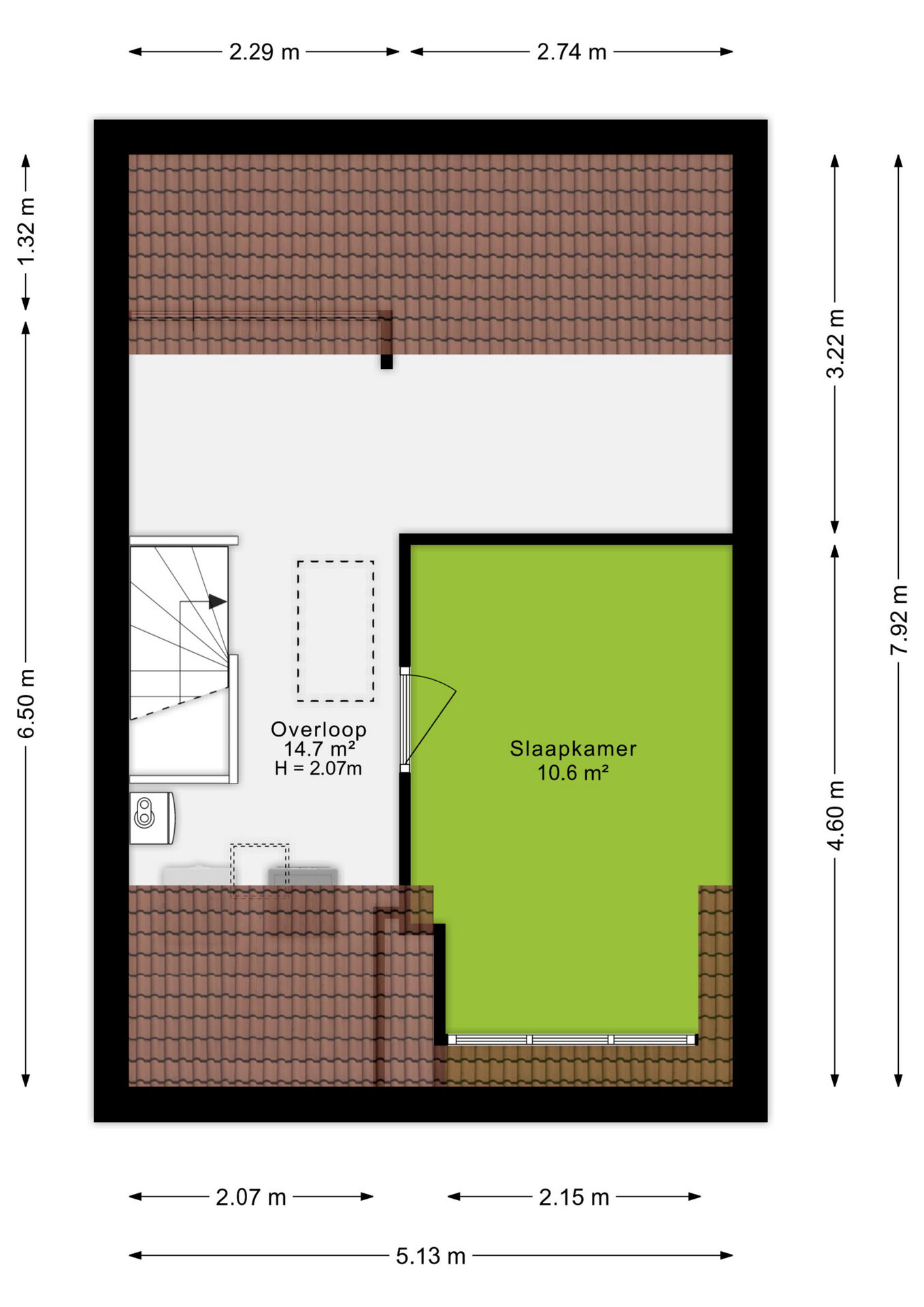
2e Verdieping:
Met de vaste trap bereik je de tweede verdieping, waar je op de overloop voldoende bergruimte aantreft, naast de aansluitingen voor zowel de wasmachine als de droger. Ook vind je hier de vierde slaapkamer van 10,6 m², die dankzij de dakkapellen verzekerd is van veel natuurlijk licht. Deze veelzijdige kamer kan tevens dienstdoen als sport- of werkkamer.

Tuin:
De royale, op het zuidwesten gelegen tuin is zowel vanuit de woonkamer als via de achterom toegankelijk. De tuin biedt volop mogelijkheden om een fijne loungehoek en een speelhoek voor de kinderen te creëren. Aan de achterzijde is tevens een overkapping, berging van 5,8 m² en garage van 17,6 m² aanwezig, die via de zijkant bereikbaar is en ideaal is voor het parkeren van de auto of het opbergen van diverse spullen.

Kenmerken:
- Bouwjaar 1986;
- Woonoppervlakte 111 m²;
- Drie tot vier slaapkamers;
- Energielabel B;
- Ruime tuin op het zuidwesten;
- Voorzien van 9 zonnepanelen á 450 Wp;
- Verwarming en warm water middels Bosch compact Cv-ketel (2011).

Koopovereenkomst:
Koopt u de woning zonder voorbehoud van financiering? Dan zullen wij een termijn hanteren van 14 dagen na het opstellen van de koopovereenkomst voor het storten van de bankgarantie/waarborgsom.

Deze informatie is door ons met de nodige zorgvuldigheid samengesteld. Onzerzijds wordt echter geen enkele aansprakelijkheid aanvaard voor enige onvolledigheid, onjuistheid of anderszins, dan wel de gevolgen daarvan. Alle opgegeven maten en oppervlakten zijn indicatief.
+ toon meer
3906 AN, Veenendaal

Distelvink 81

Zaterdag 2 augustus 10:00 - 12:00 uur

€ 475.000 k.k.
ditters makelaars veenendaal
Kopen
Financiële mogelijkheden

Waardecheck

Onze makelaars kijken naar de lokale markt en vergelijkbare woningen in jouw buurt om een goede schatting te geven.
Onze makelaars kijken naar de lokale markt en vergelijkbare woningen in jouw buurt om een goede schatting te geven.
Goed om te weten: deze waardecheck is vrijblijvend en geheel kosteloos
Onafhankelijk

Hypotheekadvies

We helpen je met het vergelijken van aanbiedingen van verschillende banken, zodat je de beste deal krijgt. 
Wij staan klaar om je te begeleiden, zodat je met vertrouwen de juiste hypotheek kunt kiezen.
Goed om te weten: dit adviesgesprek is vrijblijvend en geheel kosteloos

Wij helpen jou bij de keuze van de juiste polis.

Bij een onbezorgde toekomst horen ook goede verzekeringen die uitkeren bij bijvoorbeeld ziekte, schade of diefstal. Onze assurantieadviseurs helpen je bij de keuze van de juiste polis. In heldere taal.

Diverse verzekeringen

  • Opstalverzekering
  • Aansprakelijkheidsverzekering
  • Zorgverzekering
  • Reisverzekering

Locatie

Belangrijke documenten

Brochure

Bekijk hier alle details van de woning, compleet met foto's en beschrijvingen.

Lijst van zaken

Overzicht van de zaken die achterblijven of worden meegenomen door de huidige bewoners.

Vragenlijst

Hier deelt de verkoper belangrijke informatie over de staat en bijzonderheden van de woning.

Vragenlijst c

Hier deelt de verkoper belangrijke informatie over de staat en bijzonderheden van de woning.

Misschien interessant voor jou

Blijf op de hoogte

Ontvang als eerste updates over nieuw aanbod en mis geen enkele kans om jouw droomwoning te vinden.

Gratis waardebepaling of verkoopgesprek

Met de vrijblijvende waardecheck weet je snel waar je aan toe bent. Onze makelaars kijken naar de lokale markt en vergelijkbare woningen in jouw buurt om een goede schatting te geven.