Deze prachtige twee-onder-een-kapwoning, gelegen aan de Hensenhof 9 in Veenendaal-Oost, is de ideale gezinswoning en biedt alles wat je zoekt.
De woning beschikt over een royale tuin op het noorden, waar je heerlijk kunt genieten onder de sfeervolle veranda, ideaal voor gezellige avonden of ontspannen momenten in de buitenlucht. Bovendien is parkeren geen enkel probleem, want de woning beschikt over een eigen oprit waar je gemakkelijk je auto kunt parkeren.
De woning is gelegen in de gewilde en jonge woonwijk Buurtstede, die bekend staat om haar kindvriendelijke karakter en uitstekende voorzieningen. Op korte fiets- of loopafstand vind je alles wat je nodig hebt voor het dagelijkse gemak, zoals supermarkten, winkels, basisscholen, middelbare scholen en diverse sportscholen. Daarnaast biedt de wijk een groene en rustige leefomgeving, met volop mogelijkheden om te wandelen, fietsen en ontspannen in de natuur. Kortom, een ideale plek om te wonen!
Enkele pluspunten:
+ Royale woonkamer;
+ voorzien van vloerverwarming;
+ strak afgewerkte keuken;
+ beschikt over 6 slaapkamers;
+ parkeren op eigen terrein;
Indeling:
Begane grond:
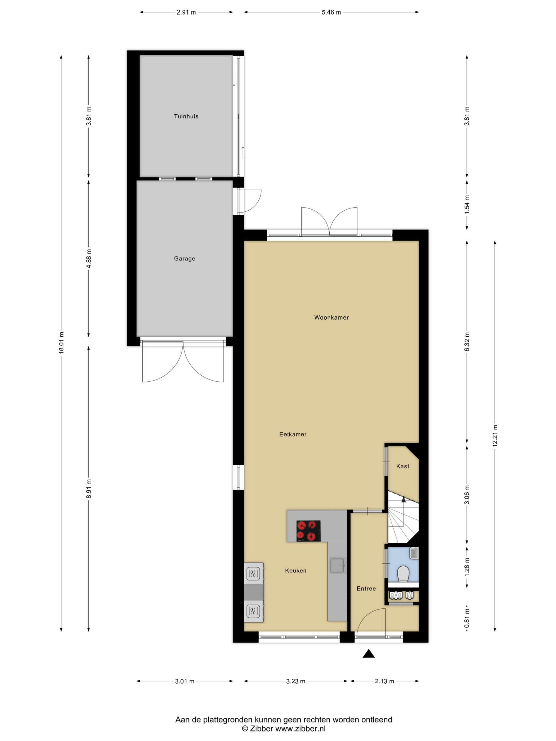
Via de entree, waar zich de meterkast en een modern toilet bevinden, betreed je de sfeervolle woonkamer. De woonkamer is ruim opgezet en wordt gekenmerkt door een grote glazen pui, die niet alleen zorgt voor een prachtig natuurlijk lichtinval, maar ook directe toegang biedt tot de achtertuin. Het strakke plafond is voorzien van inbouwverlichting, wat bijdraagt aan een moderne en afgewerkte uitstraling.
Vanuit de woonkamer loop je door naar het eetgedeelte en de aangrenzende keuken. Hier is meer dan genoeg ruimte voor een grote eettafel, ideaal voor gezellige diners met familie of vrienden. De L-vormige keuken is stijlvol ingericht met witte keukenkastjes en een lichtgrijs aanrechtblad, en is volledig uitgerust met diverse inbouwapparaten. Denk daarbij aan een inductiekookplaat, een afzuigkap, een combi-oven, een koelkast en een vriezer. Daarnaast beschikt ook de keuken over een grote raampartij, die zorgt voor een prettige lichtinval en een extra ruimtelijk gevoel.
Eerste verdieping:
Via de vaste trap kom je uit op de overloop, die toegang biedt tot drie slaapkamers met respectievelijke afmetingen van 12,9 m², 14,9 m² en 10,3 m². Alle slaapkamers hebben een te openen raam, waarvan één slaapkamer extra is voorzien van ingebouwde kastruimte. De badkamer van 5,4 m² is modern afgewerkt met antracietkleurige tegels en beschikt over een wastafelmeubel, douche, toilet en ligbad. Ook hier is een raam aanwezig, wat zorgt voor natuurlijke ventilatie.
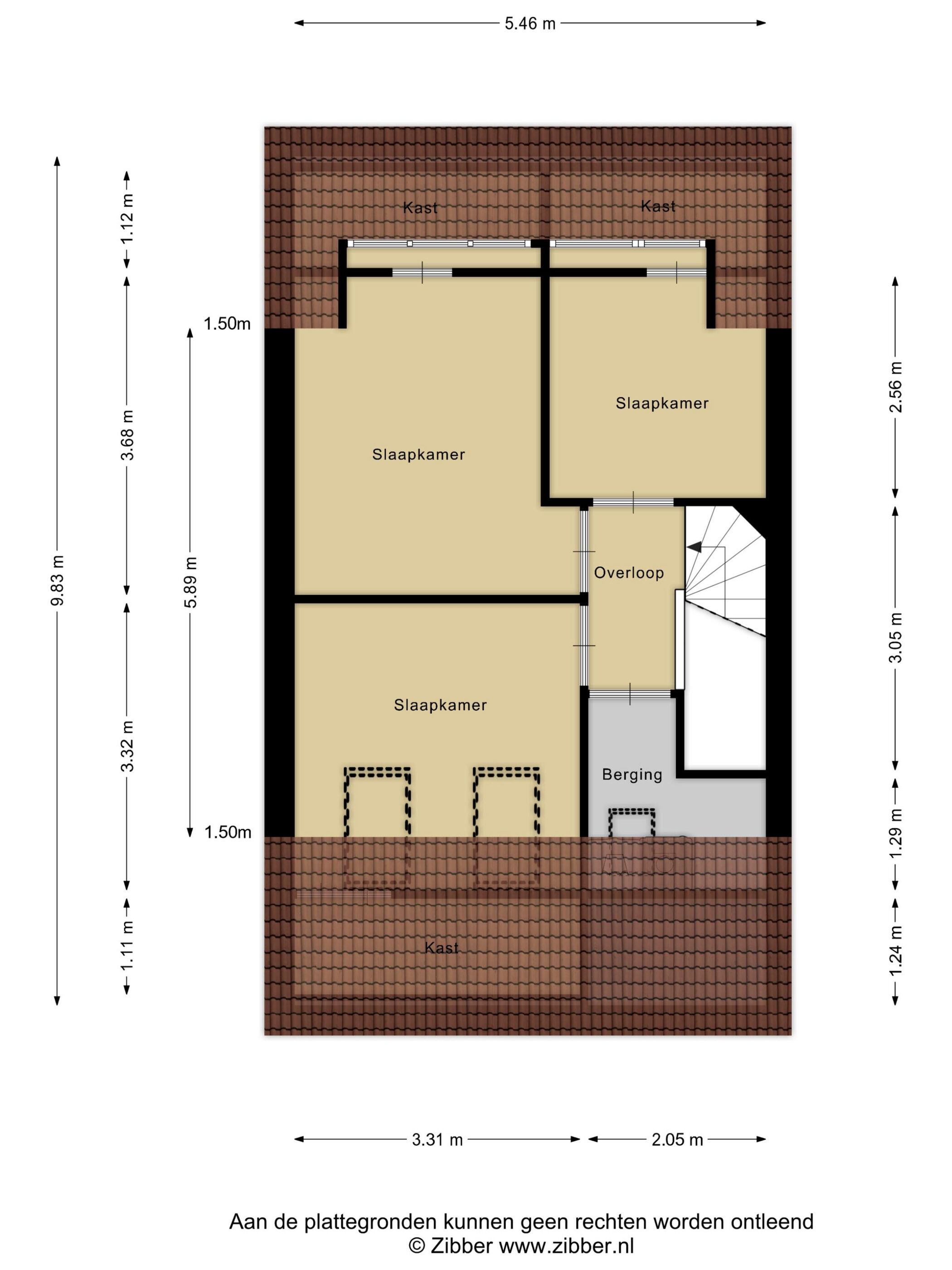
Tweede verdieping:
De zolder is bereikbaar via een vaste trap en biedt drie extra kamers, met afmetingen van 8,7 m², 10,6 m² en 6 m². Twee van deze kamers wordt momenteel gebruikt als werkkamer. Daarnaast bevinden zich op deze verdieping de aansluitingen voor de wasmachine en droger. De zolder is voorzien van een combinatie van een dakkapel en dakramen, wat zorgt voor volop daglicht.
Tuin en garage:
De fraai aangelegde tuin is gelegen op het oosten, wat betekent dat je in de ochtend en vroege middag kunt genieten van heerlijk zonlicht. De tuin is voorzien van diverse groenstroken en beplanting. Verder is er een sfeervolle veranda, ideaal om 's avonds buiten te zitten of te dineren, ongeacht het weer. Bovendien is de tuin ook eenvoudig bereikbaar via de garage. Deze veelzijdige buitenruimte nodigt uit om te ontspannen en te genieten van privacy.
Bijzonderheden:
Bouwjaar: 2015
Verwarming: stadsverwarming
Warm water: stadsverwarming
Energielabel: A+
Isolatie: volledig geïsoleerd
Aanvaarding: in overleg
Koopovereenkomst:
Koopt u de woning zonder voorbehoud van financiering? Dan zullen wij een termijn hanteren van 14 dagen na het opstellen van de koopovereenkomst voor het storten van de bankgarantie/waarborgsom.
Deze informatie is door ons met de nodige zorgvuldigheid samengesteld. Onzerzijds wordt echter geen enkele aansprakelijkheid aanvaard voor enige onvolledigheid, onjuistheid of anderszins, dan wel de gevolgen daarvan. Alle opgegeven maten en oppervlakten zijn indicatief.