Binnen de geliefde wijk 'Dragonder' bevindt zich deze royale drie-onder-1-kapwoning met een woonoppervlakte van maar liefst 141m². De woning is gelegen op korte afstand van het centrum van Veenendaal alsook diverse wandelgebieden. De woning is verder al helemaal klaar voor de toekomst; goed geïsoleerd, voorzien van energielabel A en 10 zonnepanelen.
De volgende aspecten van deze goed onderhouden woning zullen je vast aanspreken: royale woonkamer met veel lichtinval, complete keuken met diverse inbouwapparatuur, 4 volwaardige slaapkamers op de 1e verdieping, nog eens 2 multifunctionele (slaap)kamers op de 2e verdieping, kunststof kozijnen, en een fraaie tuin op het zonnige westen met een ruime berging.
Gelegen in Dragonder, in een prettige kindvriendelijke woonomgeving, omringd door groen bevindt zich deze ruime woning. Verder is de woning gelegen nabij scholen, bossen en buurtwinkelcentrum 'Het Erf'. Mede door de ruime opzet van dit gedeelte van de wijk maken dit tot een gewilde woonomgeving. De woning is zeer centraal gelegen, dichtbij station Veenendaal-De Klomp en nabij diverse belangrijke uitvalswegen zoals de A15, A30 en de A12.
Indeling:
Begane grond:
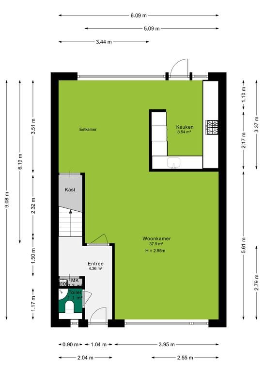
Via de entree en hal met separaat toilet en meterkast is de woonkamer te bereiken. De royale woonkamer heeft een oppervlakte van bijna 40m², is voorzien van een sfeervolle parketvloer, neutrale wanden en heerlijk veel lichtinval. Door de ruime afmeting is er plek genoeg voor een eetgedeelte en ontstaat er een gezellige verbinding tussen de woonkamer en de keuken. De keuken heeft een lichte kleurstelling en is voorzien van diverse inbouwapparatuur waaronder een vaatwasser, kookplaat, afzuigkap, oven, magnetron en koel- vriescombinatie. Door de grote raampartijen is de woning aan beide zijden voorzien van veel lichtinval.
1e Verdieping:
Via de overloop is er toegang naar 4 volwaardige slaapkamers en de badkamer. De slaapkamers hebben een oppervlakte van circa 14m², 12m², 8,5m² en 7m². De slaapkamers zijn voorzien van een nette laminaatvloer, neutrale wanden en kunststof kozijnen met voldoende lichtinval. De badkamer is betegeld in een lichte kleurstelling en beschikt over een douche, toilet en wastafel met wastafelmeubel. De slaapkamers hebben een afmeting van circa 14m², 12m², 8,5m² en 7m². De slaapkamers zijn voorzien van een nette laminaatvloer, neutrale wanden en kunststof kozijnen met voldoende lichtinval. De badkamer is betegeld in een lichte kleurstelling en beschikt over een douche, toilet en wastafel met wastafelmeubel.
2e Verdieping:
Via de vaste trap is de 2e verdieping te bereiken. Hier bevindt zich de ruime overloop met de witgoedaansluiting en via een van de slaapkamers is de praktische bergruimte te bereiken waar de C.V.-combiketel staat opgesteld. Deze verdieping telt de 5e en 6e (slaap)kamer. De kamers hebben een afmeting van ca. 12m² en 8,5m² en zijn voorzien van een nette laminaatvloer en voldoende lichtinval. Door deze ruime indeling kan de 2e verdieping multifunctioneel gebruikt worden, te denken valt aan een werkruimte, hobbyruimte, sportplek of slaapkamer. Vooral de (in 2023 geplaatste) dakkapel aan de achterzijde geeft de verdieping nog meer ruimte en bevorderd het woongenot.
Tuin:
De tuin is gelegen op het zonnige westen en door de prettige ligging is er altijd wel een plekje in de zon of in de schaduw te vinden. De tuin biedt ruimte genoeg voor een gezellig terras, speelplekjes of groenstroken. Verder beschikt de tuin over een berging en een achterom.
Bijzonderheden:
Verwarming: C.V.-combiketel (bouwjaar 2016)
Warm water: C.V.-combiketel (bouwjaar 2016)
Isolatie: dakisolatie, (gedeeltelijk) muurisolatie, vloerisolatie en dubbel glas
Bouwjaar: 1970
Tuinligging: westen
Aanvaarding: in overleg
Extra's:
- Royale eengezinswoning met een woonoppervlakte van 141m²;
- Complete keuken met diverse inbouwapparatuur;
- 6 volwaardige slaapkamers;
- Grotendeels kunststof kozijnen;
- In 2023 geplaatst dakkapel op de 2e verdieping;
- Energielabel A en 10 zonnepanelen;
- Fraaie tuin op het zonnige westen;
- Op goede afstand van alle voorzieningen.
Koopovereenkomst:
Bij de verkoop zal er een standaard NVM koopovereenkomst worden gehanteerd. Bij woningen welke ouder zijn dan 20 jaar, worden de volgende clausules opgenomen in de koopovereenkomst:
- Asbestclausule
- Ouderdomsclausule
Koop je de woning zonder voorbehoud van financiering? Dan zullen wij een termijn hanteren van 14 dagen na het opstellen van de koopovereenkomst voor het storten van de bankgarantie/waarborgsom.
Deze informatie is door ons met de nodige zorgvuldigheid samengesteld. Onzerzijds wordt echter geen enkele aansprakelijkheid aanvaard voor enige onvolledigheid, onjuistheid of anderszins, dan wel de gevolgen daarvan. Alle opgegeven maten en oppervlakten zijn indicatief.