Heb jij geen zin om te klussen en zoek jij een instapklare woning waarbij je alleen je koffers hoeft uit te pakken en er direct kan wonen? Wil jij een goed geïsoleerde en zeer fraai afgewerkte tussenwoning waarbij dure verbouwingen zoals de keuken, badkamer, Cv-installatie en een schuur/werkplaats al voor elkaar zijn? Zoek jij die éne woning in Veenendaal waar je de volgende stap in je leven kunt zetten?
Stop dan met zoeken, want dan is Petrus Planciusstraat 21 jouw nieuwe woning!
Belangrijkste kenmerken:
- Energielabel A+++ – duurzaam, energiezuinig en vloerverwarming
- 12 zonnepanelen
- Fijne gezinswoning met o.a. 4 slaapkamers en een complete badkamer
- Geïsoleerde schuur/werkplaats over de volledig breedte van de tuin
- Hoog afwerkingsniveau – geen kluswerk. zo te betrekken en voorzien van airco
- Vrij uitzicht aan de voorzijde en parkeerplaatsen nabij
Petrus Planciusstraat 21 is een in 2015 gebouwde tussenwoning met tuin op het noorden en gelegen in een jonge en kindvriendelijke wijk. De wijk kenmerkt zich door rust, ruimte, groen opzet en zeer kindvriendelijk. Binnen loop-/fietsafstand bevinden zich o.a. sportvelden, wijkwinkelcentrum “t Erf, het gezellige centrum van Veenendaal en enkele basisscholen en/of kinderopvang. Daarnaast is de woning zeer gunstig gelegen ten opzichte van het openbaar vervoer. Binnen 1-2 minuten ben je met de auto op de A12 en treinstation Veenendaal-De Klomp is gelegen op 10 minuten fietsen.
Vooruitlopend op de bezichtiging geven we je hieronder vast een eerste indruk!
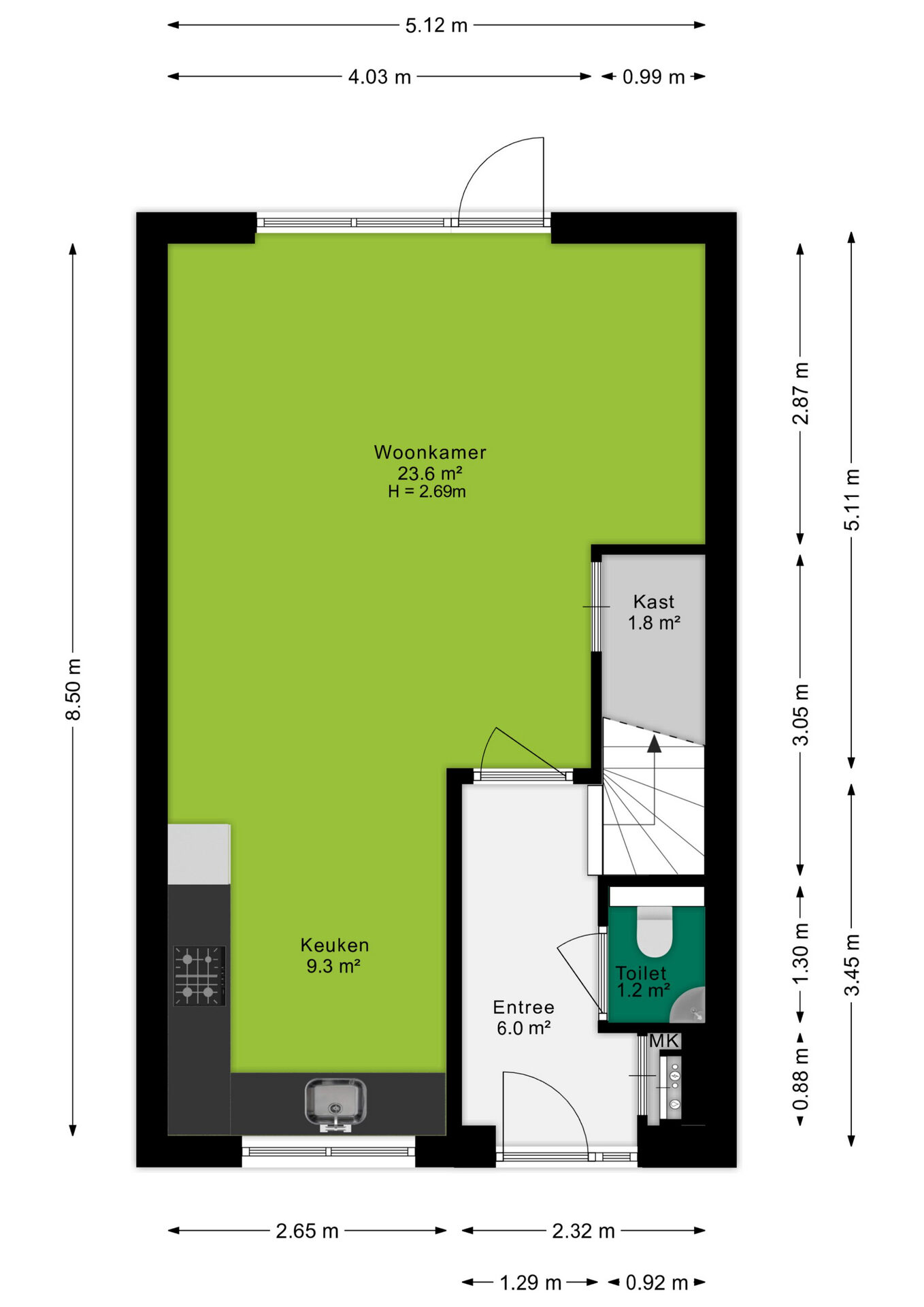
Indeling:
Begane grond:
Bij binnenkomst in de entree/hal met meterkast, toilet en trapopgang naar de 1e verdieping valt gelijk op dat we het hier hebben over een tussenwoning met een goed afwerkingsniveau. De vloer is afgewerkt met mooie houtlook PVC vloer met vloerverwarming. De glazen deur, welke zorgt voor een ruimtelijke gevoel, biedt je toegang tot de leefruimte. Een begane grond om van te smullen. Aan de achterzijde voorzien van grote raampartijen en een loopdeur naar de achtertuin. Hier bevindt zich tevens de woonkamer. De L-vormige keuken is gelegen aan de voorzijde van de woning en voorzien van al het benodigde inbouwapparatuur zoals een Quooker (2025). De centrale eettafel is de ideale plek om met vrienden en/of familie te genieten van een hapje, drankje en/of spelletje.
De tuingerichte woonkamer is ruim en biedt meer dan voldoende ruimte voor grote meubels, waaronder een riante (hoek)bank. Vanuit de woonkamer is middels een loopdeur de verzorgde achtertuin te bereiken.
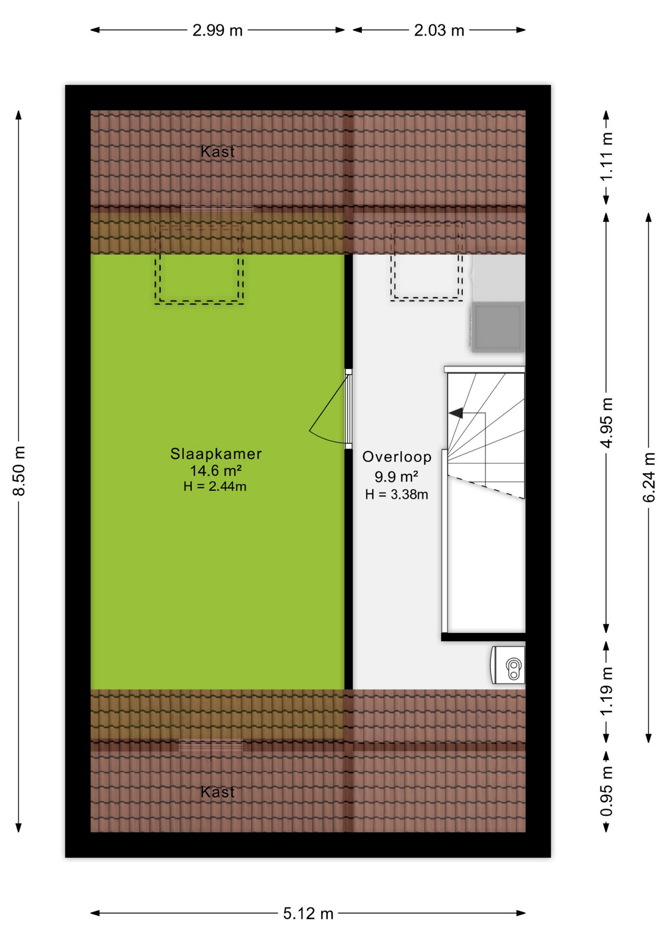
1e verdieping:
De geluidsarme vaste trap brengt je naar een ruime overloop. De grootste slaapkamer is gelegen aan de voorzijde van de woning en is met ruim 12 m² van een zeer prettig formaat. Deze kamer is daarnaast voorzien van rolluiken. De 2e ruime slaapkamers is gelegen aan de achterzijde en met 11,6 m² wederom van een zeer prettig formaat. De derde slaapkamer is gelegen aan de achterzijde van de woning, is circa 6,3 m² groot en multifunctioneel te gebruiken. Nu in gebruik als praktijk-/werkkamer, maar kan uiteraard gebruikt worden als baby-/kinderkamer.
Aan de voorzijde van de woning bevindt zich de modern uitgevoerde badkamer van ca. 5 m². De ruimte is stijlvol en functioneel ingericht met een inloopdouche, ligbad, een wastafelmeubel met enkele wastafel, een tweede toilet en vloerverwarming voor extra comfort. Het te openen raam zorgt voor natuurlijke ventilatie en daglicht, en is bovendien voorzien van rolluiken, wat zorgt voor extra privacy en warmtewering.
2e verdieping:
Via wederom een geluidsarme vaste trap bereik je de 2e verdieping met een voorzolder en de 4e slaapkamer. Op de voorzolder, welke van daglicht wordt voorzien middels een dakraam, is plek voor de wasmachine en droger. De 4e slaapkamer is het domein van de ouders. Een slaapkamer van circa 15 m² met een dakraam voorzien van een rolluik en uitgerust met airconditioning.
Tuin
De achtertuin van circa 58 m² is gelegen op het noorden en voorzien van grote grijze tegels, kunstgras, bloempakken met enkele bomen en een gezellig terras met daarboven een harmonicadoek voor de gewenste schaduw. Aan het einde van de middag en in de avond is het heerlijk genieten van de westelijke en ondergaande zon.
Achterin de tuin bevindt zich een ruime berging van maar liefst 14 m² – perfect voor het opbergen van fietsen, tuinmeubilair of gereedschap. De berging is ook via een handige achterom bereikbaar.
Kortom: een prettige en verzorgde tuin op het noorden met meer dan voldoende ruimte om met vrienden en/of familie te genieten van een verjaardag, feestje of BBQ.
Schuur/werkplaats:
Achterin de tuin beschikt je over een ruime schuur/werkplaats. Belangrijk detail: over de volledige breedte van de tuin, volledig geïsoleerd en aan de achterzijde voorzien van een extra brede deur. Ideaal voor het parkeren van een motor of andere grote voertuigen. Ben jij een handige klusser en zoek je een kleine werkplaats? Dan is dit jou huis!
KENMERKEN
- Bouwjaar 2015;
- Woonoppervlakte 114 m²;
- Volledig geïsoleerd;
- Energielabel A+++ met o.a. HR++ beglazing en 12 zonnepanelen á 370 Wp (2021);
- Vloerverwarming op de begane grond en in de badkamer;
- Verzorgde tuin met gezellige overkapping
- Ruime schuur/werkplaats achterin de tuin
- Airconditioning ;
- Verwarming en water door middel van cv-installatie (2015);
- Oplevering in overleg.
Koopovereenkomst:
Bij de verkoop zal er een standaard NVM koopovereenkomst worden gehanteerd.
Koopt u de woning zonder voorbehoud van financiering? Dan zullen wij een termijn hanteren van 6 weken na het opstellen van de koopovereenkomst voor het storten van de bankgarantie/waarborgsom.
Deze informatie is door ons met de nodige zorgvuldigheid samengesteld. Onzerzijds wordt echter geen enkele aansprakelijkheid aanvaard voor enige onvolledigheid, onjuistheid of anderszins, dan wel de gevolgen daarvan. Alle opgegeven maten en oppervlakten zijn indicatief.