Aanbod

Verken ons aanbod. Van huur tot koop. En van nieuwbouw tot bouwkavel. Samen vinden we de plek waar jij je helemaal thuis voelt.

Diensten

Onze experts begeleiden je van A tot Z. Of je nu je huis wilt verkopen, op zoek bent naar je droomhuis of advies nodig hebt over hypotheken of verzekeringen. Met jarenlange ervaring en persoonlijke service zorgen we ervoor dat jij met een gerust hart de juiste keuzes maakt.

Over Ditters

Wij zijn Ditters. Verhalenvertellers. De schakel tussen droom en woning. We luisteren naar jouw wensen en maken op basis daarvan een plan.

Omschrijving

Binnen de geliefde wijk 'Veenendaal-West' bevindt zich deze royale eengezinswoning met een woonoppervlakte van maar liefst 110m². De woning is gelegen in een ruim opgezette wijk met veel parkeergelegenheden en is van binnen een plaatje om te zien.

De volgende aspecten van deze goed onderhouden woning zullen je vast aanspreken: royale woonkamer met veel lichtinval, complete keuken met diverse inbouwapparatuur, 3 volwaardige slaapkamers op de 1e verdieping, moderne badkamer, multifunctionele 2e verdieping, ruime veranda en een fraaie tuin op het zonnige zuidoosten.

De ligging is zeer gunstig aan een rustige kindvriendelijke, autovrije straat en met voldoende kinderspeelplekjes, en parkeervoorzieningen in de directe omgeving. Verder zijn winkelcentrum ‘De Ellekoot’, diverse scholen, NS-station Veenendaal-West en sportaccommodaties dichtbij gelegen.

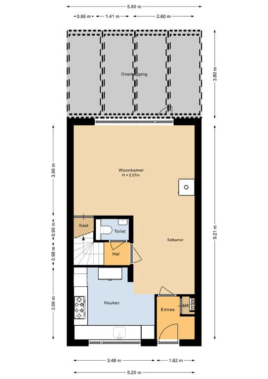
Indeling:
Begane grond:
Via de entree en hal met meterkast is de woonkamer te bereiken. De royale woonkamer heeft een afmeting van ruim 25m², is voorzien van een sfeervolle laminaatvloer, neutrale wanden en heerlijk veel lichtinval. Vooral de open haard geeft hier nog sfeer. Door de ruime afmeting is er plek genoeg voor een eetgedeelte en ontstaat er een gezellige verbinding tussen de woonkamer en de keuken. De keuken heeft een lichte kleurstelling en is voorzien van diverse inbouwapparatuur waaronder een vaatwasser, gasfornuis, afzuigkap, combi-oven/magnetron, koelkast en vriezer.

1e Verdieping:
Via de overloop is er toegang naar 3 volwaardige slaapkamers en de badkamer. De slaapkamers hebben een afmeting van circa 14,5m², 8,5m² en 7m². De slaapkamers zijn voorzien van een nette laminaatvloer, neutrale wanden en voldoende lichtinval. De badkamer is betegeld in een moderne kleurstelling en beschikt over een toilet, inloopdouche, wastafel met wastafelmeubel en de witgoedaansluiting is hier aanwezig.

2e Verdieping:
Via de vaste trap is de 2e verdieping bereikbaar. Deze verdieping telt de 4e (slaap)kamer. De kamer heeft een afmeting van ca. 12m² en is voorzien van een nette laminaatvloer, neutrale wanden en voldoende lichtinval. Door deze ruime indeling kan de 2e verdieping multifunctioneel gebruikt worden, te denken valt aan een werkruimte, hobbyruimte, sportplek of slaapkamer. Verder bevindt zich op de ruime overloop een fonteintje, veel opbergruimte en de C.V.-combiketel staat hier opgesteld.

Tuin:
De tuin is gelegen op het zonnige zuidoosten en door de prettige ligging is er altijd wel een plekje in de zon of in de schaduw te vinden. De tuin biedt ruimte genoeg voor een gezellig terras, speelplekjes of groenstroken. Verder beschikt de tuin over een fraaie veranda om heerlijk tot 's avonds laat van het buitenleven te genieten, een berging en een achterom.

Bijzonderheden:
Verwarming: C.V.-combiketel (bouwjaar 2020)
Warm water: C.V.-combiketel (bouwjaar 2020)
Isolatie: dakisolatie, muurisolatie,
Bouwjaar: 1983
Tuinligging: zuidoosten
Aanvaarding: in overleg

Extra's:
- Royale eengezinswoning met een woonoppervlakte van 110m²;
- Complete keuken met diverse inbouwapparatuur;
- 4 volwaardige slaapkamers;
- Moderne badkamer met inloopdouche;
- Energielabel B;
- Fraaie tuin op het zonnige zuidwesten;
- Op goede afstand van alle voorzieningen

Koopovereenkomst:
Bij de verkoop zal er een standaard NVM koopovereenkomst worden gehanteerd. Bij woningen welke ouder zijn dan 20 jaar, worden de volgende clausules opgenomen in de koopovereenkomst:
- Asbestclausule
- Ouderdomsclausule

Koop je de woning zonder voorbehoud van financiering? Dan zullen wij een termijn hanteren van 14 dagen na het opstellen van de koopovereenkomst voor het storten van de bankgarantie/waarborgsom.

Deze informatie is door ons met de nodige zorgvuldigheid samengesteld. Onzerzijds wordt echter geen enkele aansprakelijkheid aanvaard voor enige onvolledigheid, onjuistheid of anderszins, dan wel de gevolgen daarvan. Alle opgegeven maten en oppervlakten zijn indicatief.
+ toon meer
deze woning is Verkocht

Schaffelaar 54 Veenendaal

Schaffelaar 54

3905 WV, Veenendaal
Ditters open huis: 5 april 2025 10:00 - 12:00 uur
Landelijke Open Huizen Route NVM: 5 april 2025 11:00 uur - 15:00 uur
Vanaf€ 435.000 k.k.

Schakel een aankoopmakelaar in.

Snel handelen helpt je jouw droomhuis te bemachtigen. Zo vergroot je de kans dat je er op tijd bij bent.
Veenendaal
verkocht

Of maak vrijblijvend een zoekprofiel aan.

Vergelijkbare woningen

Hypotheken

Onafhankelijk hypotheekadvies

  • Ligt jouw droomhuis binnen handbereik?
  • Wil je jouw huidige hypotheek verhogen?
  • Is er hypotheekruimte voor verduurzaming?

Blijf op de hoogte

Ontvang als eerste updates over nieuw aanbod en mis geen enkele kans om jouw droomwoning te vinden.

Gratis waardebepaling of verkoopgesprek

Met de vrijblijvende waardecheck weet je snel waar je aan toe bent. Onze makelaars kijken naar de lokale markt en vergelijkbare woningen in jouw buurt om een goede schatting te geven.

Realiseer al jouw woondromen met Ditters

Wij zijn een team van gedreven vastgoedexperts met een passie voor het maken van verbindingen – tussen kopers en verkopers, huurders en verhuurders. Met een frisse kijk op de makelaardij combineren we expertise met creativiteit. Onze makelaars luisteren écht en nemen de tijd om jouw wensen te begrijpen.


Bij Ditters sta je er niet alleen voor. We denken met je mee, begeleiden je in elke stap en zijn altijd bereikbaar voor vragen. Neem gerust contact met ons op – we helpen je graag verder!