Omschrijving

Instapklare, vrijstaande woning uit 2023 met 5 slaapkamers, garage en eigen oprit.
Deze moderne vrijstaande woning biedt 172 m² woonoppervlakte, een royale woonkamer met erker, een luxe open keuken, vijf slaapkamers, vloerverwarming- en koeling op alle verdiepingen en energielabel A+++.
Met 21 zonnepanelen en stadsverwarming woon je hier uiterst duurzaam én comfortabel.

De woning ligt in de populaire, jonge en kindvriendelijke wijk Veenendaal-Oost. Op korte afstand vind je het kleinschalige winkelcentrum Buurtstede, met onder andere supermarkten, bloemist , kapper en drogist. Voor ontspanning en natuur is de Groene Grens en Utrechtse Heuvelrug nabij, fijne gebieden om te wandelen en tot rust te komen. Via de uitvalswegen A12 en A30 zijn Utrecht, Arnhem en Edeuitstekend bereikbaar.

Alle kenmerken op een rij:
+ Instapklaar en vrijstaand huis uit 2023
+ Vijf slaapkamers
+ Energielabel A+++
+ 21 zonnepanelen en stadsverwarming
+ Vloerverwarming- en koeling op alle verdiepingen
+ Eigen oprit en garage
+ Gelegen in het gewilde Veenendaal-Oost

Indeling
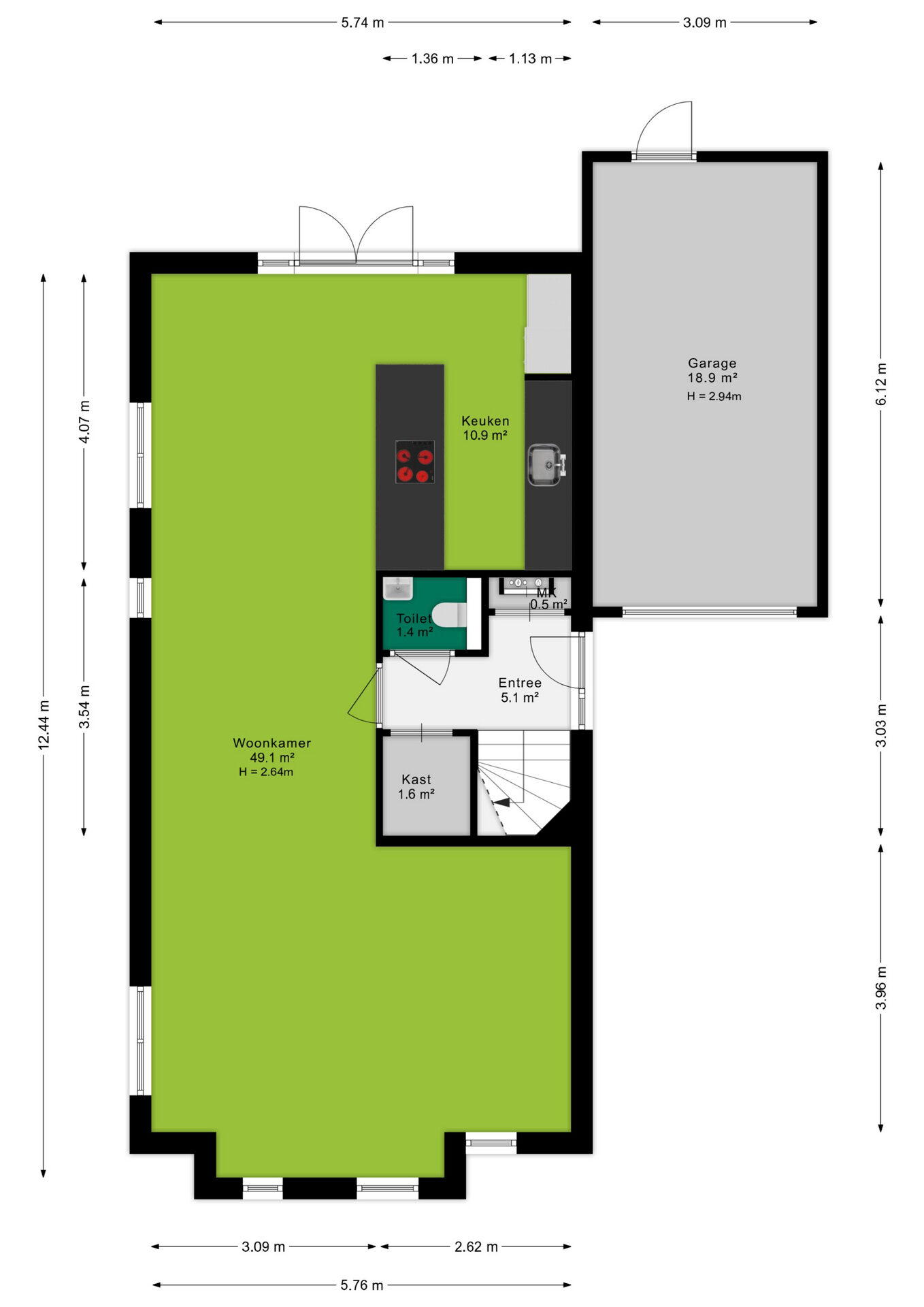
Begane grond
Je komt binnen in de ruime entree met meterkast, vaste kast, toilet en trapopgang. Via de zwarte design deur bereik je de leefruimte. De woonkamer aan de voorzijde is voorzien van een erker en grote raampartijen tot aan de grond, waardoor het daglicht royaal binnenvalt.
De eethoek sluit mooi aan op de luxe open keuken. Deze moderne exclusieve keuken van het merk Barletti heeft veel opbergruimte en is uitgerust met hoogwaardig apparatuur van het merk Miele met onder andere een inductiekookplaat, afzuigkap, oven, koelkast, vriezer en vaatwasser. Via de openslaande deuren bereik je de achtertuin welke is gelegen op het zuidwesten.

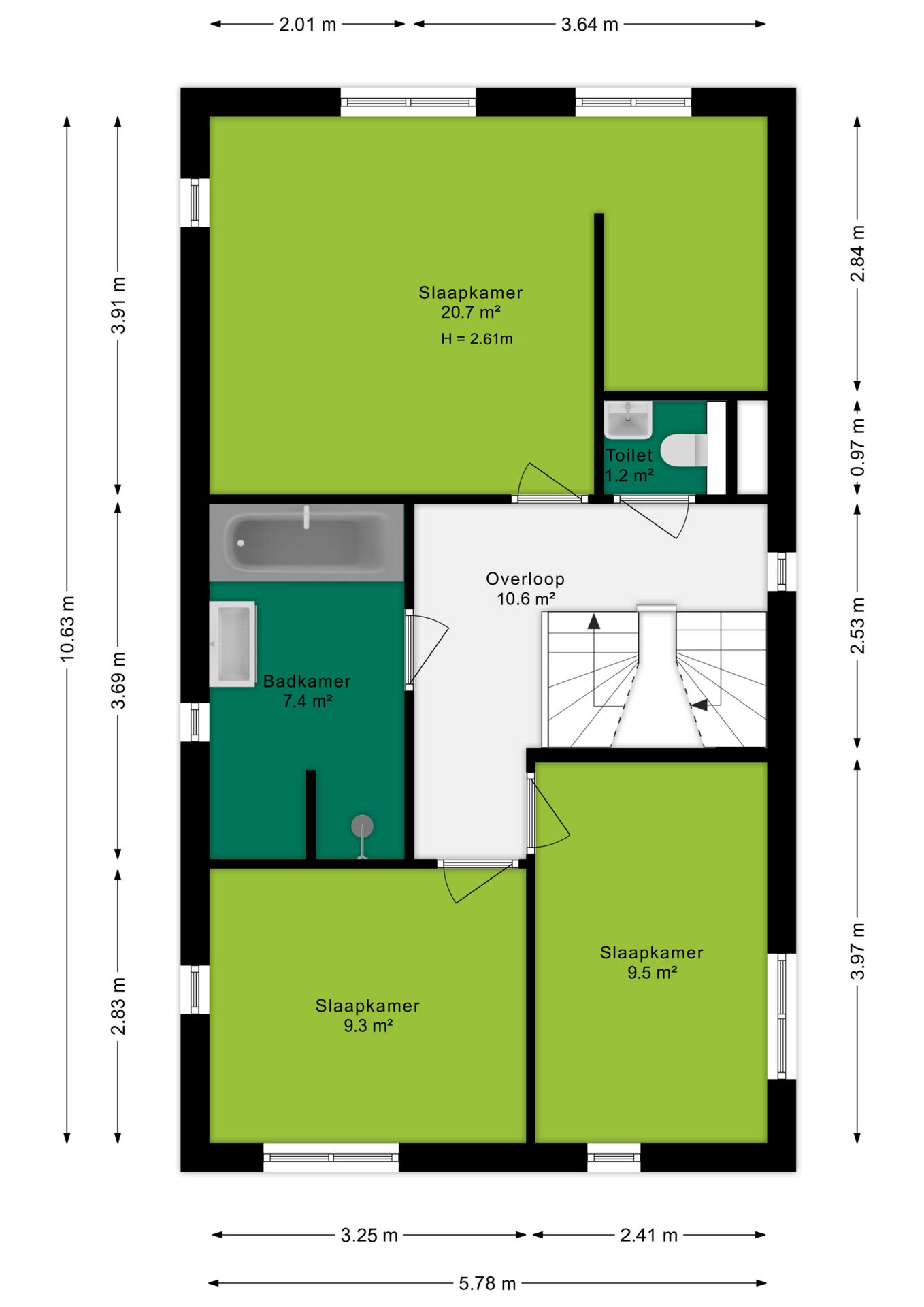
Eerste verdieping
Op de eerste verdieping bevinden zich drie ruime slaapkamers van circa 21 m², 10 m² en 9 m². De grootste slaapkamer beschikt over een fijne inloopkast.
De moderne badkamer is compleet uitgevoerd met inloopdouche, ligbad, wastafelmeubel en designradiator. Er is bovendien ruimte voor meerdere wasmanden, ideaal voor het sorteren van de was.
Het toilet is op deze verdieping separaat aanwezig.

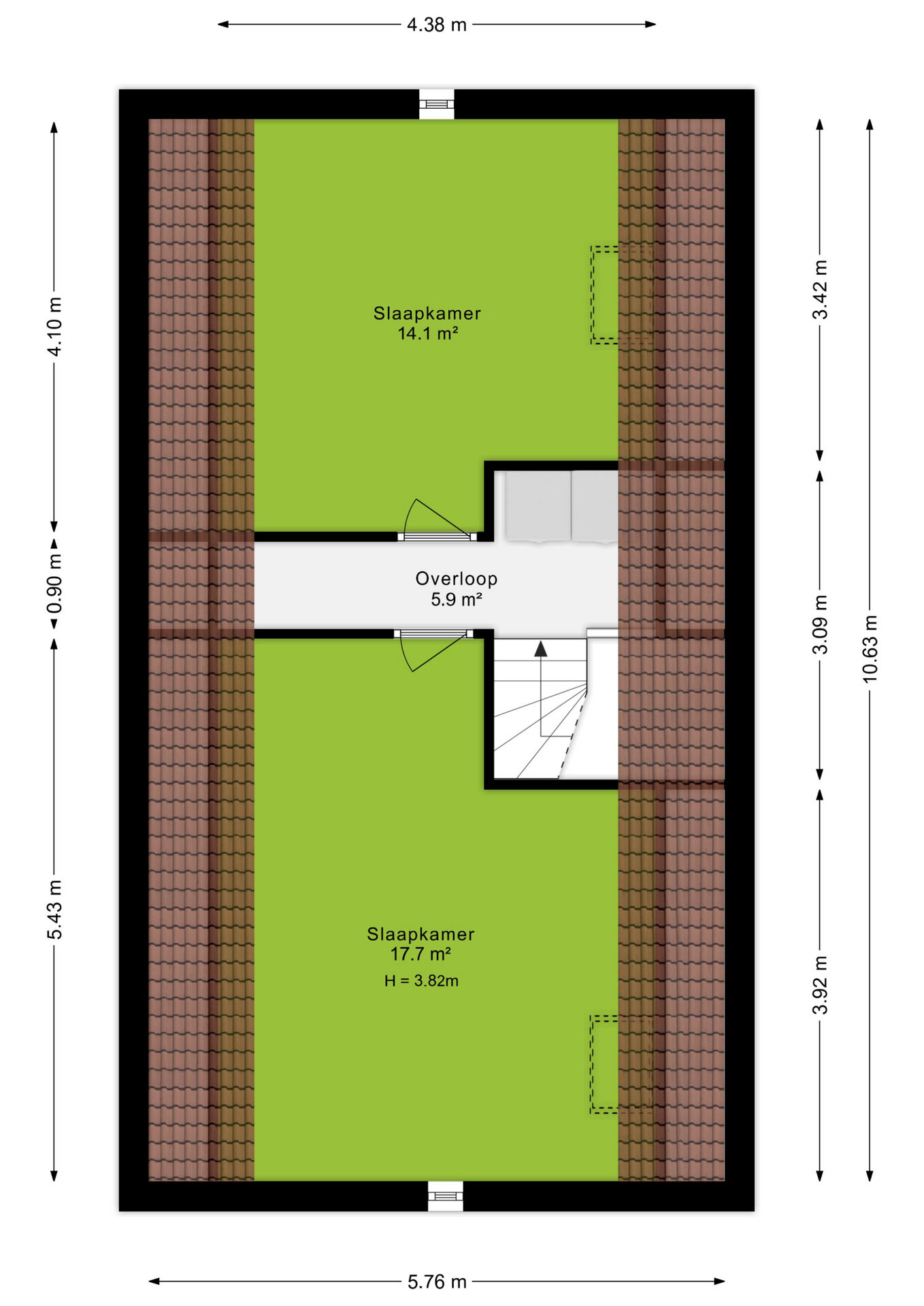
Tweede verdieping
De tweede verdieping biedt nog twee ruime slaapkamers van circa 18 m² en 14 m², beide voorzien van een dakraam. Achter de knieschotten is veel opbergruimte aanwezig. Op de overloop bevinden zich de wasmachine, droger en de technische installaties.

Buitenruimte
De sfeervolle achtertuin ligt op het zuidwesten en is te bereiken via de garage, achterom of via de openslaande deuren vanuit de keuken. De garage (circa 19 m²) biedt plek voor een auto, fietsen of tuingereedschap. Dankzij het zonnescherm (5x3 meter) kun je op warme dagen ook in de schaduw genieten van de tuin.

Samenvatting
Een instapklare, vrijstaande woning met vijf slaapkamers, luxe afwerking, energielabel A+++, garage en een zonnige tuin op het zuidwesten. De ligging in Veenendaal-Oost, dichtbij winkels, natuur en uitvalswegen, maakt dit een ideale woning voor gezinnen die duurzaam en royaal willen wonen.

Koopovereenkomst:
Bij de verkoop zal een standaard NVM-koopovereenkomst worden gehanteerd.

Bij aankoop zonder financieringsvoorbehoud geldt een termijn van zes weken na het opstellen van de koopovereenkomst voor het storten van de waarborgsom of bankgarantie.

Deze informatie is met zorg samengesteld. Er wordt geen aansprakelijkheid aanvaard voor eventuele onvolledigheden of onjuistheden. Alle opgegeven maten en oppervlakten zijn indicatief.
+ toon meer
3907 HA, Veenendaal

Veenraden 127

Zaterdag 2 augustus 10:00 - 12:00 uur

€ 1.075.000 k.k.
ditters makelaars veenendaal
Kopen
Financiële mogelijkheden

Waardecheck

Onze makelaars kijken naar de lokale markt en vergelijkbare woningen in jouw buurt om een goede schatting te geven.
Onze makelaars kijken naar de lokale markt en vergelijkbare woningen in jouw buurt om een goede schatting te geven.
Goed om te weten: deze waardecheck is vrijblijvend en geheel kosteloos
Onafhankelijk

Hypotheekadvies

We helpen je met het vergelijken van aanbiedingen van verschillende banken, zodat je de beste deal krijgt. 
Wij staan klaar om je te begeleiden, zodat je met vertrouwen de juiste hypotheek kunt kiezen.
Goed om te weten: dit adviesgesprek is vrijblijvend en geheel kosteloos

Wij helpen jou bij de keuze van de juiste polis.

Bij een onbezorgde toekomst horen ook goede verzekeringen die uitkeren bij bijvoorbeeld ziekte, schade of diefstal. Onze assurantieadviseurs helpen je bij de keuze van de juiste polis. In heldere taal.

Diverse verzekeringen

  • Opstalverzekering
  • Aansprakelijkheidsverzekering
  • Zorgverzekering
  • Reisverzekering

Locatie

Belangrijke documenten

Meetrapport

Alle afmetingen van de woning duidelijk op een rij, inclusief totale oppervlakte.

Brochure

Bekijk hier alle details van de woning, compleet met foto's en beschrijvingen.

Kadastrale kaart

Lijst van zaken

Overzicht van de zaken die achterblijven of worden meegenomen door de huidige bewoners.

Vragenlijst deelb

Hier deelt de verkoper belangrijke informatie over de staat en bijzonderheden van de woning.

Vragenlijst deelc

Hier deelt de verkoper belangrijke informatie over de staat en bijzonderheden van de woning.

Misschien interessant voor jou

Blijf op de hoogte

Ontvang als eerste updates over nieuw aanbod en mis geen enkele kans om jouw droomwoning te vinden.

Gratis waardebepaling of verkoopgesprek

Met de vrijblijvende waardecheck weet je snel waar je aan toe bent. Onze makelaars kijken naar de lokale markt en vergelijkbare woningen in jouw buurt om een goede schatting te geven.