Omschrijving

Deze fraaie twee-onder-een-kapwoning uit 1955 combineert karakter met comfort. De woning beschikt over een moderne halfopen keuken, vier slaapkamers, een diepe zonnige achtertuin op het zuidoosten en zowel een garage als een extra berging. Dankzij energielabel C en het ruime perceel van 223 m² woon je hier comfortabel op een centrale locatie in Veenendaal.

Ligging
De woning ligt in de populaire wijk ’t Hoorntje, aan de rand van het centrum van Veenendaal. Je woont hier rustig, maar met alle voorzieningen dichtbij. De supermarkt is om de hoek en binnen vijf minuten fietsen sta je in het levendige centrum of bij meerdere scholen. Dankzij de snelle aansluiting op de A12 en goede OV-verbindingen ben je ook met de auto of bus snel onderweg richting omliggende steden. Een ideale woonomgeving voor wie rust en gemak wil combineren.

Pluspunten
- Moderne halfopen keuken met inductiekookplaat
- Diepe tuin op het zuidoosten
- Eigen oprit en openbaar parkeren voor de deur
- Balkon met uitzicht over de tuin
- Vier slaapkamers, waaronder één met dakkapel
- Garage én ruime berging in de achtertuin
- Energielabel C

Indeling
Begane grond
Via de hal heb je toegang tot het toilet en deuren naar zowel de keuken als de woonkamer.
De moderne halfopen keuken biedt veel opbergruimte en is uitgerust met een inductiekookplaat, afzuigkap en een aansluiting voor een vaatwasser. Vanuit de keuken loop je via de openslaande deur direct de tuin in.

De woonkamer is ruim en licht dankzij de grote raampartijen. Er is genoeg plek voor zowel een zithoek als een eethoek, waardoor dit een fijne leefruimte vormt.

Eerste verdieping
Op de eerste verdieping bevinden zich drie slaapkamers van circa 13 m², 9 m² en 5 m².
De slaapkamer aan de achterzijde beschikt over een deur naar het balkon, dat uitkijkt over de tuin en een prettige plek biedt om even buiten te zitten.

De badkamer heeft een moderne uitstraling en is voorzien van een ligbad met douchefunctie en een wasmachineaansluiting.

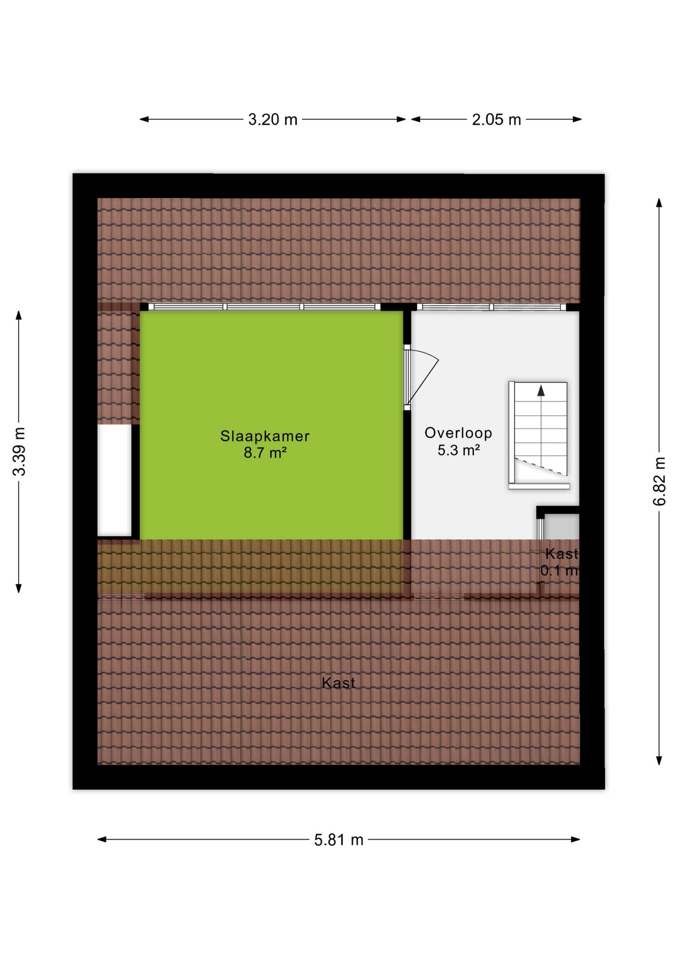
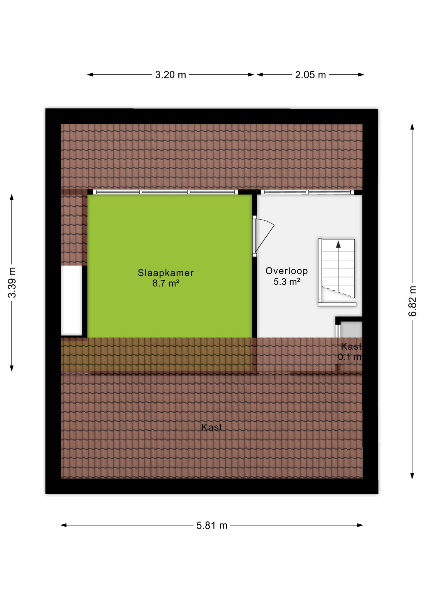
Tweede verdieping
Op de tweede verdieping bereik je via de overloop de vierde slaapkamer, met een oppervlakte van circa 9 m². Deze kamer is dankzij de royale dakkapel opvallend licht en heeft een prettige hoogte, waardoor de ruimte extra ruimtelijk aanvoelt.
Ideaal als comfortabele extra slaapkamer, maar ook uitstekend geschikt als rustige werkplek of inspirerende hobbykamer.

Buitenruimte
De diepe achtertuin ligt op het zuidoosten, waardoor je veel zon hebt. Er is genoeg ruimte voor meerdere zitplekken, groen en speelruimte. Direct aan de keuken vind je een afdak, gevolgd door een berging en garage. Naast de berging is er een vijver met vissen. Aan de voorzijde ligt een voortuin met eigen oprit, zodat je altijd privé kunt parkeren.

Samenvatting
Een charmante en complete twee-onder-een-kapwoning met vier slaapkamers, moderne keuken, diepe tuin en eigen oprit. De ligging in ’t Hoorntje, dicht bij winkels, scholen en het centrum van Veenendaal, maakt dit een ideale woonplek voor gezinnen of stellen die ruimte en comfort zoeken.

Koopovereenkomst:
Bij de verkoop zal een standaard NVM-koopovereenkomst worden gehanteerd.
Bij woningen ouder dan 20 jaar worden de volgende clausules opgenomen:

Asbestclausule
Ouderdomsclausule

Bij aankoop zonder financieringsvoorbehoud geldt een termijn van zes weken na het opstellen van de koopovereenkomst voor het storten van de waarborgsom of bankgarantie.

Deze informatie is met zorg samengesteld. Er wordt geen aansprakelijkheid aanvaard voor eventuele onvolledigheden of onjuistheden. Alle opgegeven maten en oppervlakten zijn indicatief.
+ toon meer

Video

3905 ZS, Veenendaal

Dahliastraat 44

Zaterdag 2 augustus 10:00 - 12:00 uur

€ 450.000 k.k.
ditters makelaars veenendaal
Kopen
Financiële mogelijkheden

Waardecheck

Onze makelaars kijken naar de lokale markt en vergelijkbare woningen in jouw buurt om een goede schatting te geven.
Onze makelaars kijken naar de lokale markt en vergelijkbare woningen in jouw buurt om een goede schatting te geven.
Goed om te weten: deze waardecheck is vrijblijvend en geheel kosteloos
Onafhankelijk

Hypotheekadvies

We helpen je met het vergelijken van aanbiedingen van verschillende banken, zodat je de beste deal krijgt. 
Wij staan klaar om je te begeleiden, zodat je met vertrouwen de juiste hypotheek kunt kiezen.
Goed om te weten: dit adviesgesprek is vrijblijvend en geheel kosteloos

Wij helpen jou bij de keuze van de juiste polis.

Bij een onbezorgde toekomst horen ook goede verzekeringen die uitkeren bij bijvoorbeeld ziekte, schade of diefstal. Onze assurantieadviseurs helpen je bij de keuze van de juiste polis. In heldere taal.

Diverse verzekeringen

  • Opstalverzekering
  • Aansprakelijkheidsverzekering
  • Zorgverzekering
  • Reisverzekering

Locatie

Plattegronden

Klik op de plattegrond voor een grote weergave

Belangrijke documenten

Meetrapport

Alle afmetingen van de woning duidelijk op een rij, inclusief totale oppervlakte.

Lijst van zaken

Overzicht van de zaken die achterblijven of worden meegenomen door de huidige bewoners.

Vragenlijst deelc.

Hier deelt de verkoper belangrijke informatie over de staat en bijzonderheden van de woning.

Brochure

Bekijk hier alle details van de woning, compleet met foto's en beschrijvingen.

Kadastrale kaart

Vragenlijst deelb.

Hier deelt de verkoper belangrijke informatie over de staat en bijzonderheden van de woning.

Misschien interessant voor jou

Blijf op de hoogte

Ontvang als eerste updates over nieuw aanbod en mis geen enkele kans om jouw droomwoning te vinden.

Gratis waardebepaling of verkoopgesprek

Met de vrijblijvende waardecheck weet je snel waar je aan toe bent. Onze makelaars kijken naar de lokale markt en vergelijkbare woningen in jouw buurt om een goede schatting te geven.