Omschrijving

Deze fraaie en zeer verzorgde hoekwoning aan de Dahliastraat 89 in Veenendaal biedt volop ruimte en comfort. De woning beschikt over een ruime woonkamer met een extra kamer, een prettige keuken, vier volwaardige slaapkamers, een royale badkamer en een grote achtertuin op het westen met daarin een vrijstaande stenen garage met aangebouwde veranda. Aan de woning is tevens een praktische berging aangebouwd voor het opbergen van tuingereedschap en de BBQ. Daarnaast is de begane grond voorzien van vloerverwarming, wat zorgt voor extra wooncomfort. De 13 zonnepanelen zorgen voor een lage energierekening.

De woning ligt in de populaire wijk ’t Hoorntje, aan de rand van het centrum van Veenendaal. Je woont hier rustig, maar met alle voorzieningen dichtbij. De supermarkt is om de hoek en binnen vijf minuten fietsen sta je in het levendige centrum of bij meerdere scholen. Dankzij de snelle aansluiting op de A12 en goede OV-verbindingen ben je ook met de auto of bus snel onderweg richting omliggende steden. Een ideale woonomgeving voor wie rust en gemak wil combineren.

Begane grond
Via de entree met toilet, meterkast en trapopgang betreed je de woning. Vanuit hier kom je in de ruime en lichte woonkamer van 26 m², waar met gemak een grote hoekbank én een gezellige zithoek geplaatst kunnen worden. De grote raampartijen aan de achterzijde zorgen voor een prettige lichtinval. Er zijn in 2025 nieuwe dubbele deuren geplaatst en alle ruiten op de begane grond zijn vervangen door HR++ zonwerend glas, wat bijdraagt aan extra comfort en een aangenaam binnenklimaat.

Aansluitend is via een doorbraak een extra kamer van 9 m² bereikbaar. Deze veelzijdige ruimte is uitstekend te gebruiken als werkplek, hobbyruimte of speelkamer. Centraal in de woning bevindt zich het eetgedeelte, met aansluitend de halfopen L-vormige keuken van 6,4 m². De keuken is uitgevoerd met lichte kastfronten en een lichtgrijs werkblad en beschikt over diverse inbouwapparatuur, waaronder een (inductie)kookplaat, afzuigkap, combi-oven, koelkast en vaatwasser.

Eerste verdieping
De overloop biedt toegang tot alle vertrekken. Hier bevinden zich drie slaapkamers van 5,3 m², 9,6 m² en 10,7 m². Alle kamers genieten van een fijne lichtinval, waarbij de twee slaapkamers aan de achterzijde bovendien zijn voorzien van een praktische inbouwkast.

De badkamer van 5,3 m² is stijlvol afgewerkt met witte en zwarte tegels en beschikt over een dubbel wastafelmeubel, inloopdouche en toilet. Een te openen raam zorgt voor natuurlijke ventilatie en extra comfort.

Tweede verdieping
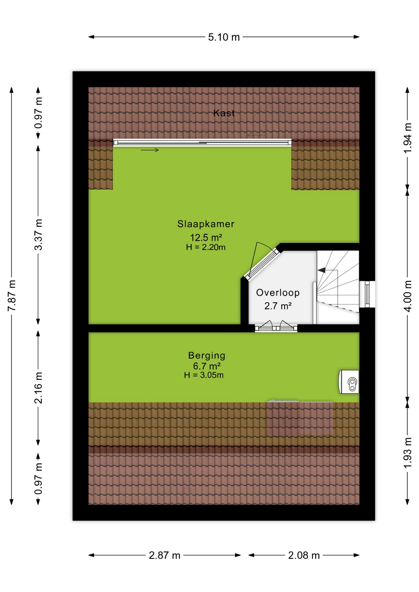
Via een vaste trap bereik je de tweede verdieping met een vierde slaapkamer van 12,5 m². Dankzij de dakkapel met kunststof kozijnen voelt deze ruimte licht en ruim aan. Daarnaast is er een praktische berging van 5,7 m² met aansluitingen voor wasmachine en droger.

Buitenruimte
De ruime achtertuin op het westen biedt volop mogelijkheden en is ideaal voor zonliefhebbers. Er is voldoende ruimte voor meerdere zithoeken, een speelgedeelte voor kinderen en een veranda (gerealiseerd in 2020). Vanuit de veranda is er directe toegang tot de garage, perfect voor het stallen van fietsen en het opbergen van tuingereedschap. Tevens bevindt er een handige achterom, ideaal voor het verplaatsen van de containers.

Bijzonderheden
- Bouwjaar 1995
- Woonoppervlakte 114 m²
- Verwarming CV-ketel Nefit (2021)
- Warm water CV-ketel Nefit (2021)
- Isolatie: volledig geïsoleerd
- Energielabel: A
- 13 Zonnepanelen
- Tuinligging: west
- Aanvaarding in overleg

Koopovereenkomst:
Bij de verkoop zal er een standaard NVM koopovereenkomst worden gehanteerd.
Bij woningen welke ouder zijn dan 20 jaar, worden de volgende clausules opgenomen in de koopovereenkomst:
- Asbestclausule;
- Ouderdomsclausule.

Koop je de woning zonder voorbehoud van financiering? Dan zullen wij een termijn hanteren van 6 weken na het opstellen van de koopovereenkomst voor het storten van de bankgarantie/waarborgsom.
+ toon meer

Video

3905 ZP, Veenendaal

Dahliastraat 89

Zaterdag 2 augustus 10:00 - 12:00 uur

€ 525.000 k.k.
ditters makelaars veenendaal
Kopen

Wat is jouw woning écht waard bij Ditters?

Waardecheck

Wij combineren lokale marktkennis met actuele data en ons grote zoekersbestand in de regio.

Je krijgt niet alleen een waarde, maar inzicht in hoe je de maximale verkoopopbrengst kunt realiseren.

Onze aanpak is strategisch, transparant en volledig afgestemd op jouw situatie.

Goed om te weten: deze waardecheck is vrijblijvend en geheel kosteloos
Onafhankelijk

Hypotheekadvies

We helpen je met het vergelijken van aanbiedingen van verschillende banken, zodat je de beste deal krijgt. 
Wij staan klaar om je te begeleiden, zodat je met vertrouwen de juiste hypotheek kunt kiezen.
Goed om te weten: dit adviesgesprek is vrijblijvend en geheel kosteloos

Wij helpen jou bij de keuze van de juiste polis.

Bij een onbezorgde toekomst horen ook goede verzekeringen die uitkeren bij bijvoorbeeld ziekte, schade of diefstal. Onze assurantieadviseurs helpen je bij de keuze van de juiste polis. In heldere taal.

Diverse verzekeringen

  • Opstalverzekering
  • Aansprakelijkheidsverzekering
  • Zorgverzekering
  • Reisverzekering

Locatie

Plattegronden

Klik op de plattegrond voor een grote weergave

Belangrijke documenten

Brochure

Bekijk hier alle details van de woning, compleet met foto's en beschrijvingen.

Lijst van zaken

Overzicht van de zaken die achterblijven of worden meegenomen door de huidige bewoners.

Vragenlijst

Hier deelt de verkoper belangrijke informatie over de staat en bijzonderheden van de woning.

Vragenlijst c

Hier deelt de verkoper belangrijke informatie over de staat en bijzonderheden van de woning.

Misschien interessant voor jou

Blijf op de hoogte

Ontvang als eerste updates over nieuw aanbod en mis geen enkele kans om jouw droomwoning te vinden.

Gratis waardebepaling of verkoopgesprek

Met de vrijblijvende waardecheck weet je snel waar je aan toe bent. Onze makelaars kijken naar de lokale markt en vergelijkbare woningen in jouw buurt om een goede schatting te geven.