Omschrijving

Zoek jij een zeer goed onderhouden uitgebouwde en karakteristieke jaren '30 twee-onder-een-kapwoning met o.a. 107 m² woonoppervlakte en 4 slaapkamers? Heb jij geen zin om te klussen en wil je graag een comfortabele en goed uitgeruste gezinswoning met een fraaie leef-/woonkeuken, diepe en zonnige tuin op het westen en een serre met volop leefruimte? Vind jij comfort belangrijk en staat energielabel B, vloerverwarming, airco’s en zonnepanelen hoog op jouw wensenlijstje?

Dan is deze woning aan De Savornin Lohmanstraat 76 echt iets voor jou!

Belangrijkste kenmerken:
- Parkeren op eigen terrein met afsluitbare- en elektrische toegangspoort (ingang via Bart Poesiasstraat/Bruïneplein)
- Vrij uitzicht aan de voorzijde
- Energielabel B
- Op loopafstand van wijkwinkelcentrum Bruïneplein
- Diepe en zonnige tuin op het westen

Ligging
De woning ligt in een fijne woonomgeving in Veenendaal, op korte afstand van het centrum. Station Veenendaal Centrum bereik je binnen enkele minuten fietsen. Scholen, kinderopvang en een speeltuintje liggen in de directe omgeving. Met de auto ben je binnen circa 10 minuten op de A12, waardoor steden als Utrecht en Arnhem goed bereikbaar zijn. Een prettige combinatie van wonen dichtbij voorzieningen en goede bereikbaarheid.

Indeling
Begane grond
Via de entree kom je in de hal met toegang tot de woonkamer en de trap naar de eerste verdieping. De woonkamer is licht en warm van uitstraling, met ruimte voor een comfortabele zithoek en eventueel een speelhoek voor kinderen. De begane grond is voorzien van vloerverwarming en in de woonkamer is een airco aanwezig voor zowel koeling als verwarming.

De woonkamer loopt over in de moderne woonkeuken, wat zorgt voor een open en gezellige leefruimte. De keuken is ruim opgezet en beschikt over een kookeiland met gasfornuis, spoelbak en vaatwasser. Het eiland biedt ruimte voor barkrukken, ideaal om samen te genieten van een kop koffie of een borrelmoment. De afzuiging is strak verwerkt in het plafond. Daarnaast is er een nis met extra werkblad en kastruimte, perfect als koffiehoek. De combi-oven en extra kastruimte zijn in de wand verwerkt, wat zorgt voor een efficiënte indeling. Vanuit de keuken loop je direct de tuin in.

Aangrenzend aan de keuken ligt de hal met het toilet en de badkamer. Ook vanuit deze hal is er een deur naar de tuin.
De badkamer, met een oppervlakte van circa 6 m², bevindt zich op de begane grond en is modern uitgevoerd. Deze ruimte is uitgerust met een ligbad, een inloopdouche en een wastafel met meubel. De ligging op de begane grond is bijzonder praktisch, vooral voor gezinnen met jonge kinderen.

Eerste verdieping
Via de trap in vanuit de entree kom je op de eerste verdieping met drie slaapkamers. De grootste slaapkamer van circa 11 m² voelt ruim aan door de lichtinval en beschikt over zowel een open inbouwkast als een gesloten kast. Daarnaast is deze kamer voorzien van een wastafel, wat extra praktisch is aangezien de badkamer zich op de begane grond bevindt.

De tweede slaapkamer ligt aan de voorzijde en is voorzien van een dakkapel, waardoor de ruimte optimaal benut wordt. Ook hier is een inbouwkast aanwezig.
De derde slaapkamer van circa 6 m² is flexibel te gebruiken als slaap-, werk- of kleedkamer.

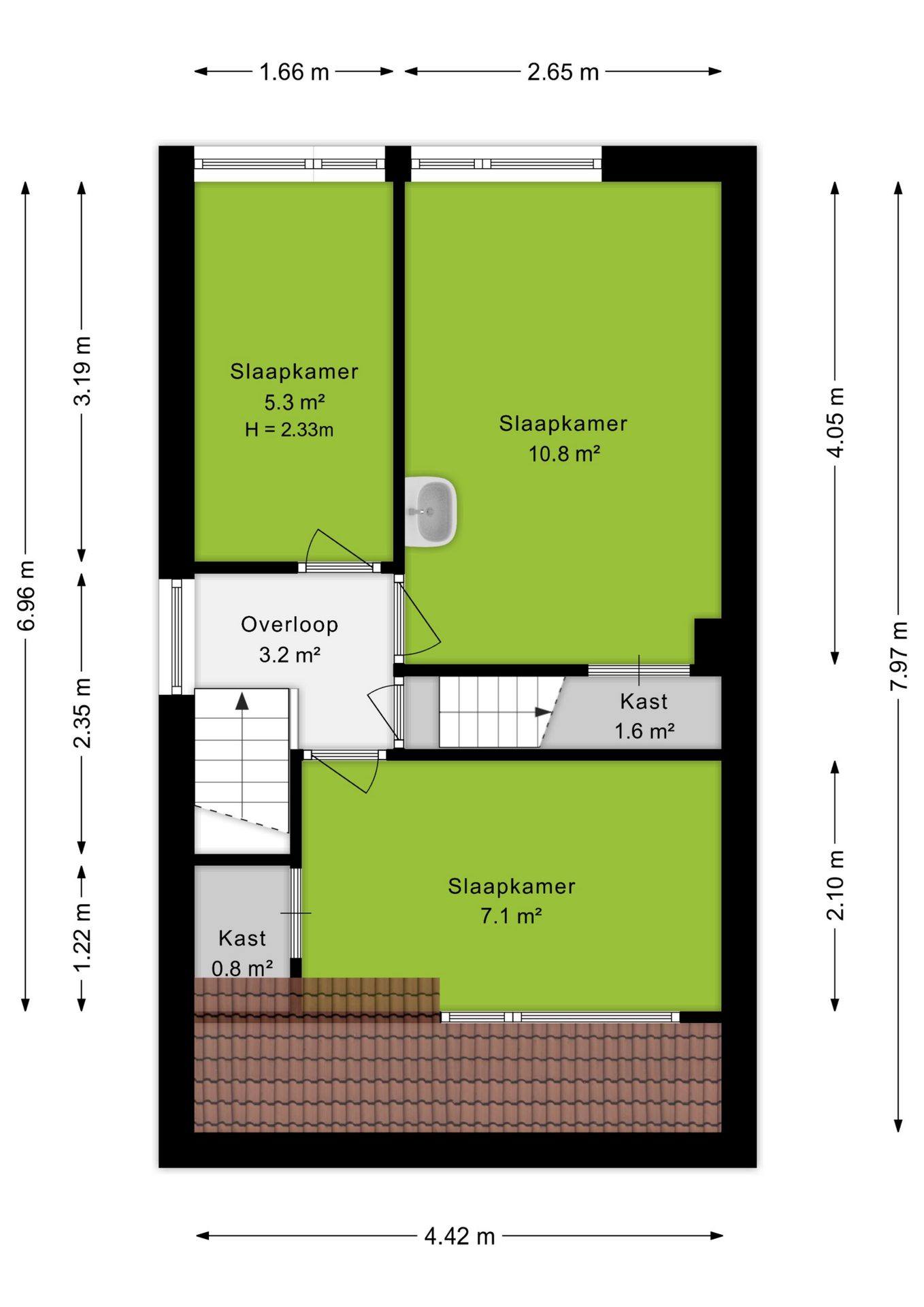
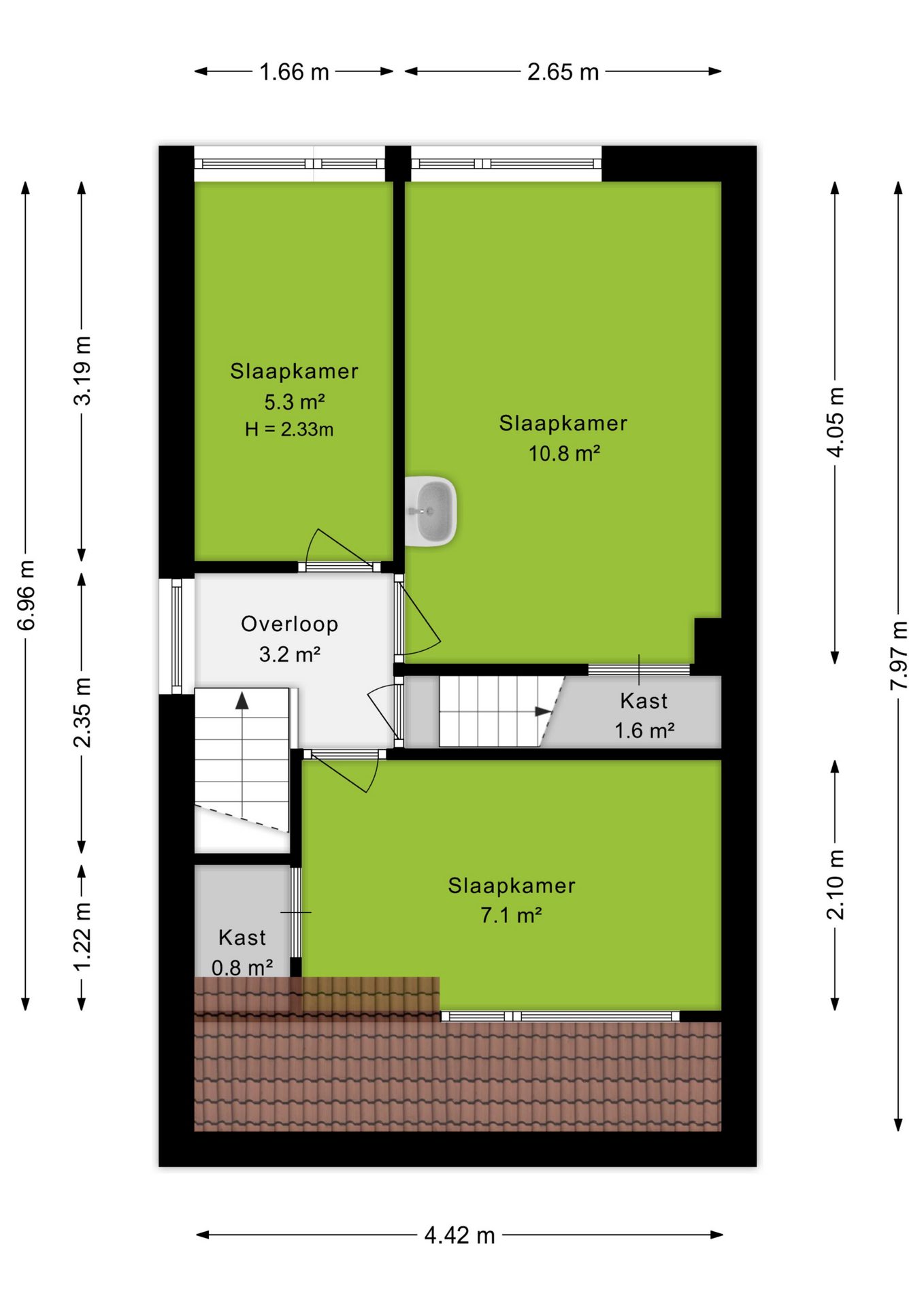
Tweede verdieping
Via de overloop kom je op de zolderverdieping, een verrassend veelzijdige ruimte. Dankzij de dakkapel valt er veel natuurlijk licht naar binnen, wat zorgt voor een aangenaam en ruimtelijk gevoel. Bovendien is er een airconditioning aanwezig die zowel kan koelen als verwarmen, waardoor het hier het hele jaar door comfortabel is. De ingebouwde kastruimte biedt extra opberggemak en maakt deze verdieping ideaal voor diverse doeleinden: denk aan een vierde slaapkamer of een rustige thuiswerkplek.

Buitenruimte
De tuin is op meerdere manieren toegankelijk: via de keuken, via de hal, via de poort aan de voorzijde en via de carport aan de achterzijde. Een absolute eyecatcher is de serre van circa 18 m², direct aan de woning. Deze strak afgewerkte ruimte is perfect om het hele jaar door te ontspannen.
Achter in de tuin bevindt zich een berging met vliering, ideaal voor extra opslag en het stallen van fietsen. De carport biedt de mogelijkheid om de auto overdekt op eigen terrein te parkeren. Ondanks de serre, berging en carport blijft er voldoende tuin over voor zitplekken en speelruimte voor kinderen.

Kenmerken op een rij:
- Moderne woonkeuken met stijlvol kookeiland
- Twee dakkapellen voor extra licht en ruimte
- Royale serre van circa 18 m²
- Praktische carport en berging met vliering
- Vloerverwarming op de begane grond
- Airco in de woonkamer en op zolder (2025)
- Voorzien van 8 zonnepanelen
- Bouwjaar 1935
- Energielabel B
- Dak-, muur- en vloerisolatie
- HR-glas gedeeltelijk

Koopovereenkomst
Bij de verkoop zal een standaard NVM-koopovereenkomst worden gehanteerd.
Bij woningen ouder dan 20 jaar worden de volgende clausules opgenomen:
- Asbestclausule
- Ouderdomsclausule

Bij aankoop zonder financieringsvoorbehoud geldt een termijn van zes weken na het opstellen van de koopovereenkomst voor het storten van de waarborgsom of bankgarantie.

Deze informatie is met zorg samengesteld. Er wordt geen aansprakelijkheid aanvaard voor eventuele onvolledigheden of onjuistheden. Alle opgegeven maten en oppervlakten zijn indicatief.
+ toon meer

Video

3904 AT, Veenendaal

De Savornin Lohmanstraat 76

Zaterdag 2 augustus 10:00 - 12:00 uur

€ 499.000 k.k.
ditters makelaars veenendaal
Kopen
Financiële mogelijkheden

Waardecheck

Onze makelaars kijken naar de lokale markt en vergelijkbare woningen in jouw buurt om een goede schatting te geven.
Onze makelaars kijken naar de lokale markt en vergelijkbare woningen in jouw buurt om een goede schatting te geven.
Goed om te weten: deze waardecheck is vrijblijvend en geheel kosteloos
Onafhankelijk

Hypotheekadvies

We helpen je met het vergelijken van aanbiedingen van verschillende banken, zodat je de beste deal krijgt. 
Wij staan klaar om je te begeleiden, zodat je met vertrouwen de juiste hypotheek kunt kiezen.
Goed om te weten: dit adviesgesprek is vrijblijvend en geheel kosteloos

Wij helpen jou bij de keuze van de juiste polis.

Bij een onbezorgde toekomst horen ook goede verzekeringen die uitkeren bij bijvoorbeeld ziekte, schade of diefstal. Onze assurantieadviseurs helpen je bij de keuze van de juiste polis. In heldere taal.

Diverse verzekeringen

  • Opstalverzekering
  • Aansprakelijkheidsverzekering
  • Zorgverzekering
  • Reisverzekering

Locatie

Plattegronden

Klik op de plattegrond voor een grote weergave

Belangrijke documenten

Vragenlijst b

Hier deelt de verkoper belangrijke informatie over de staat en bijzonderheden van de woning.

Lijst van zaken

Overzicht van de zaken die achterblijven of worden meegenomen door de huidige bewoners.

Vragenlijst c

Hier deelt de verkoper belangrijke informatie over de staat en bijzonderheden van de woning.

Kadastrale kaart

Brochure

Bekijk hier alle details van de woning, compleet met foto's en beschrijvingen.

Misschien interessant voor jou

Blijf op de hoogte

Ontvang als eerste updates over nieuw aanbod en mis geen enkele kans om jouw droomwoning te vinden.

Gratis waardebepaling of verkoopgesprek

Met de vrijblijvende waardecheck weet je snel waar je aan toe bent. Onze makelaars kijken naar de lokale markt en vergelijkbare woningen in jouw buurt om een goede schatting te geven.