Omschrijving

Rust, ruimte en groen – wonen aan de rand van het Dragonderpark

Op een bijzonder rustige locatie, aan een voor auto’s doodlopende zijtak van de Pollux én direct grenzend aan het Dragonderpark, ligt deze goed onderhouden twee-onder-een-kapwoning met garage, royale oprit en zonnige tuin. Pollux 41 combineert een groene, parkachtige woonomgeving met de nabijheid van het centrum van Veenendaal, sportvoorzieningen en uitvalswegen. Een ideale plek voor wie comfortabel wil wonen met alle dagelijkse voorzieningen binnen handbereik.

De woning beschikt over een sfeervolle woonkamer met veel lichtinval, een moderne keuken, vier volwaardige slaapkamers en een nette badkamer. Daarnaast is de woning in de loop der jaren op diverse punten verbeterd en verduurzaamd, waaronder isolatie, zonnepanelen, airco’s, een gemoderniseerde meterkast (3 fasen) en een overkapping in de achtertuin.

Persoonlijke noot van de verkoper:
“Het is een fijn huis met een heerlijke tuin. Je woont hier rustig, maar het centrum is op loopafstand. Het Dragonderpark om de hoek – met een nieuwe speeltuin – maakt het wonen hier extra prettig.”

Indeling:
Begane grond:
Via de ruime voortuin en het verhoogde entreeplateau kom je binnen in de hal met vernieuwde meterkast (3 fasen, 2025), modern toilet (2021) en toegang tot de woonkamer. Het toilet is strak uitgevoerd met een hangend closet en fonteintje.

De sfeervolle Z-vormige woonkamer valt direct op door de grote raampartijen aan zowel de voor- als achterzijde, wat zorgt voor een prettige lichtinval gedurende de hele dag. De woonkamer is afgewerkt met een laminaat vloer en biedt volop ruimte voor een comfortabele zithoek aan de voorzijde en een royale eethoek aan de tuinzijde. Tussen beide zones is extra ruimte voor bijvoorbeeld een speelhoek of werkplek.

De halfopen keuken is modern uitgevoerd en geplaatst in 2006. De keuken is in 2022 gewrapt en voorzien van een nieuw aanrechtblad en afzuigkap, de keuken bestaat uit twee rechte opstellingen, waarvan één schiereiland en is voorzien van greeploze fronten en diverse Bosch inbouwapparatuur, waaronder een inductie kookplaat, vaatwasser, koelkast en combimagnetron. Daarnaast is de woonkamer voorzien van airco voor verkoeling en verwarming.

Eerste verdieping:
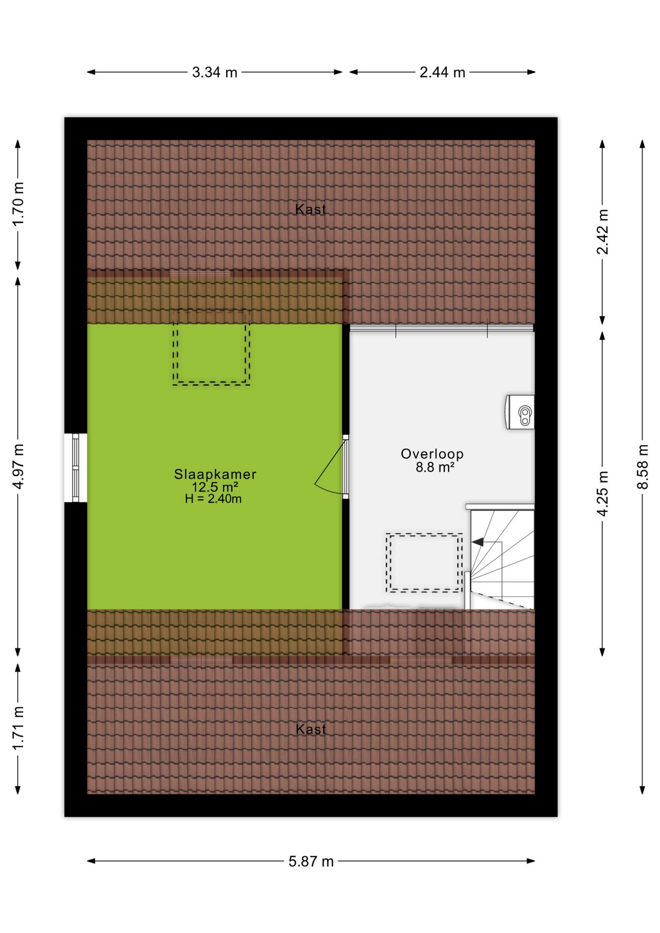
Door middel van de vaste trap kom je bij de eerste verdieping waar de drie slaapkamers gevestigd zijn, maar ook de moderne badkamer. De slaapkamers zijn prettig van formaat en genieten allemaal van grote raampartijen. Alle slaapkamers zijn voorzien van een eigen airco binnen unit voor verkoelen en verwarmen. De badkamer is in 2021 volledig vernieuwd en is volledig betegeld in moderne tinten en beschikt over een inloop douche, brede wastafel met twee kranen, wandcloset toilet en twee ramen voor daglicht en ventilatie.

Tweede verdieping:
Via een vaste trap bereik je de ruime voorzolder met cv-opstelling (Nefit Proline NXT HRC 30, 2025), wasmachineaansluiting en dakraam. De vierde slaapkamer is verrassend ruim, beschikt over veel bergruimte achter knieschotten en is voorzien van een Velux dakraam. Deze verdieping is afgewerkt met vloerbedekking.

Tuin:
De achtertuin is een absolute plus: groen, privacy vol en gelegen op het westen, waardoor je hier tot in de avond van de zon kunt genieten. Het gazon vormt het hart van de tuin, omringd door groen. Achter in de tuin is een fraaie overkapping geplaatst. Via de tuin is de stenen garage (ca. 16 m², voorzien van elektra) bereikbaar. De garage heeft een kanteldeur naar de lange oprit en een loopdeur naar de tuin. Dakgoten en regenwaterafvoeren van de woning zijn vernieuwd in 2024.

Bijzonderheden:
Verwarming: C.V. Ketel (2025)
Warmwater: C.V. Ketel (2025)
Isolatie: Dak-, vloer-, spouw muur isolatie, dubbel glas en HR++.
Bouwjaar: 1971
Tuinligging: Westen
Aanvaarding: In overleg

Extra's:
- Verrassend ruime twee-onder-een-kapwoning met garage en grote oprit
- Vrije, zonnige tuin op het westen met veel privacy en fraaie overkapping
- Rustige ligging aan een autoluwe straat en direct bij het Dragonderpark
- Woonkamer met grote raampartijen en veel lichtinval
- Vier volwaardige slaapkamers
- Spouwmuurisolatie (2013), nageïsoleerde begane grondvloer en grotendeels nageïsoleerde kap
- Meterkast vernieuwd en aangepast naar 3 fasen (2025)
- Wand- en vloerafwerking vernieuwd in 2017 (m.u.v. zolder)
- Badkamer en toilet vernieuwd in 2021
- Dakgoten en regenwaterafvoeren van de woning vernieuwd in 2024
- 13 zonnepanelen geplaatst in 2022
- Airconditioning in de woonkamer en slaapkamers 1e verdieping geplaatst in 2022
- Gezellige woonomgeving met een mix van jong en oud
- Gemeente is bezig met verduurzaming van de wijk
- Dichtbij het centrum, sportvelden en uitvalswegen op korte afstand

Koopovereenkomst:
Bij de verkoop zal er een standaard NVM koopovereenkomst worden gehanteerd. Bij woningen welke ouder zijn dan 20 jaar, worden de volgende clausules opgenomen in de koopovereenkomst:
- Asbestclausule;
- Ouderdomsclausule.

Koop je de woning zonder voorbehoud van financiering? Dan zullen wij een termijn hanteren van 14 dagen na het opstellen van de koopovereenkomst voor het storten van de bankgarantie/waarborgsom.

Deze informatie is door ons met de nodige zorgvuldigheid samengesteld. Onzerzijds wordt echter geen enkele aansprakelijkheid aanvaard voor enige onvolledigheid, onjuistheid of anderszins, dan wel de gevolgen daarvan. Alle opgegeven maten en oppervlakten zijn indicatief.
+ toon meer

Video

3902 TB, Veenendaal

Pollux 41

Zaterdag 2 augustus 10:00 - 12:00 uur

€ 575.000 k.k.
ditters makelaars veenendaal
Kopen
Financiële mogelijkheden

Waardecheck

Onze makelaars kijken naar de lokale markt en vergelijkbare woningen in jouw buurt om een goede schatting te geven.
Onze makelaars kijken naar de lokale markt en vergelijkbare woningen in jouw buurt om een goede schatting te geven.
Goed om te weten: deze waardecheck is vrijblijvend en geheel kosteloos
Onafhankelijk

Hypotheekadvies

We helpen je met het vergelijken van aanbiedingen van verschillende banken, zodat je de beste deal krijgt. 
Wij staan klaar om je te begeleiden, zodat je met vertrouwen de juiste hypotheek kunt kiezen.
Goed om te weten: dit adviesgesprek is vrijblijvend en geheel kosteloos

Wij helpen jou bij de keuze van de juiste polis.

Bij een onbezorgde toekomst horen ook goede verzekeringen die uitkeren bij bijvoorbeeld ziekte, schade of diefstal. Onze assurantieadviseurs helpen je bij de keuze van de juiste polis. In heldere taal.

Diverse verzekeringen

  • Opstalverzekering
  • Aansprakelijkheidsverzekering
  • Zorgverzekering
  • Reisverzekering

Locatie

Plattegronden

Klik op de plattegrond voor een grote weergave

Belangrijke documenten

Lijst van zaken

Overzicht van de zaken die achterblijven of worden meegenomen door de huidige bewoners.

Vragenlijst

Hier deelt de verkoper belangrijke informatie over de staat en bijzonderheden van de woning.

Vragenlijst c

Hier deelt de verkoper belangrijke informatie over de staat en bijzonderheden van de woning.

Brochure

Bekijk hier alle details van de woning, compleet met foto's en beschrijvingen.

Misschien interessant voor jou

Blijf op de hoogte

Ontvang als eerste updates over nieuw aanbod en mis geen enkele kans om jouw droomwoning te vinden.

Gratis waardebepaling of verkoopgesprek

Met de vrijblijvende waardecheck weet je snel waar je aan toe bent. Onze makelaars kijken naar de lokale markt en vergelijkbare woningen in jouw buurt om een goede schatting te geven.