Omschrijving

Ben jij op zoek naar een karakteristieke twee-onder-een-kapwoning met o.a. 4 slaapkamers, HR++ beglazingen een moderne en een recent vernieuwde badkamer met vloerverwarming (2023)? Wil jij graag wonen op loopafstand van het winkelcentrum met alle dagelijkse voorzieningen nabij?

Dan is deze unieke woning wellicht iets voor jou!

Belangrijke kenmerken:
- Energielabel D met HR++ beglazing
- Muur-/ vloer- en dakisolatie
- 4 slaapkamers
- Moderne badkamer uit 2023
- Schilderwerk in 2025 uitgevoerd

Indeling:
Begane grond:
Via de entree kom je direct binnen in de lichte woonkamer van 16,4 m². De sfeervolle erker zorgt voor een prettige lichtinval en biedt voldoende ruimte voor een comfortabele hoekbank en een gezellige zithoek. De open haard maakt deze ruimte extra aangenaam tijdens de koude wintermaanden.

Centraal in de woning bevindt zich het eetgedeelte, dat in open verbinding staat met de ruime keuken van 13 m². De keuken is uitgevoerd met zwarte kastfronten en een donker werkblad en is voorzien van diverse inbouwapparatuur, waaronder een gasfornuis, afzuigkap, magnetron, oven, koelkast en vaatwasser. Het toilet bevindt zich in een separate ruimte tegenover de keuken.

Aan de achterzijde van de woning zijn nog twee losse, praktische opbergkasten aanwezig en geven openslaande tuindeuren direct toegang tot de tuin.

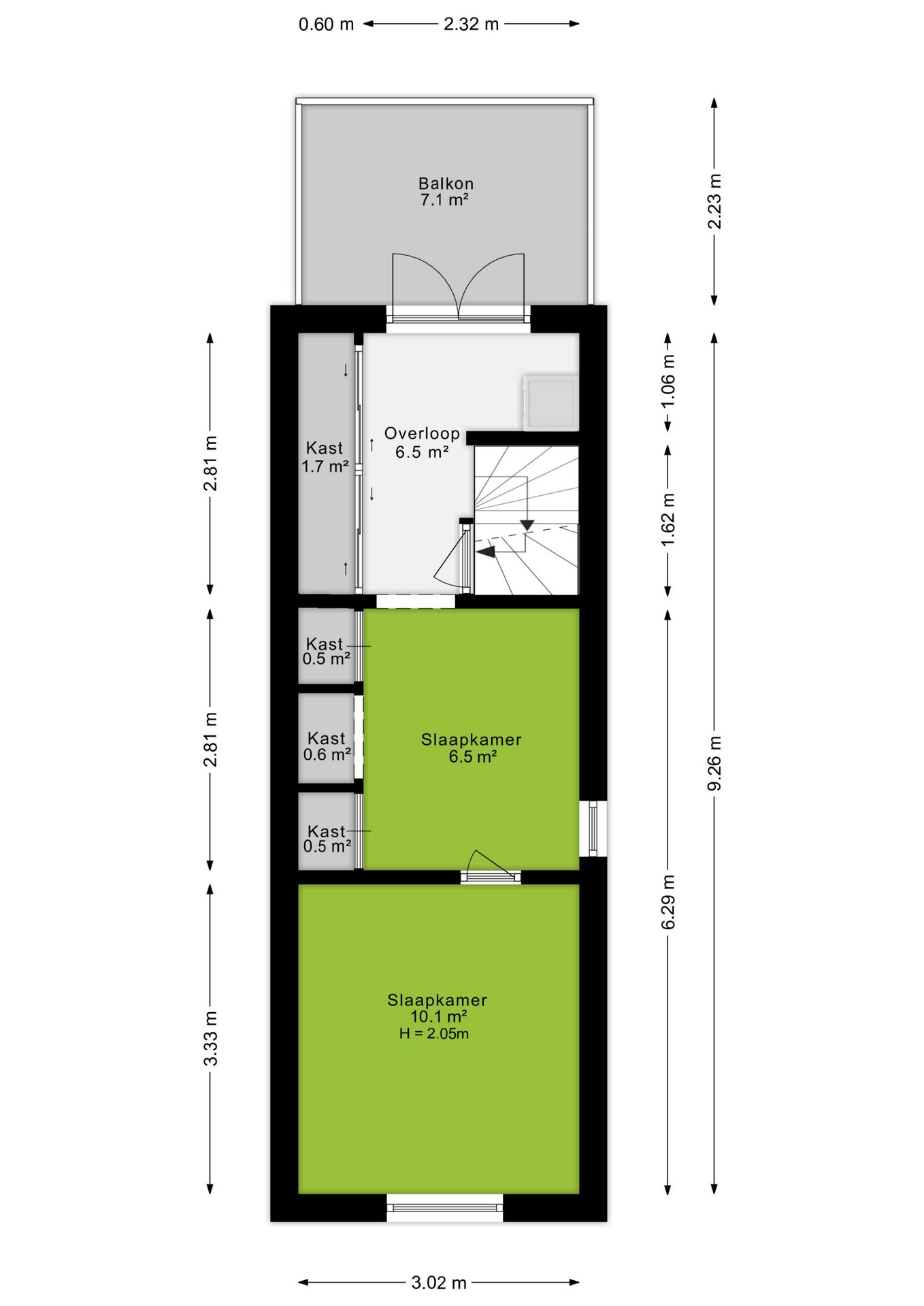
Eerste verdieping:
Door middel van de vaste trap kom je op de overloop, hier bevinden zich de aansluitingen voor wasmachine en droger en een handige inbouwkast. Vanuit de overloop is tevens het balkon van 7,1 m² bereikbaar, dit is een ruime zitplek waar je heerlijk op een beschut plekje kan genieten van het buitenleven.

De verdieping beschikt over een slaapkamer van 6,5 m² met een ingebouwde kastenwand. Vanuit deze kamer is de tweede slaapkamer van 10,1 m² bereikbaar. Beide slaapkamers genieten van een prettige lichtinval.

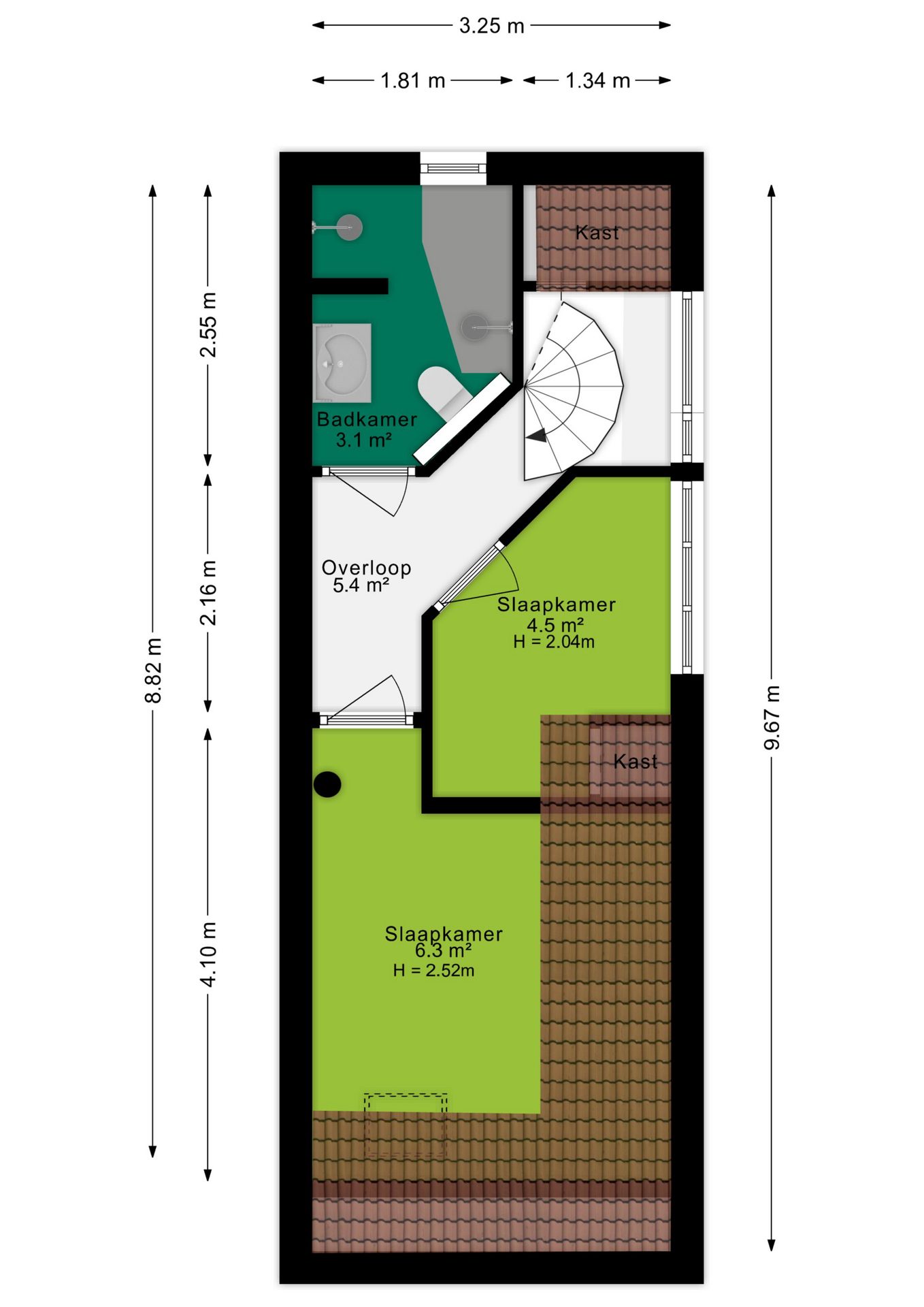
Tweede verdieping:
Via een vaste trap bereik je de tweede verdieping, waar zich nog twee slaapkamers bevinden van respectievelijk 4,5 m² en 6,3 m². De kleinste kamer is voorzien van een dakkapel (vernieuwd in 2023), terwijl de grotere kamer beschikt over een dakraam. Daarnaast bevindt zich op deze verdieping een in 2023 vernieuwde/gemoderniseerde badkamer van 3,1 m², die is voorzien van elektrische vloerverwarming en uitgevoerd in een speelse kleurstelling. De badkamer beschikt over een wastafelmeubel, inloopdouche, ligbad en toilet, wat zorgt voor optimaal comfort.

Buitenruimte:
De zonnige achtertuinen zijn gelegen op het zuidwesten en bieden volop ruimte voor een gezellige loungehoek en een speelplek voor kinderen. Tevens is er een houten berging van 6,1 m², ideaal voor fietsen en tuingereedschap. De tuin is bovendien via de zijkant van de woning bereikbaar, wat extra praktisch is. Een gedeelte van de tuin is bereikbaar via het naastgelegen perceel, met een vastgelegd recht van overpad.

Bijzonderheden:
- Bouwjaar 1905
- Woonoppervlakte 83 m²
- Verwarming en warm water middels een CV-ketel ATAG (2010)
- Isolatie: dak-/ muur- en vloersiolatie en HR-++ glas
- Energielabel: D
- Tuinligging: zuidwest
- Aanvaarding in overleg

Koopovereenkomst:
Bij de verkoop zal er een standaard NVM koopovereenkomst worden gehanteerd.
Bij woningen welke ouder zijn dan 20 jaar, worden de volgende clausules opgenomen in de koopovereenkomst:
- Asbestclausule;
- Ouderdomsclausule.

Koop je de woning zonder voorbehoud van financiering? Dan zullen wij een termijn hanteren van 6 weken na het opstellen van de koopovereenkomst voor het storten van de bankgarantie/waarborgsom.

Deze informatie is door ons met de nodige zorgvuldigheid samengesteld. Onzerzijds wordt echter geen enkele aansprakelijkheid aanvaard voor enige onvolledigheid, onjuistheid of anderszins, dan wel de gevolgen daarvan. Alle opgegeven maten en oppervlakten zijn indicatief.
+ toon meer
3901 RT, Veenendaal

Valleistraat 4

Zaterdag 2 augustus 10:00 - 12:00 uur

€ 389.000 k.k.
ditters makelaars veenendaal
Kopen

Wat is jouw woning écht waard bij Ditters?

Waardecheck

Wij combineren lokale marktkennis met actuele data en ons grote zoekersbestand in de regio.

Je krijgt niet alleen een waarde, maar inzicht in hoe je de maximale verkoopopbrengst kunt realiseren.

Onze aanpak is strategisch, transparant en volledig afgestemd op jouw situatie.

Goed om te weten: deze waardecheck is vrijblijvend en geheel kosteloos
Onafhankelijk

Hypotheekadvies

We helpen je met het vergelijken van aanbiedingen van verschillende banken, zodat je de beste deal krijgt. 
Wij staan klaar om je te begeleiden, zodat je met vertrouwen de juiste hypotheek kunt kiezen.
Goed om te weten: dit adviesgesprek is vrijblijvend en geheel kosteloos

Wij helpen jou bij de keuze van de juiste polis.

Bij een onbezorgde toekomst horen ook goede verzekeringen die uitkeren bij bijvoorbeeld ziekte, schade of diefstal. Onze assurantieadviseurs helpen je bij de keuze van de juiste polis. In heldere taal.

Diverse verzekeringen

  • Opstalverzekering
  • Aansprakelijkheidsverzekering
  • Zorgverzekering
  • Reisverzekering

Buurtinformatie

Veenendaal, Schrijverswijk
Inwoners
Woningen
826
Inwoners
1.485
56
43
Koop / Huur
56% Huur43% Koop
Huishoudens
Eenpersoon
52.1%
Geen kinderen
23.3%
Met kinderen
23.9%
Leeftijdsopbouw in jaren
Buurt Landelijk
17.210.139.120.513.816.312.324.728.218.5

Locatie

Plattegronden

Klik op de plattegrond voor een grote weergave

Belangrijke documenten

Brochure

Bekijk hier alle details van de woning, compleet met foto's en beschrijvingen.

Vragenlijst c

Hier deelt de verkoper belangrijke informatie over de staat en bijzonderheden van de woning.

Lijst van zaken

Overzicht van de zaken die achterblijven of worden meegenomen door de huidige bewoners.

Misschien interessant voor jou

Blijf op de hoogte

Ontvang als eerste updates over nieuw aanbod en mis geen enkele kans om jouw droomwoning te vinden.

Gratis waardebepaling of verkoopgesprek

Met de vrijblijvende waardecheck weet je snel waar je aan toe bent. Onze makelaars kijken naar de lokale markt en vergelijkbare woningen in jouw buurt om een goede schatting te geven.