Omschrijving

Heb jij geen zin om te klussen en zoek jij een instapklare hoekwoning nabij het centrum van Veenendaal waarbij je alleen je koffers hoeft uit te pakken en er direct kan wonen? Wil jij een goed geïsoleerde en zeer fraai afgewerkte hoekwoning waarbij dure verbouwingen zoals de keuken, badkamer, toilet, renovliesbehang recent zijn uitgevoerd? Zoek jij die éne woning waar je de volgende stap in je leven kunt zetten?

Stop dan met zoeken, want dan is Acacialaan 14 wellicht jouw nieuwe plek!

Belangrijkste kenmerken:
- Uitgebouwde hoekwoning met 3 tot 4 slaapkamers
- Hoog afwerkingsniveau – geen kluswerk
- Moderne keuken, badkamer en toilet
- Zonnige tuin op het westen met eigen parkeerplaatsen
- Gelegen op loopafstand van NS-station Veenendaal-Centrum en hartje centrum

Omgeving
Deze prettige gezinswoning met mogelijkheden ligt op loopafstand van het gezellige centrum van Veenendaal, dat een uitgebreid aanbod aan winkels, horecagelegenheden en (culturele) activiteiten te bieden heeft. In de directe omgeving vind je (basis)scholen, kinderdagverblijf- en BSO locaties, voetbalvelden, het zwembad en sportscholen. Treinstation Veenendaal-Centrum ligt op loopafstand en via de nabijgelegen Rondweg-West zijn de autosnelwegen A12/A30 en A15 snel bereikbaar!

Kortom: een fraai woonhuis met een hoog afwerkingsniveau en gelegen op een absolute toplocatie nabij voorzieningen.

Begane grond:
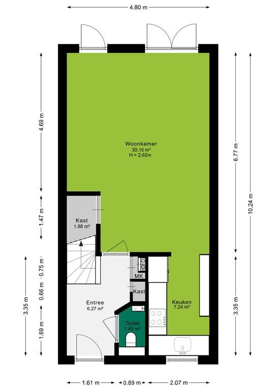
Via de entree kom je bij de ruime hal met meterkast, berging, toiletruimte, trapopgang en deur naar de woonkamer. De woonkamer is tuingericht en beschikt door de dubbele openslaande tuindeuren met grote raampartijen over veel daglichtinval. Centraal tussen de woonkamer en keuken bevindt zich het eetgedeelte. Hier is meer dan voldoende ruimte voor een grote eettafel met stoelen. Een fijne plek om met familie en/of vrienden te genieten van een hapje, drankje en spelletje! Aan de voorzijde van de woning is de keuken gesitueerd. De ruime keukenruimte is uitgevoerd met een luxe en complete inbouwkeuken incl. diverse apparatuur zoals een inductiekookplaat, vaatwasser, combi-oven en een vrijstaande Amerikaanse koel-vriescombinatie. Daarnaast is er veel kastruimte en werkruimte.

1e Verdieping:
Via de vaste trap kom je bij de overloop met toegang tot drie slaapkamers en de badkamer. Twee slaapkamers zijn gelegen aan de achterzijde van de woning en zijn circa 6 en 12 m². De derde slaapkamer en de badkamer zijn aan de voorzijde gesitueerd. De badkamer is neutraal en in lichte tinten uitgevoerd. Aanwezig is een wastafel met bergmeubel, 2e toilet, een ligbad, een ruime inloopdouche en een te openen raam voor de gewenste natuurlijke ventilatie.

2e Verdieping:
Deze etage is ook via een vaste trap te bereiken. Een verdieping die volledig naar eigen wensen gebruikt kan worden. Heb je meer slaapkamers nodig? Dan is dat op de 2e verdieping met kleine aanpassingen mogelijk. Op deze verdieping bevinden zich ook aansluitingen voor de wasmachine, droger en Cv-ketel.

Tuin:
De achtertuin is gesitueerd op het westen, is verzorgd aangelegd en biedt meer dan voldoende ruimte voor meerdere zitplekken. Uiteraard is er ook aan groen gedacht. De borders zijn voorzien van diverse soorten beplanting, de schutting is voorzien van een klimop en er ligt gras. De woning is aan de achterzijde voorzien van een buitenkraan. Aan de achterzijde staat een houten berging en een carport voor het parkeren van je eigen auto op eigen terrein. Achter de woning is een rustig hofje met extra parkeergelegenheid waar alleen aanwonenden komen. Een ideale plek waar kinderen rustig kunnen spelen. Ook via de voortuin is de achtertuin te bereiken, via een pad langs het huis en een af te sluiten poort.

Kenmerken:
- Bouwjaar 2019;
- Woonoppervlakte 108 m²;
- Drie tot vier slaapkamers;
- Energielabel A;
- Luxe en moderne keuken, badkamer en toilet;
- Hoog afwerkingsniveau;
- Openslaande tuindeuren met een extra loopdeur naar de achtertuin
- Voorzien van 4 zonnepanelen á 280 Wp
- Vloerverwarming op elke verdieping;
- Verwarming en warm water middels Intergas HR Eco Cv-ketel (2019);

Koopovereenkomst:
Koopt u de woning zonder voorbehoud van financiering? Dan zullen wij een termijn hanteren van 14 dagen na het opstellen van de koopovereenkomst voor het storten van de bankgarantie/waarborgsom.

Deze informatie is door ons met de nodige zorgvuldigheid samengesteld. Onzerzijds wordt echter geen enkele aansprakelijkheid aanvaard voor enige onvolledigheid, onjuistheid of anderszins, dan wel de gevolgen daarvan. Alle opgegeven maten en oppervlakten zijn indicatief.
+ toon meer
deze woning is Verkocht

Acacialaan 14 Veenendaal

Acacialaan 14

3901 XC, Veenendaal
Ditters open huis: 5 april 2025 10:00 - 12:00 uur
Landelijke Open Huizen Route NVM: 5 april 2025 11:00 uur - 15:00 uur
Vanaf€ 498.750 k.k.

Schakel een aankoopmakelaar in.

Snel handelen helpt je jouw droomhuis te bemachtigen. Zo vergroot je de kans dat je er op tijd bij bent.
Veenendaal
verkocht

Of maak vrijblijvend een zoekprofiel aan.

Vergelijkbare woningen

Hypotheken

Onafhankelijk hypotheekadvies

  • Ligt jouw droomhuis binnen handbereik?
  • Wil je jouw huidige hypotheek verhogen?
  • Is er hypotheekruimte voor verduurzaming?

Blijf op de hoogte

Ontvang als eerste updates over nieuw aanbod en mis geen enkele kans om jouw droomwoning te vinden.

Gratis waardebepaling of verkoopgesprek

Met de vrijblijvende waardecheck weet je snel waar je aan toe bent. Onze makelaars kijken naar de lokale markt en vergelijkbare woningen in jouw buurt om een goede schatting te geven.

Realiseer al jouw woondromen met Ditters

Wij zijn een team van gedreven vastgoedexperts met een passie voor het maken van verbindingen – tussen kopers en verkopers, huurders en verhuurders. Met een frisse kijk op de makelaardij combineren we expertise met creativiteit. Onze makelaars luisteren écht en nemen de tijd om jouw wensen te begrijpen.


Bij Ditters sta je er niet alleen voor. We denken met je mee, begeleiden je in elke stap en zijn altijd bereikbaar voor vragen. Neem gerust contact met ons op – we helpen je graag verder!