Omschrijving

Ben je op zoek naar een woning met potentie en op een uitstekende locatie? Ontdek dan deze charmante tussenwoning in de geliefde Componistenwijk van Veenendaal West.

We presenteren met trots deze eenvoudige, maar veelbelovende woning die naar wens gemoderniseerd kan worden. De woning heeft enig onderhoud nodig, maar geeft jou als nieuwe eigenaar alle vrijheid om jouw toekomstige thuis naar eigen smaak in te richten.

Een groot pluspunt van dit huis is de verrassend diepe en zonnige achtertuin op het westen, waar je tot in de late uurtjes kunt genieten van de zon. De bestaande aangebouwde overkapping met glazen schuifdeuren biedt een prachtige overgang van binnen naar buiten en zorgt voor een fijne leefruimte in elk seizoen.

Binnen biedt de woning de nodige basisfaciliteiten. Zo vind je op de begane grond een gezellige woonkamer met genoeg ruimte voor een comfortabele zithoek en een eettafel. Ernaast ligt een half open keuken die uitkijkt op de achtertuin en die wacht op jouw persoonlijke invulling.

Op de eerste verdieping tref je drie prettig ingedeelde slaapkamers met voldoende daglicht dankzij de raampartijen. De badkamer heeft alle essentiële voorzieningen en kan met wat liefde veranderd worden in een ontspannende plek.
Daarnaast heeft de woning een open zolderruimte met de mogelijkheid om een extra slaapkamer, werkkamer of hobbyruimte te creëren, afgestemd op jouw behoeften en wensen.

De wijk waarin de woning staat, is bekend om zijn prettige leefomgeving en goede bereikbaarheid. Allerlei voorzieningen zoals winkels, scholen en openbaar vervoer zijn snel bereikbaar, terwijl de sfeer van de Componistenwijk gewaarborgd blijft.
Dus, ben je klaar voor een nieuw avontuur en kun je jezelf al zien wonen in deze veelzijdige tussenwoning? Maak dan snel een afspraak voor een bezichtiging en begin met het verwezenlijken van je woondromen in Veenendaal West

In het kort:
- goede ligging ten opzichte van winkels, bos uitvalswegen
- kindvriendelijke omgeving en vlakbij scholen
- diepe zonnige tuin op het westen met houten tuinhuis
- woonkamer met aangebouwde overkapping met glazen schuifdeuren
- veel lichtinval mede dankzij lichtkoepel

Globale indeling:
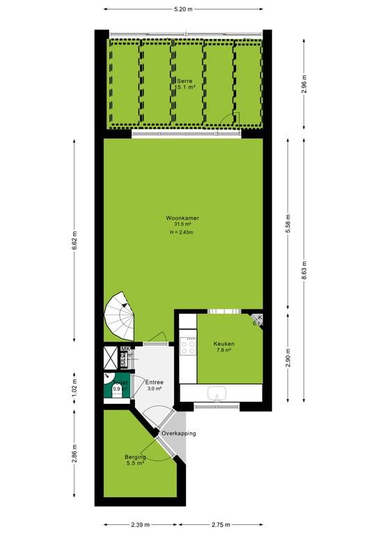
Begane grond:
Voor aan de woning is een stenen berging aangebouwd, via de voordeur betreedt je de hal met een eenvoudige toiletruimte, de meterkast en de trapopgang naar de 1e verdieping.

Woonkamer:
De lichte tuingerichte woonkamer heeft een plavuizenvloer en heeft uitzicht over de achtertuin.
Direct aan de achtergevel is een aluminium overkapping geplaatst die kan worden afgesloten met glazen schuifdeuren.

Keuken:
Aan de voorzijde is de keuken gesitueerd welke in hoekopstelling is opgesteld. De keuken is middels een toog gescheiden van de woonkamer.
- koelkast/vriezer
- keramische kookplaat
- vlakscherm afzuigkap
- oven

Eerste verdieping:
De vaste trap brengt je naar de eerste verdieping. Hier zijn drie slaapkamers. De slaapkamers aan de achterzijde van de woning zijn voor zien van een dakkapel.

Badkamer:
De badkamer is grotendeels betegeld en voorzien van een ligbad, douchecabine, wastafelmeubel met twee wastafels en een toilet. Lichtinval via een dakraam.

Tweede verdieping :
Ook de tweede verdieping is te bereiken via de vaste trap. Ruime opne zolderverdieping met uitstekende mogelijkheid voor het realiseren van een extra s(slaap) kamer. Voor het daglicht is er een klein dakraam en een groot dakraam geplaatst. Ook de aansluiting van de wasmachine bevindt zich op deze zolder en ook de Bosch HR CV-combiketel.

Tuin:
De diepe achtertuin is gelegen op het westen. Hier kunt u heerlijk de hele dag in de zon vertoeven. De tuin is onderhoudsvrij doordat deze geheel uitgevoerd is met tegels. Achterin de tuin staat nog een ruime houten tuinberging. De tuin is via een achterom (achterpad) bereikbaar.

Afmetingen:
Woonkamer 31.5 m²
Keuken 7.8 m²
Slaapkamer 1 10.5 m²
Slaapkamer 2 9.0 m²
Slaapkamer 3 8.9 m²
Badkamer 6.8 m²
Zolder 16.8 m²
Houten tuinhuis 7.2 m²
Stenen berging 5.5 m²

Woonoppervlakte 105 m²
Perceeloppervlakte 169 m²

Bijzonderheden
Verwarming Bosch HR CV combiketel (2009), gedeeltelijk vloerverwarming
Warmwater Bosch HR CV combiketel (2009)
Isolatie Dak, vloer en muurisolatie, gedeeltelijk dubbel glas
Bouwjaar 1989
Tuinligging West
Aanvaarding In overleg

Koopovereenkomst:
Bij de verkoop zal er een standaard NVM koopovereenkomst worden gehanteerd. Bij woningen welke ouder zijn dan 20 jaar, worden de volgende clausules opgenomen in de koopovereenkomst:
- Asbestclausule;
- Ouderdomsclausule;
- Voor deze verkoop is toestemming nodig van de rechtbank.

Koop je de woning zonder voorbehoud van financiering? Dan zullen wij een termijn hanteren van 14 dagen na het opstellen van de koopovereenkomst voor het storten van de bankgarantie/waarborgsom.

Deze informatie is door ons met de nodige zorgvuldigheid samengesteld. Onzerzijds wordt echter geen enkele aansprakelijkheid aanvaard voor enige onvolledigheid, onjuistheid of anderszins, dan wel de gevolgen daarvan. Alle opgegeven maten en oppervlakten zijn indicatief.
+ toon meer
deze woning is Verkocht

Berliozstraat 19 Veenendaal

Berliozstraat 19

3906 BG, Veenendaal
Ditters open huis: 5 april 2025 10:00 - 12:00 uur
Landelijke Open Huizen Route NVM: 5 april 2025 11:00 uur - 15:00 uur
Vanaf€ 375.000 k.k.

Schakel een aankoopmakelaar in.

Snel handelen helpt je jouw droomhuis te bemachtigen. Zo vergroot je de kans dat je er op tijd bij bent.
Veenendaal
verkocht

Of maak vrijblijvend een zoekprofiel aan.

Vergelijkbare woningen

Hypotheken

Onafhankelijk hypotheekadvies

  • Ligt jouw droomhuis binnen handbereik?
  • Wil je jouw huidige hypotheek verhogen?
  • Is er hypotheekruimte voor verduurzaming?

Blijf op de hoogte

Ontvang als eerste updates over nieuw aanbod en mis geen enkele kans om jouw droomwoning te vinden.

Gratis waardebepaling of verkoopgesprek

Met de vrijblijvende waardecheck weet je snel waar je aan toe bent. Onze makelaars kijken naar de lokale markt en vergelijkbare woningen in jouw buurt om een goede schatting te geven.

Realiseer al jouw woondromen met Ditters

Wij zijn een team van gedreven vastgoedexperts met een passie voor het maken van verbindingen – tussen kopers en verkopers, huurders en verhuurders. Met een frisse kijk op de makelaardij combineren we expertise met creativiteit. Onze makelaars luisteren écht en nemen de tijd om jouw wensen te begrijpen.


Bij Ditters sta je er niet alleen voor. We denken met je mee, begeleiden je in elke stap en zijn altijd bereikbaar voor vragen. Neem gerust contact met ons op – we helpen je graag verder!