Omschrijving

Ontdek deze charmante 2-onder-1-kapwoning, perfect gelegen in een geliefde buurt. De woning biedt een royale garage, ideaal voor uw voertuig of extra opslagruimte. Geniet van de overvloed aan natuurlijk licht die elke kamer verlicht en een warme, uitnodigende sfeer creëert.

Met vier ruime slaapkamers is er volop ruimte voor een gezin, een thuiskantoor of een hobbykamer. De locatie is een groot pluspunt: op korte afstand van station Veenendaal-Centrum, waardoor u gemakkelijk toegang heeft tot het openbaar vervoer. Bovendien bevindt het zich dicht bij het dorpscentrum, waar u kunt genieten van lokale winkels, restaurants en voorzieningen.

Alle feiten op een rij:
+ Een 2-onder-1 kapwoning met 4 slaapkamers;
+ Houtkachel in de woonkamer;
+ De slaapkamers beschikken over een dakkapel;
+ Grote tuin op het noordwesten;
+ Veranda in de achtertuin;
+ Ruime garage die tevens van binnenuit te bereiken is;
+ Dichtbij station Veenendaal-Centrum en het dorpscentrum met alle voorzieningen.

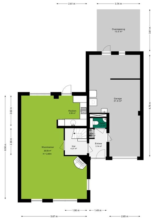
Begane grond
Stap binnen in de woonkamer, waar een overvloed aan natuurlijk licht een uitnodigende ambiance creëert. Centraal in de ruimte staat een houtkachel, die zich perfect leent voor knusse avonden.
De eethoek biedt een ideale plek voor gezellige maaltijden en samenzijn. De lichte keuken, uitgevoerd in een praktische hoekopstelling, combineert ruimte en efficiëntie, waardoor koken een plezierige ervaring wordt.

Eerste verdieping
De overloop biedt toegang tot drie comfortabele slaapkamers. Aan de voorzijde van de woning bevindt zich een ruime slaapkamer van 13 m², naast een slaapkamer van 10 m². Aan de achterzijde vind je nog een slaapkamer van 10 m². De badkamer is uitgerust met een douche, een wastafelmeubel en een toilet, wat zorgt voor gemak en comfort.

Tweede verdieping
Via een vaste trap bereik je de zolderverdieping. Op de overloop is de CV-ketel (2020) geplaatst. Daarnaast vind je hier nog een extra (slaap)kamer, voorzien van een dakraam dat zorgt voor aangename lichtinval. Deze ruimte biedt veelzijdige mogelijkheden, of je nu een extra slaapkamer, een hobbyruimte of opslag nodig hebt.

Exterieur
De tuin, gelegen op het noordwesten, strekt zich uit over een royale 12 meter diep en 10 meter breed. Deze buitenruimte biedt volop mogelijkheden voor ontspanning en recreatie. Een gezellige overkapping nodigt uit tot het genieten van lange zomeravonden, ongeacht het weer. Daarnaast is er een praktische berging aanwezig, ideaal voor het opbergen van tuingereedschap en andere benodigdheden.

Perceeloppervlakte: 300 m²
Woonoppervlakte: 147 m²
Inhoud: 512 m³

Bijzonderheden
Verwarming: CV ketel, Remeha;
Warm water: CV ketel, Remeha;
Isolatie: Volledig geïsoleerd;
Tuinligging: Noordwesten;
Aanvaarding: In overleg.

Koopovereenkomst:
Bij de verkoop zal er een standaard NVM koopovereenkomst worden gehanteerd. Bij woningen welke ouder zijn dan 20 jaar, worden de volgende clausules opgenomen in de koopovereenkomst:
- Asbestclausule;
- Ouderdomsclausule.

Koop je de woning zonder voorbehoud van financiering? Dan zullen wij een termijn hanteren van 14 dagen na het opstellen van de koopovereenkomst voor het storten van de bankgarantie/waarborgsom.

Deze informatie is door ons met de nodige zorgvuldigheid samengesteld. Onzerzijds wordt echter geen enkele aansprakelijkheid aanvaard voor enige onvolledigheid, onjuistheid of anderszins, dan wel de gevolgen daarvan. Alle opgegeven maten en oppervlakten zijn indicatief.
+ toon meer
deze woning is Verkocht

Coniferenlaan 7 Veenendaal

Coniferenlaan 7

3904 KR, Veenendaal
Ditters open huis: 5 april 2025 10:00 - 12:00 uur
Landelijke Open Huizen Route NVM: 5 april 2025 11:00 uur - 15:00 uur
Vanaf€ 595.000 k.k.

Schakel een aankoopmakelaar in.

Snel handelen helpt je jouw droomhuis te bemachtigen. Zo vergroot je de kans dat je er op tijd bij bent.
Veenendaal
verkocht

Of maak vrijblijvend een zoekprofiel aan.

Vergelijkbare woningen

Hypotheken

Onafhankelijk hypotheekadvies

  • Ligt jouw droomhuis binnen handbereik?
  • Wil je jouw huidige hypotheek verhogen?
  • Is er hypotheekruimte voor verduurzaming?

Blijf op de hoogte

Ontvang als eerste updates over nieuw aanbod en mis geen enkele kans om jouw droomwoning te vinden.

Gratis waardebepaling of verkoopgesprek

Met de vrijblijvende waardecheck weet je snel waar je aan toe bent. Onze makelaars kijken naar de lokale markt en vergelijkbare woningen in jouw buurt om een goede schatting te geven.

Realiseer al jouw woondromen met Ditters

Wij zijn een team van gedreven vastgoedexperts met een passie voor het maken van verbindingen – tussen kopers en verkopers, huurders en verhuurders. Met een frisse kijk op de makelaardij combineren we expertise met creativiteit. Onze makelaars luisteren écht en nemen de tijd om jouw wensen te begrijpen.


Bij Ditters sta je er niet alleen voor. We denken met je mee, begeleiden je in elke stap en zijn altijd bereikbaar voor vragen. Neem gerust contact met ons op – we helpen je graag verder!