Omschrijving

OPENHUIS
Dinsdag 23 september, tussen 15.00 tot 17.00 uur, heten wij u van harte welkom op ons kantoor in Veenendaal.
Voor aanvullende documenten of informatie kunt u contact opnemen met ons kantoor.

Instapklare nieuwbouwwoning – gereed voor de toekomst

Ben jij op zoek naar een moderne, energiezuinige woning in een groene en kindvriendelijke wijk? Dan is deze hoekwoning aan de Familie van Damlaan 1 in Veenendaal precies wat je zoekt. Deze woning is extra uniek: de woning is namelijk nog in aanbouw, maar wordt naar verwachting al in december 2025 opgeleverd! De ultieme kans om nieuwbouw te kopen zónder lange wachttijd! De woning wordt opgeleverd met een complete keuken, modern sanitair, een uitbouw van 2,4 meter op de begane grond en een oprit met ruimte voor twee auto's.

Met een woonoppervlakte van 115 m², vier slaapkamers en een complete afwerking, biedt deze woning ruimte en comfort voor het hele gezin. En met een energielabel A+++, DEVO-aansluiting en zonnepanelen ben je bovendien klaar voor een duurzame toekomst.

De wijk: Groen, rustig en alles binnen handbereik
Deze woning ligt in de populaire wijk Groenpoort, onderdeel van het moderne en duurzame Veenendaal-Oost. Groenpoort staat bekend om zijn kindvriendelijke karakter, met veel speelruimte, groenvoorzieningen en autoluwe straten. Alles in deze wijk is ontworpen met oog voor duurzaamheid — zo zijn alle woningen aangesloten op het lokale warmtenet (DEVO), wat bijdraagt aan een energiezuinige leefomgeving.

Voorzieningen zoals basisscholen, een supermarkt, drogist, gezondheidscentrum en gezellige horecagelegenheden bevinden zich op loop- of fietsafstand in het nabijgelegen winkelcentrum Buurtstede. Ook de bereikbaarheid is uitstekend: met de auto ben je snel op de A12 of A30 en station Veenendaal-De Klomp biedt een snelle treinverbinding richting Utrecht en Arnhem. Een ideale woonomgeving voor gezinnen én professionals die comfortabel, duurzaam en centraal willen wonen.

Indeling

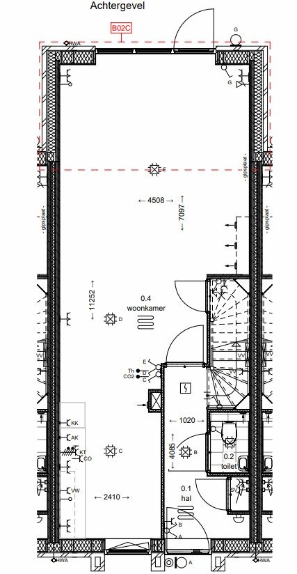
Begane grond
Je komt binnen via de hal, waar zich de meterkast, een modern toilet en de trapopgang bevinden. Aan de achterzijde ligt de ruime, uitgebouwde woonkamer met voldoende plek voor een comfortabele zithoek en een eetgedeelte. Aan de voorzijde tref je de open keuken, compleet uitgerust met diverse inbouwapparaten, zoals een koel-vriescombinatie, vaatwasser, inductiekookplaat, afzuigkap, combi-oven en oven. Vanuit de keuken heb je een mooi uitzicht op de straat. De grote raampartijen zorgen voor een lichte en aangename sfeer.

Eerste verdieping
Ruime overloop met toegang tot drie volwaardige slaapkamers en de complete badkamer. De badkamer is voorzien van modern tegelwerk en sanitair, met o.a. een regendouche, toilet en wastafel.

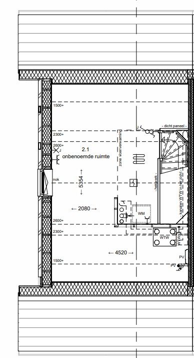
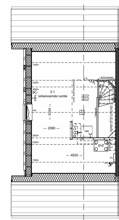
Tweede verdieping
De zolderverdieping is een multifunctionele ruimte, volledig naar eigen wens in te delen. Denk aan een extra slaapkamer, thuiskantoor of speelzolder — de mogelijkheden zijn eindeloos.

Buitenruimte
De tuin ligt op het oosten, waardoor je vooral in de ochtend en vroege middag van de zon kunt genieten. Dankzij de hoekligging is de buitenruimte net iets ruimer dan gemiddeld. De tuin kan volledig naar eigen smaak worden aangelegd. Ideaal voor wie zijn eigen buitenplek wil creëren.

Pluspunten op een rij
+ Nieuwbouw zonder wachttijd – oplevering al in december 2025 (prognose)
+ Uitgebouwde woonkamer en compleet opgeleverd met keuken en sanitair
+ Vier slaapkamers en multifunctionele zolder
+ Energielabel A+++, DEVO-aansluiting en zonnepanelen
+ Gelegen in groene, kindvriendelijke wijk met winkels, scholen en OV nabij
+ Vrije ligging op de hoek, tuin op het oosten

Heb je interesse in deze woning of wil je als eerste een kijkje nemen? Neem dan snel contact op met ons kantoor in Veenendaal — we vertellen je graag meer over deze unieke kans!

Koopovereenkomst:
- Bij de verkoop zal er een standaard NVM koopovereenkomst worden gehanteerd.
Bij woningen welke ouder zijn dan 20 jaar, worden de volgende clausules opgenomen in de koopovereenkomst:
- Asbestclausule;
- Ouderdomsclausule.

Koop je de woning zonder voorbehoud van financiering? Dan zullen wij een termijn hanteren van 14 dagen na het opstellen van de koopovereenkomst voor het storten van de bankgarantie/waarborgsom.

Deze informatie is door ons met de nodige zorgvuldigheid samengesteld. Onzerzijds wordt echter geen enkele aansprakelijkheid aanvaard voor enige onvolledigheid, onjuistheid of anderszins, dan wel de gevolgen daarvan. Alle opgegeven maten en oppervlakten zijn indicatief.
+ toon meer
deze woning is Verkocht

Familie Van Damlaan 1 Veenendaal

Familie Van Damlaan 1

3907 DH, Veenendaal
Ditters open huis: 5 april 2025 10:00 - 12:00 uur
Landelijke Open Huizen Route NVM: 5 april 2025 11:00 uur - 15:00 uur
Vanaf€ 550.000 k.k.

Schakel een aankoopmakelaar in.

Snel handelen helpt je jouw droomhuis te bemachtigen. Zo vergroot je de kans dat je er op tijd bij bent.
Veenendaal
verkocht

Of maak vrijblijvend een zoekprofiel aan.

Vergelijkbare woningen

Hypotheken

Onafhankelijk hypotheekadvies

  • Ligt jouw droomhuis binnen handbereik?
  • Wil je jouw huidige hypotheek verhogen?
  • Is er hypotheekruimte voor verduurzaming?

Blijf op de hoogte

Ontvang als eerste updates over nieuw aanbod en mis geen enkele kans om jouw droomwoning te vinden.

Gratis waardebepaling of verkoopgesprek

Met de vrijblijvende waardecheck weet je snel waar je aan toe bent. Onze makelaars kijken naar de lokale markt en vergelijkbare woningen in jouw buurt om een goede schatting te geven.

Realiseer al jouw woondromen met Ditters

Wij zijn een team van gedreven vastgoedexperts met een passie voor het maken van verbindingen – tussen kopers en verkopers, huurders en verhuurders. Met een frisse kijk op de makelaardij combineren we expertise met creativiteit. Onze makelaars luisteren écht en nemen de tijd om jouw wensen te begrijpen.


Bij Ditters sta je er niet alleen voor. We denken met je mee, begeleiden je in elke stap en zijn altijd bereikbaar voor vragen. Neem gerust contact met ons op – we helpen je graag verder!