Omschrijving

Je zoekt die éne reus van een woning! Een uitgebouwde 2-onder-1-kapwoning met een hoog afwerkingsniveau en energielabel A! Met een royale tuingerichte woonkamer, moderne keuken en een kantoorruimte of speelkamer op de begane grond. Denk jij aan verduurzaming en staan zonnepanelen, vloerverwarming, HR++ beglazing en een hybride warmtepomp hoog op jouw wensenlijstje?

Dan is de Noorderkroon 11 absoluut een woning voor jou!

Belangrijkste kenmerken:
- Energielabel A;
- Royale uitgebouwde 2-onder-1-kapwoning met 4 tot 5 slaapkamers
- Fraaie tuingerichte woonkamer met royale en sfeervolle tuin op het westen;
- Luxe leef-/woonkeuken uit april 2022;
- 16 zonnepanelen (2022) á 370 Wp;
- Hybride warmtepomp en Cv-ketel (beide Remeha) uit mei 2024.

IS NOORDERKROON 11 JOUW NIEUWE WONING?
Wanneer je aankomt bij de woning, valt direct op dat we hier een reus van een 2-onder-1-kapwoning mogen verkopen waarbij ook is gedacht aan verduurzaming middels zonnepanelen. Op de oprit is het mogelijk om 2 auto’s te parkeren en zijn zowel de voordeur als de deur naar de ruime berging/garage te bereiken.

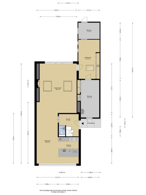
Begane grond:
Als we via de oprit onze weg vervolgen richting de voordeur dan komen we in een ruimte entree met de toiletruimte, de trapopgang naar de 1e verdieping en een toegangsdeur naar de leefruimte. Wat gelijk opvalt bij het betreden van de begane grond is het hoge afwerkingsniveau en de riante uitgebouwde woonkamer met fijne ingebouwde gashaard. De royale tuingerichte woonkamer is gelegen aan de achterzijde van de woning en beschikt door grote raampartijen en 2 lichtkoepels met gebogen glas en geïntegreerde zonnewering over enorm veel daglicht. Vanuit de woonkamer is de naastgelegen kamer te bereiken. Dit was vroeger de garage en is door de huidige eigenaren opgedeeld in drie multifunctionele ruimtes. De voorste ruimte betreft een ruime berging met radiatorverwarming. De middelste kamer kan perfect dienen als werk-/kantoorruimte aan huis of als speelkamer voor de kinderen! Ook deze kamer is voorzien van een lichtkoepel voor daglichttoetreding en vloerverwarming. De achterste ruimte dient als berging. Aan de voorzijde van de woning bevindt zich de ruime en recent gemoderniseerde leef-/woonkeuken met schiereiland. De keuken is in april 2022 geplaatst en uitgevoerd met al het denkbare en luxe inbouwapparatuur. Denk hierbij niet alleen aan een vaatwasser, een ruime koelkast met vershoudzone, een grote oven en een combi-oven, maar juist ook aan een inductiekookplaat met geïntegreerde afzuiging, een Quooker, een warmhoudlade en een wijnklimaatkast. Vanuit de keuken heb je zicht op de eettafel om tijdens het koken in contact te blijven met je gasten. Het eetgedeelte biedt meer dan voldoende ruimte voor een grote eettafel met stoelen! De begane grond is deels voorzien van een houtenvloer en deels voorzien van een plavuizen vloer met vloerverwarming

1e verdieping:
Vanuit de ruime hal kom je via de vaste trap op de 1e verdieping. Welke wederom ruim te noemen is. De overloop biedt toegang tot 3 ruime slaapkamers, de badkamer en een vaste trap naar de 2e verdieping. De master bedroom van circa 15,5 m² is gelegen aan de voorzijde van de woning en heeft, indien nodig, meer dan voldoende ruimte voor een grote kledingkast. Vanuit deze slaapkamer heb je fijn uitzicht over de verzorgde voortuin en het rustige hofje waaraan de woning is gelegen. Ook beschikt deze slaapkamer over strak en glad afgewerkt plafond met inbouwspotjes. De 2e slaapkamer is bijna 13 m² groot, ook gelegen aan de voorzijde van de woning en ook deze slaapkamer zou geschikt kunnen zijn als master. Hij biedt namelijk meer dan voldoende ruimte voor een (inbouw)kledingkast. De 3e slaapkamer is ook bijna 13 m2, gelegen aan de achterzijde van de woning en wordt momenteel gebruik als logeerkamer voor de (klein)kinderen, maar kan uiteraard ook gebruikt worden als werk-/studeerkamer. De badkamer is bijna 6 m², neutraal uitgevoerd, goed onderhouden en uitgevoerd met een ligbad, inloopdouche, designradiator, wastafelmeubel met enkele wastafel, 2e toilet, een te openen raam voor natuurlijke ventilatie en elektrische vloerverwarming.

2e verdieping:
Een royale 2e verdieping met een voorzolder van ruim 17 m² en een 4e slaapkamer van ruim 15 m². Ook op deze verdieping ervaar je de grote ruimte van de woning. De woning is aan beide kanten voorzien van een dakraam waardoor ook deze slaapkamer over veel daglicht beschikt. Door het (ver)plaatsen van enkele wanden en deuren is het relatief eenvoudig om hier, indien nodig, een 5e slaapkamer en/of 2e badkamer te realiseren. Uiteraard is het ook mogelijk om deze ruimte als multifunctionele ruimte te houden. Een ideale plek om te sporten, werken of waar gasten kunnen blijven slapen. Op de voorzolder bevinden zich de aansluitingen voor de wasmachine, droger en overige technische installaties zoals de Cv-ketel, een hybride warmtepomp en de omvormer voor de zonnepanelen.

Tuin:
De achtertuin is gelegen op het westen en daardoor zeer zonnig. De tuin is zeer verzorgd en speels aangelegd. Een heerlijke en riante tuin om elk zonuurtje mee te pakken. Om heerlijk te kunnen genieten van zon zijn er meerdere terrassen gecreëerd: één bij de woning en de ander is achterin de tuin. Hou je toch meer van de schaduw? Dan is het zeer prettig vertoeven onder de veranda met glazen schuifdeuren of bij de woning onder de elektrisch bedienbare zonneschermen. Uiteraard is er ook gedacht aan bloemen, bomen, gras en planten, waarbij deze naast het visuele aspect gekozen zijn voor de onderhoudsvriendelijkheid. Om de riante achtertuin te kunnen betreden zijn er 2 opties: de loopdeur vanuit de multifunctionele kamer of middels de dubbele schuifpui vanuit de woonkamer. Ideaal om tijdens de zomer open te zetten om binnen en buiten met elkaar te verbinden.

Kortom: een heerlijke grote en zonnige tuin met meer dan voldoende ruimte om te genieten van het buitenleven. De plek om gezellig met vrienden en/of familie te genieten van een hapje, drankje, feestjes en verjaardagen!

EEN RONDLEIDING DOOR JOUW NIEUWE PLEK:
Neem contact met ons op, wij laten je dit bijzondere woonhuis graag van binnen en buiten zien!

Kenmerken:
- Bouwjaar 1972;
- Woonoppervlak 193 m²;
- Inhoud 765 m³;
- Perceeloppervlakte 420 m² eigen grond;
- Volledig geïsoleerd;
- Energielabel A;
- 16 zonnepanelen á 370Wp;
- Hybride warmtepomp en Cv-ketel uit mei 2024;
- Volledige 1e verdieping voorzien van elektrisch bedienbare rolluiken;
- Inbouw gashaard met afstandsbediening;
- Eigen oprit voor meerdere auto’s;
- Ruime en zonnige tuin op het westen;
- Strakke en moderne keuken uit april 2022;
- Achterzijde voorzien van een elektrisch zonnescherm;
- Oplevering in overleg.

Koopovereenkomst:
Bij de verkoop zal er een standaard NVM koopovereenkomst worden gehanteerd. Bij woningen welke ouder zijn dan 20 jaar, worden de volgende clausules opgenomen in de koopovereenkomst:
- Asbestclausule;
- Ouderdomsclausule.

Koopt u de woning zonder voorbehoud van financiering? Dan zullen wij een termijn hanteren van 14 dagen na het opstellen van de koopovereenkomst voor het storten van de bankgarantie/waarborgsom.

Deze informatie is door ons met de nodige zorgvuldigheid samengesteld. Onzerzijds wordt echter geen enkele aansprakelijkheid aanvaard voor enige onvolledigheid, onjuistheid of anderszins, dan wel de gevolgen daarvan. Alle opgegeven maten en oppervlakten zijn indicatief.
+ toon meer
deze woning is Verkocht

Noorderkroon 11 Veenendaal

Noorderkroon 11

3902 VA, Veenendaal
Ditters open huis: 5 april 2025 10:00 - 12:00 uur
Landelijke Open Huizen Route NVM: 5 april 2025 11:00 uur - 15:00 uur
Vanaf€ 725.000 k.k.

Schakel een aankoopmakelaar in.

Snel handelen helpt je jouw droomhuis te bemachtigen. Zo vergroot je de kans dat je er op tijd bij bent.
Veenendaal
verkocht

Of maak vrijblijvend een zoekprofiel aan.

Vergelijkbare woningen

Hypotheken

Onafhankelijk hypotheekadvies

  • Ligt jouw droomhuis binnen handbereik?
  • Wil je jouw huidige hypotheek verhogen?
  • Is er hypotheekruimte voor verduurzaming?

Blijf op de hoogte

Ontvang als eerste updates over nieuw aanbod en mis geen enkele kans om jouw droomwoning te vinden.

Gratis waardebepaling of verkoopgesprek

Met de vrijblijvende waardecheck weet je snel waar je aan toe bent. Onze makelaars kijken naar de lokale markt en vergelijkbare woningen in jouw buurt om een goede schatting te geven.

Realiseer al jouw woondromen met Ditters

Wij zijn een team van gedreven vastgoedexperts met een passie voor het maken van verbindingen – tussen kopers en verkopers, huurders en verhuurders. Met een frisse kijk op de makelaardij combineren we expertise met creativiteit. Onze makelaars luisteren écht en nemen de tijd om jouw wensen te begrijpen.


Bij Ditters sta je er niet alleen voor. We denken met je mee, begeleiden je in elke stap en zijn altijd bereikbaar voor vragen. Neem gerust contact met ons op – we helpen je graag verder!