Omschrijving

Jouw nieuwe (t)huis aan de Oudlaan 30: Ruimte, licht en een toplocatie!

Ben je op zoek naar een huis waar je direct dat goede gevoel krijgt? Zoek niet verder. Aan de Oudlaan 30 in Wageningen staat deze uitgebouwde drie-onder-één-kapwoning op je te wachten. Een heerlijke plek met een flinke dosis ruimte, een royale tuin en alles wat je nodig hebt binnen handbereik.

Wonen in Noordwest: De perfecte combi
Je komt te wonen in de wijk “Noordwest”, en dat is niet voor niets een van de meest geliefde plekjes van Wageningen. Het is een super kindvriendelijke buurt waar je je buren nog echt groet. Voor de dagelijkse boodschappen, de basisschool of de kinderopvang hoef je de auto niet eens te pakken; alles ligt op loopafstand. En heb je zin in een frisse neus? Het prachtige, uitgestrekte Binnenveld ligt letterlijk op een steenworp afstand. Ideaal voor een avondwandeling of een rondje hardlopen.

Stap binnen…
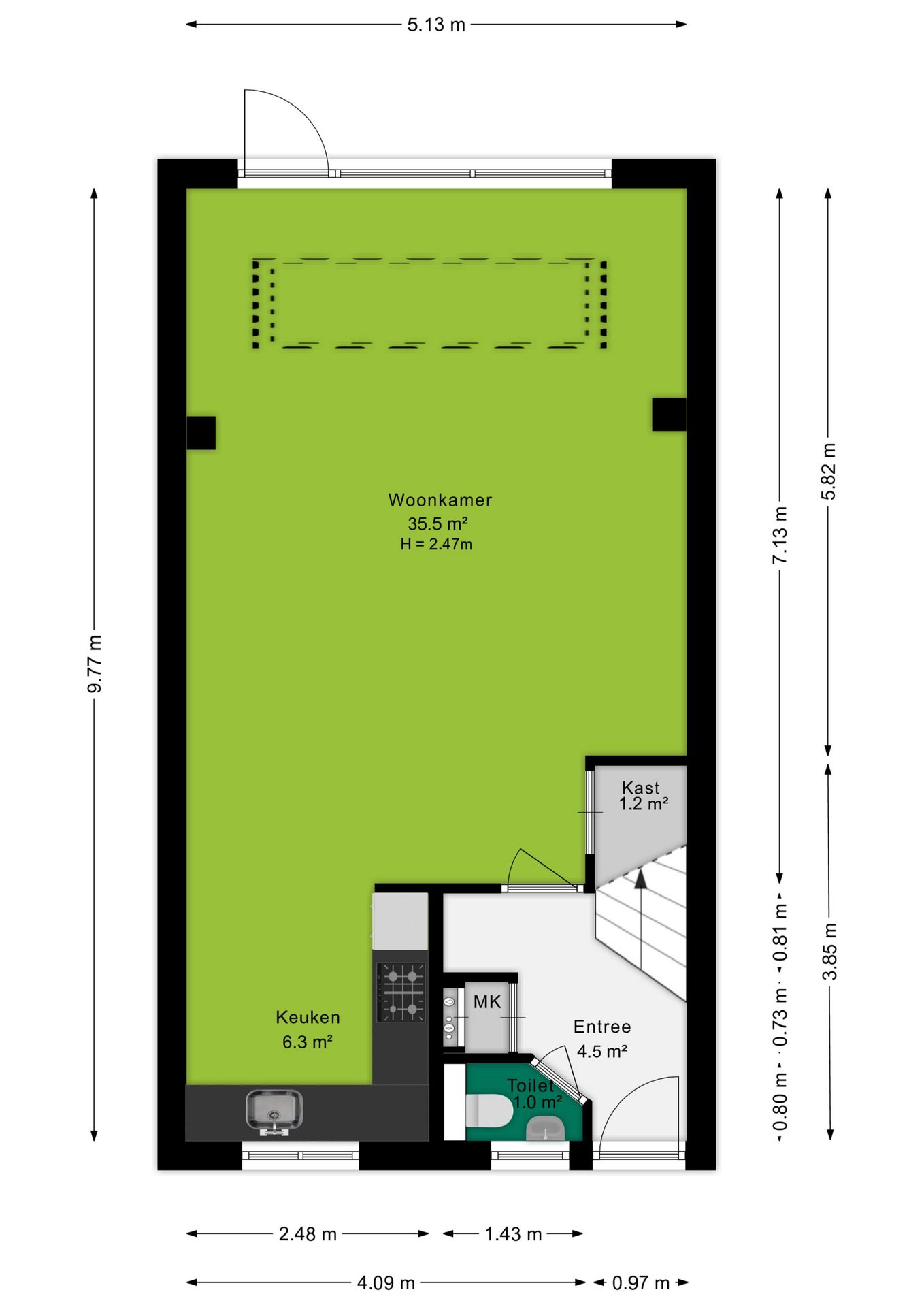
Via de hal (met handige garderoberuimte en toilet) kom je in de woonkamer. En wat voor één! Doordat de woning is uitgebouwd, heb je hier echt de ruimte. De eikenhouten vloer geeft direct warmte aan de kamer. Aan de voorkant vind je de open keuken uit 2011. Deze is van alle gemakken voorzien (denk aan een gasfornuis, vaatwasser en combi-oven), zodat je hier de lekkerste maaltijden op tafel tovert terwijl je in contact blijft met je gasten in de woonkamer.

Bovenverdieping & Zolder
Op de eerste verdieping vind je drie goede slaapkamers. Het fijne hier is dat de muren recht omhoog lopen, waardoor je elke vierkante meter optimaal kunt benutten. De badkamer is praktisch ingericht met een douchehoek, tweede toilet en een wastafelmeubel.

Via de vaste trap kom je op de tweede verdieping. Hier vind je op de voorzolder de opstelling voor je wasmachine en/of droger en de Cv-ketel, maar ook een verrassend ruime vierde slaapkamer. Om een idee te krijgen hoe een slaapkamer eruit kan komen te zien hebben we een artist impression toegevoegd.

Heb je veel spullen? Geen probleem, achter de knieschotten kun je ontzettend veel kwijt. En als kers op de taart is er zelfs nog een bergzolder op de derde verdieping!

Buiten genieten
De achtertuin, circa 50 m² ruim, ligt op het noorden, maar laat je daar niet door foppen: door de diepte van de tuin kun je hier de hele dag door een plekje in de zon vinden. Achterin staat een vrijstaande houten berging voor de fietsen en je tuingereedschap.

Kortom:
Oudlaan 30 is een heerlijk ruim familiehuis op een toplocatie in Wageningen. Kom je snel een kijkje nemen om te ontdekken of dit jouw nieuwe plek wordt?


Bijzonderheden
- Bouwjaar 1991
- Woonoppervlakte 112 m²
- Verwarming CV-ketel Remeha (2012)
- Warm water CV-ketel Remeha (2012)
- Isolatie: Volledig geïsoleerd
- Energielabel: B
- Tuinligging: Noord
- Aanvaarding in overleg

Koopovereenkomst:
Bij de verkoop zal er een standaard NVM koopovereenkomst worden gehanteerd. Bij woningen welke ouder zijn dan 20 jaar, worden de volgende clausules opgenomen in de koopovereenkomst:
- Asbestclausule;
- Ouderdomsclausule.

Koop je de woning zonder voorbehoud van financiering? Dan zullen wij een termijn hanteren van 6 weken na het opstellen van de koopovereenkomst voor het storten van de bankgarantie/waarborgsom.

Deze informatie is door ons met de nodige zorgvuldigheid samengesteld. Onzerzijds wordt echter geen enkele aansprakelijkheid aanvaard voor enige onvolledigheid, onjuistheid of anderszins, dan wel de gevolgen daarvan. Alle opgegeven maten en oppervlakten zijn indicatief.
+ toon meer

Video

6708 RC, Wageningen

Oudlaan 30

Zaterdag 2 augustus 10:00 - 12:00 uur

€ 425.000 k.k.
ditters makelaars wageningen
Kopen
Financiële mogelijkheden

Waardecheck

Onze makelaars kijken naar de lokale markt en vergelijkbare woningen in jouw buurt om een goede schatting te geven.
Onze makelaars kijken naar de lokale markt en vergelijkbare woningen in jouw buurt om een goede schatting te geven.
Goed om te weten: deze waardecheck is vrijblijvend en geheel kosteloos
Onafhankelijk

Hypotheekadvies

We helpen je met het vergelijken van aanbiedingen van verschillende banken, zodat je de beste deal krijgt. 
Wij staan klaar om je te begeleiden, zodat je met vertrouwen de juiste hypotheek kunt kiezen.
Goed om te weten: dit adviesgesprek is vrijblijvend en geheel kosteloos

Wij helpen jou bij de keuze van de juiste polis.

Bij een onbezorgde toekomst horen ook goede verzekeringen die uitkeren bij bijvoorbeeld ziekte, schade of diefstal. Onze assurantieadviseurs helpen je bij de keuze van de juiste polis. In heldere taal.

Diverse verzekeringen

  • Opstalverzekering
  • Aansprakelijkheidsverzekering
  • Zorgverzekering
  • Reisverzekering

Locatie

Plattegronden

Klik op de plattegrond voor een grote weergave

Belangrijke documenten

Lijst van zaken

Overzicht van de zaken die achterblijven of worden meegenomen door de huidige bewoners.

Vragenlijst

Hier deelt de verkoper belangrijke informatie over de staat en bijzonderheden van de woning.

Brochure

Bekijk hier alle details van de woning, compleet met foto's en beschrijvingen.

Vragenlijst c

Hier deelt de verkoper belangrijke informatie over de staat en bijzonderheden van de woning.

Misschien interessant voor jou

Blijf op de hoogte

Ontvang als eerste updates over nieuw aanbod en mis geen enkele kans om jouw droomwoning te vinden.

Gratis waardebepaling of verkoopgesprek

Met de vrijblijvende waardecheck weet je snel waar je aan toe bent. Onze makelaars kijken naar de lokale markt en vergelijkbare woningen in jouw buurt om een goede schatting te geven.