Omschrijving

In een rustige en kindvriendelijke wijk van Wageningen ligt deze verzorgde eindwoning uit 2003 met energielabel A. De woning beschikt over drie slaapkamers (met mogelijkheid tot een vierde), een ruim balkon op de tweede verdieping, een tuin met veranda en een grote stenen berging. Dankzij vloerverwarming op de begane grond, airconditioning en praktische indeling is dit een comfortabele woning voor een breed publiek.

De woning is gelegen op een aantrekkelijke en groene locatie. Op korte loopafstand, binnen 10 minuten, bevindt zich een klompenpad en in de wijk zijn diverse speeltuintjes aanwezig. Wageningen Universiteit is binnen 10 minuten fietsen bereikbaar en ook het centrum van Wageningen, met een uitgebreid aanbod aan winkels, horeca en overige voorzieningen, bevindt zich op circa 15 minuten fietsafstand.

Belangrijkste kenmerken op een rij:
+ Eindwoning met drie slaapkamers, met mogelijkheid tot het realiseren van een vierde slaapkamer
+ Vloerverwarming op de begane grond
+ Ramen voorzien van elektrische screens en/of rolluiken
+ Airconditioning aanwezig op de bovenverdieping
+ Groot, zonnig balkon op het zuiden gelegen op de tweede verdieping
+ Fraai aangelegde tuin met veranda en royale stenen berging
+ Energielabel A
+ Buitenkozijnen recent geschilderd (2025)

Indeling
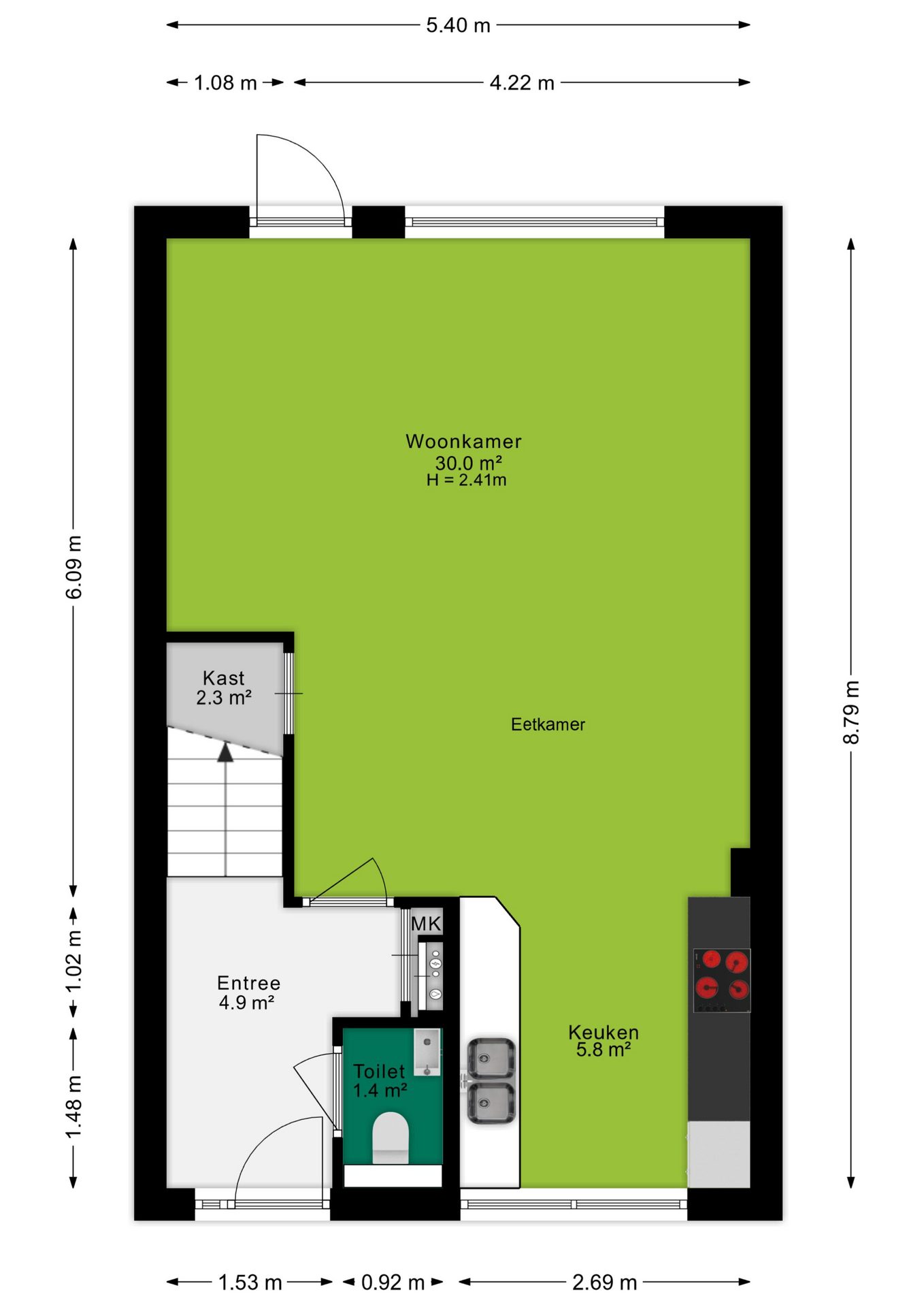
Begane grond
Via de ruime hal heb je toegang tot de meterkast, het toilet en de trapopgang naar de eerste verdieping. In de leefruimte aangekomen valt direct het vele daglicht op. De ruimte biedt voldoende mogelijkheden voor het creëren van zowel een comfortabele zithoek als een gezellige eethoek.
De open keuken zorgt tijdens het koken voor fijn contact met de leefruimte en is compleet uitgevoerd met een inductiekookplaat, afzuigkap, magnetron, combi-oven en vaatwasser.

Daarnaast is er een praktische trapkast aanwezig, ideaal voor het opbergen van voorraad en huishoudelijke spullen. De gehele begane grond is voorzien van vloerverwarming, wat zorgt voor een aangenaam wooncomfort.
De ramen aan zowel de voor- als achterzijde zijn uitgerust met elektrische screens, waardoor je ook op warme dagen comfortabel woont.

Eerste verdieping
Op de eerste verdieping bevinden zich drie slaapkamers van circa 13 m², 9 m² en 8 m². De slaapkamer aan de voorzijde is voorzien van een vaste inbouwkast en een rolluik. De slaapkamers aan de achterzijde beschikken eveneens over een rolluik.
De badkamer van circa 6 m² is compleet uitgevoerd met een ligbad, douche, wastafel met meubel, kolomkast, toilet en designradiator.

Tweede verdieping
In het trappengat richting de tweede verdieping hangt de airconditioning. Boven aangekomen valt direct het royale balkon van circa 15 m² op, gelegen op het zuiden, een heerlijke plek om buiten te zitten. De ramen zijn voorzien van elektrische screens.
Op deze verdieping bevinden zich tevens de wasmachineaansluiting en een vaste kastenwand. Daarnaast biedt deze verdieping de mogelijkheid om een vierde slaapkamer te realiseren.

Buitenruimte
De achtertuin is gelegen op het noordoosten en is bereikbaar via een achterom. Een groot pluspunt is de stenen berging van circa 17 m², die niet alleen geschikt is voor opslag, maar ook uitstekend kan dienen als hobbyruimte.
Aan de berging grenst een veranda, waardoor je altijd beschut buiten kunt zitten ongeacht het seizoen.

Koopovereenkomst
Bij de verkoop zal een standaard NVM-koopovereenkomst worden gehanteerd.
Bij woningen ouder dan 20 jaar worden de volgende clausules opgenomen:
- Ouderdomsclausule
- Asbestclausule

Deze informatie is met zorg samengesteld. Er wordt geen aansprakelijkheid aanvaard voor eventuele onjuistheden of onvolledigheden. Alle opgegeven maten en oppervlakten zijn indicatief.
+ toon meer

Video

6708 TR, Wageningen

Pad van Arendsoog 2

Zaterdag 2 augustus 10:00 - 12:00 uur

€ 539.500 k.k.
ditters makelaars wageningen
Kopen

Wat is jouw woning écht waard bij Ditters?

Waardecheck

Wij combineren lokale marktkennis met actuele data en ons grote zoekersbestand in de regio.

Je krijgt niet alleen een waarde, maar inzicht in hoe je de maximale verkoopopbrengst kunt realiseren.

Onze aanpak is strategisch, transparant en volledig afgestemd op jouw situatie.

Goed om te weten: deze waardecheck is vrijblijvend en geheel kosteloos
Onafhankelijk

Hypotheekadvies

We helpen je met het vergelijken van aanbiedingen van verschillende banken, zodat je de beste deal krijgt. 
Wij staan klaar om je te begeleiden, zodat je met vertrouwen de juiste hypotheek kunt kiezen.
Goed om te weten: dit adviesgesprek is vrijblijvend en geheel kosteloos

Wij helpen jou bij de keuze van de juiste polis.

Bij een onbezorgde toekomst horen ook goede verzekeringen die uitkeren bij bijvoorbeeld ziekte, schade of diefstal. Onze assurantieadviseurs helpen je bij de keuze van de juiste polis. In heldere taal.

Diverse verzekeringen

  • Opstalverzekering
  • Aansprakelijkheidsverzekering
  • Zorgverzekering
  • Reisverzekering

Locatie

Plattegronden

Klik op de plattegrond voor een grote weergave

Belangrijke documenten

Meetrapport

Alle afmetingen van de woning duidelijk op een rij, inclusief totale oppervlakte.

Kadastrale kaart

Brochure

Bekijk hier alle details van de woning, compleet met foto's en beschrijvingen.

Vragenlijst deelc

Hier deelt de verkoper belangrijke informatie over de staat en bijzonderheden van de woning.

Vragenlijst deelb

Hier deelt de verkoper belangrijke informatie over de staat en bijzonderheden van de woning.

Lijst van zaken

Overzicht van de zaken die achterblijven of worden meegenomen door de huidige bewoners.

Misschien interessant voor jou

Blijf op de hoogte

Ontvang als eerste updates over nieuw aanbod en mis geen enkele kans om jouw droomwoning te vinden.

Gratis waardebepaling of verkoopgesprek

Met de vrijblijvende waardecheck weet je snel waar je aan toe bent. Onze makelaars kijken naar de lokale markt en vergelijkbare woningen in jouw buurt om een goede schatting te geven.