Omschrijving

Gelegen nabij het centrum van Wageningen bevindt zich dit fraaie en royale 3-kamerappartement op de 4e verdieping. De woning heeft een courante indeling, beschikt over een ruim balkon op het zonnige zuiden en een eigen parkeerplaats in de ondergelegen parkeerkelder.

De volgende aspecten van dit fraaie appartement uit 2009 spreken je ook vast aan: een ruime woonkamer voorzien van heerlijk veel lichtinval door de grote raampartijen, keuken voorzien van diverse inbouwapparatuur, voorzien van 2 goed bemeten slaapkamers, separate berging met witgoed-aansluiting, heerlijk balkon op het zuiden en een eigen parkeerplaats in de ondergelegen parkeerkelder.

De ligging is ideaal! Gelegen boven de supermarkt, handig voor de dagelijkse boodschappen, en op loopafstand van het gezellige centrum van Wageningen. Diverse buslijnen bevinden zich eveneens op korte afstand. Het appartement maakt onderdeel uit van een goed functionerende Vereniging van Eigenaren en de servicekosten bedragen €161,- per maand.

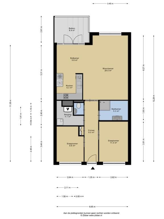
Indeling

Begane grond
Centrale entree met de brievenbussen en bellentableau en trapopgang / lift naar het appartement.

Het appartement
Via de entree en ruime hal met meterkast en toilet krijg je toegang tot alle vertrekken. De ruime woon-eetkamer heeft een afmeting van 33,6m², is voorzien van een laminaatvloer en heerlijk veel lichtinval door de grote raampartijen. Door de fijne afmeting is er ruimte genoeg voor een eettafel. De keuken is opgesteld in een lichte kleurstelling en beschikt over diverse inbouwapparatuur, te weten: een gasfornuis, afzuigkap, oven, magnetron en een koelkast.

De slaapkamers zijn goed bemeten en hebben een afmeting van 11m² en 8,6m², zijn beide voorzien van een laminaatvloer en voldoende lichtinval. De badkamer is volledig betegeld in een lichte kleurstelling en voorzien van een inloopdouche en een wastafel met wastafelmeubel. Tevens is er vloerverwarming aanwezig in de badkamer. Vanuit de hal is ook de separate bergruimte te bereiken waar zich de witgoed-aansluiting bevindt en de C.V.-ketel staat opgesteld.

Balkon, berging en parkeerplaats
Het heerlijke balkon heeft een ruime afmeting en is gelegen op het zonnige zuiden waardoor je hier heerlijk van het zonnetje en het buitenleven kunt genieten. In de onderbouw is nog een berging aanwezig en een eigen parkeerplaats in de ondergelegen parkeerkelder.

Kenmerken:
Verwarming: C.V-combiketel
Warm water: C.V-combiketel
Bouwjaar: 2009
Isolatie: Volledig geïsoleerd
Balkonligging: Zuid
Aanvaarding: In overleg

Extra’s:
- Ruim 3-kamerappartement voorzien van 2 slaapkamers;
- Woonkamer met heerlijk veel lichtinval;
- Keuken voorzien van diverse inbouwapparatuur;
- Separate berging met witgoed-aansluiting;
- Eigen parkeerplaats in de ondergelegen parkeerkelder;
- Het schilderwerk van de kozijnen is in 2022 uitgevoegd;
- Badkamer voorzien van vloerverwarming;
- Onderdeel van een goed functionerende VvE;
- Op goede afstand van diverse voorzieningen (winkelcentrum, station en scholen).

Koopovereenkomst:
Bij de verkoop zal er een standaard NVM koopovereenkomst worden gehanteerd. Bij woningen welke ouder zijn dan 20 jaar, worden de volgende clausules opgenomen in de koopovereenkomst:
- Asbestclausule;
- Ouderdomsclausule.

Koop je de woning zonder voorbehoud van financiering? Dan zullen wij een termijn hanteren van 14 dagen na het opstellen van de koopovereenkomst voor het storten van de bankgarantie/waarborgsom.

Deze informatie is door ons met de nodige zorgvuldigheid samengesteld. Onzerzijds wordt echter geen enkele aansprakelijkheid aanvaard voor enige onvolledigheid, onjuistheid of anderszins, dan wel de gevolgen daarvan. Alle opgegeven maten en oppervlakten zijn indicatief.
+ toon meer
deze woning is Verkocht

De Arc 157 Wageningen

De Arc 157

6702 EC, Wageningen
Ditters open huis: 5 april 2025 10:00 - 12:00 uur
Landelijke Open Huizen Route NVM: 5 april 2025 11:00 uur - 15:00 uur
Vanaf€ 395.000 k.k.

Schakel een aankoopmakelaar in.

Snel handelen helpt je jouw droomhuis te bemachtigen. Zo vergroot je de kans dat je er op tijd bij bent.
Wageningen
verkocht

Of maak vrijblijvend een zoekprofiel aan.

Vergelijkbare woningen

Hypotheken

Onafhankelijk hypotheekadvies

  • Ligt jouw droomhuis binnen handbereik?
  • Wil je jouw huidige hypotheek verhogen?
  • Is er hypotheekruimte voor verduurzaming?

Blijf op de hoogte

Ontvang als eerste updates over nieuw aanbod en mis geen enkele kans om jouw droomwoning te vinden.

Gratis waardebepaling of verkoopgesprek

Met de vrijblijvende waardecheck weet je snel waar je aan toe bent. Onze makelaars kijken naar de lokale markt en vergelijkbare woningen in jouw buurt om een goede schatting te geven.

Realiseer al jouw woondromen met Ditters

Wij zijn een team van gedreven vastgoedexperts met een passie voor het maken van verbindingen – tussen kopers en verkopers, huurders en verhuurders. Met een frisse kijk op de makelaardij combineren we expertise met creativiteit. Onze makelaars luisteren écht en nemen de tijd om jouw wensen te begrijpen.


Bij Ditters sta je er niet alleen voor. We denken met je mee, begeleiden je in elke stap en zijn altijd bereikbaar voor vragen. Neem gerust contact met ons op – we helpen je graag verder!