Omschrijving

Deze jonge en verrassend ruime tussenwoning uit 2023 in het geliefde Veenendaal-Oost biedt je alles wat je zoekt. Dankzij de uitstekende isolatie, vloerverwarming en zonnepanelen woon je hier toekomstbestendig én energiezuinig (energielabel A+++). Ontspan en geniet van de omgeving: vanaf het balkon op het oosten kijk je prachtig uit over het water, terwijl je in de voortuin, gelegen op het westen, heerlijk van de zon kunt genieten. Hier woon je letterlijk op hoogte, want het woongedeelte bevindt zich op de eerste verdieping. Een droomplek waar comfort, duurzaamheid en een fijne omgeving samenkomen.

Op loopafstand van de woning vind je het kleinschalige winkelcentrum Buurtstede. Hier vind je alles voor je dagelijkse behoeften, zoals een supermarkt, een bloemist en een drogist. Daarnaast ligt de woning vlakbij de Groene Grens, een natuurgebied waar je heerlijk kunt wandelen en genieten van de rust. Via de uitvalswegen A12 en A30 ben je snel onderweg richting Utrecht, Arnhem of Ede.

Wat maakt deze woning bijzonder:
+ Bouwjaar 2023, instapklaar en hoogwaardig afgewerkt
+ Energielabel A+++, vloerverwarming, zonnepanelen en uitstekende isolatie
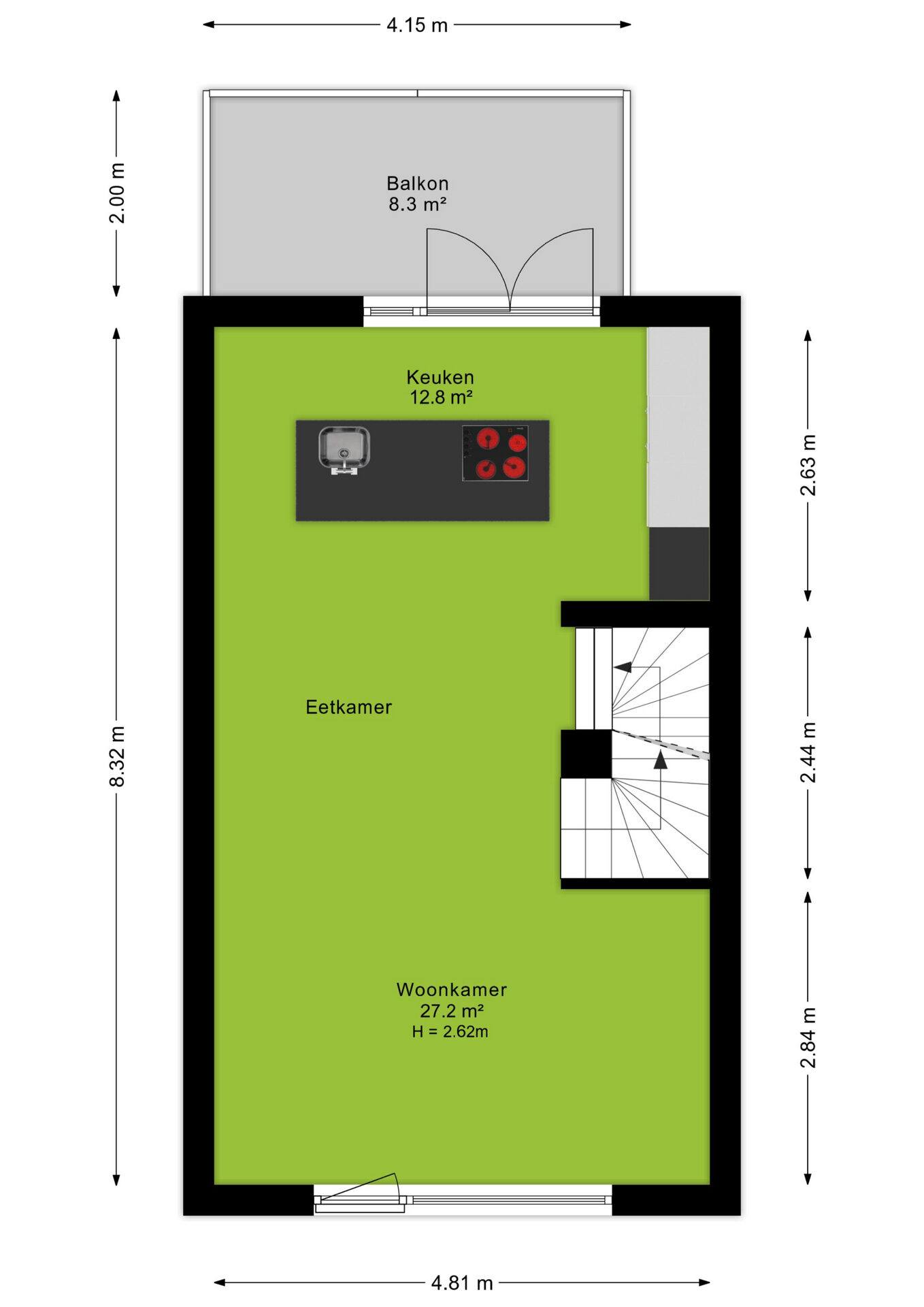
+ Woonoppervlakte ca. 112 m² verdeeld over drie praktische woonlagen
+ Tuin op het westen én balkon op het oosten
+ Gelegen nabij de Groene Grens, een natuurgebied op de grens van Veenendaal en Ede;
+ Ideaal gelegen nabij de A12.

Indeling
Begane grond
Entree met hal, meterkast, modern toilet en trapopgang. Aan de achterzijde van de woning bevindt zich een royale kamer die perfect geschikt is als thuiskantoor, hobbyruimte of extra slaapkamer. Tevens bevindt zich hier de praktische berging met aansluitingen voor de wasmachine. De voortuin ligt gunstig op het westen, hier kun je eventueel ook je eigen auto parkeren.

Eerste verdieping
De ruime en lichte woonkamer met grote raampartijen is afgewerkt met een strakke vloer en neutrale kleurstellingen. Aan de achterzijde bevindt zich de moderne keuken met kookeiland en diverse inbouwapparatuur. Via de keuken heb je toegang tot het balkon van ca. 8 m², gelegen op het oosten — ideaal voor een ontbijt of kop koffie in de ochtendzon.

Tweede verdieping
Op de bovenste verdieping bevinden zich twee volwaardige slaapkamers, waarvan de master bedroom ca. 13 m² groot is en beschikt over een vaste kastenwand. De tweede slaapkamer is ca. 9 m². De badkamer is modern en compleet met een inloopdouche, ligbad, toilet en wastafelmeubel.

Koopovereenkomst:
Bij de verkoop zal er een standaard NVM koopovereenkomst worden gehanteerd. Bij woningen welke ouder zijn dan 20 jaar, worden de volgende clausules opgenomen in de koopovereenkomst:
- Asbestclausule;
- Ouderdomsclausule.

Koop je de woning zonder voorbehoud van financiering? Dan zullen wij een termijn hanteren van 14 dagen na het opstellen van de koopovereenkomst voor het storten van de bankgarantie/waarborgsom.

Deze informatie is door ons met de nodige zorgvuldigheid samengesteld. Onzerzijds wordt echter geen enkele aansprakelijkheid aanvaard voor enige onvolledigheid, onjuistheid of anderszins, dan wel de gevolgen daarvan. Alle opgegeven maten en oppervlakten zijn indicatief.
+ toon meer
deze woning is Verkocht

Stuivenbergheem 28 Veenendaal

Stuivenbergheem 28

3907 NH, Veenendaal
Ditters open huis: 5 april 2025 10:00 - 12:00 uur
Landelijke Open Huizen Route NVM: 5 april 2025 11:00 uur - 15:00 uur
Vanaf€ 495.000 k.k.

Schakel een aankoopmakelaar in.

Snel handelen helpt je jouw droomhuis te bemachtigen. Zo vergroot je de kans dat je er op tijd bij bent.
Veenendaal
verkocht

Of maak vrijblijvend een zoekprofiel aan.

Vergelijkbare woningen

Hypotheken

Onafhankelijk hypotheekadvies

  • Ligt jouw droomhuis binnen handbereik?
  • Wil je jouw huidige hypotheek verhogen?
  • Is er hypotheekruimte voor verduurzaming?

Blijf op de hoogte

Ontvang als eerste updates over nieuw aanbod en mis geen enkele kans om jouw droomwoning te vinden.

Gratis waardebepaling of verkoopgesprek

Met de vrijblijvende waardecheck weet je snel waar je aan toe bent. Onze makelaars kijken naar de lokale markt en vergelijkbare woningen in jouw buurt om een goede schatting te geven.

Realiseer al jouw woondromen met Ditters

Wij zijn een team van gedreven vastgoedexperts met een passie voor het maken van verbindingen – tussen kopers en verkopers, huurders en verhuurders. Met een frisse kijk op de makelaardij combineren we expertise met creativiteit. Onze makelaars luisteren écht en nemen de tijd om jouw wensen te begrijpen.


Bij Ditters sta je er niet alleen voor. We denken met je mee, begeleiden je in elke stap en zijn altijd bereikbaar voor vragen. Neem gerust contact met ons op – we helpen je graag verder!