Aanbod

Verken ons aanbod. Van huur tot koop. En van nieuwbouw tot bouwkavel. Samen vinden we de plek waar jij je helemaal thuis voelt.

Diensten

Onze experts begeleiden je van A tot Z. Of je nu je huis wilt verkopen, op zoek bent naar je droomhuis of advies nodig hebt over hypotheken of verzekeringen. Met jarenlange ervaring en persoonlijke service zorgen we ervoor dat jij met een gerust hart de juiste keuzes maakt.

Over Ditters

Wij zijn Ditters. Verhalenvertellers. De schakel tussen droom en woning. We luisteren naar jouw wensen en maken op basis daarvan een plan.

Omschrijving

Ervaar uniek wonen in een Lofthome, compleet met alle comfort, omringd door de natuur.

Ervaar de perfecte balans tussen design, duurzaamheid, comfort en natuur in deze exclusieve Lofthome. Gebouwd in 2020 op een toplocatie nabij natuurgebied Bloeidaal en op een steenworp afstand van de stad Amersfoort. Deze duurzame woning met staal en veel glas geeft een unieke woonervaring. Sinds 2010 zijn er slechts enkele van deze bijzondere woningen verspreid over Nederland gebouwd, wat dit concept nog exclusiever maakt.

Wat deze Lofthome écht bijzonder maakt, is de indrukwekkende raampartij van meer dan zeven meter hoog en de grote vide, die zorgen voor een overweldigende hoeveelheid natuurlijk licht gedurende alle seizoenen. Of het nu winter, lente, zomer of herfst is, de woning straalt altijd warmte en gezelligheid uit. Bovendien biedt het huis een prachtig uitzicht over het groen van natuurgebied Bloeidaal én de charmante familie-kersenboerderij. Een unieke plek om te wonen en te werken.

De woning is zeer goed geïsoleerd, volledig gasloos, energiezuinig en ook nog eens onderhoudsvrij. Met een oppervlak van ruim 213 m² en een perceel van 548 m² is deze woning perfect voor liefhebbers van rust en ruimte. De loft bevindt zich op een autoluwe weg en maakt deel uit van een kleinschalig terrein met vijf andere soortgelijke huizen, waar ondernemerschap en gezelligheid samenkomen. De woning heeft zowel een gezellige voortuin, achtertuin en een groot zonnedek, die privacy bieden en uitkijken op de omliggende omgeving. Ideaal voor gezinnen, mensen met een bedrijf aan huis en stellen die de stad op een steenworp afstand willen maar vrij willen wonen.

Het nabijgelegen natuurgebied Bloeidaal biedt volop mogelijkheden om te genieten van een hardloopsessie, maar ook een landwinkel en pluktuin voor verse lokale producten. Een landelijke omgeving maar toch op een steenworp afstand van de stad Amersfoort. Ook Hoevelaken is dichtbij, waar je alles vindt voor de dagelijkse boodschappen, van lokale bakker tot supermarkt en verschillende scholen. De locatie is centraal gelegen in Nederland, met uitstekende verbindingen naar grote steden zoals Utrecht en Amsterdam via de snelwegen A1 en A28 (de oprit van de A28 is met 2 autominuten te bereiken). Ook treinstations zijn eenvoudig te bereiken. Zo is treinstation Hoevelaken en Amersfoort op 10 minuten fietsafstand.

Bestemming
Op deze Lofthome zit een gemengde bestemming en is bestemd als bedrijfswoning. Dat betekent dat wonen en werken hier gecombineerd kan worden. Bekijk het omgevingsloket voor alle details en voor de specifieke gebruiksregels of vraag ons naar de mogelijkheden. Een inschrijving bij de Kamer van Koophandel op het adres is noodzakelijk.


De pluspunten:
+ Vrijstaande Lofthome op een unieke locatie;
+ Midden in de natuur maar met alle voorzieningen dichtbij;
+ Wonen en werken gecombineerd mogelijk;
+ Maar liefst 213 m² oppervlakte aanwezig;
+ Carport om auto’s / fietsen overdekt te parkeren;
+ Mandelig terrein die toegang geeft tot de Lofthome;
+ Tuin gericht op het zuiden met zeer veel vrijheid eromheen;
+ Hoge plafonds met op het hoogste punt zelfs 6,9 meter hoogte;
+ Zeer luxe afwerking;
+ 2 complete badkamers aanwezig, waarvan 1 en suite aan een slaapkamer;
+ Walk-in closet;
+ Grote werkkamer/speelkamer;
+ Veel lichtinval door de grote raampartijen en op de verdieping grote kantelramen;
+ Warmtepomp met 500 liter boiler, zowel warmte als koeling via de vloerverwarming;
+ 16 zonnepanelen aanwezig;
+ Volledig en goed geïsoleerd met onder andere deels triple beglazing en extra dak- en gevelisolatie;
+ Energielabel A+;

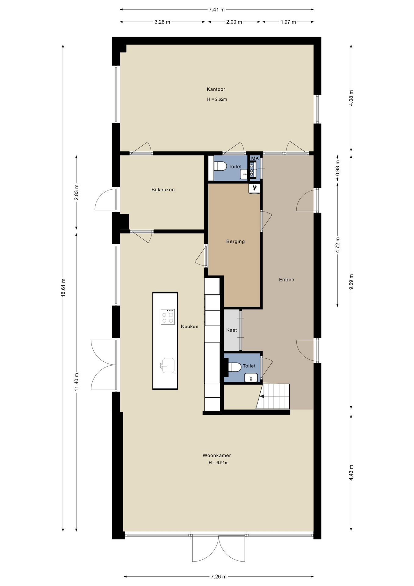
Indeling
Bij het afslaan van de Hogeweg merk je gelijk dat je een unieke locatie gaat bereiken. Een laan met veel groen en mogelijkheid tot het parkeren van bezoekers. Als je de bocht om draait, kom je 6 unieke Lofthomes tegen. Aan het einde van de straat tref je nummer 239E. Je parkeert je auto onder de ruime carport, waar met gemak twee auto's te parkeren zijn en daarnaast nog plek is voor de (bak)fiets. Aan laden is gedacht, de voorbereiding voor een elektrisch oplaadpunt is aanwezig.

De woning is te betreden vanaf de zijkant van de loft. Een tweetal voordeuren geeft de mogelijkheid om het wonen en zakelijke deel van elkaar gescheiden te houden. Bij binnenkomst merk je gelijk de rust, de fijne lichtinval en de luxe van deze woning.

Begane grond
Je stapt binnen in een ruime hal met toegang tot diverse vertrekken zoals de woonkamer, het toilet, de speelkamer (en/of werkkamer) en de technische ruimte.

De woonkamer is aan de zuidzijde van de woning gelegen. De achtergevel is uniek met haar hoogte van bijna 7 meter in de punt en de grote glasoppervlaktes. De pui is van aluminium, heeft triple beglazing en is ook nog eens zonwerend. De dubbele openslaande deuren zorgen ervoor dat binnen en buiten samengevoegd kan worden. De achtertuin is op het zuiden gelegen, heeft vrij zicht en is omringd door groen.

Door de vele ramen heeft het veel lichtinval en is het een heerlijke ruimte om te zijn. Aangrenzend bevindt zich de keuken. De liefhebber voor koken zal deze keuken omarmen. De keuken beschikt over zeer veel werkruimte en luxe inbouwapparatuur. Koken en tegelijkertijd genieten van de omgeving. Door de gevels omgeven door glas is het hier allemaal mogelijk. De keuken beschikt over de volgende apparatuur:
+ Grote vriezer (Siemens)
+ Grote koelkast (Siemens)
+ Vaatwasser met comfortlift (AEG)
+ Quooker, 7 liter boiler
+ Oven (Bosch)
+ Combi-oven (Bosch)
+ Elektrische kookplaat met geïntegreerde afzuigkap (Bora)

Daarnaast biedt de keuken veel kastruimte. Ook aan de elektra is gedacht door geïntegreerde stopcontacten in het keukenblad. De spots in het plafond maken het geheel af.

Met openslaande deuren vanuit de keuken bereik je de vlonder die is aangelegd aan de zijkant van de woning. Een onderhoudsvrije vlonder gemaakt van composiet. Het skelet van de vlonder is gemaakt van hardhout.

Vanuit de keuken is zowel de technische ruimte als de bijkeuken bereikbaar. In de technische ruimte zijn onder andere de warmtepomp en de verdeler van de vloerverwarming aanwezig. Ook is hier een tweede wasaansluiting aanwezig. De bijkeuken biedt ruimte voor veel opbergmogelijkheden. Aan de achterzijde is een ruime kamer aanwezig die bijvoorbeeld goed zou kunnen dienen als kantoorruimte. Momenteel is deze in gebruik als gedeelte kantoorruimte en een speelkamer voor de kinderen. Separaat is hier nog een extra toilet aanwezig.

De vloer (op alle verdiepingen) is volledig voorzien van vloerwarming welke ook kan koelen in de zomer. De vloer is afgewerkt met beton ciré. Een perfecte basis voor een stijlvol interieur. Het geeft een luxe uitstraling en is ook nog eens onderhoudsvriendelijk. De wanden zijn zeer goed geïsoleerd en afgewerkt met Renovlies behang. De binnenkozijnen zijn van hout en de deuren betreffen stompe deuren van Svedex met luxe deurbeslag.

Vanuit de achtertuin kijk je richting het natuurgebied, met achter het perceel een weiland wat momenteel in gebruik is als paardenwei. Naast de woning bevindt zich een agrariër die kersen verbouwt.

Eerste verdieping
De vaste trap in de hal van de begane grond brengt je naar de eerste verdieping. De trap is handgemaakt van eikenhout. De ruime overloop staat door het glas in contact met de woonkamer en is afgeschermd met een glazen wand. Door de openheid ontstaat er veel lichtinval op deze verdieping. Daarnaast is er in de slaapkamers gebruik gemaakt van grote (1,20 meter lang) Velux dakramen.

De verdieping heeft een open vide, entresol, 4 slaapkamers (waarvan 1 als waskamer wordt gebruikt), een walk-in closet aan de hoofdslaapkamer en 2 badkamers (waarvan 1 en suite).

De eerste badkamer is bereikbaar vanaf de overloop en voorzien van een losstaand bad, inloopdouche, wastafel met wastafelmeubel en toilet. Afzuiging middels mechanische ventilatie en daglicht middels een dakraam. De tweede badkamer is en suite aan de hoofdslaapkamer. Deze is voorzien van een ruime inloopdouche, toilet en wastafel met wastafelmeubel. Ook hier is mechanische ventilatie aanwezig en een dakraam. Beide zijn voorzien van luxe afwerking en ze beschikken allebei over vloerverwarming.

Vliering
Vanuit de waskamer bereik je via een vlizotrap de ruime vliering van maar liefst 24 m² oppervlakte.

Tuin
De tuin is gelegen op het zuiden. Een prettig terras direct aan de woonkamer en veel groen in de tuin. Door de weidse omgeving, de naast gelegen kersengaard en de achtergelegen weide is er veel vrijheid te ervaren. Ideaal voor het buitenleven.

Parkeren
De woning beschikt over drie eigen parkeerplaatsen onder de carport. Daarnaast bevinden zich op het mandelige terrein nog ruim voldoende parkeerplaatsen voor bezoekers.

Afmetingen
Woonoppervlakte 213 m²
Inhoud woning 885 m³

Bijzonderheden
Gemengde bestemming; wonen en werken combineren
Verwarming Middels de warmtepomp
Warm water Middels de warmtepomp
Isolatie volledig geïsoleerd
Bouwjaar 2020
Energielabel A+
Aanvaarding In overleg

Koopovereenkomst:
Bij de verkoop zal er een standaard NVM koopovereenkomst worden gehanteerd. Bij woningen welke ouder zijn dan 20 jaar, worden de volgende clausules opgenomen in de koopovereenkomst:
- Asbestclausule;
- Ouderdomsclausule.

Koopt u de woning zonder voorbehoud van financiering? Dan zullen wij een termijn hanteren van 14 dagen na het opstellen van de koopovereenkomst voor het storten van de bankgarantie/waarborgsom.

Deze informatie is door ons met de nodige zorgvuldigheid samengesteld. Onzerzijds wordt echter geen enkele aansprakelijkheid aanvaard voor enige onvolledigheid, onjuistheid of anderszins, dan wel de gevolgen daarvan. Alle opgegeven maten en oppervlakten zijn indicatief.
+ toon meer
deze woning is Verkocht

Hogeweg 239 E Amersfoort

Hogeweg 239 E

3816 BS, Amersfoort
Ditters open huis: 5 april 2025 10:00 - 12:00 uur
Landelijke Open Huizen Route NVM: 5 april 2025 11:00 uur - 15:00 uur
Vanaf€ 1.150.000 k.k.

Schakel een aankoopmakelaar in.

Snel handelen helpt je jouw droomhuis te bemachtigen. Zo vergroot je de kans dat je er op tijd bij bent.
Amersfoort
verkocht

Of maak vrijblijvend een zoekprofiel aan.

Vergelijkbare woningen

Hypotheken

Onafhankelijk hypotheekadvies

  • Ligt jouw droomhuis binnen handbereik?
  • Wil je jouw huidige hypotheek verhogen?
  • Is er hypotheekruimte voor verduurzaming?

Blijf op de hoogte

Ontvang als eerste updates over nieuw aanbod en mis geen enkele kans om jouw droomwoning te vinden.

Gratis waardebepaling of verkoopgesprek

Met de vrijblijvende waardecheck weet je snel waar je aan toe bent. Onze makelaars kijken naar de lokale markt en vergelijkbare woningen in jouw buurt om een goede schatting te geven.

Realiseer al jouw woondromen met Ditters

Wij zijn een team van gedreven vastgoedexperts met een passie voor het maken van verbindingen – tussen kopers en verkopers, huurders en verhuurders. Met een frisse kijk op de makelaardij combineren we expertise met creativiteit. Onze makelaars luisteren écht en nemen de tijd om jouw wensen te begrijpen.


Bij Ditters sta je er niet alleen voor. We denken met je mee, begeleiden je in elke stap en zijn altijd bereikbaar voor vragen. Neem gerust contact met ons op – we helpen je graag verder!