Omschrijving

Puntenburgerlaan 14 B is een schitterende, ruime stadswoning, gelegen dichtbij het stadscentrum en het Centraal Station van Amersfoort. De perfecte locatie om in het hart van het levendige centrum van Amersfoort te wonen. In het bestemmingsplan is in het plangebied een groene zone ontworpen met onder andere een speeltuin, hondenuitlaatveldje en veel groenvoorzieningen waar heerlijk gerecreëerd kan worden.

Het historische centrum van Amersfoort, dat bekend staat om zijn sfeervolle grachten, gezellige cafés en bijzondere boetieks, is ook eenvoudig te voet bereikbaar. Bovendien zijn er tal van voorzieningen in de directe omgeving. Een supermarkt voor je dagelijkse boodschappen bevindt zich op loopafstand, evenals diverse scholen, sportfaciliteiten en gezondheidszorg.

De woning is uitstekend bereikbaar, zowel met de auto als met het openbaar vervoer. Met de auto zijn de uitvalswegen A1 en A28 binnen enkele minuten bereikbaar. Op slechts 3 minuten fietsafstand ben je op Amersfoort Centraal. De gunstige treinverbinding brengt je in 12 minuten naar Utrecht Centraal, in 33 minuten naar Amsterdam Centraal, in 41 minuten naar Schiphol en in 37 minuten naar Ede-Wageningen.

De woning heeft maar liefst 4 slaapkamers, een ruime living met aangrenzend de achtertuin. De woning is recent gebouwd (2012), voorzien van energielabel A+ en dat gelegen op deze centrale locatie. De eigen parkeerplaats is een appartementsrecht

Pluspunten van de woning op een rij:

+ Op loopafstand van de historische binnenstad van Amersfoort;
+ Centraal station Amersfoort is op steenworpafstand;
+ Direct om de hoek een heerlijk 'park' met onder andere een speeltuin;
+ Eigen parkeerplaats op een groen binnenterrein (gelegen achter de woning) dat alleen toegankelijk is voor bewoners;
+ Ruime woning met een inhoud van maar liefst 419 m³;
+ 4 ruime slaapkamers;
+ HR beglazing;
+ Energielabel A+;
+ Dakkapel geplaatst;
+ Maar liefst 14 zonnepanelen;
+ Schilderwerk buitenzijde uitgevoerd in 2024.

Indeling van de woning
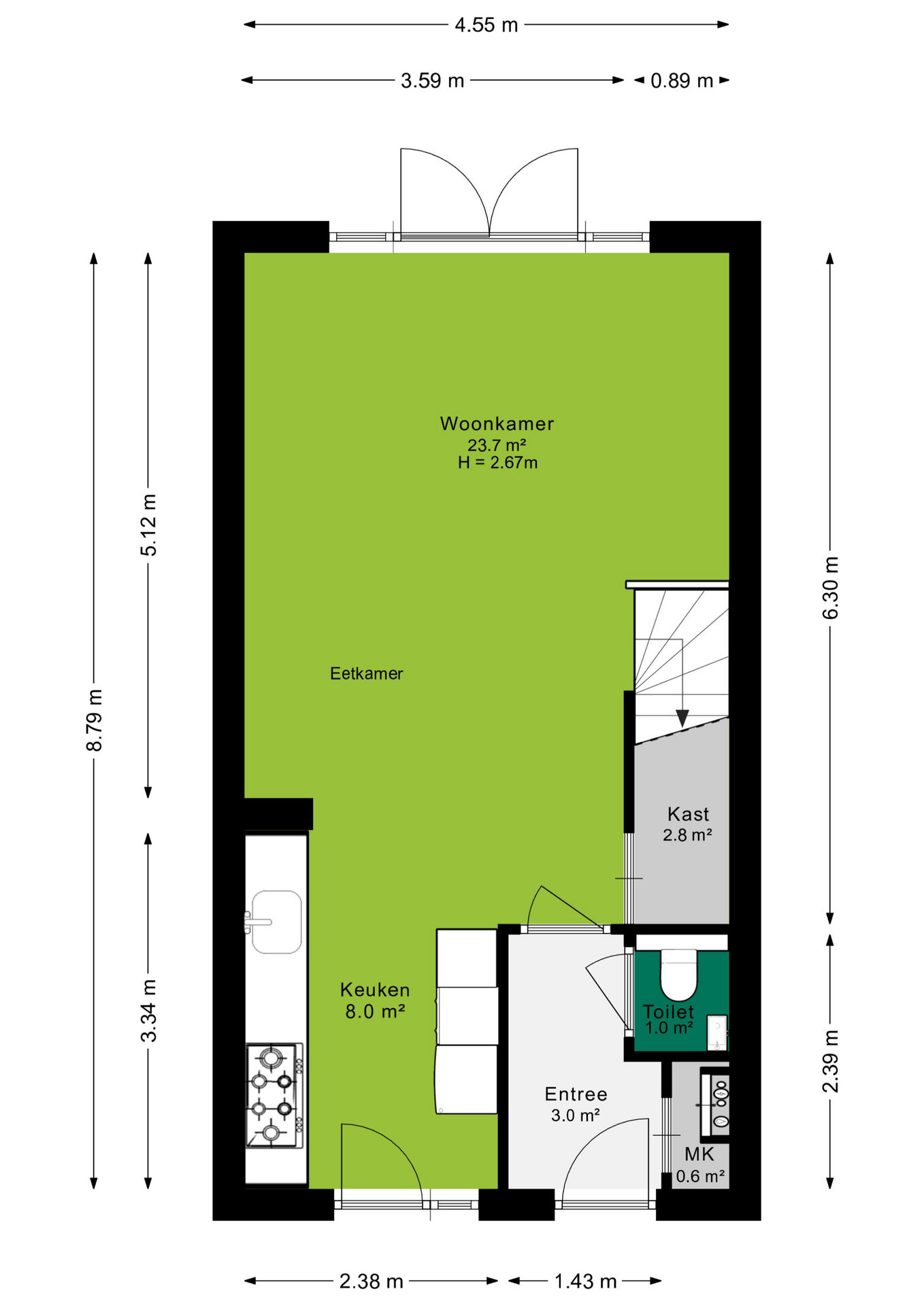
Begane grond:

Entree, hal, meterkast, toiletruimte met zwevend toilet en fonteintje en toegang tot de woonkamer. De woonkamer is aan de achterzijde gelegen. Door de grote pui aan de achterzijde met het vele glaswerk komt er veel lichtinval binnen. De openslaande deuren zorgen er in de zomer voor dat de woonkamer wordt verlengd naar de tuin.

De open keuken bevindt zich aan de voorzijde van de woning en is voorzien van diverse inbouwapparatuur waaronder begrepen:
+ Koelkast (2022);
+ Vaatwasser (2024);
+ Quooker (2016)
+ Gaskookplaat;
+ Combimagnetron (2025);
+ Afzuigkap.

De vloer is afgewerkt met een gietvloer en voorzien van comfortabele vloerverwarming. De witte wandafwerking maakt dat de ruimte licht en ruimtelijk aanvoelt.

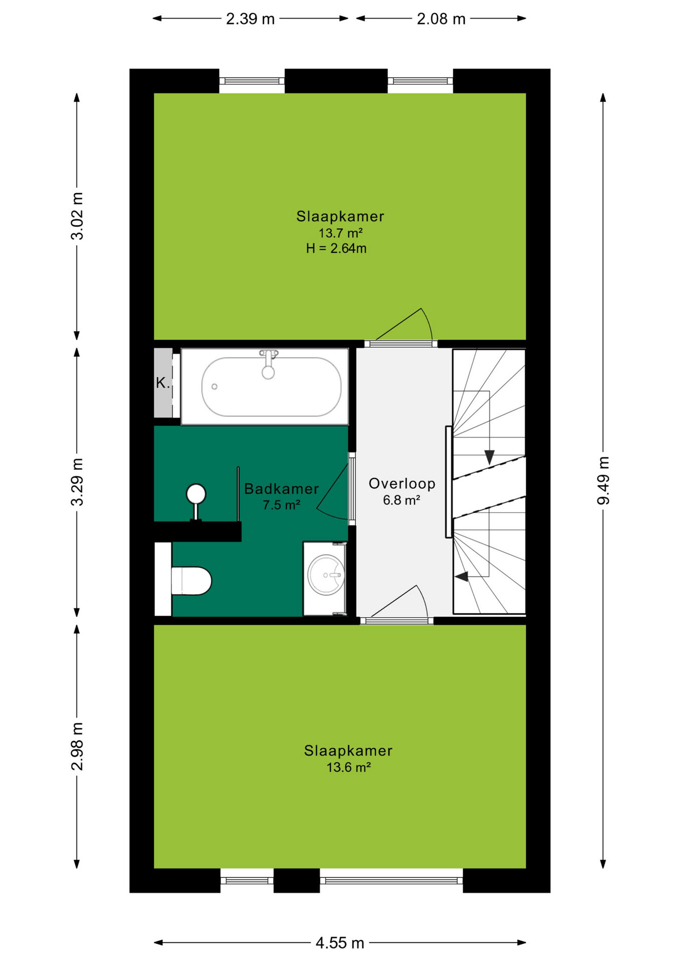
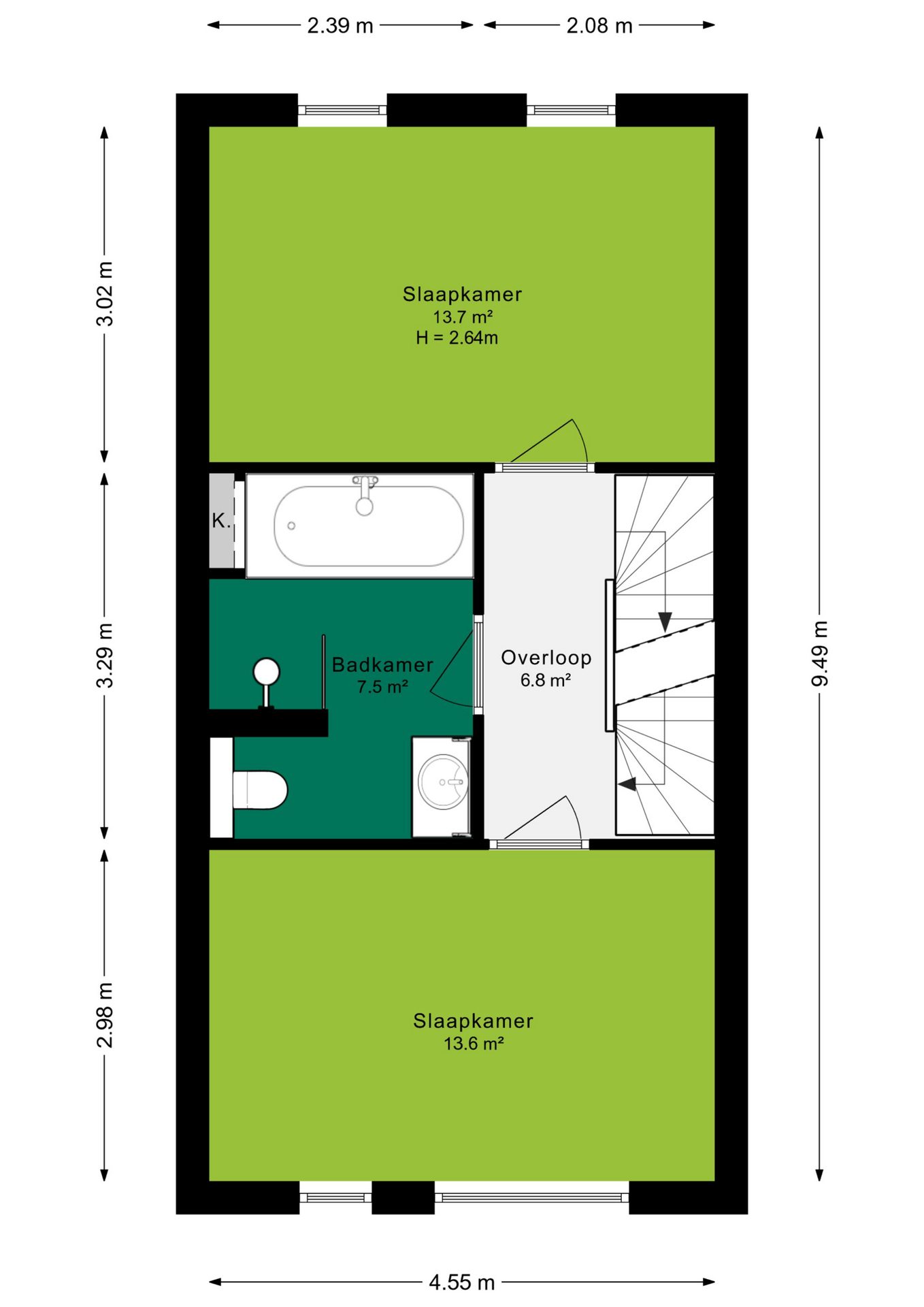
Eerste verdieping:
Via de trap in de woonkamer is de overloop van de eerste verdieping te bereiken. De eerste verdieping heeft twee slaapkamers en een badkamer. Eén slaapkamer is aan de voorzijde gelegen en de andere slaapkamer is aan de achterzijde gelegen en beide zijn over de volle breedte van de woning gesitueerd. De slaapkamer aan de voorzijde heeft zeer grote raampartijen. Een prettige lichte kamer met een diepe vensterbank. De badkamer in het midden van deze verdieping is zeer ruim en uitgerust met alle gemakken, te weten:
+ Inloopdouche;
+ Ingebouwd ligbad;
+ Wastafel met meubel.

De vloer van de badkamer is betegeld met een grijstint. De wanden zijn voorzien van beton ciré. De douche en kraan zijn weggewerkt in de wanden. De sfeervolle houten schappen bij het bad en nisjes maken het geheel af.

De slaapkamers en overloop zijn voorzien van een laminaatvloer.

Tweede verdieping:
De tweede verdieping is middels een vaste trap te bereiken. De overloop is ruim en hier bevindt zich de opstelling van de C.V.-ketel, de wasruimte met de opstelling voor de wasmachine en droger. Ook hier zijn nog twee ruime slaapkamers aanwezig. Één slaapkamer is aan de voorzijde gelegen en de andere is aan de achterzijde gelegen.

Buiten:
Via de openslaande deuren stap je vanuit de woonkamer zo de onderhoudsvriendelijke achtertuin in. Deze tuin is gelegen op het zuidwesten. Via de eigen achterom kom je uit op een parkeerterrein met een eigen parkeerplaats. Er is plek voor één auto op het eigen perceel en daaraan grenzend een berging.

Om de hoek is het park aan de Puntenburgerlaan gelegen. In het groen recreëren en een speeltuin zijn hiermee schuin voor de woning bereikbaar.

Afmetingen
Woonoppervlakte 119 m²
Perceeloppervlakte 78 m²
Inhoud woning 419 m³

Bijzonderheden
Verwarming: C.V.-ketel;
Isolatie: Geheel;
Servicekosten parkeerplaats per maand € 9,50;
Energielabel: A+;
Bouwjaar: 2012;

Aanvaarding: In overleg;

Koopovereenkomst:
Bij de verkoop zal er een standaard NVM koopovereenkomst worden gehanteerd. Bij woningen welke ouder zijn dan 20 jaar, worden de volgende clausules opgenomen in de koopovereenkomst:
- Asbestclausule;
- Ouderdomsclausule.

Koopt u de woning zonder voorbehoud van financiering? Dan zullen wij een termijn hanteren van 14 dagen na het opstellen van de koopovereenkomst voor het storten van de bankgarantie/waarborgsom.

Deze informatie is door ons met de nodige zorgvuldigheid samengesteld. Onzerzijds wordt echter geen enkele aansprakelijkheid aanvaard voor enige onvolledigheid, onjuistheid of anderszins, dan wel de gevolgen daarvan. Alle opgegeven maten en oppervlakten zijn indicatief.
+ toon meer
deze woning is Verkocht

Puntenburgerlaan 14 B Amersfoort

Puntenburgerlaan 14 B

3812 CE, Amersfoort
Ditters open huis: 5 april 2025 10:00 - 12:00 uur
Landelijke Open Huizen Route NVM: 5 april 2025 11:00 uur - 15:00 uur
Vanaf€ 615.000 k.k.

Schakel een aankoopmakelaar in.

Snel handelen helpt je jouw droomhuis te bemachtigen. Zo vergroot je de kans dat je er op tijd bij bent.
Amersfoort
verkocht

Of maak vrijblijvend een zoekprofiel aan.

Vergelijkbare woningen

Hypotheken

Onafhankelijk hypotheekadvies

  • Ligt jouw droomhuis binnen handbereik?
  • Wil je jouw huidige hypotheek verhogen?
  • Is er hypotheekruimte voor verduurzaming?

Blijf op de hoogte

Ontvang als eerste updates over nieuw aanbod en mis geen enkele kans om jouw droomwoning te vinden.

Gratis waardebepaling of verkoopgesprek

Met de vrijblijvende waardecheck weet je snel waar je aan toe bent. Onze makelaars kijken naar de lokale markt en vergelijkbare woningen in jouw buurt om een goede schatting te geven.

Realiseer al jouw woondromen met Ditters

Wij zijn een team van gedreven vastgoedexperts met een passie voor het maken van verbindingen – tussen kopers en verkopers, huurders en verhuurders. Met een frisse kijk op de makelaardij combineren we expertise met creativiteit. Onze makelaars luisteren écht en nemen de tijd om jouw wensen te begrijpen.


Bij Ditters sta je er niet alleen voor. We denken met je mee, begeleiden je in elke stap en zijn altijd bereikbaar voor vragen. Neem gerust contact met ons op – we helpen je graag verder!