Aanbod

Verken ons aanbod. Van huur tot koop. En van nieuwbouw tot bouwkavel. Samen vinden we de plek waar jij je helemaal thuis voelt.

Diensten

Onze experts begeleiden je van A tot Z. Of je nu je huis wilt verkopen, op zoek bent naar je droomhuis of advies nodig hebt over hypotheken of verzekeringen. Met jarenlange ervaring en persoonlijke service zorgen we ervoor dat jij met een gerust hart de juiste keuzes maakt.

Over Ditters

Wij zijn Ditters. Verhalenvertellers. De schakel tussen droom en woning. We luisteren naar jouw wensen en maken op basis daarvan een plan.

Omschrijving

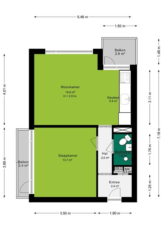
Goed onderhouden, instapklare tweekamerappartement op de vierde verdieping van dit appartementencomplex, gelegen net buiten het stadscentrum en vlakbij winkelcentrum Euterpeplein en diverse uitvalswegen. Zowel aan de voor als achterzijde is er ruim voldoende parkeergelegenheid. Het appartement is gedeeltelijk voorzien van dubbelglas en heeft een prachtig uitzicht naar het water. 

Ligging:
De ligging van het appartement is zeer gunstig te noemen. De woning ligt op 5 minuten fietsafstand van het stadscentrum, NS-Station Amersfoort Centraal ligt op 10 minuten fietsen en winkelcentrum Euterpeplein op 1 minuut loopafstand. Daarnaast zijn er in de directe nabijheid diverse scholen, sportgelegenheden en recreatiegebieden te vinden. Je loopt zo naar het prachtige park Randenbroek en ook zijn de natuurgebieden de Schammer en het Lockhorsterbos vlakbij. Met de auto ben je zo op de uitvalswegen A1 en A28 en ook de openbaar vervoervoorzieningen zijn binnen handbereik.                                                                     

Pluspunten van het appartement op een rij:

+ Gelegen nabij het centrum van Amersfoort;
+ Groene omgeving;
+ Vrij uitzicht;
+ Woonkamer en keuken samengevoegd;
+ Nieuwe keuken uit 2022 met inbouwapparatuur;
+ Geen gas meer in de woning aanwezig (gasmeter verwijderd omdat er geen gas meer wordt gebruikt in dit appartement);
+ Nieuw douchescherm in de badkamer;
+ Meterkast met 3 fasen aansluiting;
+ Twee balkons;
+ Berging op de begane grond.

Indeling centrale entree: Centrale hal met bellentableau, brievenbussen, trapopgang en lift.

De indeling van het appartement is als volgt:
Entree/hal met meterkast, toegang tot de badkamer, slaapkamer en de woonkamer.
De woonkamer met open keuken is een fijne lichte ruimte met grote raampartijen een een fantastisch uitzicht, vanuit hier is toegang tot het eerste balkon. 

De keuken is geplaatst in een rechte opstelling (2022) met doorstroomboiler, wasmachine aansluiting en diverse inbouwapparatuur, waaronder begrepen: 
+ Inductie kookplaat;
+ Oven (AEG en wifi);
+ Koelkast; 
+ Diepvries (non frost);

De royale slaapkamer is bereikbaar vanuit de hal en geeft toegang tot de tweede balkon. Tegenover de slaapkamer is de badkamer gelegen, die is voorzien van: 
+ toilet;
+ wastafel;
+ douche met vernieuwd douchescherm.

Op de begane grond is een berging aanwezig. Rondom het appartementengebouw is gratis parkeergelegenheid.

Afmetingen
Woonoppervlakte 43 m²
Inhoud woning 145 m³

Bijzonderheden
Verwarming: Blokverwarming;
Isolatie: gedeeltelijk dubbelglas;
Energielabel: D;
Bouwjaar: 1965;
Bijdrage VVE: € 209,00 per maand (inclusief € 99,00 stookkosten per maand);
Aanvaarding: In overleg.

Koopovereenkomst:
Bij de verkoop zal er een standaard NVM koopovereenkomst worden gehanteerd. Bij woningen welke ouder zijn dan 20 jaar, worden de volgende clausules opgenomen in de koopovereenkomst:
- Asbestclausule;
- Ouderdomsclausule.

Koopt u de woning zonder voorbehoud van financiering? Dan zullen wij een termijn hanteren van 14 dagen na het opstellen van de koopovereenkomst voor het storten van de bankgarantie/waarborgsom.

Deze informatie is door ons met de nodige zorgvuldigheid samengesteld. Onzerzijds wordt echter geen enkele aansprakelijkheid aanvaard voor enige onvolledigheid, onjuistheid of anderszins, dan wel de gevolgen daarvan. Alle opgegeven maten en oppervlakten zijn indicatief.
+ toon meer
deze woning is Verkocht

Ringweg-Randenbroek 72 D Amersfoort

Ringweg-Randenbroek 72 D

3816 CM, Amersfoort
Ditters open huis: 5 april 2025 10:00 - 12:00 uur
Landelijke Open Huizen Route NVM: 5 april 2025 11:00 uur - 15:00 uur
Vanaf€ 250.000 k.k.

Schakel een aankoopmakelaar in.

Snel handelen helpt je jouw droomhuis te bemachtigen. Zo vergroot je de kans dat je er op tijd bij bent.
Amersfoort
verkocht

Of maak vrijblijvend een zoekprofiel aan.

Vergelijkbare woningen

Hypotheken

Onafhankelijk hypotheekadvies

  • Ligt jouw droomhuis binnen handbereik?
  • Wil je jouw huidige hypotheek verhogen?
  • Is er hypotheekruimte voor verduurzaming?

Blijf op de hoogte

Ontvang als eerste updates over nieuw aanbod en mis geen enkele kans om jouw droomwoning te vinden.

Gratis waardebepaling of verkoopgesprek

Met de vrijblijvende waardecheck weet je snel waar je aan toe bent. Onze makelaars kijken naar de lokale markt en vergelijkbare woningen in jouw buurt om een goede schatting te geven.

Realiseer al jouw woondromen met Ditters

Wij zijn een team van gedreven vastgoedexperts met een passie voor het maken van verbindingen – tussen kopers en verkopers, huurders en verhuurders. Met een frisse kijk op de makelaardij combineren we expertise met creativiteit. Onze makelaars luisteren écht en nemen de tijd om jouw wensen te begrijpen.


Bij Ditters sta je er niet alleen voor. We denken met je mee, begeleiden je in elke stap en zijn altijd bereikbaar voor vragen. Neem gerust contact met ons op – we helpen je graag verder!