Omschrijving

Deze charmante tussenwoning is perfect gelegen in de geliefde wijk Rijkerswoerd en beschikt over alle ingrediënten voor comfortabel wonen. Met een woonoppervlakte van ca. 96m², een tuin op het zonnige westen en een praktische indeling, biedt deze woning zowel rust als functionaliteit.

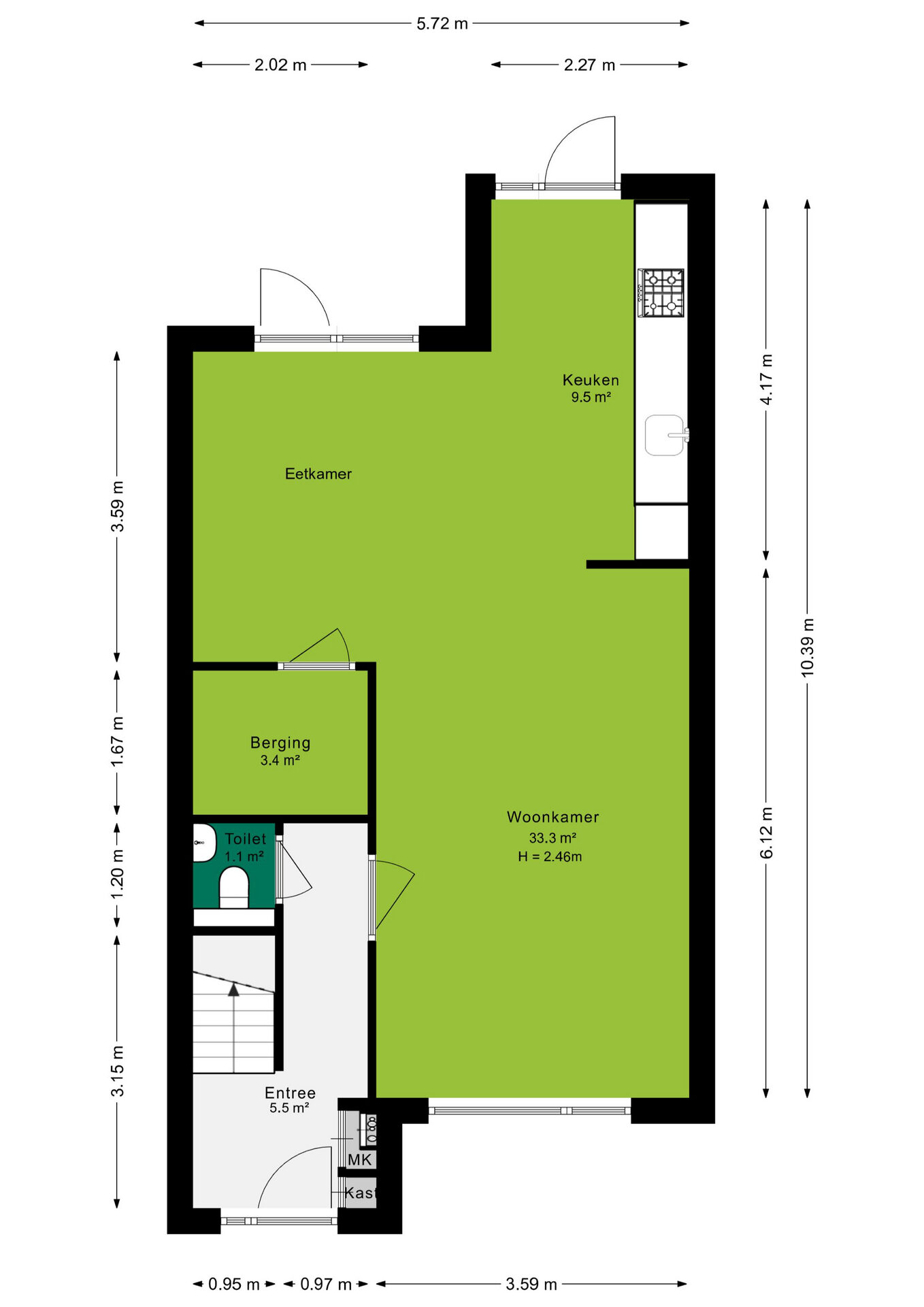
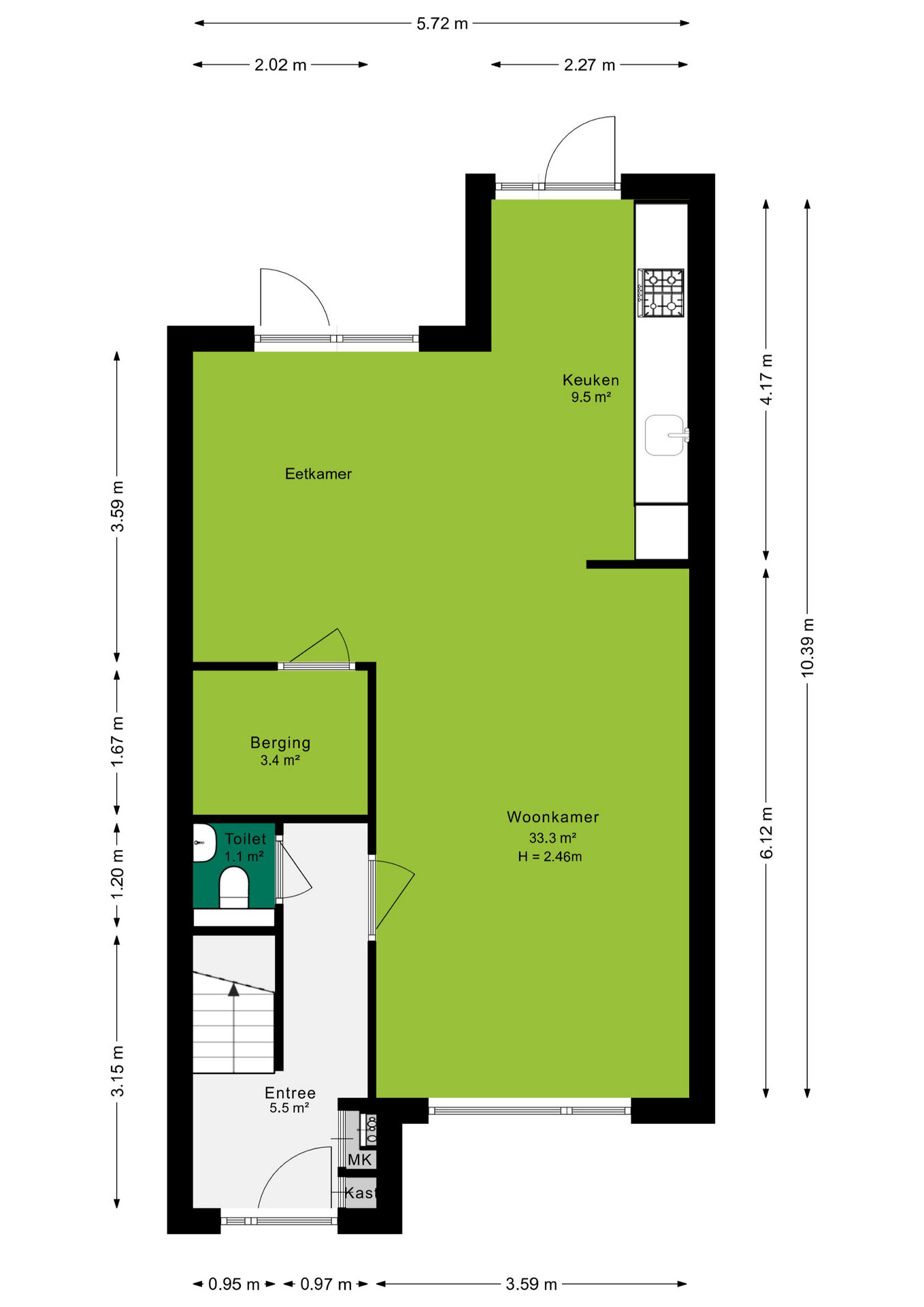
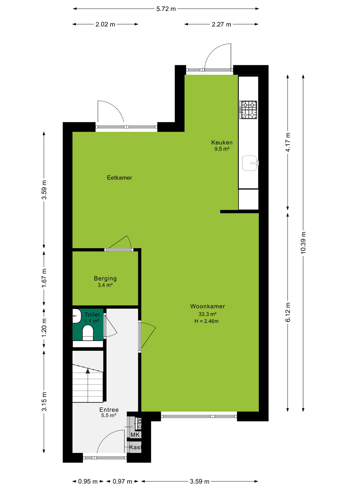
Bij binnenkomst vanuit de hal stap je direct in de gezellige woonkamer, waar je dankzij de grote raampartij aan de voorzijde geniet van een fijn lichtinval in de woonkamer. De open keuken is uitgerust met diverse inbouwapparatuur en voorzien van bovenkasten voor extra opbergruimte. Vanuit de keuken is er toegang tot de zonnige tuin, waar je heerlijk kunt ontspannen en genieten van het buitenleven tot in de late uurtjes. De tuin is gunstig gelegen op het westen en biedt voldoende privacy. Op de verdieping bevinden zich twee slaapkamers, perfect als hoofdslaapkamer en bijvoorbeeld een logeer- of werkkamer. De moderne badkamer is uitgevoerd in een neutrale kleurstelling en voorzien van een inloopdouche, wastafelmeubel met dubbele kranen en een toilet.

De woning is centraal gelegen in Rijkerswoerd, een rustige en groene buurt die zeer geliefd is bij gezinnen. Diverse scholen, sportfaciliteiten en winkelcentra liggen in de directe omgeving. Het Jubileumpark en andere parken nodigen uit voor een wandeling of een ontspannen middag in de natuur. Bovendien is de bereikbaarheid uitstekend: de bushalte bevindt zich op 100 meter afstand en binnen 15 minuten ben je met de bus in het centrum van Arnhem. Ook de A325 is binnen 5 minuten te bereiken. Kortom, een moderne en comfortabele woning op een uitstekende locatie! Plan snel een bezichtiging in en ervaar het zelf!

Alle feiten op een rij:
- 2-laagse woning met 96m² woonoppervlakte en energielabel A
- Twee slaapkamers en een moderne badkamer
- Heerlijke tuin met privacy gelegen op het zonnige westen
- Centrale ligging in de wijk Rijkerswoerd
- De woning is gelegen in een geliefde wijk nabij diverse voorzieningen en uitvalswegen

Indeling
Begane grond
Bij binnenkomst geeft de hal, met meterkast en toilet, toegang tot de woonkamer en de trapopgang naar de verdieping. De gezellige ruime woonkamer is voorzien van een laminaatvloer en beschikt over een groot raampartij met uitzicht over de straat. De keuken is gelegen aan de achterzijde van de woning en is voorzien van diverse inbouwapparatuur, te weten: een gasfornuis, afzuigkap, koel-vriescombinatie en een vaatwasser. In de eethoek is voldoende ruimte voor het plaatsen van een eettafel en de extra berging biedt ruimte voor extra opslag, voor bijvoorbeeld extra voorraad. Zowel vanuit de keuken als de eethoek is er toegang naar de achtertuin.

Eerste verdieping
De overloop geeft toegang tot 2 slaapkamers en de moderne badkamer. De slaapkamers zijn goed bemeten en hebben een afmeting van 14m² en 8m². Beiden slaapkamers zijn voorzien van dakramen en de grootste slaapkamer beschikt over een vaste schuifdeurkast. De moderne badkamer is voorzien van een inloopdouche, wastafelmeubel met dubbele kranen, een toilet en een raam om te kunnen ventileren. Op de overloop bevindt zich tevens een kast waarin de C.V.-ketel staat opgesteld.

Tuin
De heerlijke tuin is gelegen op het westen, waardoor je optimaal kunt genieten van het buitenleven en de zon. In de tuin is een praktische berging aanwezig, ideaal voor het opslaan van je spullen.

Kenmerken:
Verwarming: C.V. combiketel (bouwjaar 2019)
Warm water: C.V. combiketel (bouwjaar 2019)
Bouwjaar: 1991
Isolatie: volledig geïsoleerd
Tuinligging: westen
Aanvaarding: in overleg

Koopovereenkomst:
Bij de verkoop zal er een standaard NVM koopovereenkomst worden gehanteerd. Bij woningen welke ouder zijn dan 20 jaar, worden de volgende clausules opgenomen in de koopovereenkomst:
- Asbestclausule
- Ouderdomsclausule

Koop je de woning zonder voorbehoud van financiering? Dan zullen wij een termijn hanteren van 14 dagen na het opstellen van de koopovereenkomst voor het storten van de bankgarantie/waarborgsom.

Deze informatie is door ons met de nodige zorgvuldigheid samengesteld. Onzerzijds wordt echter geen enkele aansprakelijkheid aanvaard voor enige onvolledigheid, onjuistheid of anderszins, dan wel de gevolgen daarvan. Alle opgegeven maten en oppervlakten zijn indicatief.
+ toon meer
deze woning is Verkocht

Anna Bijnsstraat 15 Arnhem

Anna Bijnsstraat 15

6836 PV, Arnhem
Ditters open huis: 5 april 2025 10:00 - 12:00 uur
Landelijke Open Huizen Route NVM: 5 april 2025 11:00 uur - 15:00 uur
Vanaf€ 339.500 k.k.

Schakel een aankoopmakelaar in.

Snel handelen helpt je jouw droomhuis te bemachtigen. Zo vergroot je de kans dat je er op tijd bij bent.
Arnhem
verkocht

Of maak vrijblijvend een zoekprofiel aan.

Vergelijkbare woningen

Hypotheken

Onafhankelijk hypotheekadvies

  • Ligt jouw droomhuis binnen handbereik?
  • Wil je jouw huidige hypotheek verhogen?
  • Is er hypotheekruimte voor verduurzaming?

Blijf op de hoogte

Ontvang als eerste updates over nieuw aanbod en mis geen enkele kans om jouw droomwoning te vinden.

Gratis waardebepaling of verkoopgesprek

Met de vrijblijvende waardecheck weet je snel waar je aan toe bent. Onze makelaars kijken naar de lokale markt en vergelijkbare woningen in jouw buurt om een goede schatting te geven.

Realiseer al jouw woondromen met Ditters

Wij zijn een team van gedreven vastgoedexperts met een passie voor het maken van verbindingen – tussen kopers en verkopers, huurders en verhuurders. Met een frisse kijk op de makelaardij combineren we expertise met creativiteit. Onze makelaars luisteren écht en nemen de tijd om jouw wensen te begrijpen.


Bij Ditters sta je er niet alleen voor. We denken met je mee, begeleiden je in elke stap en zijn altijd bereikbaar voor vragen. Neem gerust contact met ons op – we helpen je graag verder!