In de geliefde woonwijk 'Schuytgraaf' bevindt zich deze moderne hoekwoning met heerlijke tuin gelegen op het zuidoosten. De woning is in 2008 gebouwd, beschikt over energielabel A, 7 stuks zonnepanelen en is instapklaar te noemen. Is dit jouw droomwoning? Plan een bezichtiging in en laat je verrassen.
De tuingerichte woonkamer heeft een open en lichte uitstraling dankzij de grote raampartijen en openslaande tuindeuren naar de achtertuin. De open keuken aan de voorzijde van de woning is geplaatst in 2023, luxe en stijlvol ingericht. De combinatie van strakke lijnen en warme materialen zorgt voor een tijdloze uitstraling. Op de eerste verdieping bevinden zich drie slaapkamers en de badkamer. Eén van de kamers is momenteel in gebruik als werkkamer, maar kan eenvoudig weer als slaapkamer worden ingericht. De tweede verdieping is naar eigen wens in te richten, bijvoorbeeld om een 4e slaapkamer te realiseren, en hier tref je de witgoedaansluiting. De achtertuin beschikt over een terras en groenstrook. Boven het terras hangt een elektrische zonneluifel, zodat je zowel in de zon als in de schaduw kunt genieten. Achter in de tuin vind je een praktische berging en een poort naar de achterom.
Schuytgraaf ligt op korte afstand van de bruisende binnenstad en beschikt over diverse voorzieningen, zoals: meerdere basisscholen, een internationale school, sportcomplexen, horecagelegenheden en supermarkten. Tevens door het openbare vervoer (station Arnhem-Zuid) en de uitvalswegen A50 en A325 is de woning ideaal gelegen. Verder is de woning gelegen binnen een rustige straat en zijn er diverse speelplekjes en groenstroken in de nabije omgeving.
Alle feiten op een rij
- Gelegen in een fantastische groene woonomgeving
- Tuingerichte woonkamer met veel lichtinval
- Luxe en stijlvolle keuken, geplaatst in 2023, voorzien van diverse inbouwapparatuur
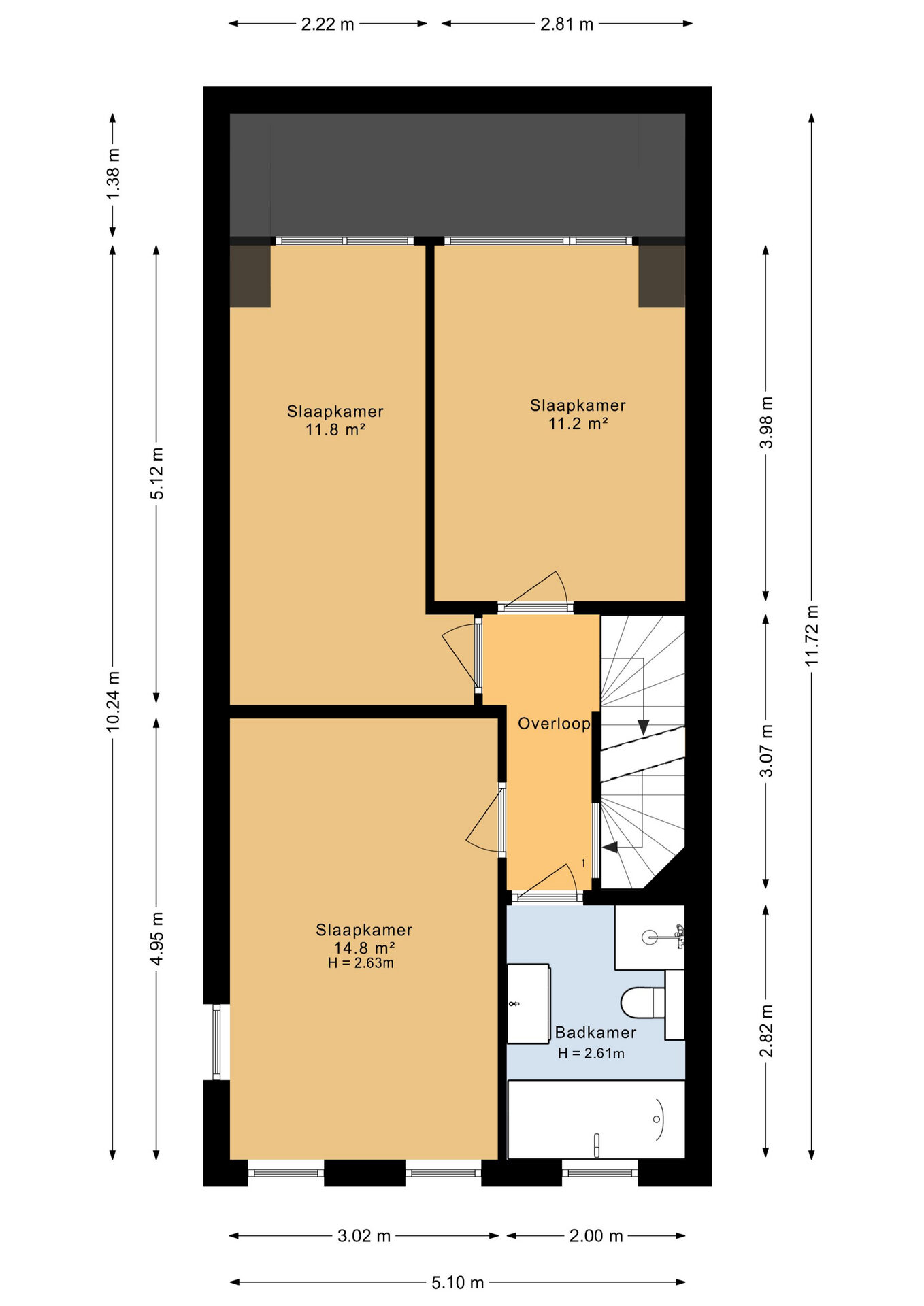
- 3 volwaardige slaapkamers op de eerste verdieping
- Moderne badkamer met ligbad en aparte douche
- Voorzien van 7 zonnepanelen (geplaatst in 2021)
- Op loopafstand van diverse voorzieningen (winkels, scholen, wandelroutes etc.)
Indeling
Begane grond:
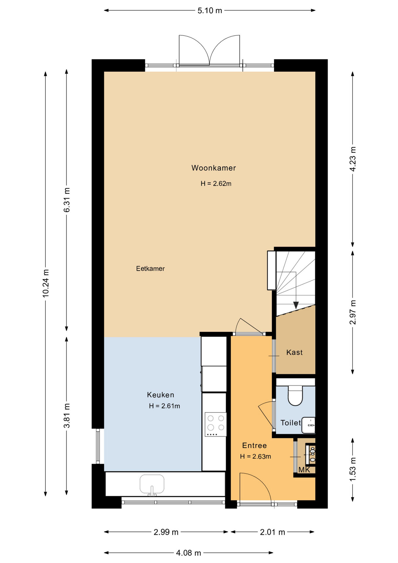
Via de hal, met meterkast en toilet, bereik je de woning. De tuingerichte woonkamer is voorzien van een sfeervolle houten vloer. De grote raampartijen zorgen voor een mooi lichtinval en de openslaande deuren creëren een effect wat de tuin een verlengstuk van de woonkamer maakt. Door de prettige afmeting is er ruimte genoeg voor een grote eettafel en ontstaat er een gezellige verbinding met de woonkeuken. De open keuken is gelegen aan de voorzijde, geplaatst in 2023 en beschikt over een moderne keuken in hoekopstelling. De keuken is luxe en stijlvol uitgevoerd in een lichte kleurstelling. Met de aanwezige raampartijen ervaar je hier een fijn lichtinval en kijk je gezellig uit over de straat. De aanwezige inbouwapparatuur betreft o.a. een kookplaat met geïntegreerde afzuiging, combi-oven/magnetron, koel-vriescombinatie en een vaatwasser.
Eerste verdieping:
De overloop geeft toegang tot drie slaapkamers en de badkamer. De slaapkamers hebben allen een goed formaat en zijn voorzien van een sfeervolle vloer en keurige wand afwerking. De badkamer is betegeld in een lichte kleurstelling en is voorzien van een ligbad, aparte douche, wastafel met wastafelmeubel en een toilet. Het raam biedt een fijn daglicht en geeft, naast de aanwezige mechanische ventilatie, ook de mogelijkheid om de badkamer op een natuurlijke manier te ventileren.
Tweede verdieping:
Via de vaste trap is de tweede verdieping te bereiken. Deze verdieping is open en vrij in te delen naar wens. Je kunt hier gemakkelijk een 4e slaapkamer realiseren of deze ruimte als werk-, kantoor- of sportplek gebruiken. Tevens is hier de witgoed-aansluiting aanwezig en beschik je over bergruimte achter de knieschotten.
Tuin:
Via de openslaande deuren bereik je de heerlijke tuin, gelegen op het zonnige zuidoosten. Door de afmeting van de tuin is er plek genoeg om te genieten in het zonnetje, of als je op warme zomerse dagen in de schaduw wilt zitten kan dit onder de elektrische zonwering. Achter in de tuin vind je een praktische berging en een poort naar de achterom.
Kenmerken:
Verwarming: stadsverwarming
Warm water: centrale voorziening
Isolatie: volledig geïsoleerd
Bouwjaar: 2008
Tuinligging: zuidoost
Aanvaarding: in overleg
Koopovereenkomst:
Bij de verkoop zal er een standaard NVM koopovereenkomst worden gehanteerd. Bij woningen welke ouder zijn dan 20 jaar, worden de volgende clausules opgenomen in de koopovereenkomst:
- Asbestclausule;
- Ouderdomsclausule.
Koopt u de woning zonder voorbehoud van financiering? Dan zullen wij een termijn hanteren van 14 dagen na het opstellen van de koopovereenkomst voor het storten van de bankgarantie/waarborgsom.
Deze informatie is door ons met de nodige zorgvuldigheid samengesteld. Onzerzijds wordt echter geen enkele aansprakelijkheid aanvaard voor enige onvolledigheid, onjuistheid of anderszins, dan wel de gevolgen daarvan. Alle opgegeven maten en oppervlakten zijn indicatief.