Aanbod

Verken ons aanbod. Van huur tot koop. En van nieuwbouw tot bouwkavel. Samen vinden we de plek waar jij je helemaal thuis voelt.

Diensten

Onze experts begeleiden je van A tot Z. Of je nu je huis wilt verkopen, op zoek bent naar je droomhuis of advies nodig hebt over hypotheken of verzekeringen. Met jarenlange ervaring en persoonlijke service zorgen we ervoor dat jij met een gerust hart de juiste keuzes maakt.

Over Ditters

Wij zijn Ditters. Verhalenvertellers. De schakel tussen droom en woning. We luisteren naar jouw wensen en maken op basis daarvan een plan.

Omschrijving

Gelegen op fantastische locatie in de bruisende binnenstad van Arnhem bevindt zich dit geweldige herenhuis met een woonoppervlakte van 135m², ruim dakterras en een eigen carport. De woning is gebouwd in 2017, volledig geïsoleerd, voorzien van HR++ beglazing en energielabel A. Daarnaast is er op iedere verdieping vloerverwarming aanwezig.

Ook de volgende aspecten van dit geweldige herenhuis spreken je vast aan: een woonkeuken met kookeiland voorzien van diverse inbouwapparatuur, een woonkamer op de 1e verdieping met heerlijk veel lichtinval door de grote raampartijen, voorzien van 3 (slaap)kamers, een moderne badkamer, een praktische bijkeuken en 2 eigen parkeerplaatsen met 1 laadpaal onder de carport. Daarnaast is er een heerlijk dakterras aanwezig waar je optimaal kunt genieten van het buitenleven.

De woning is ideaal gelegen in het midden van alles wat het centrum van Arnhem te bieden heeft! Denk hierbij aan een ruim aanbod aan winkels, supermarkten, cafés, restaurants, sportgelegenheden, scholen en openbaar vervoer. Het appartement is gunstig gelegen ten opzichte van het openbaar vervoer met een bushalte op 4 minuten lopen. Het NS-station Arnhem Centraal op 6 minuten fietsafstand en met de auto is de dichtstbijzijnde uitvalsweg op slechts 4 minuten rijden.

Indeling

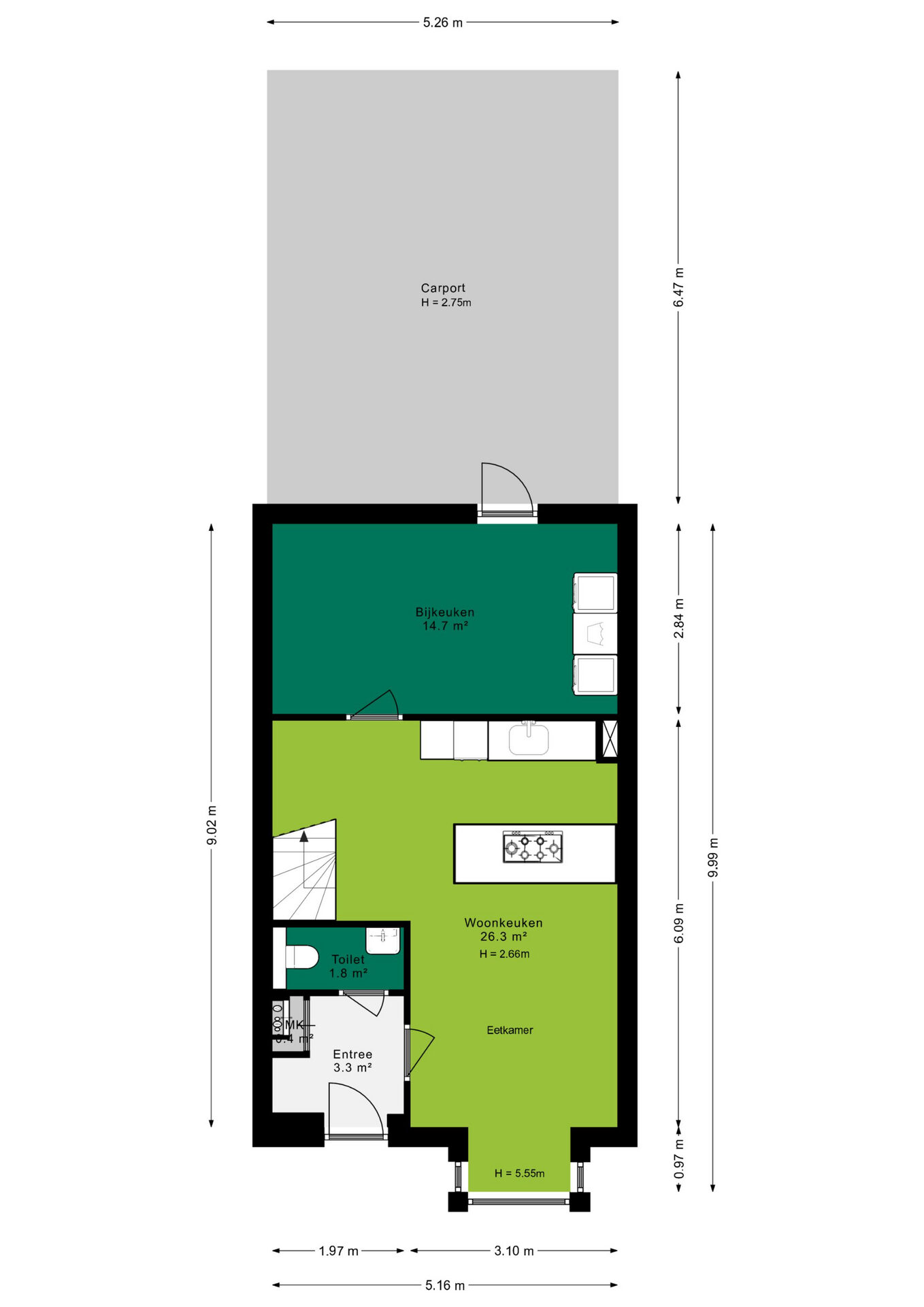
Begane grond
Via de entree met hal, meterkast en modern zwevend toilet bereik je de woning. De woonkeuken is voorzien van een gietvloer en heerlijk veel lichtinval. De woonkeuken is is goed bemeten en voorzien van een kookeiland en diverse inbouwapparatuur, te weten: een kookplaat, afzuigkap, oven, combi-oven/magnetron, koel-vriescombinatie en een vaatwasser. Door de fijne afmeting is er ruimte genoeg voor een grote eettafel en mede door de vide krijg je hier een ruimtelijk effect. De praktische bijkeuken heeft een afmeting van 14,7m² en hier is de witgoed-aansluiting aanwezig.

Eerste verdieping
Via de trapopgang kom je aan op de eerste verdieping en hier bevindt zich de woonkamer. De woonkamer heeft een royale afmeting van ca 50m² en is voorzien van een gietvloer, strakke wanden en heerlijk veel lichtinval door de grote raampartijen. De openslaande deuren geven toegang tot het heerlijke en ruime dakterras gelegen op het oosten met ochtend- en middagzon.

Tweede verdieping
Via een vaste trap krijg je toegang tot de volwaardig tweede verdieping. Deze verdieping telt 3 (slaap)kamers, de badkamer en een bergruimte. De (slaap)kamers hebben een afmeting van 13,8m², 7,3m² en 6m². Een van deze (slaap)kamers is thans in gebruik als inloopkast. De badkamer is ruim bemeten en is volledig betegeld in een moderne kleurstelling. De badkamer is voorzien van inloopdouche, dubbele wastafel met wastafelmeubel, een toilet en een raam om te kunnen ventileren. Op de overloop is een bergkast aanwezig waarin de C.V.-ketel staat opgesteld.

Dakterras/ carport
Het heerlijke dakterras is bereikbaar op de eerste verdieping vanuit de woonkamer. Het dakterras is gelegen op het oosten en hier kan je optimaal van het buitenleven en het zonnetje genieten. Vanuit de bijkeuken is de carport te bereiken. Hier is tevens een laadpaal aanwezig voor een elektrische auto.

Kenmerken:
Verwarming: C.V.-ketel (bouwjaar 2017) en volledige vloerverwarming
Warm water: C.V.-ketel (bouwjaar 2017)
Isolatie: volledig geïsoleerd
Bouwjaar: 2017
Aanvaarding: in overleg

Pluspunten van de woning:
+ Fantastische eengezinswoning nabij het centrum van Arnhem;
+ Woonkeuken met kookeiland en diverse inbouwapparatuur;
+ Royale woonkamer met heerlijk veel lichtinval;
+ Voorzien van 3 (slaap)kamers;
+ Moderne badkamer;
+ Heerlijk dakterras gelegen op het oosten;
+ Eigen parkeerplaats met laadpaal onder de carport;
+ Gelegen midden in het centrum van Arnhem nabij alle voorzieningen.

Koopovereenkomst:
Bij de verkoop zal er een standaard NVM koopovereenkomst worden gehanteerd. Bij woningen welke ouder zijn dan 20 jaar, worden de volgende clausules opgenomen in de koopovereenkomst:
- Asbestclausule;
- Ouderdomsclausule.

Koop je de woning zonder voorbehoud van financiering? Dan zullen wij een termijn hanteren van 14 dagen na het opstellen van de koopovereenkomst voor het storten van de bankgarantie/waarborgsom.

Deze informatie is door ons met de nodige zorgvuldigheid samengesteld. Onzerzijds wordt echter geen enkele aansprakelijkheid aanvaard voor enige onvolledigheid, onjuistheid of anderszins, dan wel de gevolgen daarvan. Alle opgegeven maten en oppervlakten zijn indicatief.
+ toon meer
deze woning is Verkocht

Paradijs 33 Arnhem

Paradijs 33

6811 HJ, Arnhem
Ditters open huis: 5 april 2025 10:00 - 12:00 uur
Landelijke Open Huizen Route NVM: 5 april 2025 11:00 uur - 15:00 uur
Vanaf€ 795.000 k.k.

Schakel een aankoopmakelaar in.

Snel handelen helpt je jouw droomhuis te bemachtigen. Zo vergroot je de kans dat je er op tijd bij bent.
Arnhem
verkocht

Of maak vrijblijvend een zoekprofiel aan.

Vergelijkbare woningen

Hypotheken

Onafhankelijk hypotheekadvies

  • Ligt jouw droomhuis binnen handbereik?
  • Wil je jouw huidige hypotheek verhogen?
  • Is er hypotheekruimte voor verduurzaming?

Blijf op de hoogte

Ontvang als eerste updates over nieuw aanbod en mis geen enkele kans om jouw droomwoning te vinden.

Gratis waardebepaling of verkoopgesprek

Met de vrijblijvende waardecheck weet je snel waar je aan toe bent. Onze makelaars kijken naar de lokale markt en vergelijkbare woningen in jouw buurt om een goede schatting te geven.

Realiseer al jouw woondromen met Ditters

Wij zijn een team van gedreven vastgoedexperts met een passie voor het maken van verbindingen – tussen kopers en verkopers, huurders en verhuurders. Met een frisse kijk op de makelaardij combineren we expertise met creativiteit. Onze makelaars luisteren écht en nemen de tijd om jouw wensen te begrijpen.


Bij Ditters sta je er niet alleen voor. We denken met je mee, begeleiden je in elke stap en zijn altijd bereikbaar voor vragen. Neem gerust contact met ons op – we helpen je graag verder!