Omschrijving

Luxe wonen en ultiem comfort onder één dak: een vrijstaande villa om van te dromen!

Welkom bij deze schitterende vrijstaande villa, waar stijl, comfort en genot samenkomen. Deze royale woning, met een woonoppervlakte van maar liefst 273m², biedt alles wat je nodig hebt voor een heerlijk woongenot voor het gehele gezin. Met zes riante slaapkamers, twee badkamers en prachtige buitenruimtes is dit de plek waar luxe en ruimte naadloos samenkomen. Omgeven door de fraai aangelegde tuin en gelegen in een rustige, groene omgeving geniet je van een heerlijke sfeer, zowel binnen als buiten. De buitenruimte is absoluut een verlengstuk van de woning. Van een royaal verwarmd zwembad – een plek waar je het hele jaar door kunt ontspannen – tot de zonnige terrassen: alles is erop ingericht om te genieten van het buitenleven. Hier worden zomerdagen en -avonden onvergetelijk. Onder de veranda, compleet met een pizzaoven, maak je geweldige herinneringen met familie en vrienden.

Deze locatie van deze prachtige villa bevindt zich aan de rand van de groene en waterrijke wijk Bloesemgaerd. Hier geniet je van de perfecte balans tussen rust en het gemak van een uitstekende ligging. Op korte afstand ligt de bruisende binnenstad, terwijl de directe omgeving voorziet in diverse voorzieningen, zoals meerdere basisscholen, een internationale school, sportcomplexen, gezellige horecagelegenheden en supermarkten. Met station Arnhem-Zuid en de uitvalswegen A50 en A325 in de buurt is de bereikbaarheid optimaal. Bovendien ligt de woning in een rustige, kindvriendelijke straat, omringd door groenstroken en diverse speelplekken waar jong en oud kunnen genieten van de buitenlucht. Kortom, een exclusieve leefomgeving die perfect is voor wie ruimte, kwaliteit, en ontspanning zoekt. Genieten van een ontspannen duik in je eigen verwarmde zwembad, pizza’s bakken of gewoon genieten van een zeer ruime en luxe woning – hier is het allemaal mogelijk.

Alle feiten op een rij:
- Vrijstaande villa op een royaal perceel van 500m²
- Fantastisch lichtinval door de vele raampartijen
- Maar liefst zes slaapkamers op de verdiepingen en twee badkamers
- Een heerlijke tuin, verwarmd zwembad en veranda met pizza oven
- Eigen oprit, inpandige garage en tuinberging
- Energiezuinig, 22 stuks zonnepanelen en verwarming middels stadsverwarming
- De aanwezige airconditioning zorgt voor zowel verkoeling als verwarming
- Buitenschilderwerk is gedaan in 2024
- Gelegen in de groene en waterrijke wijk Bloesemgaerd

Indeling
Begane grond
Via een eigen oprit, waar je beschikt over een parkeerplek, bereik je de woning. De entree met ruime hal, meterkast, praktische garderobekast en toiletruimte geeft je toegang naar de inpandige garage en de leefruimtes. Bij binnenkomst in de leefruimte valt direct de prachtige vide op, die zorgt voor een schitterende lichtinval en een gevoel van ruimte en openheid. De woonkeuken beschikt o.a. over een kookeiland met RVS blad, 6-pits inductieplaat, vaatwasser, oven met grill functie, magnetron, koelkast, vriezer en veel opbergruimte. De eethoek, gelegen aan de voorzijde van de woning, staat in open verbinding met de keuken. Ideaal voor lang tafelen en avonden met vrienden en familie. De woonkamer bevindt zich aan de achterzijde van de woning, met een cinema-wall en openslaande deuren naar de veranda is het hier heerlijk vertoeven en ontspannen. De gehele begane grond is voorzien van vloerverwarming met een prachtige houten vloer die in 2024 opnieuw is geschuurd en gelakt.

Eerste verdieping
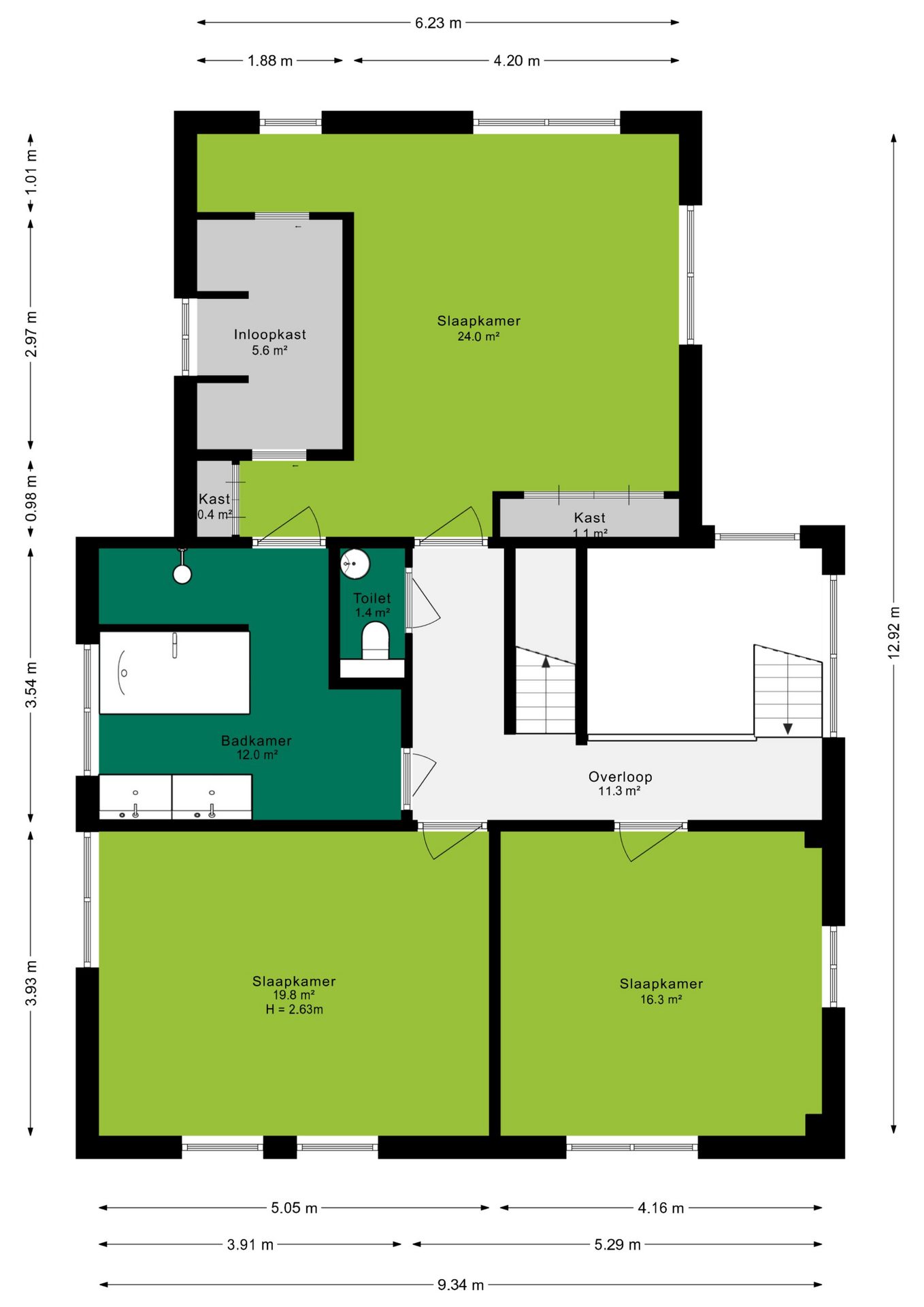
Via de overloop, waar het natuurlijke licht prachtig naar binnen valt, krijg je toegang tot drie ruime slaapkamers en de eerste badkamer. De slaapkamers zijn royaal van formaat, met oppervlaktes van circa 24m², 20m² en 16m². De grootste slaapkamer is extra bijzonder met een luxe inloopkast voor al je kleding en accessoires. De charmante raampartijen met roedeverdeling zorgen voor een sfeervol en aangenaam lichtinval in elke kamer. Daarnaast zijn alle slaapkamers voorzien van airconditioning met verwarmingsfunctie en automatische zonnescreens, die individueel te bedienen zijn voor optimaal comfort.
De royale badkamer van 12m² is een oase van ontspanning. Ingericht in een moderne kleurencombinatie, biedt deze ruimte een luxe whirlpoolbad, een ruime inloopdouche en een dubbele wastafel met wastafelmeubel. Dankzij het aanwezige raam profiteer je niet alleen van fijn daglicht, maar kun je de ruimte ook naast de mechanische ventilatie op een natuurlijke manier ventileren. Een badkamer waar design en functionaliteit samenkomen!

Tweede verdieping
De overloop biedt toegang tot twee slaapkamers en de praktische wasruimte, compleet met aansluitingen voor de wasmachine en droger, een handige wasbak en de technische ruimte. Aan de achterzijde bevindt zich de slaapkamer van circa 16m² met een eigen badkamer, uitgerust met een douche, toilet en wastafel – perfect voor logees of oudere kinderen die behoefte hebben aan privacy. De slaapkamer aan de voorzijde is voorzien van een dakkapel met prachtig vrij uitzicht over de groene omgeving. Met een afmeting van circa 34m² biedt dit de mogelijkheid om de ruimte eenvoudig op te splitsen in twee goed bemeten slaapkamers. Deze bovenverdieping biedt tal van mogelijkheden en kan gemakkelijk worden ingericht als logeerruimte, hobbykamer of werkplek. Kortom, een veelzijdige verdieping die naar wens te gebruiken is!

Derde verdieping
Via een vaste trap bereik je de derde verdieping. Deze slaapkamer leent zich uitstekend als speelkamer of bergruimte.

Tuin en garage
Wat een geweldige tuin! Hier kan je optimaal van het buitenleven, het zonnetje en de rust genieten. Met een indrukwekkende diepte van circa 18,5 meter is er altijd een plekje te vinden in de zon of schaduw. De tuin biedt volop privacy, waardoor je hier heerlijk tot rust kunt komen. Neem een ontspannende duik in het verwarmde zwembad en sluit de dag af met een diner onder de sfeervolle veranda, waar je geniet van een zelfgemaakte pizza uit de pizzaoven.

De inpandige garage en aparte tuinberging zorgen voor meer dan genoeg praktische opslagruimte voor tuinkussens, fietsen en andere benodigdheden. Deze tuin is een ware oase waar het hele jaar door genoten kan worden!

Kenmerken:
Verwarming: Stadsverwarming, gedeeltelijke vloerverwarming en airconditioning
Warm water: Stadsverwarming
Bouwjaar: 2007
Aanvaarding: In overleg

Koopovereenkomst:
Bij de verkoop zal er een standaard NVM koopovereenkomst worden gehanteerd. Bij woningen welke ouder zijn dan 20 jaar, worden de volgende clausules opgenomen in de koopovereenkomst:
- Asbestclausule
- Ouderdomsclausule

Koop je de woning zonder voorbehoud van financiering? Dan zullen wij een termijn hanteren van 14 dagen na het opstellen van de koopovereenkomst voor het storten van de bankgarantie/waarborgsom.

Deze informatie is door ons met de nodige zorgvuldigheid samengesteld. Onzerzijds wordt echter geen enkele aansprakelijkheid aanvaard voor enige onvolledigheid, onjuistheid of anderszins, dan wel de gevolgen daarvan. Alle opgegeven maten en oppervlakten zijn indicatief.
+ toon meer
deze woning is Verkocht

Winterjan 9 Arnhem

Winterjan 9

6846 HE, Arnhem
Ditters open huis: 5 april 2025 10:00 - 12:00 uur
Landelijke Open Huizen Route NVM: 5 april 2025 11:00 uur - 15:00 uur
Vanaf€ 1.150.000 k.k.

Schakel een aankoopmakelaar in.

Snel handelen helpt je jouw droomhuis te bemachtigen. Zo vergroot je de kans dat je er op tijd bij bent.
Arnhem
verkocht

Of maak vrijblijvend een zoekprofiel aan.

Vergelijkbare woningen

Hypotheken

Onafhankelijk hypotheekadvies

  • Ligt jouw droomhuis binnen handbereik?
  • Wil je jouw huidige hypotheek verhogen?
  • Is er hypotheekruimte voor verduurzaming?

Blijf op de hoogte

Ontvang als eerste updates over nieuw aanbod en mis geen enkele kans om jouw droomwoning te vinden.

Gratis waardebepaling of verkoopgesprek

Met de vrijblijvende waardecheck weet je snel waar je aan toe bent. Onze makelaars kijken naar de lokale markt en vergelijkbare woningen in jouw buurt om een goede schatting te geven.

Realiseer al jouw woondromen met Ditters

Wij zijn een team van gedreven vastgoedexperts met een passie voor het maken van verbindingen – tussen kopers en verkopers, huurders en verhuurders. Met een frisse kijk op de makelaardij combineren we expertise met creativiteit. Onze makelaars luisteren écht en nemen de tijd om jouw wensen te begrijpen.


Bij Ditters sta je er niet alleen voor. We denken met je mee, begeleiden je in elke stap en zijn altijd bereikbaar voor vragen. Neem gerust contact met ons op – we helpen je graag verder!