In de geliefde en kindvriendelijke wijk "De Breukereng" in Bennekom ligt deze ruime en uitgebouwde hoekwoning aan de Hazenhoeve 85. De woning biedt een royale woonkamer met een sfeervolle openhaard en een visgraatvloer, vier slaapkamers, een moderne badkamer en een heerlijke diepe tuin op het noordwesten, compleet met veranda, berging en een eigen parkeerplaats.
De omgeving van de Hazenhoeve is rijk aan natuur, met diverse wandel- en fietspaden die door de mooie Veluwse landschappen en bossen lopen. Dit maakt het een perfecte plek voor natuurliefhebbers en gezinnen die graag buitenactiviteiten ondernemen. Daarnaast zijn er in de buurt verschillende parken en recreatiegebieden waar men kan ontspannen en genieten van de buitenlucht.
Qua voorzieningen biedt Bennekom een scala aan faciliteiten die bijdragen aan het gemak en comfort van de bewoners. Er zijn diverse winkels, supermarkten en boetieks voor dagelijkse boodschappen en winkelen. Ook zijn er gezellige cafés, restaurants en eetgelegenheden waar men kan genieten van lokale en internationale gerechten.
Voor gezinnen met kinderen zijn er goede onderwijsinstellingen in de buurt, variërend van basisscholen tot middelbare scholen. Ook zijn er diverse sportverenigingen en recreatieve clubs, waardoor er voor jong en oud genoeg te doen is in de vrije tijd.
Daarnaast is de bereikbaarheid van Bennekom uitstekend, met goede verbindingen naar de snelwegen A12 en A50, en een efficiënt openbaar vervoersnetwerk dat de regio verbindt met omliggende steden en dorpen. Hierdoor is het voor bewoners eenvoudig om te pendelen voor werk of andere activiteiten.
Enkele pluspunten van de woning:
+ Sfeervolle openhaard in de woonkamer;
+ Moderne woonkamer en keuken;
+ Vier slaapkamers;
+ Eigentijdse badkamer;
+ Ruime tuin gelegen op het noordwesten;
+ Eigen parkeerplaats op eigen terrein.
Indeling
Begane grond
Bij binnenkomst word je verwelkomd in de entree, waar zich het toilet met fonteintje en de meterkast bevinden. Hier vind je ook de trap naar de eerste verdieping en de deur die leidt naar de woonkamer. In de woonkamer aangekomen, word je begroet door een open ruimte met veel lichtinval dankzij de grote raampartijen aan de achterzijde van de woning. Deze heerlijke open ruimte biedt talloze mogelijkheden en is voorzien van een sfeervolle gaskachel. De keuken is afgescheiden door een scheidingswand en beschikt over een lang aanrechtblad met spoelbak, inductiekookplaat, afzuigkap en voldoende werkruimte. Daarnaast is de keuken uitgerust met een combi-oven, magnetron, koelkast, vriezer en vaatwasser wat zorgt voor extra gemak bij het koken.
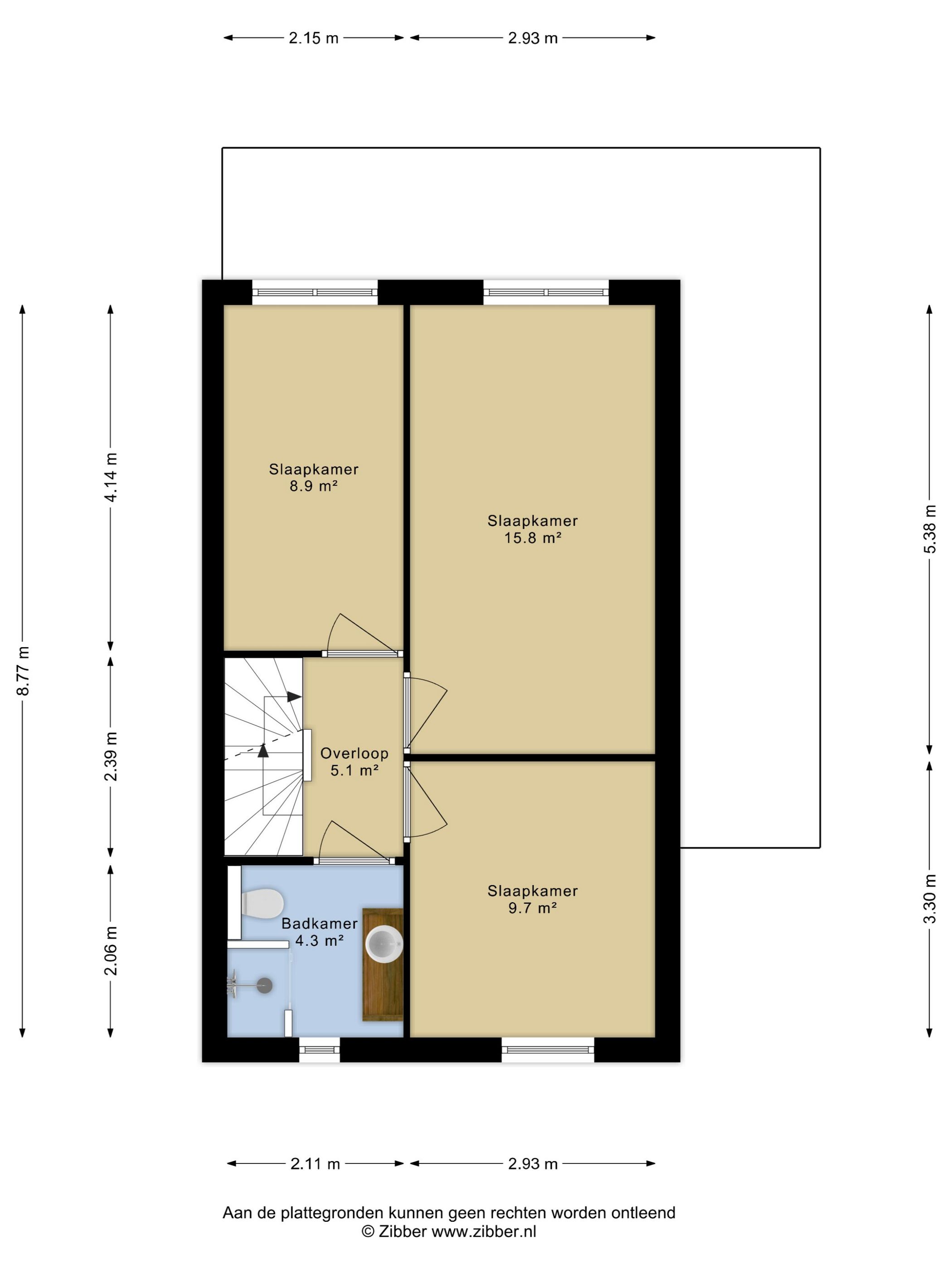
Eerste verdieping
Vanaf de overloop bereik je de drie slaapkamers die zich op de eerste verdieping bevinden. Deze kamers hebben afmetingen van respectievelijk 16 m², 10 m² en 9 m². Elke slaapkamer straalt een lichte en open sfeer uit. De royale hoofdslaapkamer biedt voldoende ruimte voor een groot bed en extra meubels, terwijl de andere twee kamers perfect zijn als kinder-, gastenkamer of thuiskantoor. De moderne badkamer is volledig betegeld en uitgerust met een badkamermeubel, een toilet, een ruime inloopdouche en design radiator.
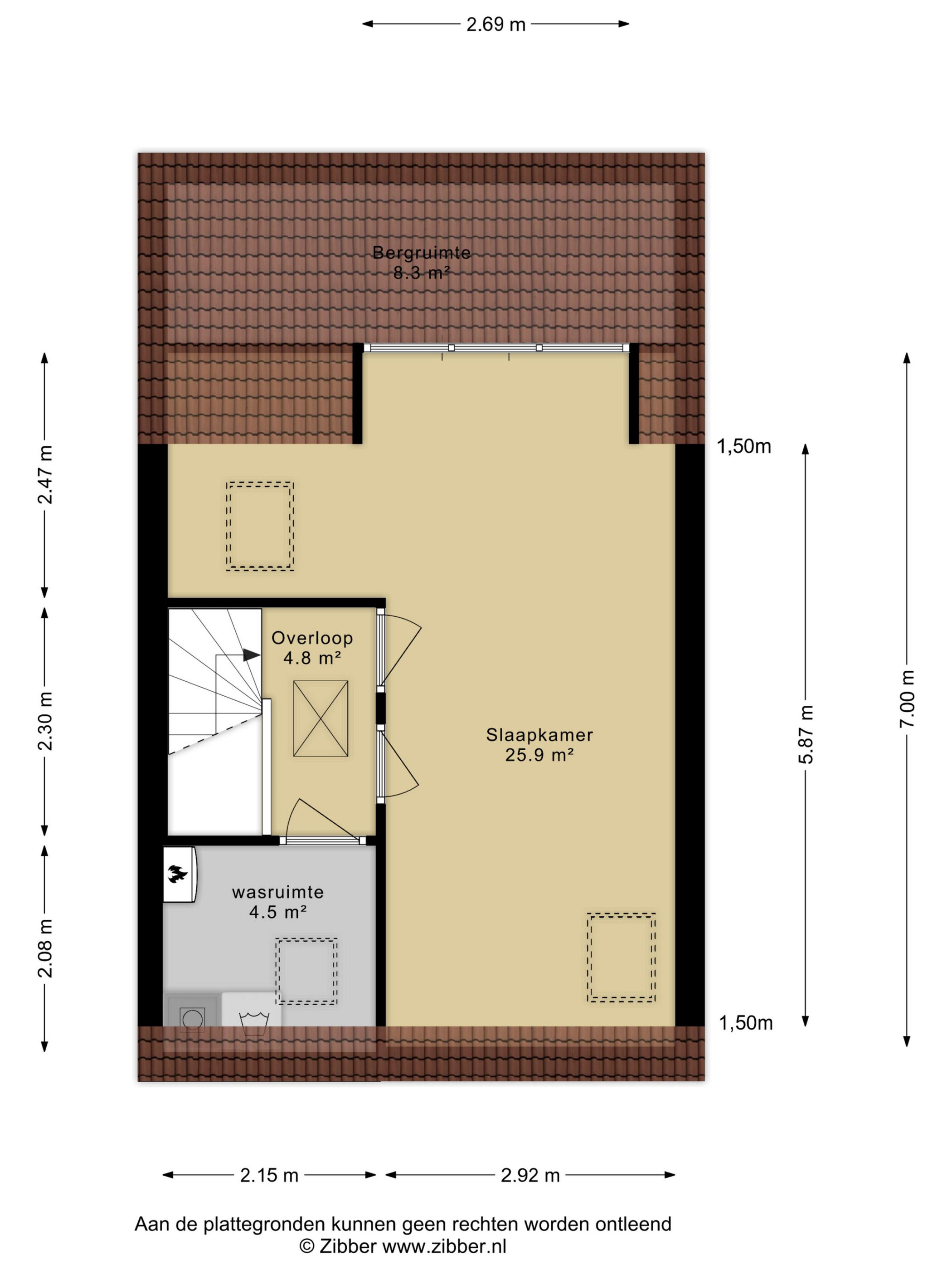
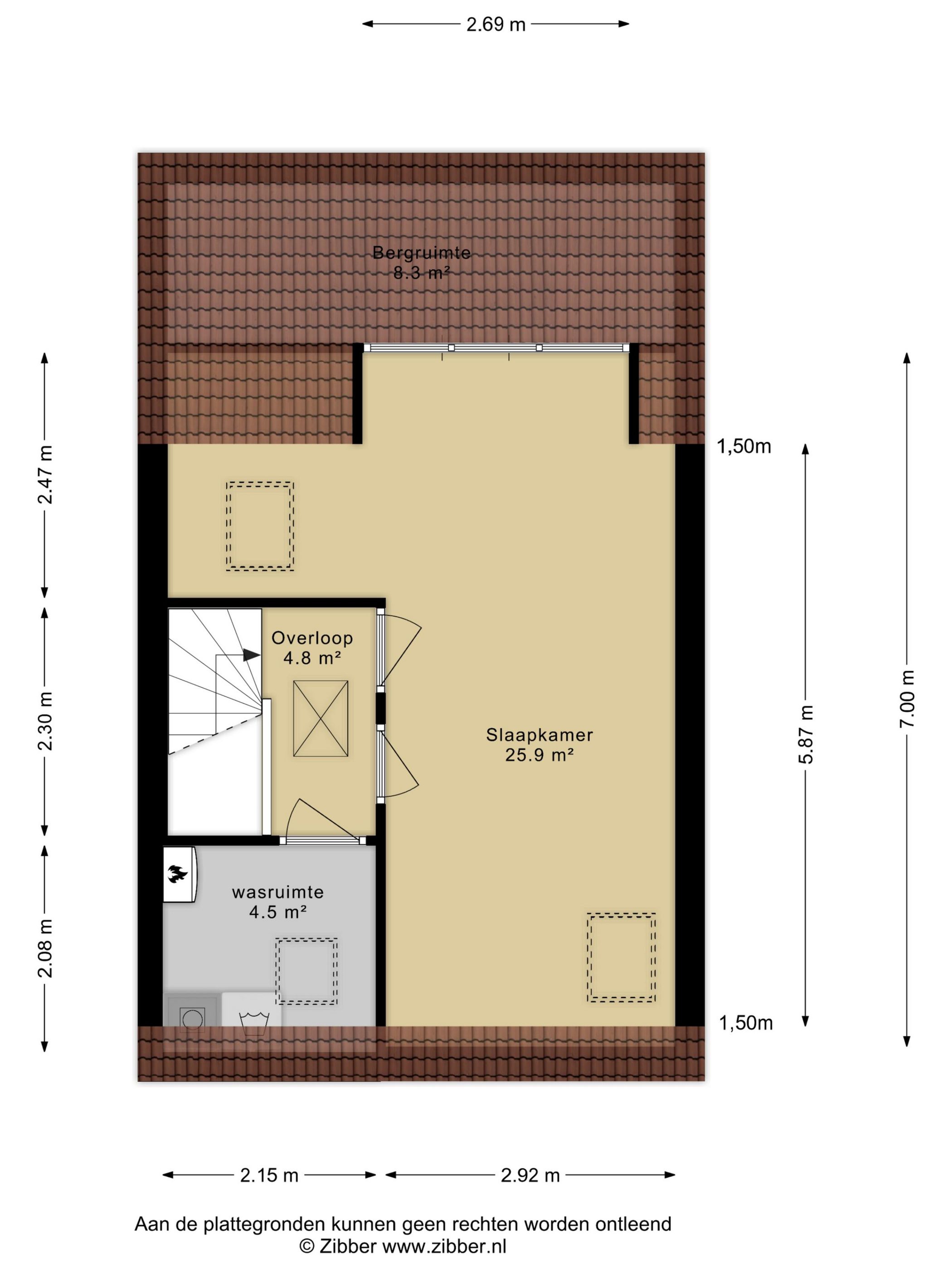
Tweede verdieping
Via de trap bereik je de tweede verdieping, die uitstekend kan dienen als volwaardige slaapkamer. Daarnaast vind je op deze verdieping een aparte ruimte met aansluitingen voor de wasmachine en droger, wat zorgt voor extra gemak en functionaliteit in het dagelijks leven.
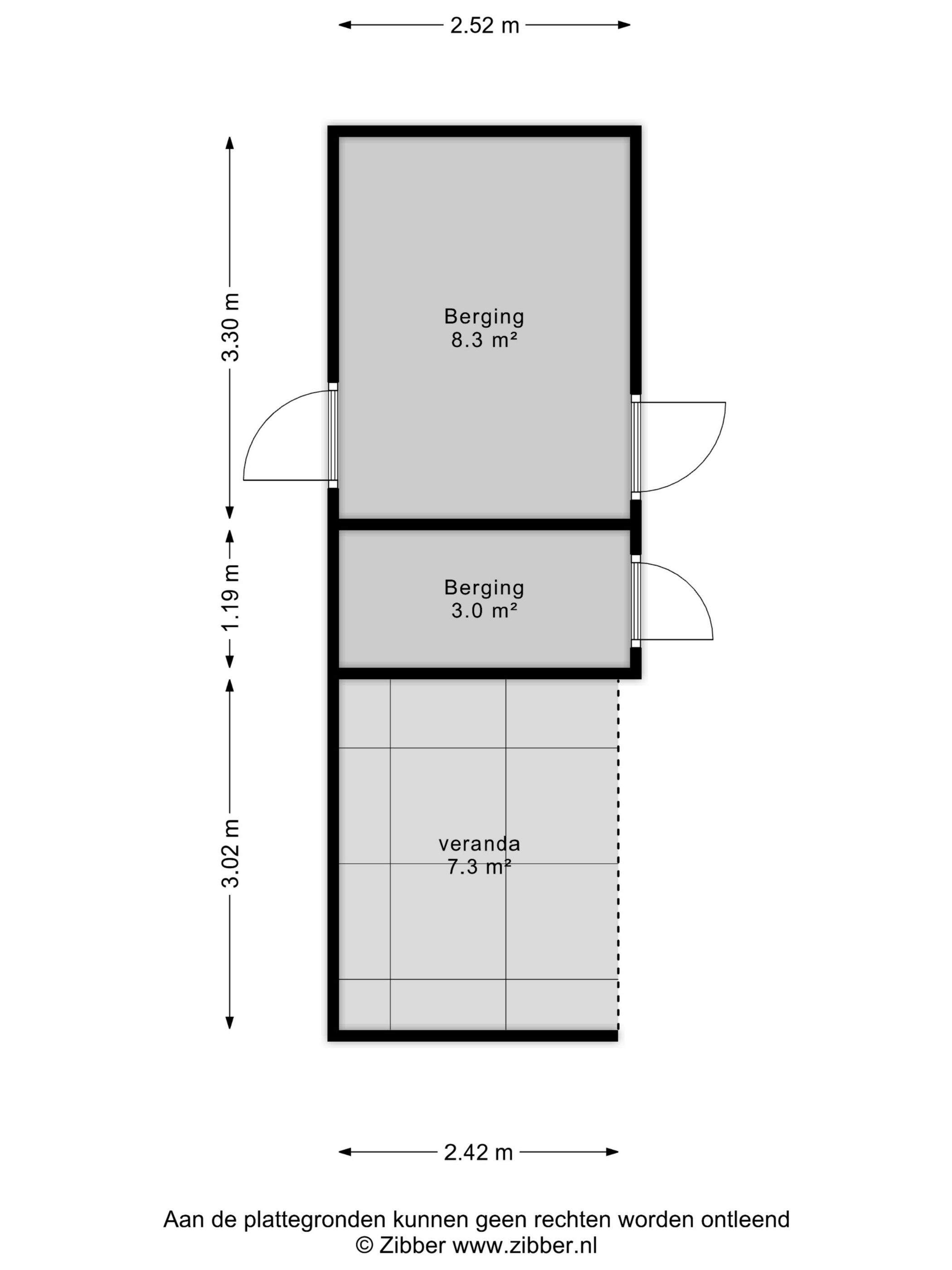
Tuin
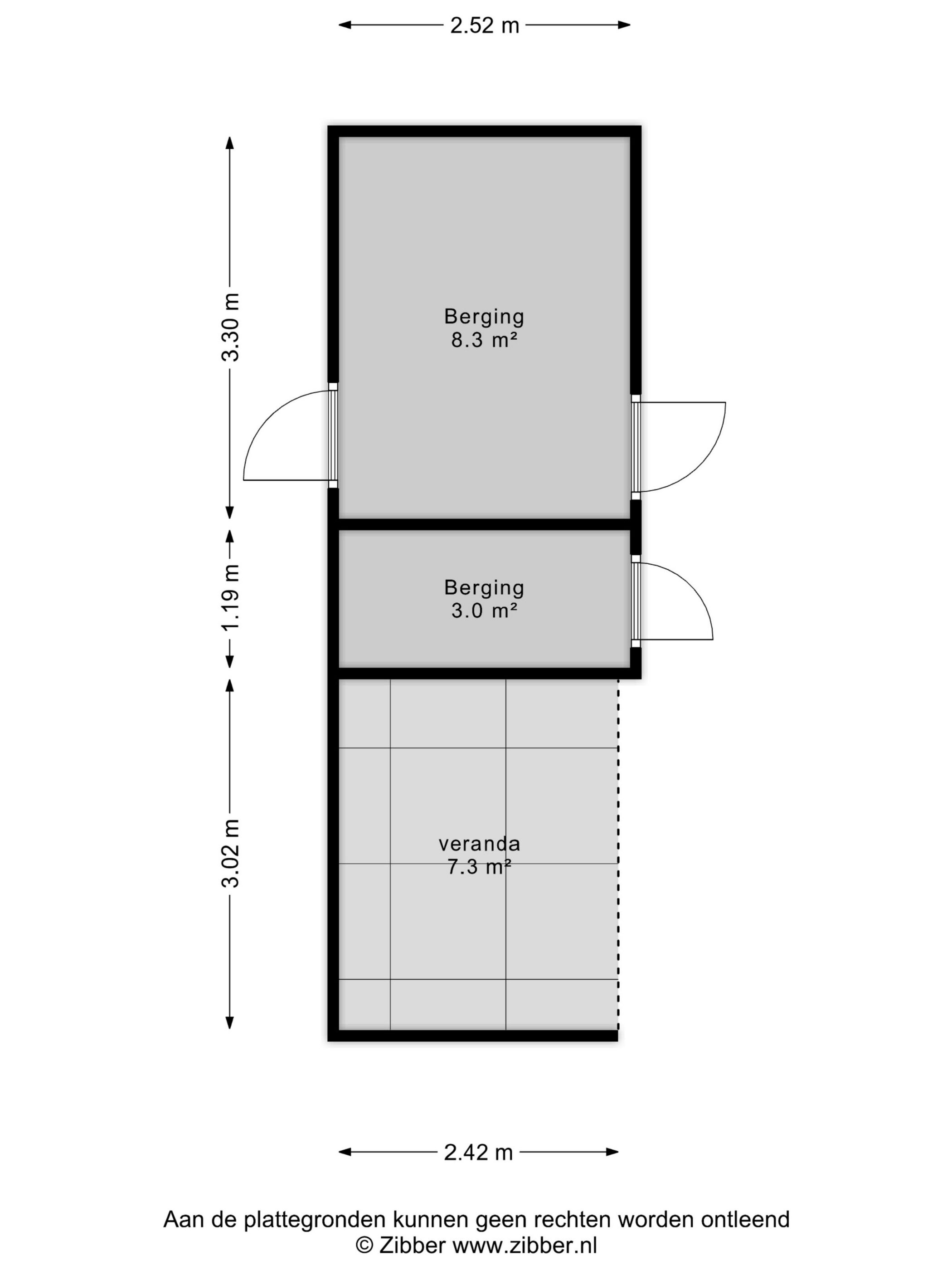
De ruime tuin is toegankelijk via de openslaande deuren vanuit de woonkamer. Deze onderhoudsvrije tuin is ideaal gelegen op het noordwesten, waardoor je kunt genieten van zowel de middag- als de avondzon. Aan de achterzijde van de tuin vind je een overkapping waar je heerlijk beschut kunt buiten zitten. Daarnaast biedt een ruime schuur voldoende opslagruimte voor al je tuinbenodigdheden en meer.
Afmetingen:
Perceeloppervlakte: 220 m²
Inhoud woning: 530 m³
Woonoppervlakte: 150 m²
Bijzonderheden:
Verwarming: Cv-installatie, Intergas Kombi Kompact 2016
Warm water: Cv-installatie, Intergas Kombi Kompact 2016
Isolatie: Dak-, muur- vloerisolatie, dubbel HR-glas;
Bouwjaar: 2003;
Tuinligging: Noordwesten;
Aanvaarding: In overleg.
Koopovereenkomst:
Koopt u de woning zonder voorbehoud van financiering? Dan zullen wij een termijn hanteren van 14 dagen na het opstellen van de koopovereenkomst voor het storten van de bankgarantie/waarborgsom.
Deze informatie is door ons met de nodige zorgvuldigheid samengesteld. Onzerzijds wordt echter geen enkele aansprakelijkheid aanvaard voor enige onvolledigheid, onjuistheid of anderszins, dan wel de gevolgen daarvan. Alle opgegeven maten en oppervlakten zijn indicatief.