Aanbod

Verken ons aanbod. Van huur tot koop. En van nieuwbouw tot bouwkavel. Samen vinden we de plek waar jij je helemaal thuis voelt.

Diensten

Onze experts begeleiden je van A tot Z. Of je nu je huis wilt verkopen, op zoek bent naar je droomhuis of advies nodig hebt over hypotheken of verzekeringen. Met jarenlange ervaring en persoonlijke service zorgen we ervoor dat jij met een gerust hart de juiste keuzes maakt.

Over Ditters

Wij zijn Ditters. Verhalenvertellers. De schakel tussen droom en woning. We luisteren naar jouw wensen en maken op basis daarvan een plan.

Omschrijving

Ruim en licht hoekappartement op een prachtige en rustige plek, gelegen aan de rand van de woonwijk De Rietkampen, met een vrij uitzicht en een groot balkon.

Op de derde verdieping van het appartementencomplex "De Cannenburgh" bevindt zich dit goed onderhouden driekamerappartement, compleet met een eigen vaste parkeerplaats achter een slagboom. Voor bezoekers zijn er aan de voorkant van het gebouw voldoende gratis parkeerplaatsen beschikbaar. Vanuit de ruime entree krijg je toegang tot de woonkamer, twee slaapkamers, de badkamer, het toilet en een inpandige berging. De royale, lichte en gezellige woonkamer biedt een vrij uitzicht en leidt naar het zonnige balkon. De woonkamer sluit aan op de lichte, gesloten keuken, die ook toegang biedt tot het balkon. Het appartement beschikt over twee slaapkamers; één daarvan heeft een doorgang naar de woonkamer en kan uitstekend dienen als werk- of hobbykamer. De andere, ruime slaapkamer ligt aan de koele zijde van het gebouw.

Dit appartementencomplex biedt een comfortabele woonervaring, met voorzieningen zoals automatische deuren in alle gemeenschappelijke ruimtes. De aanwezigheid van een lift en de gunstige ligging op loopafstand van winkelcentrum "De Stadspoort", met diverse winkels en het ziekenhuis "De Gelderse Vallei", dragen bij aan het complete comfort. Het appartement ligt ideaal, op slechts enkele minuten lopen via het Singelpad naar het winkelcentrum. Hier vind je alles voor de dagelijkse boodschappen, een bakker, een sportschool en medische voorzieningen zoals een apotheek, huisarts en tandarts. Binnen tien minuten bereik je met de auto of fiets station Ede-Wageningen, en de snelwegen A12 en A30 zijn snel bereikbaar. Voor natuurliefhebbers zijn de prachtige Ginkelse Heide en de vele bossen in Ede binnen handbereik.

Enkele pluspunten van het appartement:
+ Energielabel A;
+ De woonkamer is ruim en heeft grote raampartijen die zorgen voor veel natuurlijk licht en een prachtig uitzicht op de groene omgeving;
+ Buitenzonwering;
+ De servicekosten zijn € 206,- per maand;
+ Vaste parkeerplaats op het buitenterrein;
+ Wil je het appartement opknappen? Wij hebben eigen woonregiseurs in huis die het appartement samen met jou helemaal naar jouw smaak kunnen opknappen!
+ Het appartement biedt een rustige en goed uitgeruste woonplek met een gunstige ligging.

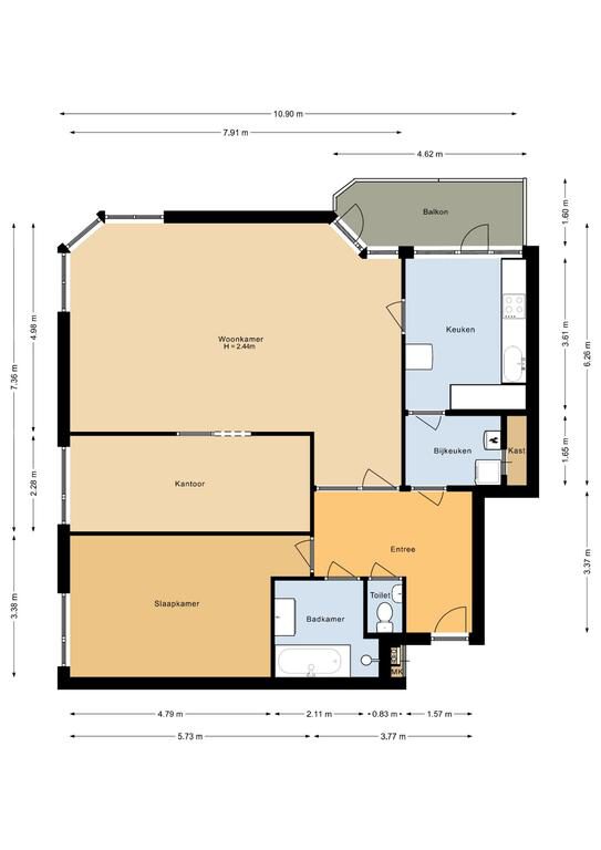
Indeling
Verdieping
Bij het openen van de voordeur, voorzien van een brievenbus, stap je binnen in een lange en uitnodigende hal. Deze hal geeft toegang tot alle belangrijke ruimtes van het appartement, waaronder de woonkamer, het toilet, de badkamer en een van de slaapkamers. De ruime woonkamer is een van de hoogtepunten van het appartement, met grote raampartijen die zorgen voor veel natuurlijk licht en een prachtig uitzicht op de omliggende groene omgeving. Vanuit de woonkamer heb je toegang tot een zonnig balkon, ideaal gelegen op het zuiden, waar je heerlijk kunt ontspannen.

De woonkamer leidt naar de halfopen keuken, die is uitgerust met de volgende apparatuur:
- Koel-vriescombinatie
- Inductiekookplaat
- Combi-oven
- Groot werkblad
Vanuit de keuken is er ook een deur naar het balkon, waar je eventueel van een maaltijd kunt genieten.

Vanuit de hal bereik je de grootste slaapkamer, die ruim en comfortabel is. De badkamer, eveneens toegankelijk vanuit de hal, is volledig betegeld en voorzien van een ligbad, een inloopdouche en een wastafel met een stijlvol wastafelmeubel. Het toilet heeft een eigen aparte ruimte, wat zorgt voor extra privacy en gemak. Tot slot is er vanuit de woonkamer toegang tot de tweede slaapkamer, die je veelzijdig kunt gebruiken als logeerkamer, werkruimte of hobbykamer.

Dit appartement biedt een combinatie van comfort, ruimte en een gunstige ligging, waardoor het een ideale woonplek is voor iedereen die op zoek is naar een rustige en goed uitgeruste woning.

Afmetingen
Inhoud woning: 319 m³
Woonoppervlakte: 106 m²

Bijzonderheden
Verwarming: C.V.-ketel Nefit Topline combiketel 2009;
Warmwater: C.V.-ketel Nefit Topline combiketel 2009;
Isolatie: Dakisolatie, muurisolatie, vloerisolatie, dubbel glas en volledig geïsoleerd;
Bouwjaar: 1993;
Aanvaarding: In overleg.

Koopovereenkomst:
Bij de verkoop zal er een standaard NVM koopovereenkomst worden gehanteerd. Bij woningen welke ouder zijn dan 20 jaar, worden de volgende clausules opgenomen in de koopovereenkomst:
- Asbestclausule;
- Ouderdomsclausule.

Koop je de woning zonder voorbehoud van financiering? Dan zullen wij een termijn hanteren van 14 dagen na het opstellen van de koopovereenkomst voor het storten van de bankgarantie/waarborgsom.

Deze informatie is door ons met de nodige zorgvuldigheid samengesteld. Onzerzijds wordt echter geen enkele aansprakelijkheid aanvaard voor enige onvolledigheid, onjuistheid of anderszins, dan wel de gevolgen daarvan. Alle opgegeven maten en oppervlakten zijn indicatief.
+ toon meer
deze woning is Verkocht

Adamsdreef 211 Ede

Adamsdreef 211

6716 MK, Ede
Ditters open huis: 5 april 2025 10:00 - 12:00 uur
Landelijke Open Huizen Route NVM: 5 april 2025 11:00 uur - 15:00 uur
Vanaf€ 409.000 k.k.

Schakel een aankoopmakelaar in.

Snel handelen helpt je jouw droomhuis te bemachtigen. Zo vergroot je de kans dat je er op tijd bij bent.
Ede
verkocht

Of maak vrijblijvend een zoekprofiel aan.

Vergelijkbare woningen

Hypotheken

Onafhankelijk hypotheekadvies

  • Ligt jouw droomhuis binnen handbereik?
  • Wil je jouw huidige hypotheek verhogen?
  • Is er hypotheekruimte voor verduurzaming?

Blijf op de hoogte

Ontvang als eerste updates over nieuw aanbod en mis geen enkele kans om jouw droomwoning te vinden.

Gratis waardebepaling of verkoopgesprek

Met de vrijblijvende waardecheck weet je snel waar je aan toe bent. Onze makelaars kijken naar de lokale markt en vergelijkbare woningen in jouw buurt om een goede schatting te geven.

Realiseer al jouw woondromen met Ditters

Wij zijn een team van gedreven vastgoedexperts met een passie voor het maken van verbindingen – tussen kopers en verkopers, huurders en verhuurders. Met een frisse kijk op de makelaardij combineren we expertise met creativiteit. Onze makelaars luisteren écht en nemen de tijd om jouw wensen te begrijpen.


Bij Ditters sta je er niet alleen voor. We denken met je mee, begeleiden je in elke stap en zijn altijd bereikbaar voor vragen. Neem gerust contact met ons op – we helpen je graag verder!