Omschrijving

Zoek jij een instapklaar en energiezuinig driekamerappartement (energielabel A+) gelegen op een mooi locatie nabij diverse winkels, openbaar vervoer en uitvalswegen? Is jouw wens een appartement met 2 slaapkamers, eigen parkeerplaats, een ruime loggia en een ruime woon-/eetkamer en een fijn en groen uitzicht over het Huygenspark?

Stop dan met zoeken, want dan is Doornlaan 82 wellicht jouw appartement!

Belangrijke kenmerken:
- Energielabel A+
- Twee slaapkamers, eigen parkeerplaats en eigen berging
- Ruime woon-/eetkamer met open keuken en loggia
- Uitzicht op een groen Huygenspark
- Gelegen nabij winkels, openbaar vervoer en uitvalswegen

IS DOORNLAAN 82 DÉ PLEK VOOR JOU?
Doornlaan 82 is gelegen in een in 2011 gebouwd appartementencomplex genaamd “De Microscoop”. Het betreft een driekamerappartement en gelegen op een perfecte locatie met aan de voorzijde een fraai en groen park. Appartementengebouw ‘de Microscoop’ heeft een gunstige ligging op 5 minuten fietsen van station Ede-Wageningen en ziekenhuis Gelderse Vallei. Aan de Keesomstraat zijn diverse winkels en er zijn twee supermarkten op korte loopafstand.

Vooruitlopend op de bezichtiging geven we je hieronder vast een eerste indruk!

Algemeen:
Het appartementengebouw beschikt over een afgesloten entree met videofoon en brievenbussen. Met de trap of lift zijn de bovengenoemde woonverdiepingen te bereiken. Het appartement wordt verkocht met een eigen parkeerplaats welke is te vinden op het achtergelegen parkeerterrein. Vanaf het parkeerterrein heb je toegang tot de (fietsen)berging die bij het appartement hoort.

Het appartement:
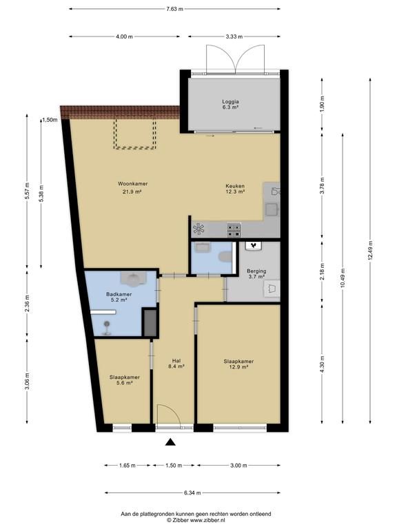
Bij het betreden van het appartement zie je een ruime L-vormige entree/hal met garderoberuimte, meterkast en meerdere deuren die je toegang geeft tot de verschillende vertrekken. Het appartement is qua indeling perfect ingedeeld. Twee slaapkamers aan de voorzijde, een ruime woon-/eetkamer aan de achterzijde en centraal gelegen zijn de badkamer, een separaat toilet en een berging met opstelplaats voor wasmachine en droger, Cv-ketel en mechanische ventilatie.

Bij het betreden van de woon-/eetkamer vallen gelijk aan aantal dingen op: een fraaie en ruime loggia, een riante en verzorgde open keuken met antracieten keukenkastjes, veel en grote raampartijen en uiteraard het formaat van de living. Deze is namelijk ruim 34 m²! Door het openen van de schuifpui tussen de woon-/eetkamer en de loggia creëer je zonder al te veel moeite een heerlijke buitenruimte in je woonkamer.

De master bedroom is bijna 13 m² groot en biedt door z’n oppervlakte meer dan voldoende ruimte voor een grote (inbouw)kledingkast. De 2e slaapkamer is bijna 6 m² en wordt door de huidige eigenaar gecombineerd gebruikt als werk-/gamekamer. Deze kamer is natuurlijk ook geschikt als baby-/ kinderkamer. Beide slaapkamers beschikken over zeer veel daglichttoetreding door middel van grote raampartijen.

De verzorgde badkamer heeft een moderne uitstraling en is uitgevoerd met grijze vloertegels en witte- en grijze wandtegels. Verder beschikt de badkamer over een ruime inloopdouche, een radiator, een wastafelmeubel met enkele wastafel en een kast voor opbergruimte. De toiletruimte is separaat en uitgevoerd met een zwevend toilet en een fonteintje. Qua wand- en vloertegels is de toiletruimte in match met de badkamer.

Een rondleiding door jouw nieuwe plek:
Neem contact met ons op, wij laten je het fraaie appartement graag zien!

Kenmerken:
- Bouwjaar 2011;
- Woonoppervlakte 82 m²;
- Inhoud 269 m³;
- Lift aanwezig;
- Twee slaapkamers;
- Ruime woon-/eetkamer;
- Eigen inpandige berging;
- Ruime loggia met fraai uitzicht over het park;
- Verwarming en water door middel van cv-installatie (2011);
- Volledige isolatie met energielabel A+;
- Parkeren op eigen overdekte parkeerplaats;
- Openbaar vervoer op loopafstand;
- Oplevering in overleg.

Koopovereenkomst:
Bij de verkoop zal er een standaard NVM koopovereenkomst worden gehanteerd. Bij woningen welke ouder zijn dan 20 jaar, worden de volgende clausules opgenomen in de koopovereenkomst:
- Asbestclausule;
- Ouderdomsclausule.

Koopt u de woning zonder voorbehoud van financiering? Dan zullen wij een termijn hanteren van 14 dagen na het opstellen van de koopovereenkomst voor het storten van de bankgarantie/waarborgsom.

Deze informatie is door ons met de nodige zorgvuldigheid samengesteld. Onzerzijds wordt echter geen enkele aansprakelijkheid aanvaard voor enige onvolledigheid, onjuistheid of anderszins, dan wel de gevolgen daarvan. Alle opgegeven maten en oppervlakten zijn indicatief.
+ toon meer
deze woning is Verkocht

Doornlaan 82 Ede

Doornlaan 82

6717 BS, Ede
Ditters open huis: 5 april 2025 10:00 - 12:00 uur
Landelijke Open Huizen Route NVM: 5 april 2025 11:00 uur - 15:00 uur
Vanaf€ 335.000 k.k.

Schakel een aankoopmakelaar in.

Snel handelen helpt je jouw droomhuis te bemachtigen. Zo vergroot je de kans dat je er op tijd bij bent.
Ede
verkocht

Of maak vrijblijvend een zoekprofiel aan.

Vergelijkbare woningen

Hypotheken

Onafhankelijk hypotheekadvies

  • Ligt jouw droomhuis binnen handbereik?
  • Wil je jouw huidige hypotheek verhogen?
  • Is er hypotheekruimte voor verduurzaming?

Blijf op de hoogte

Ontvang als eerste updates over nieuw aanbod en mis geen enkele kans om jouw droomwoning te vinden.

Gratis waardebepaling of verkoopgesprek

Met de vrijblijvende waardecheck weet je snel waar je aan toe bent. Onze makelaars kijken naar de lokale markt en vergelijkbare woningen in jouw buurt om een goede schatting te geven.

Realiseer al jouw woondromen met Ditters

Wij zijn een team van gedreven vastgoedexperts met een passie voor het maken van verbindingen – tussen kopers en verkopers, huurders en verhuurders. Met een frisse kijk op de makelaardij combineren we expertise met creativiteit. Onze makelaars luisteren écht en nemen de tijd om jouw wensen te begrijpen.


Bij Ditters sta je er niet alleen voor. We denken met je mee, begeleiden je in elke stap en zijn altijd bereikbaar voor vragen. Neem gerust contact met ons op – we helpen je graag verder!