Aanbod

Verken ons aanbod. Van huur tot koop. En van nieuwbouw tot bouwkavel. Samen vinden we de plek waar jij je helemaal thuis voelt.

Diensten

Onze experts begeleiden je van A tot Z. Of je nu je huis wilt verkopen, op zoek bent naar je droomhuis of advies nodig hebt over hypotheken of verzekeringen. Met jarenlange ervaring en persoonlijke service zorgen we ervoor dat jij met een gerust hart de juiste keuzes maakt.

Over Ditters

Wij zijn Ditters. Verhalenvertellers. De schakel tussen droom en woning. We luisteren naar jouw wensen en maken op basis daarvan een plan.

Omschrijving

Stap binnen in deze royale middenwoning gelegen in de wijk Veldhuizen. Ervaar het comfort van wonen aan een rustige straat met parkeergelegenheid voor de deur. Deze woning verwelkomt een ieder met een uitnodigende woon- en eetkamer, overgoten met veel natuurlijk licht en een uitzicht op de goed onderhouden tuin met een ligging op het zuidoosten.
Een onmiskenbaar pluspunt van deze woning is het aanbod van zes slaapkamers, waardoor het veelzijdigheid en ruimte biedt voor zowel grote gezinnen of voor het gebruik van een thuiskantoor, hobbyruimte of gastenverblijf.

Daarnaast woon je dichtbij het Proosdijpark, de kinderboerderij, winkelcentrum Bellestein, Rozenplein en Parkweide. Een rustige wandeling door het park of de wekelijkse boodschappen halen, alles op korte afstand van elkaar.

Alle kenmerken op een rij:
* Royale middenwoning met 6 (slaap)kamers;
* Tuin op het zuidoosten;
* Aanwezigheid van 12 zonnepanelen voor duurzame energieopwekking;
* Hardhouten kozijnen;
* Cv-ketel is vorig jaar vervangen;
* Zowel een stenen berging als een garagebox voor ruime opbergmogelijkheid;
* Garagebox apart in de verkoop, vraagprijs €30.000.

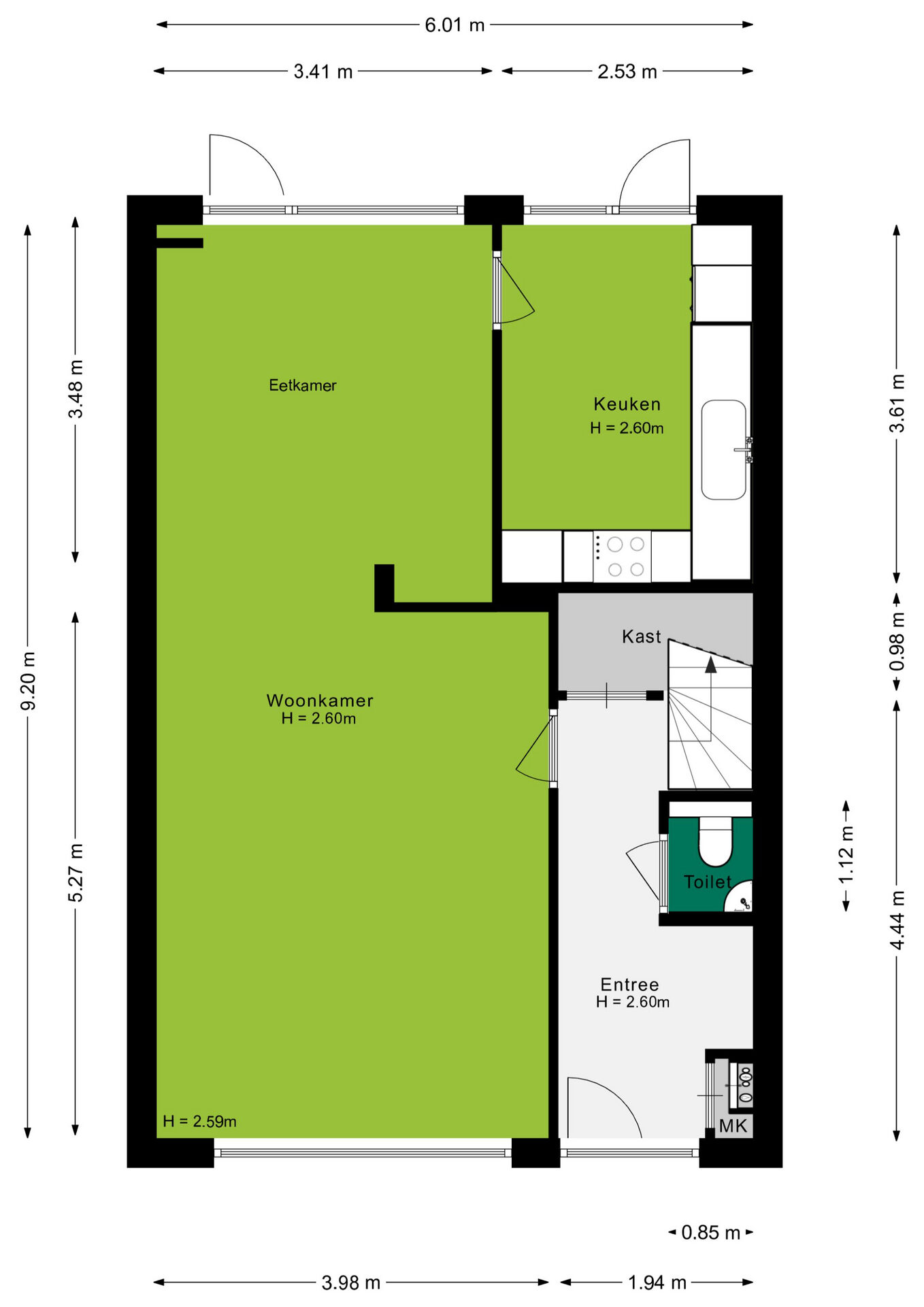
Indeling
Begane grond
In de hal vind je de meterkast en het toilet. Ook tref je in de hal een handige ingebouwde kast die extra opbergruimte biedt. Via de hal loop je de woonkamer in welke naadloos overgaat in de gezellige eetkamer - het hart van het huis waar familie en vrienden samenkomen.
Verder brengt de eetkamer je naar de keuken, opgesteld in een hoekopstelling, welke is uitgerust met diverse inbouwapparatuur. Zowel de eetkamer als de keuken bieden directe toegang tot de uitnodigende tuin, waardoor binnen en buiten vloeiend in elkaar overlopen.

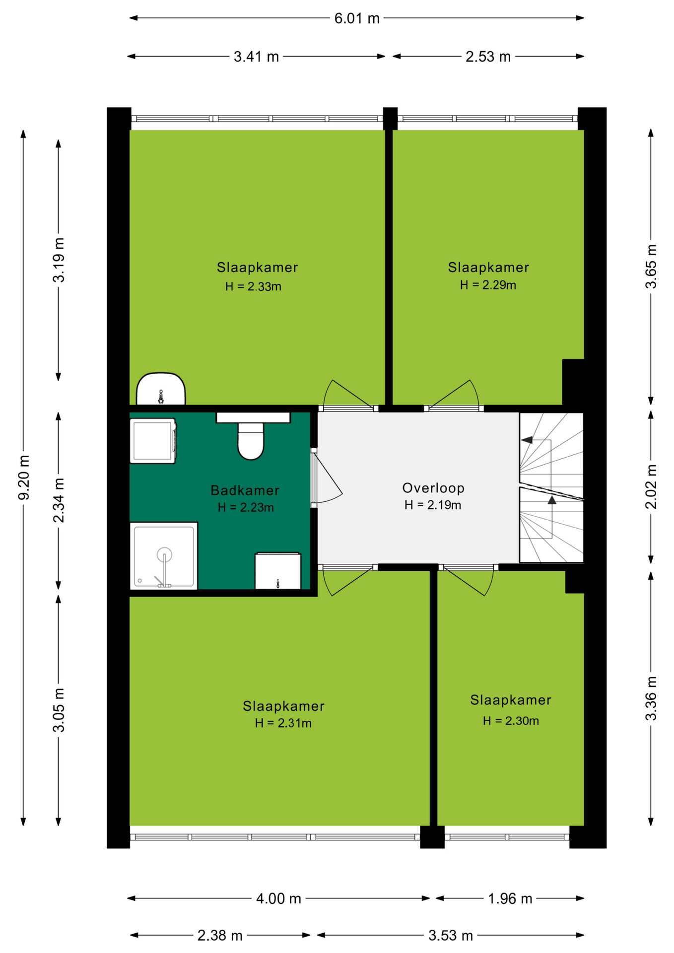
Eerste verdieping
De riante overloop biedt toegang tot vier (slaap)kamers met veel natuurlijk licht. Verder tref je de ruimtelijke badkamer, welke is uitgerust met voorzieningen zoals een inloopdouche, een wastafelmeubel, een toilet, een designradiator en een praktische wasmachineaansluiting.

Tweede verdieping
Via een vaste trap bereik je de zolderverdieping waar nog eens twee ruime (slaap)kamers zijn. Dankzij de royale afmeting bestaat er de mogelijkheid om de grootste ruimte op te splitsen, om zo in totaal drie afzonderlijke slaapkamers te realiseren op deze etage. Dit maakt de zolder niet alleen veelzijdig in gebruik, maar ook perfect aanpasbaar aan uw persoonlijke woonwensen.

Exterieur
Geniet van een aangename tuin op het zuidoosten, een plek waar je volop van de ochtend- - en middagzon kunt genieten. Compleet met een berging voor het gereedschap, tuinmeubelen en/of fietsen. Het fijne is dat de tuin ook toegankelijk is via een achterom.
Dit alles maakt de tuin de perfecte plek om te relaxen of te tuinieren de warme zonnestralen.

Daarnaast beschikt deze woning over een extra voorziening in de vorm van een stenen garagebox. Ideaal als opbergruimte of het stallen van de auto. Deze garagebox is niet in de vraagprijs inbegrepen. Vraagprijs garagebox €30.000,-

Afmetingen
Perceeloppervlakte: 155 m²
Inhoud woning: 501 m³
Woonoppervlakte: 156 m²

Bijzonderheden
Verwarming: CV-ketel;
Warm water: gasboiler;
Isolatie: dakisolatie, dubbel glas;
Bouwjaar: 1974;
Tuinligging: zuidoosten;
Aanvaarding: In overleg.

Koopovereenkomst:
Bij de verkoop zal er een standaard NVM koopovereenkomst worden gehanteerd. Bij woningen welke ouder zijn dan 20 jaar, worden de volgende clausules opgenomen in de koopovereenkomst:
- Asbestclausule;
- Ouderdomsclausule

Koopt u de woning zonder voorbehoud van financiering? Dan zullen wij een termijn hanteren van 14 dagen na het opstellen van de koopovereenkomst voor het storten van de bankgarantie/waarborgsom.

Deze informatie is door ons met de nodige zorgvuldigheid samengesteld. Onzerzijds wordt echter geen enkele aansprakelijkheid aanvaard voor enige onvolledigheid, onjuistheid of anderszins, dan wel de gevolgen daarvan. Alle opgegeven maten en oppervlakten zijn indicatief.
+ toon meer
deze woning is Verkocht

Enkstein 17 Ede

Enkstein 17

6714 BN, Ede
Ditters open huis: 5 april 2025 10:00 - 12:00 uur
Landelijke Open Huizen Route NVM: 5 april 2025 11:00 uur - 15:00 uur
Vanaf€ 425.000 k.k.

Schakel een aankoopmakelaar in.

Snel handelen helpt je jouw droomhuis te bemachtigen. Zo vergroot je de kans dat je er op tijd bij bent.
Ede
verkocht

Of maak vrijblijvend een zoekprofiel aan.

Vergelijkbare woningen

Hypotheken

Onafhankelijk hypotheekadvies

  • Ligt jouw droomhuis binnen handbereik?
  • Wil je jouw huidige hypotheek verhogen?
  • Is er hypotheekruimte voor verduurzaming?

Blijf op de hoogte

Ontvang als eerste updates over nieuw aanbod en mis geen enkele kans om jouw droomwoning te vinden.

Gratis waardebepaling of verkoopgesprek

Met de vrijblijvende waardecheck weet je snel waar je aan toe bent. Onze makelaars kijken naar de lokale markt en vergelijkbare woningen in jouw buurt om een goede schatting te geven.

Realiseer al jouw woondromen met Ditters

Wij zijn een team van gedreven vastgoedexperts met een passie voor het maken van verbindingen – tussen kopers en verkopers, huurders en verhuurders. Met een frisse kijk op de makelaardij combineren we expertise met creativiteit. Onze makelaars luisteren écht en nemen de tijd om jouw wensen te begrijpen.


Bij Ditters sta je er niet alleen voor. We denken met je mee, begeleiden je in elke stap en zijn altijd bereikbaar voor vragen. Neem gerust contact met ons op – we helpen je graag verder!