Dit ruime driekamerappartement met twee slaapkamers en twee balkons is ideaal gelegen in het centrum van Ede, op de vierde verdieping in de Zeeheldenbuurt. Dankzij de centrale ligging zijn tal van winkels, cafés, restaurants en andere voorzieningen in de directe omgeving te vinden, wat bijdraagt aan een levendige en gezellige sfeer. Voor liefhebbers van sport en natuur zijn de Edese Heide en de nabijgelegen bossen snel bereikbaar.
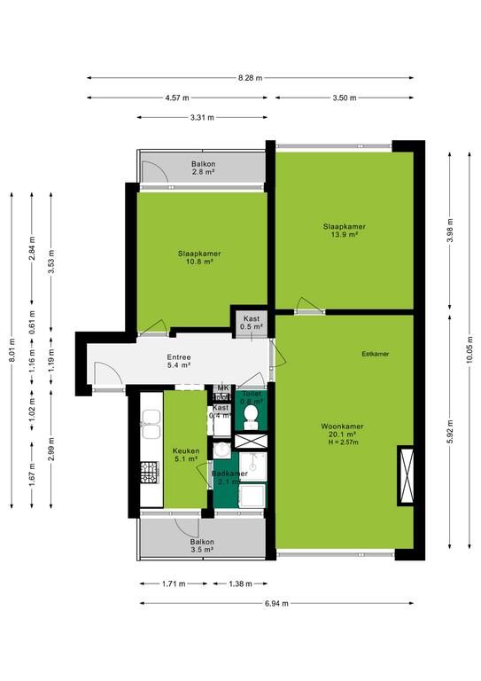
Het goed onderhouden appartement beschikt over twee slaapkamers, een royale woonkamer, een keuken en een moderne badkamer. Beide slaapkamers profiteren van veel lichtinval en de balkons bieden een prachtig uitzicht over het centrum van Ede. Voor de dagelijkse boodschappen liggen twee supermarkten, Nettorama en Albert Heijn, op minder dan 10 minuten loopafstand. Wat betreft bereikbaarheid zijn de uitvalswegen N224, A12 en A30 gemakkelijk te bereiken, waardoor je snel richting Utrecht en Arnhem kunt reizen. Het treinstation Ede-Centrum ligt op slechts enkele minuten fietsen, station Ede-Wageningen is binnen 11 minuten fietsen bereikbaar en er zijn diverse bushaltes in de buurt. Deze woning is perfect voor starters of alleenstaanden die graag dicht bij het centrum willen wonen, met alle voorzieningen binnen handbereik.
Enkele pluspunten van de woning:
+ Twee slaapkamers;
+ Twee balkons;
+ Moderne keuken (2020) badkamer (2021);
+ Berging in de onderbouw;
+ Servicekosten €149,00 voor het appartement;
+ Het buitenschilderwerk is in 2024 uitgevoerd;
+ Parkeermogelijkheid voor het complex (eigen terrein);
+ Dichtbij station Ede centrum.
Indeling:
Het appartementencomplex beschikt over een parkeerplaats direct voor de hoofdingang. Via deze ingang bereik je met de trap het appartement op de vierde verdieping.
Verdieping
De entree is uitgerust met een meterkast, een bergruimte en een apart toilet. Vanuit de entree heb je toegang tot de eerste slaapkamer, de woonkamer en de keuken. Beide slaapkamers profiteren van veel lichtinval vanuit het oosten, en de eerste slaapkamer beschikt over een balkon. De woonkamer is voorzien van een bruine laminaatvloer en ontvangt licht vanuit het westen. Daarnaast biedt de woonkamer toegang tot de tweede slaapkamer. De keuken, die in 2020 is vernieuwd, is uitgerust met een gasfornuis met afzuigkap, een oven, een vaatwasser en een aparte koelkast. Tevens heeft de keuken een balkon aan de westzijde. Vanuit de keuken bereik je de badkamer, die ook in 2021 is gerenoveerd en is voorzien van een douche, een wastafel en een wasmachineaansluiting.
Woonoppervlakte: 65 m³
Inhoud: 207 m²
Bijzonderheden
Verwarming: CV-ketel, Intergas;
Warmwater: CV-ketel, Intergas;
Isolatie: Volledig geïsoleerd;
Bouwjaar: 1962;
Servicekosten: €149,- per maand.
Koopovereenkomst:
Bij de verkoop zal er een standaard NVM koopovereenkomst worden gehanteerd. Bij woningen welke ouder zijn dan 20 jaar, worden de volgende clausules opgenomen in de koopovereenkomst:
- Asbestclausule;
- Ouderdomsclausule.
Koopt u de woning zonder voorbehoud van financiering? Dan zullen wij een termijn hanteren van 14 dagen na het opstellen van de koopovereenkomst voor het storten van de bankgarantie/waarborgsom.
Deze informatie is door ons met de nodige zorgvuldigheid samengesteld. Onzerzijds wordt echter geen enkele aansprakelijkheid aanvaard voor enige onvolledigheid, onjuistheid of anderszins, dan wel de gevolgen daarvan. Alle opgegeven maten en oppervlakten zijn indicatief