Aanbod

Verken ons aanbod. Van huur tot koop. En van nieuwbouw tot bouwkavel. Samen vinden we de plek waar jij je helemaal thuis voelt.

Diensten

Onze experts begeleiden je van A tot Z. Of je nu je huis wilt verkopen, op zoek bent naar je droomhuis of advies nodig hebt over hypotheken of verzekeringen. Met jarenlange ervaring en persoonlijke service zorgen we ervoor dat jij met een gerust hart de juiste keuzes maakt.

Over Ditters

Wij zijn Ditters. Verhalenvertellers. De schakel tussen droom en woning. We luisteren naar jouw wensen en maken op basis daarvan een plan.

Omschrijving

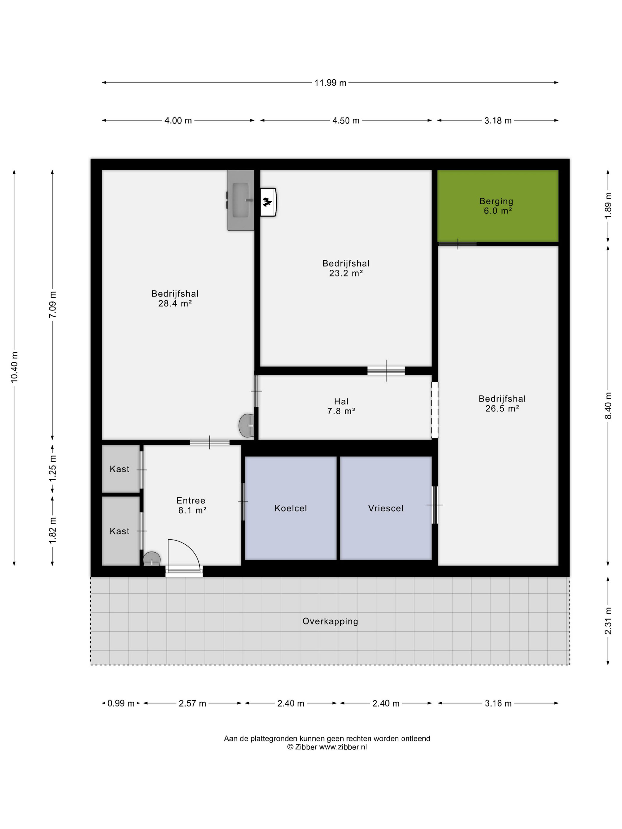
Wonen met bedrijfshal.

Gelegen op het industrieterrein "de Klaphek" vind je deze kleinschalige bedrijfshal, met specifieke installaties: koeling, vriezer en betegelde wanden ten behoeve van vleesverwerkende industrie. Hiervoor is gelegen een verrassend royaal en vrijstaand woonhuis met maar liefst 6 slaapkamers. Het geheel verkeert in een prima staat van onderhoud, waarbij de woning naar eigen inzicht kan worden gemoderniseerd. In de directe nabijheid van winkels, scholen en het centrum van Ede. Het bestemmingsplan biedt ondernemers veel mogelijkheden. Ideaal object om wonen en werken te combineren! Eventueel ook geschikt als beleggingsobject.

BEDRIJFSRUIMTE:
Bruto-vloeroppervlakte: ca. 124.7 m²
Vrije hoogte: ca. 2.83 m
Vloerconstructie: betonvloer, afvoer naar vetput
Dakconstructie: platdak voorzien van bitumineuze dakbedekking
Bedrijfsdeur: elektrisch bedienbare overheaddeur.
Voorzieningen: entree met vaste kasten, meterkast (krachtsroom) eigen cv, 3 werkruimtes, grote (inloop) koelcel en vriescel, bergruimte.
Specifieke installaties: betegelde wanden ten behoeve van vleesverwerkende industrie. Binnenwanden zijn te verwijderen.

WOONHUIS
Begane grond:
Via de entree kom je bij de toiletruimte, garderobe, de meterkast en de trapopgang naar de eerste verdieping. De woonkamer bevindt zich aan de voorzijde, geeft granol wandafwerking, laminaat op de vloer en een haardpartij met ombouw. In de woonkamer is een airco aanwezig. De woonkamer is door middels van een glazen schuifdeur gescheiden van de woonkeuken. In de gezellige woonkeuken is er zeker ruimte voor een royale eethoek. In de keuken is een in hoekopstelling massief eiken inbouwkeuken geplaatst welke is voorzien van diverse inbouwapparatuur. Vanuit de keuken is er een deur naar een kelderkast waar de benodigde proviand kan worden opgeslagen, daarnaast is er een deur naar de bijkeuken met daarin de opstelling van de was-apparatuur en de cv ketel (huur). Vanuit de bijkeuken is een deur naar buiten.

Eerste verdieping:
Via een vaste trap kom je bij de overloop die toegang geeft tot de vier ruime slaapkamers en de badkamer. De slaapkamers hebben afmetingen van maar liefst 14.5m², 12,5m², 9m² en 8m². Twee van de slaapkamers zijn voorzien van vaste kasten met schuifdeuren. De volledig betegelde badkamer beschikt over een ligbad (whirlpool), toilet, douchecabine, handdoekenradiator en een wastafel.

Tweede verdieping:
Door middel van een trap kom je bij de ruime overloop met praktische vasten kasten en toegang tot de twee slaapkamers op deze verdieping. Een van de slaapkamers heeft toegang tot het op het zuiden gesitueerde balkon. Hier kun je eventueel heerlijk genieten van het buitenleven.

Buiten:
De volledig bestrate oprit en voor- en achterplaats waardoor er meerdere personenauto's en/of bedrijfswagens op eigen terrein kunnen worden geparkeerd. Achter de woning is een houtenberging geplaats met aangebouwde hondenkennel.

Afmetingen woonhuis:
Woonkamer ca. 29.7 m²
Woonkeuken ca. 18.0 m²
Bijkeuken ca. 5.0 m²
Slaapkamer 1 ca. 14.5 m²
Slaapkamer 2 ca. 12.6 m²
Slaapkamer 3 ca. 9.2 m²
Slaapkamer 4 ca. 8.4 m²
Badkamer ca. 5.5 m²
Slaapkamer 5 ca. 20.5 m²
Slaapkamer 6 ca. 15.4 m²
Balkon ca. 7.3 m²

Kenmerken:
Verwarming: C.V. ketel (huur)
Warm water: C.V. ketel (huur)
Isolatie: Grotendeels dubbel glas
Bouwjaar: 1979
Energielabel: C
Aanvaarding: In overleg

Koopovereenkomst:
Bij de verkoop zal er een standaard NVM koopovereenkomst worden gehanteerd. Bij woningen welke ouder zijn dan 20 jaar, worden de volgende clausules opgenomen in de koopovereenkomst:
- Asbestclausule;
- Ouderdomsclausule.

Koopt u de woning zonder voorbehoud van financiering? Dan zullen wij een termijn hanteren van 14 dagen na het opstellen van de koopovereenkomst voor het storten van de bankgarantie/waarborgsom.

Deze informatie is door ons met de nodige zorgvuldigheid samengesteld. Onzerzijds wordt echter geen enkele aansprakelijkheid aanvaard voor enige onvolledigheid, onjuistheid of anderszins, dan wel de gevolgen daarvan. Alle opgegeven maten en oppervlakten zijn indicatief.
+ toon meer
deze woning is Verkocht

Hoorn 4 Ede

Hoorn 4

6713 KR, Ede
Ditters open huis: 5 april 2025 10:00 - 12:00 uur
Landelijke Open Huizen Route NVM: 5 april 2025 11:00 uur - 15:00 uur
Vanaf€ 650.000 k.k.

Schakel een aankoopmakelaar in.

Snel handelen helpt je jouw droomhuis te bemachtigen. Zo vergroot je de kans dat je er op tijd bij bent.
Ede
verkocht

Of maak vrijblijvend een zoekprofiel aan.

Vergelijkbare woningen

Hypotheken

Onafhankelijk hypotheekadvies

  • Ligt jouw droomhuis binnen handbereik?
  • Wil je jouw huidige hypotheek verhogen?
  • Is er hypotheekruimte voor verduurzaming?

Blijf op de hoogte

Ontvang als eerste updates over nieuw aanbod en mis geen enkele kans om jouw droomwoning te vinden.

Gratis waardebepaling of verkoopgesprek

Met de vrijblijvende waardecheck weet je snel waar je aan toe bent. Onze makelaars kijken naar de lokale markt en vergelijkbare woningen in jouw buurt om een goede schatting te geven.

Realiseer al jouw woondromen met Ditters

Wij zijn een team van gedreven vastgoedexperts met een passie voor het maken van verbindingen – tussen kopers en verkopers, huurders en verhuurders. Met een frisse kijk op de makelaardij combineren we expertise met creativiteit. Onze makelaars luisteren écht en nemen de tijd om jouw wensen te begrijpen.


Bij Ditters sta je er niet alleen voor. We denken met je mee, begeleiden je in elke stap en zijn altijd bereikbaar voor vragen. Neem gerust contact met ons op – we helpen je graag verder!