Omschrijving

Deze ruime tussenwoning, met een woonoppervlakte van 119m², biedt een comfortabel thuis voor het hele gezin. De woning beschikt over vijf goede (slaap)kamers, ideaal voor een gezin of voor degenen die behoefte hebben aan extra werk- of hobbyruimtes. Heel fijn is ook de verzorgde 15 meter diepe tuin met een ligging op het zonnige zuidwesten en de ligging nabij het Veldhuizerbos. Met energielabel A beschik je over een woning voorzien van extra vloerisolatie (2024) en 15 stuks zonnepanelen.

De woning is gelegen in een rustig gedeelte van de wijk. Of u nu op zoek bent naar een plek waar de kinderen veilig buiten kunnen spelen, of naar een rustige omgeving om te ontspannen na een lange werkdag. Kortom, deze woning combineert ruimte voor het gezin en wonen in een rustige woonomgeving!

De woning is gelegen in een groene, kindvriendelijke woonwijk met een aangename woonomgeving. Er zijn diverse speeltuinen, scholen en sportgelegenheden in de directe omgeving. Voor de dagelijkse boodschappen kun je terecht bij winkelcentrum 'Bellestein', met o.a. 2 supermarkten, drogist, bakker, slager, bloemist en een kapper, apotheek en een gezondheidscentrum. Het centrum van Ede is gemakkelijk te bereiken met de fiets. Ook stopt de bus voor de deur welke je naar het centrum of Intercitystation Ede-Wageningen kan brengen. De uitvalswegen naar de A12, A30 en de N224 zijn in de directe omgeving aanwezig.

Alle feiten op een rij:
- Goed onderhouden tussenwoning met vijf (slaap)kamers
- Energielabel A en 15 stuks zonnepanelen (lease € 76,84 per maand)
- Verzorgde zonnige en diepe tuin met privacy
- Grotendeels kunststof kozijnen met HR++ glas en keraliet in 2024 vervangen (onderhoudsarm)
- Op loopafstand van het Veldhuizerbos

Indeling
Begane grond
Bij binnenkomst via de hal, waar de meterkast en een apart toilet zijn gesitueerd, leidt de deur je naar de woonkamer en bevindt zich de trapopgang naar de bovenverdieping. De woonkamer, gelegen aan de achterzijde van de woning, is voorzien van een laminaatvloer en een achterdeur die toegang biedt tot de ruime achtertuin. In de open keuken tref je een verzorgde keuken in lichte kleuropstelling. De keuken beschikt over veel werk- en opbergruimte met zowel boven- als onderkasten. Uitgerust met diverse inbouwapparatuur, waaronder een inductiekookplaat, afzuigkap, vaatwasser, koel-vriescombinatie, oven en magnetron kun je hier moeiteloos maaltijden bereiden.

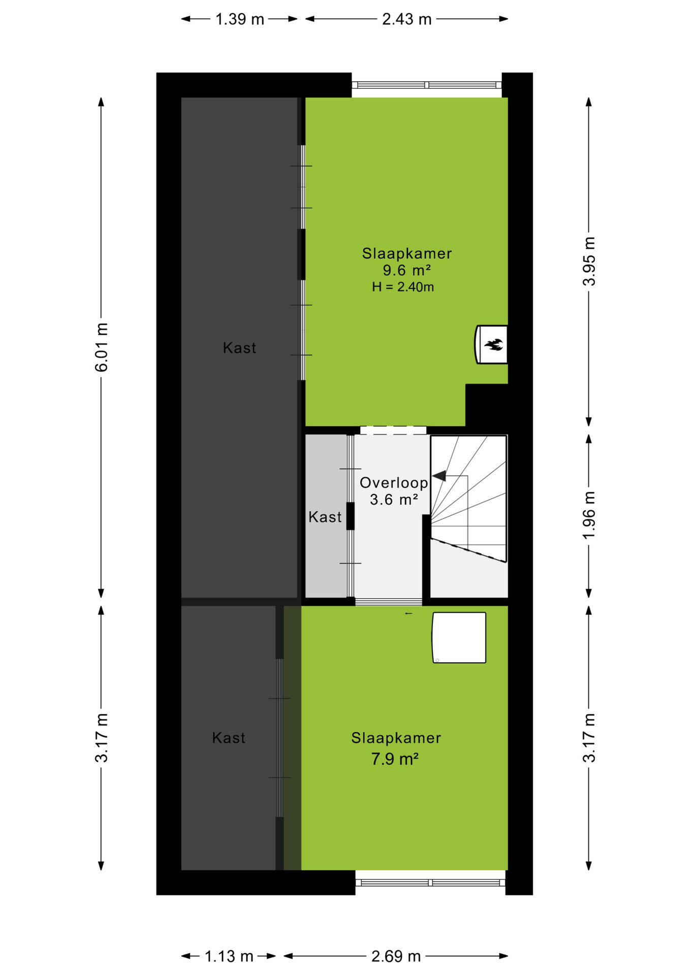
1e verdieping
De overloop geeft toegang tot drie comfortabele slaapkamers en een goed onderhouden badkamer. Aan de voorzijde van de woning ligt de grootste slaapkamer, met een oppervlakte van circa 16 m², voorzien van laminaat en een deur naar het balkon. Aan de achterzijde tref je een tweede slaapkamer van circa 12m², uitgerust met een eenvoudig keukenblok. Daarnaast bevindt zich een kleinere slaapkamer van 7 m², eveneens met laminaat. De badkamer is volledig betegeld en beschikt over een douchecabine, wastafelmeubel en kast, toilet en een aansluiting voor de wasmachine.

2e verdieping
Via de vaste trap bereik je de voorzolder, met toegang naar de vierde en vijfde kamer. Op de voorzolder beschik je over een vaste kast om diverse spullen op te bergen. De slaapkamer aan de voorzijde beschikt over een schuifdeur en bergruimte achter het knieschot. De kamer aan de achterzijde biedt bergruimte achter het knieschot en hier bevindt zich de C.V. ketel opstelling. Tot slot tref je hier alle benodigdheden om een wasmachine te plaatsen.

Tuin
De verzorgde 15 meter diepe tuin biedt privacy en is ideaal gelegen op het zonnige zuidwesten. Voor de warme dagen zorgt een elektrisch zonnescherm voor de nodige verkoeling. De woning is ook via de achterzijde toegankelijk dankzij een loopdeur en poort, wat een handige toegang biedt tot de berging voor het stallen van fietsen. De stenen berging is circa 6m² groot en biedt naast het stallen van de fietsen ook mogelijkheid voor het opbergen van tuinkussens, gereedschap etc.

Woonoppervlakte: 119 m²
Perceeloppervlakte: 168 m²
Inhoud woning: 414 m³

Bijzonderheden
Verwarming: C.V. ketel Remeha Tzerra (2013)
Warm water: C.V. ketel Remeha Tzerra (2013)
Isolatie: Vloerisolatie, grotendeels HR++ glas
Bouwjaar: 1980
Tuinligging: Zuidwesten
Aanvaarding: In overleg

Koopovereenkomst:
Bij de verkoop zal er een standaard NVM koopovereenkomst worden gehanteerd. Bij woningen welke ouder zijn dan 20 jaar, worden de volgende clausules opgenomen in de koopovereenkomst:
- Asbestclausule
- Ouderdomsclausule

Koop je de woning zonder voorbehoud van financiering? Dan zullen wij een termijn hanteren van 14 dagen na het opstellen van de koopovereenkomst voor het storten van de bankgarantie/waarborgsom.

Deze informatie is door ons met de nodige zorgvuldigheid samengesteld. Onzerzijds wordt echter geen enkele aansprakelijkheid aanvaard voor enige onvolledigheid, onjuistheid of anderszins, dan wel de gevolgen daarvan. Alle opgegeven maten en oppervlakten zijn indicatief.
+ toon meer
deze woning is Verkocht

Klingelbeek 45 Ede

Klingelbeek 45

6715 HK, Ede
Ditters open huis: 5 april 2025 10:00 - 12:00 uur
Landelijke Open Huizen Route NVM: 5 april 2025 11:00 uur - 15:00 uur
Vanaf€ 400.000 k.k.

Schakel een aankoopmakelaar in.

Snel handelen helpt je jouw droomhuis te bemachtigen. Zo vergroot je de kans dat je er op tijd bij bent.
Ede
verkocht

Of maak vrijblijvend een zoekprofiel aan.

Vergelijkbare woningen

Hypotheken

Onafhankelijk hypotheekadvies

  • Ligt jouw droomhuis binnen handbereik?
  • Wil je jouw huidige hypotheek verhogen?
  • Is er hypotheekruimte voor verduurzaming?

Blijf op de hoogte

Ontvang als eerste updates over nieuw aanbod en mis geen enkele kans om jouw droomwoning te vinden.

Gratis waardebepaling of verkoopgesprek

Met de vrijblijvende waardecheck weet je snel waar je aan toe bent. Onze makelaars kijken naar de lokale markt en vergelijkbare woningen in jouw buurt om een goede schatting te geven.

Realiseer al jouw woondromen met Ditters

Wij zijn een team van gedreven vastgoedexperts met een passie voor het maken van verbindingen – tussen kopers en verkopers, huurders en verhuurders. Met een frisse kijk op de makelaardij combineren we expertise met creativiteit. Onze makelaars luisteren écht en nemen de tijd om jouw wensen te begrijpen.


Bij Ditters sta je er niet alleen voor. We denken met je mee, begeleiden je in elke stap en zijn altijd bereikbaar voor vragen. Neem gerust contact met ons op – we helpen je graag verder!