Aanbod

Verken ons aanbod. Van huur tot koop. En van nieuwbouw tot bouwkavel. Samen vinden we de plek waar jij je helemaal thuis voelt.

Diensten

Onze experts begeleiden je van A tot Z. Of je nu je huis wilt verkopen, op zoek bent naar je droomhuis of advies nodig hebt over hypotheken of verzekeringen. Met jarenlange ervaring en persoonlijke service zorgen we ervoor dat jij met een gerust hart de juiste keuzes maakt.

Over Ditters

Wij zijn Ditters. Verhalenvertellers. De schakel tussen droom en woning. We luisteren naar jouw wensen en maken op basis daarvan een plan.

Omschrijving

Ruime eengezinswoning met maar liefst vier slaapkamers en een tuin op het fijne zuidwesten. In de tuin is een royale veranda gerealiseerd die voor een prettig verlengstuk van de woning zorgt.

De woning is gelegen in Ede-Zuid (Reehorsterwijk) op een ideale locatie nabij diverse voorzieningen. Daarnaast ligt de woning dicht in de buurt van verschillende onderwijsinstellingen, zowel middelbaar- als hoger onderwijs.

Op korte afstand bevinden zich twee winkelcentra voor alle dagelijkse boodschappen.

Indeling:
Begane grond:
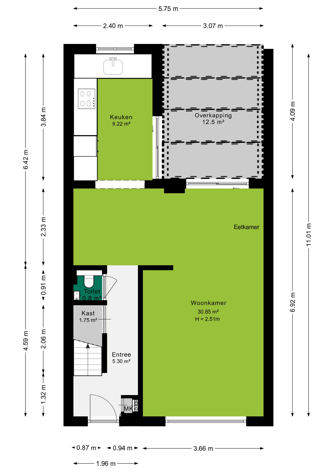
Via de entree kom je bij de hal met toegang tot de woon- en eetkamer, vernieuwd luxe toilet met hoekfonteintje, een praktische trapkast, de vernieuwde meterkast en de trapopgang naar de eerste verdieping.

De woonkamer is gelegen aan de voorzijde van de woning. Door de grote raampartij aan de voorkant is dit een heerlijk lichte zithoek.

Grenzend aan de woonkamer bevindt zich de eethoek waarbij er leuk zicht is op de tuin door middel van de royale schuifpui. In de zomermaanden is er hierdoor een fijne verbinding tussen binnen en buiten.

Er is een uitbouw aan de woning waarin de open keuken is gesitueerd. De luxe nieuwe inbouwkeuken is in hoekopstelling geplaatst. Het geheel heeft een neutrale lichte kleurstelling en beschikt over diverse inbouwapparatuur, te weten een vaatwasser, koel- vriescombinatie, oven, combimagnetron, inductie kookplaat en een afzuigkap.

Tevens is er op de begane grond een werkhoek gecreëerd zodat er voor thuiswerken of musiceren een goede mogelijkheid is. De begane grond vloer is afgewerkt met een in visgraat gelegde eikenhouten vloer met comfortabele vloerverwarming.

Er is een uitbouw aan de woning waarin de open keuken is gesitueerd. De luxe nieuwe inbouwkeuken is in hoekopstelling geplaatst. Het geheel heeft een neutrale lichte kleurstelling en beschikt over diverse inbouwapparatuur, te weten een vaatwasser, koelkast en vriezer, oven, combimagnetron, inductie kookplaat en een afzuigkap.

Eerste verdieping:
Via de vaste trap kom je bij de overloop met toegang tot drie slaapkamers, de badkamer en separaat toilet.

Alle slaapkamers zijn recht opgetrokken, strak stukwerk op de wanden en uitgerust met een PVC vloer, aluminium kozijnen met dubbel glas en rolluiken.

De hoofdslaapkamer bevindt zich aan de voorzijde van de woning en is uitgerust met elektrisch rolluik.

De badkamer is volledig betegeld en beschikt over een raam voor ventilatie en inval van daglicht. Daarnaast is de badkamer uitgerust met een wastafelmeubel, glazen douchecabine met thermostaatkraan en designradiator.

Verder is er een separate luxe toiletruimte die recent vernieuwd is met wandcloset, fonteintje en voorzien van fraaie wand- en vloertegels.

Tweede verdieping:
Via de vaste trap kom je bij de zolderverdieping.

Op de voorzolder is een Veluxdakraam aanwezig, net als op de andere ruimtes op de 2e verdieping.

In de technische ruimte bevindt zich de cv-ketel (2016), wasmachineaansluiting en een wasmeubel.

Verder is hier een vierde slaapkamer aanwezig die is voorzien van drie Veluxdakramen, Agnes platenplafond en veel bergruimte achter de knieschotten.

Tuin:
Vanuit de eethoek en de keuken zijn de veranda en de achtertuin bereikbaar.

De veranda is een prettig verlengstuk van de woning en vanuit hier is er leuk zicht op de tuin. Het geheel is door middel van rolluiken volledig af te sluiten.

De achtertuin is op het zonnige zuidwesten gesitueerd. Beschikt over een berging en een achterom.

Afmetingen:
Woon- eetkamer 30.8 m²
Keuken 9.2 m²
Overkapping 12.6 m²
Slaapkamer 1 12.6 m²
Slaapkamer 2 9.7 m²
Slaapkamer 3 7.0 m²
Badkamer 2.5 m²
Slaapkamer 4 16.5 m²
Externe berging 7.2 m²
Woonoppervlakte 118 m²
Perceeloppervlakte 181 m²

Bijzonderheden
Verwarming Nefit HR combiketel (2016)
Warm water Nefit HR combiketel (2016)
Isolatie Dubbel glas en dakisolatie
Tuinligging Zuidwesten
Aanvaarding In overleg

Kenmerken
- Nieuwe inbouwkeuken inclusief diverse apparatuur;
- Wanden gestukt;
- Vloerverwarming op de begane grond;
- Alle vloeren zijn vernieuwd in 2021;
- Vernieuwing toiletruimte in 2023;
- Vernieuwde groepenkast;
- Volledig voorzien van rolluiken;
- Volledige dakopbouw;
- Zonnige op het zuidwesten gelegen tuin;
- Overkapping direct aan de woning die geheel is af te sluiten met een rolluik.

Koopovereenkomst:
Bij de verkoop zal er een standaard NVM koopovereenkomst worden gehanteerd. Bij woningen welke ouder zijn dan 20 jaar, worden de volgende clausules opgenomen in de koopovereenkomst:
- Asbestclausule;
- Ouderdomsclausule.

Koop je de woning zonder voorbehoud van financiering? Dan zullen wij een termijn hanteren van 14 dagen na het opstellen van de koopovereenkomst voor het storten van de bankgarantie/waarborgsom.

Deze informatie is door ons met de nodige zorgvuldigheid samengesteld. Onzerzijds wordt echter geen enkele aansprakelijkheid aanvaard voor enige onvolledigheid, onjuistheid of anderszins, dan wel de gevolgen daarvan. Alle opgegeven maten en oppervlakten zijn indicatief.
+ toon meer
deze woning is Verkocht

Oude Kerkweg 80 Ede

Oude Kerkweg 80

6717 JS, Ede
Ditters open huis: 5 april 2025 10:00 - 12:00 uur
Landelijke Open Huizen Route NVM: 5 april 2025 11:00 uur - 15:00 uur
Vanaf€ 425.000 k.k.

Schakel een aankoopmakelaar in.

Snel handelen helpt je jouw droomhuis te bemachtigen. Zo vergroot je de kans dat je er op tijd bij bent.
Ede
verkocht

Of maak vrijblijvend een zoekprofiel aan.

Vergelijkbare woningen

Hypotheken

Onafhankelijk hypotheekadvies

  • Ligt jouw droomhuis binnen handbereik?
  • Wil je jouw huidige hypotheek verhogen?
  • Is er hypotheekruimte voor verduurzaming?

Blijf op de hoogte

Ontvang als eerste updates over nieuw aanbod en mis geen enkele kans om jouw droomwoning te vinden.

Gratis waardebepaling of verkoopgesprek

Met de vrijblijvende waardecheck weet je snel waar je aan toe bent. Onze makelaars kijken naar de lokale markt en vergelijkbare woningen in jouw buurt om een goede schatting te geven.

Realiseer al jouw woondromen met Ditters

Wij zijn een team van gedreven vastgoedexperts met een passie voor het maken van verbindingen – tussen kopers en verkopers, huurders en verhuurders. Met een frisse kijk op de makelaardij combineren we expertise met creativiteit. Onze makelaars luisteren écht en nemen de tijd om jouw wensen te begrijpen.


Bij Ditters sta je er niet alleen voor. We denken met je mee, begeleiden je in elke stap en zijn altijd bereikbaar voor vragen. Neem gerust contact met ons op – we helpen je graag verder!