Omschrijving

Gelegen aan de Rembrandtlaan 125 in de wijk Maandereng te Ede is deze ideale gezinswoning. De woning beschikt over maar liefst 4 slaapkamers. Daarnaast zijn alle dagelijkse voorzieningen om de hoek en zijn ook diverse recreatiemogelijkheden zoals het Hoekelumse bos en verschillende sportverenigingen. Zie jij jezelf al helemaal wonen in deze mooie woning? Neem dan snel contact met ons op!

Deze woning is gelegen in de wijk Maandereng. De woning is gelegen op slechts enkele minuten loopafstand van winkelcentrum Stadspoort. Hier vind je alle dagelijkse voorzieningen zoals de Action, Albert Heijn, Jumbo en de Hema. Ook zijn op 2 minuten loopafstand diverse basisscholen te vinden. Daarnaast zijn er ook diverse middelbare en beroepsonderwijs scholen op circa 10 minuten loopafstand. Ideaal voor gezinnen met schoolgaande kinderen.

Ook voor een heerlijk stukje recreatie of groen hoef je niet ver te zoeken. Vlakbij de woning is het buurtpark Maandereng te vinden. Voor de mensen die meer van de ongerepte natuur houden is het Hoekelumse bos op slechts 10 minuten fietsafstand. In het bos kun je heerlijk wandelen en een frisse neus halen. Voor de sportieveling is er ook genoeg te doen, op 5 minuutjes fietsafstand liggen diverse sportclubs zoals Voetbalvereniging Ede, Baseball- en Softball Vereniging "Moorfielders" en Atletiekvereniging Climax.

Enkele pluspunten van de woning:
+ Airco op de begane grond;
+ Alle keukenapparatuur is in de afgelopen 10 jaar vernieuwd.
+ Vier slaapkamers;
+ De tweede verdieping beschikt over een dakkapel en zorgt voor veel ruimte en natuurlijke lichtinval;
+ Bijna alle buitenkozijnen, ramen en deuren zijn in 2024 geschilderd;
+ Op loopafstand van winkelcentrum Maandereng;
+ Op fietsafstand van het Hoekelumse bos en diverse sportverenigingen;

Indeling
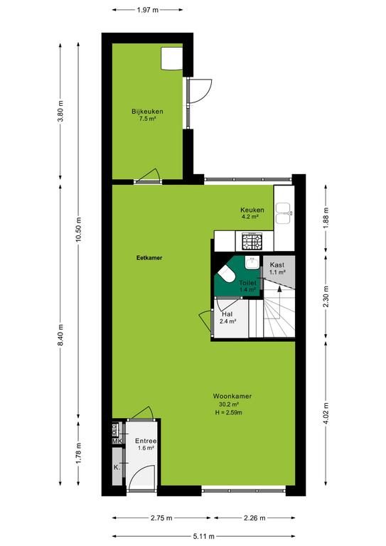
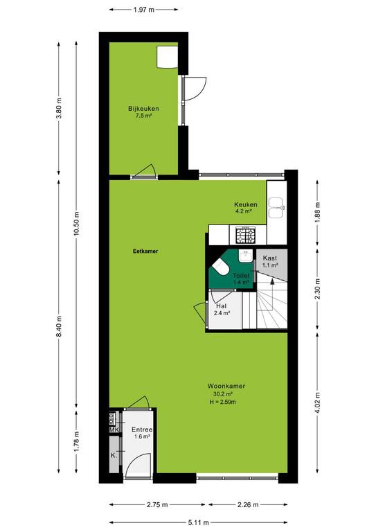
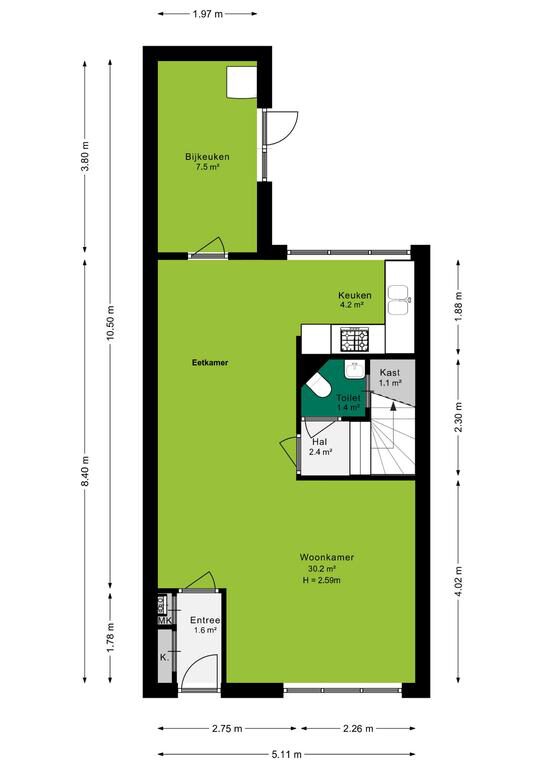
Begane grond
Binnenkomst via de entree, waar zich ook de berging en meterkast bevinden. De royale woonkamer is ongeveer 30 m². Vanuit de woonkamer loop je zo de eetkamer in. Vanuit de eetkamer heb je toegang tot de bijkeuken, die ideaal is voor het opbergen van spullen en eventueel een extra koelkast. Vanuit de bijkeuken kun je ook de tuin betreden. Ga je vanuit de eetkamer verder, dan kom je in de keuken. Deze is uitgevoerd in een lichte kleurstelling en voorzien van diverse inbouwapparaten, waaronder een vier-pits gasfornuis, afzuigkap, oven, koelkast en vaatwasser.

Eerste verdieping
Overloop, drie ruime slaapkamers die zijn uitgerust met inbouwkasten. De slaapkamers aan de voorzijde van de woning zijn erg ruim door de dakkapel.

De volledig betegelde badkamer beschikt over een ligbad en douchecombinatie, een wastafelmeubel, een designradiator en een toilet.

Tweede verdieping
Overloop met aansluiting voor de wasmachine; een vierde slaapkamer biedt dankzij de dakkapel extra ruimte en extra opbergruimte achter de schuine wanden.

Tuin
Vanuit de bijkeuken heb je directe toegang tot de achtertuin. Deze tuin is met zorg aangelegd. Achterin de tuin vind je een berging, die is ideaal voor het opbergen van tuingereedschap of het veilig stallen van fietsen. De tuin is ook toegankelijk via een achterom, wat extra gemak biedt voor het in- en uitgaan zonder door het huis te hoeven.

Perceeloppervlakte: 146 m²
Inhoud woning: 368 m³
Woonoppervlakte: 106 m²

Bijzonderheden
Verwarming: CV ketel Baseline HRC24/CW4 (2015);
Warm water: CV ketel Baseline HRC24/CW4 (2015);
Isolatie: Dak isolatie, HR-glas;
Tuinligging: Oosten;
Aanvaarding: In overleg.

Koopovereenkomst:
Bij de verkoop zal er een standaard NVM koopovereenkomst worden gehanteerd. Bij woningen welke ouder zijn dan 20 jaar, worden de volgende clausules opgenomen in de koopovereenkomst:
- Asbestclausule;
- Ouderdomsclausule.

Koop je de woning zonder voorbehoud van financiering? Dan zullen wij een termijn hanteren van 14 dagen na het opstellen van de koopovereenkomst voor het storten van de bankgarantie/waarborgsom.

Deze informatie is door ons met de nodige zorgvuldigheid samengesteld. Onzerzijds wordt echter geen enkele aansprakelijkheid aanvaard voor enige onvolledigheid, onjuistheid of anderszins, dan wel de gevolgen daarvan. Alle opgegeven maten en oppervlakten zijn indicatief.
+ toon meer
deze woning is Verkocht

Rembrandtlaan 125 Ede

Rembrandtlaan 125

6717 NS, Ede
Ditters open huis: 5 april 2025 10:00 - 12:00 uur
Landelijke Open Huizen Route NVM: 5 april 2025 11:00 uur - 15:00 uur
Vanaf€ 400.000 k.k.

Schakel een aankoopmakelaar in.

Snel handelen helpt je jouw droomhuis te bemachtigen. Zo vergroot je de kans dat je er op tijd bij bent.
Ede
verkocht

Of maak vrijblijvend een zoekprofiel aan.

Vergelijkbare woningen

Hypotheken

Onafhankelijk hypotheekadvies

  • Ligt jouw droomhuis binnen handbereik?
  • Wil je jouw huidige hypotheek verhogen?
  • Is er hypotheekruimte voor verduurzaming?

Blijf op de hoogte

Ontvang als eerste updates over nieuw aanbod en mis geen enkele kans om jouw droomwoning te vinden.

Gratis waardebepaling of verkoopgesprek

Met de vrijblijvende waardecheck weet je snel waar je aan toe bent. Onze makelaars kijken naar de lokale markt en vergelijkbare woningen in jouw buurt om een goede schatting te geven.

Realiseer al jouw woondromen met Ditters

Wij zijn een team van gedreven vastgoedexperts met een passie voor het maken van verbindingen – tussen kopers en verkopers, huurders en verhuurders. Met een frisse kijk op de makelaardij combineren we expertise met creativiteit. Onze makelaars luisteren écht en nemen de tijd om jouw wensen te begrijpen.


Bij Ditters sta je er niet alleen voor. We denken met je mee, begeleiden je in elke stap en zijn altijd bereikbaar voor vragen. Neem gerust contact met ons op – we helpen je graag verder!