Omschrijving

Op zoek naar een zeer charmante royale helft van een dubbelwoonhuis met eigen oprit, garage en diepe tuin? Kom dan snel kijken bij deze fraaie woning aan de Schralenhouw 7 te Ede.

De woning is gelegen op een ruim perceel van 432m² en de volgende elementen van deze charmante woningen spreken je vast aan: uitgebouwde woon-eetkamer van ca. 48m² met veel lichtinval, ruime (half) openkeuken, kunststof kozijnen op de 1e en 2e verdieping, maar liefst 4 volwaardige (slaap)kamers, diverse indelingsmogelijkheden en ruimte voor een 5e (slaap)kamer, dakkapel op de 2e verdieping en veel bergruimte door de zolder, garage en kelder. Als je van tuinieren of buiten zijn houdt spreekt de tuin je vast goed aan en door de eigen oprit is er altijd een eigen parkeerplek. De woning is verder omgeven door groen en gelegen in een zeer nette wijk met alle voorzieningen op korte afstand.

De woning is gesitueerd in een groene omgeving en binnen slechts 550 meter is het bruisende centrum van Ede met diverse eetgelegenheden en winkelvoorzieningen. Ook het bos en de heidevelden liggen op een korte wandelafstand klaar om verkend te worden. Verder is de locatie ook zeer toegankelijk: het NS Intercitystation Ede-Wageningen, de A12 en A30 zijn allemaal binnen enkele minuten te bereiken.

Indeling:
Begane grond:
Via de eigen oprijlaan, waar ruimte is voor meerdere auto's, bereik je de woning. De entree met meterkast, separaat toilet en kelder geeft toegang tot de woonkamer. De royale woon-eetkamer is aan de achterzijde uitgebouwd en heeft een afmeting van ca 48m², is voorzien van neutrale vloer, sfeervolle haard, neutrale wanden en door de vele ramen komt er heerlijk veel licht binnen. Door de prettig afmeting is er ruimte genoeg voor een grote eettafel en ontstaat er een gezellig verbinding met de keuken. De (half) openkeuken heeft zeer veel bergruimte en is voorzien van een gasfornuis, koel-vriescombinatie en een oven.

1e Verdieping:
Via de overloop zijn de 3 slaapkamers en de badkamer te bereiken. De slaapkamers hebben een afmeting van ca. 13m², 12,5m² en 7m². De slaapkamers zijn voorzien van een neutrale afwerking, kunststof kozijnen met dubbel glas en heerlijk veel lichtinval. De slaapkamers zijn verder voorzien van ruime en ook handige inbouwkasten. De badkamer is betegeld in een lichte kleurstelling en beschikt over douche, toilet en een raam om extra goed te kunnen ventileren.

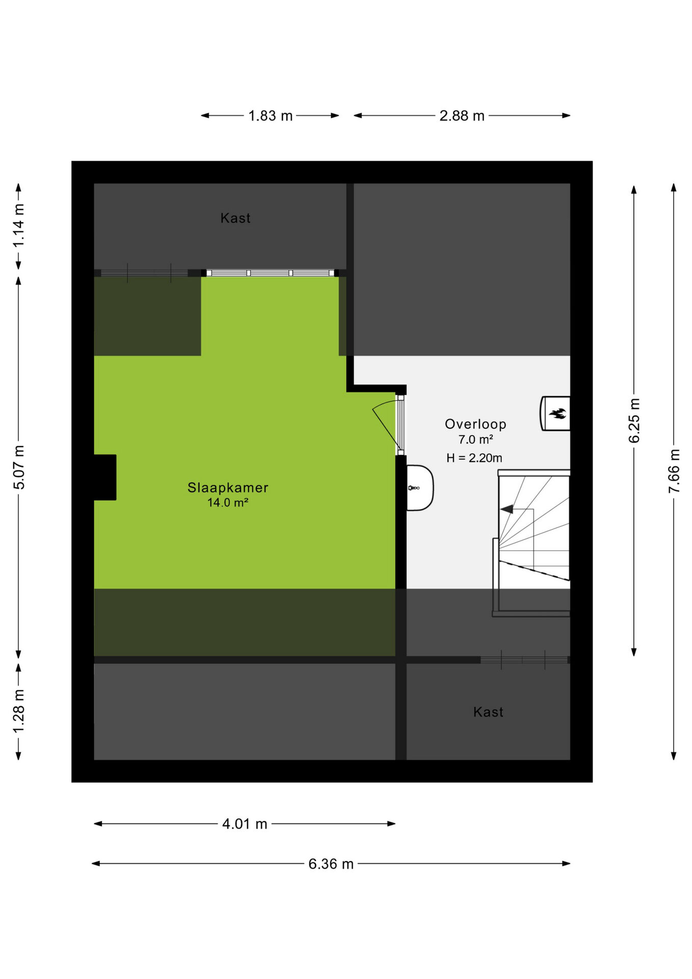
2e Verdieping:
Via een vaste trap is de volwaardige 2e verdieping te bereiken. De overloop biedt veel opbergruimte, hier is een handige wastafel aanwezig en de C.V.-ketel staat hier opgesteld. De slaapkamer op deze verdieping heeft een afmeting van ca. 14m². Ideale ruimte om als hobby-, sport-, werk-, logeer- of slaapkamer te gebruiken. De dakkapel op deze verdieping zorgt voor heerlijk veel lichtinval en vergroot echt het woongenot.

Tuin:
Wat een fantastische tuin! Iedereen die van tuinieren of het buiten-zijn houdt komt hier helemaal tot leven. De fantastische grote tuin, geeft de mogelijkheid om heerlijk van het buitenleven te genieten en de afmeting zorgt er voor dat je van ‘s ochtends vroeg tot ‘s avonds laat van de zon kunt genieten. Verder is de tuin voorzien van een gezellig terras en een garage. De garage (ca. 24m²) is ideaal voor het opslaan van spullen en is via de zijkant en voorkant te bereiken.

Kenmerken:
Verwarming: C.V.-combiketel (bouwjaar 2012)
Warm water: C.V.-combiketel (bouwjaar 2012)
Bouwjaar: 1960
Tuin: noordwest
Isolatie: dakisolatie, (deels) muurisolatie en grotendeels dubbel glas
Aanvaarding: in overleg

Extra’s:
- Royale eengezinswoning met garage op een perceel van 432m²;
- Uitgebouwde woon-eetkamer met veel lichtinval;
- Maar liefst 5 volwaardige (slaap)kamers;
- Deels kunststof kozijnen met dubbel glas op de 1e en 2e verdieping;
- Naar eigen smaak te moderniseren;
- Veel buitenruimte en gelegen in een groene omgeving wat een heerlijk vrij gevoel geeft;
- Genoeg bergruimte door de kelder en garage;
- Gemakkelijk meerdere auto's parkeren op eigen terrein;
- Gelegen nabij diverse voorzieningen en uitvalswegen.

Koopovereenkomst:
Bij de verkoop zal er een standaard NVM koopovereenkomst worden gehanteerd. Bij woningen welke ouder zijn dan 20 jaar, worden de volgende clausules opgenomen in de koopovereenkomst:
- Asbestclausule;
- Ouderdomsclausule.

Koopt u de woning zonder voorbehoud van financiering? Dan zullen wij een termijn hanteren van 14 dagen na het opstellen van de koopovereenkomst voor het storten van de bankgarantie/waarborgsom.

Deze informatie is door ons met de nodige zorgvuldigheid samengesteld. Onzerzijds wordt echter geen enkele aansprakelijkheid aanvaard voor enige onvolledigheid, onjuistheid of anderszins, dan wel de gevolgen daarvan. Alle opgegeven maten en oppervlakten zijn indicatief.
+ toon meer
deze woning is Verkocht

Schralenhouw 7 Ede

Schralenhouw 7

6711 EA, Ede
Ditters open huis: 5 april 2025 10:00 - 12:00 uur
Landelijke Open Huizen Route NVM: 5 april 2025 11:00 uur - 15:00 uur
Vanaf€ 635.000 k.k.

Schakel een aankoopmakelaar in.

Snel handelen helpt je jouw droomhuis te bemachtigen. Zo vergroot je de kans dat je er op tijd bij bent.
Ede
verkocht

Of maak vrijblijvend een zoekprofiel aan.

Vergelijkbare woningen

Hypotheken

Onafhankelijk hypotheekadvies

  • Ligt jouw droomhuis binnen handbereik?
  • Wil je jouw huidige hypotheek verhogen?
  • Is er hypotheekruimte voor verduurzaming?

Blijf op de hoogte

Ontvang als eerste updates over nieuw aanbod en mis geen enkele kans om jouw droomwoning te vinden.

Gratis waardebepaling of verkoopgesprek

Met de vrijblijvende waardecheck weet je snel waar je aan toe bent. Onze makelaars kijken naar de lokale markt en vergelijkbare woningen in jouw buurt om een goede schatting te geven.

Realiseer al jouw woondromen met Ditters

Wij zijn een team van gedreven vastgoedexperts met een passie voor het maken van verbindingen – tussen kopers en verkopers, huurders en verhuurders. Met een frisse kijk op de makelaardij combineren we expertise met creativiteit. Onze makelaars luisteren écht en nemen de tijd om jouw wensen te begrijpen.


Bij Ditters sta je er niet alleen voor. We denken met je mee, begeleiden je in elke stap en zijn altijd bereikbaar voor vragen. Neem gerust contact met ons op – we helpen je graag verder!