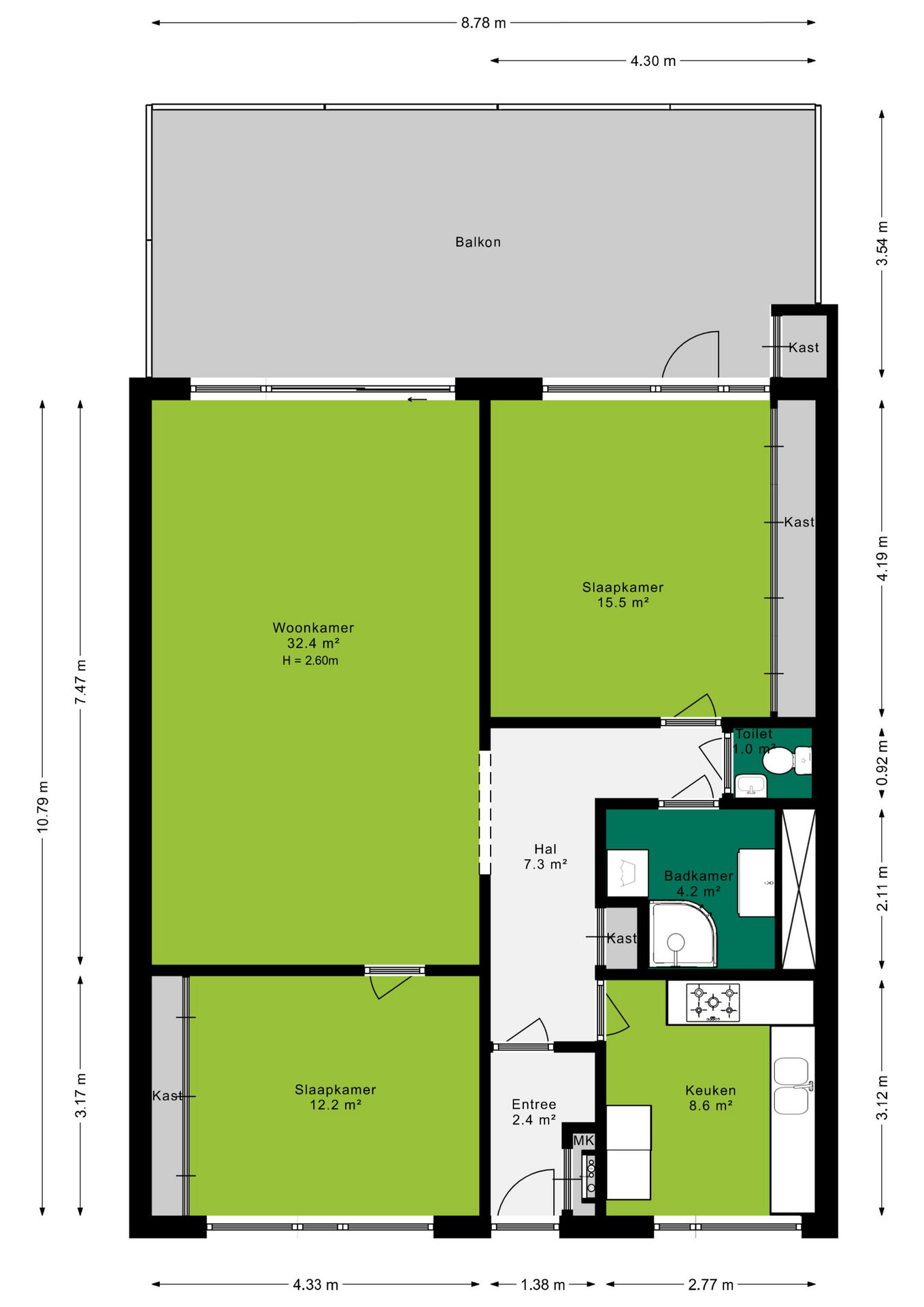
Centraal in Ede gelegen, bevindt zich dit royale appartement met een woonoppervlakte van 94m² en een fantastisch groot terras van maar liefst ruim 30m². Dit 3-kamerappartement is zo te betrekken en door de fijne ligging ervaar je hier veel rust en een prettig uitzicht!
De volgende aspecten van dit fraaie appartement zullen je vast verrassen: een woon-eetkamer van ruim 30m² met heerlijk veel lichtinval, ruime keuken met diverse inbouwapparatuur, 2 volwaardige slaapkamers met handige inbouwkasten, complete badkamer en een royaal terras van ruim 30m² op het westen. Daarnaast beschikt de woning over een financieel gezonde VvE en eigen berging.
Op loopafstand bereikt je winkelcentrum Bellestein en winkelcentrum Rozenplein met verscheidene supermarkten en winkels. Tevens bevinden zich in de nabije omgeving diverse sportaccommodaties, scholen, een kinderboerderij, het centrum van Ede en diverse uitvalswegen als A12 en A30. Tegenover het complex en in de straat zelf zijn meer dan genoeg parkeerplekken.
Indeling:
Algemene entree:
Via de centrale entree kom je bij de brievenbussen en heb je toegang tot de lift en het trappenhuis.
Appartement:
Vanuit de entree en hal met meterkast zijn alle vertrekken te bereiken. De royale woon-eetkamer heeft een afmeting van ruim 30m², is voorzien van een nette pvc-vloer, strak afgewerkte wanden en krijgt door de vele raampartijen heerlijk veel lichtinval. Door de prettige indeling is er ruimte genoeg voor een grote eettafel of apart zitgedeelte. De keuken heeft een lichte kleurstelling en beschikt over diverse inbouwapparatuur waaronder een gasfornuis, afzuigkap, oven, koelkast, vriezer, vaatwasser en veel opbergruimte.
De volwaardige slaapkamers hebben een afmeting van ca. 15,5m² en 12m². De slaapkamers zijn voorzien van een nette pvc-vloer, neutrale wanden, voldoende lichtinval en praktische ingebouwde kasten. De complete badkamer is betegeld in een lichte kleurstelling en beschikt over een wastafel met wastafelmeubel, douche en de witgoedaansluiting is hier aanwezig. Naast de badkamer bevindt zich een separaat toilet.
Balkon:
Het appartement beschikt over een zeer royaal balkon welke is gelegen op het zonnige westen waardoor je optimaal van de zon of de schaduw kunt genieten. Door de hoge ligging kan je hier genieten van een weids uitzicht en veel privacy.
In de onderbouw bevindt zich een handige berging voor het opbergen van alle spullen of het stallen van de fiets.
Kenmerken:
Verwarming: blokverwarming
Warm water: boiler
Bouwjaar: 1975
Isolatie: grotendeels dubbel glas
Balkonligging: westen
Aanvaarding: in overleg
Extra's:
- 3-kamer-appartement met een weids uitzicht;
- Royale woonkamer met veel lichtinval;
- Complete keuken met diverse inbouwapparatuur;
- Zeer ruim terras gelegen op het zonnige westen;
- Eigen berging in de onderbouw;
- Gelegen nabij diverse voorzieningen en uitvalswegen;
- De servicekosten bedragen € 378,73 per maand, inclusief voorschotstookkosten.
Koopovereenkomst:
Bij de verkoop zal er een standaard NVM koopovereenkomst worden gehanteerd. Bij woningen welke ouder zijn dan 20 jaar, worden de volgende clausules opgenomen in de koopovereenkomst:
- Asbestclausule;
- Ouderdomsclausule.
Koopt u de woning zonder voorbehoud van financiering? Dan zullen wij een termijn hanteren van 14 dagen na het opstellen van de koopovereenkomst voor het storten van de bankgarantie/waarborgsom.
Deze informatie is door ons met de nodige zorgvuldigheid samengesteld. Onzerzijds wordt echter geen enkele aansprakelijkheid aanvaard voor enige onvolledigheid, onjuistheid of anderszins, dan wel de gevolgen daarvan. Alle opgegeven maten en oppervlakten zijn indicatief.